Mẫu nhà 5 phòng ngủ hợp xu hướng đang trở thành lựa chọn lý tưởng cho những gia đình đông thành viên, mang đến không gian sống rộng rãi và thoải mái. Với cách bố trí hợp lý, ngôi nhà vừa đáp ứng nhu cầu sinh hoạt hằng ngày vừa tạo sự gắn kết giữa các thế hệ. Cùng khám phá ngay những thiết kế nhà 5 phòng ngủ được Xây dựng Nhất Tín tuyển chọn dưới đây để tìm thêm ý tưởng mới cho tổ ấm của bạn.
>> Tham khảo thêm: Các mẫu thiết kế nhà đẹp
Tóm tắt nội dung
- 1 Thiết kế nhà 1 tầng 5 phòng ngủ không gian sống lý tưởng
- 2 Nhà 2 tầng 5 phòng ngủ 100m2 sử dụng đường nét tối giản
- 3 Nhà 2 tầng 5 phòng ngủ 200m2 với thiết kế ban công sắt mỹ thuật ấn tượng
- 4 Nhà 2 tầng 5 phòng ngủ 150m2 có gara ô tô
- 5 Nhà 2 tầng 5 phòng ngủ 120m2 sử dụng chất liệu cao cấp
- 6 Thiết kế nhà 5 phòng ngủ với tông màu trắng Hiện Đại
- 7 Thiết kế nhà vườn 5 phòng ngủ có gác lửng mái ngói mang nét hoài cổ
- 8 Thiết kế nhà mái Thái 1 tầng 5 phòng ngủ sử dụng những đường phào chỉ tinh xảo
- 9 Thiết kế nhà mái Nhật 5 phòng ngủ mang nét đẹp bền vững theo thời gian
- 10 Thiết kế nhà 3 tầng 5 phòng ngủ mái Mansard sang trọng
- 11 Thiết kế nhà đẹp 2 tầng 5 phòng ngủ chữ L kết hợp gạch kiến trúc
- 12 Tham khảo bản vẽ nhà 5 phòng ngủ bố trí khoa học thuận tiện trong sinh hoạt
- 13 Bảng dự toán chi phí xây dựng nhà 5 phòng ngủ tối ưu ngân sách
Thiết kế nhà 1 tầng 5 phòng ngủ không gian sống lý tưởng
Thiết kế nhà 1 tầng 5 phòng ngủ gây ấn tượng với mặt tiền ốp gạch đen sang trọng làm nổi bật sự bề thế và vững chãi của công trình. Kiến trúc chú trọng đến sự hài hòa giữa thẩm mỹ và công năng, từ đó mang lại một không gian sống rộng rãi và thoải mái. Đây là lựa chọn phù hợp cho gia đình mong muốn tổ ấm vừa hiện đại vừa bền vững theo thời gian.


Nhà 2 tầng 5 phòng ngủ 100m2 sử dụng đường nét tối giản
Nhà 2 tầng 5 phòng ngủ 100m2 sử dụng đường nét tối giản mang đến không gian sống hài hòa và tiện ích. Với thiết kế vuông vắn, ngôi nhà tạo cảm giác chắc chắn kết hợp với những ô cửa kính lớn giúp ánh sáng tự nhiên lan tỏa khắp không gian. Hệ thống 5 phòng ngủ được bố trí hợp lý, vừa đảm bảo sự riêng tư vừa đáp ứng nhu cầu sinh hoạt thoải mái cho cả gia đình.


Nhà 2 tầng 5 phòng ngủ 200m2 với thiết kế ban công sắt mỹ thuật ấn tượng
Nhà 2 tầng 5 phòng ngủ 200m2 với thiết kế ban công sắt mỹ thuật mang đến diện mạo sang trọng và bền vững theo thời gian. Mặt tiền được chăm chút kỹ lưỡng với những họa tiết ô cửa tinh tế tạo nên điểm nhấn nổi bật ngay từ ánh nhìn đầu tiên. Sự kết hợp hài hòa giữa chi tiết mỹ thuật và bố cục kiến trúc cân đối giúp ngôi nhà vừa cuốn hút, vừa thể hiện gu thẩm mỹ tinh tế của gia chủ.


Nhà 2 tầng 5 phòng ngủ 150m2 có gara ô tô
Nhà 2 tầng 5 phòng ngủ 150m2 có gara ô tô được thiết kế hài hòa giữa công năng và thẩm mỹ, mang lại một không gian sống tiện nghi và bền vững. Nổi bật ở mặt tiền là sự kết hợp tinh tế giữa ban công kính và gạch kiến trúc, tạo nên vẻ đẹp thoáng đãng và sang trọng. Bên cạnh đó, gara ô tô tích hợp trong nhà giúp tối ưu diện tích sử dụng, đồng thời mang lại sự tiện lợi vượt trội cho gia đình trong sinh hoạt hằng ngày.


Nhà 2 tầng 5 phòng ngủ 120m2 sử dụng chất liệu cao cấp
Nhà 2 tầng 5 phòng ngủ 120m2 sử dụng chất liệu cao cấp mang đến không gian sống tiện nghi và sang trọng. Mặt tiền được ốp đá tinh tế, tạo nên vẻ đẹp bền vững và cuốn hút ngay từ ánh nhìn đầu tiên. Ngôi nhà còn sở hữu sân thượng rộng rãi, vừa là nơi thư giãn, vừa tăng thêm sự thoáng đãng cho tổng thể kiến trúc, đem lại sự hài hòa và thoải mái cho gia đình.


Thiết kế nhà 5 phòng ngủ với tông màu trắng Hiện Đại
Thiết kế nhà 5 phòng ngủ nổi bật với dáng vẻ thanh thoát và cân đối. Tông trắng chủ đạo mang lại sự tinh khôi, đồng thời làm nền để các chi tiết ốp gạch và lam dọc ở mặt tiền trở nên cuốn hút hơn. Sự kết hợp hài hòa giữa màu sắc và vật liệu giúp công trình không chỉ bền đẹp theo thời gian mà còn thể hiện được gu thẩm mỹ tinh tế, đáp ứng nhu cầu sống tiện nghi cho gia đình đông thành viên.


Thiết kế nhà vườn 5 phòng ngủ có gác lửng mái ngói mang nét hoài cổ
Thiết kế nhà vườn 5 phòng ngủ có gác lửng là lựa chọn lý tưởng cho những ai yêu thích không gian yên bình và gần gũi. Kiến trúc mái ngói truyền thống kết hợp cùng gác lửng tạo nên vẻ đẹp vừa thân thuộc vừa tiện nghi. Bên cạnh đó, không gian sân vườn rộng rãi góp phần làm ngôi nhà trở nên thoáng mát, hài hòa với thiên nhiên, mang lại cuộc sống thoải mái và ấm cúng cho gia đình nhiều thế hệ.


Thiết kế nhà mái Thái 1 tầng 5 phòng ngủ sử dụng những đường phào chỉ tinh xảo
Thiết kế nhà mái Thái 1 tầng 5 phòng ngủ sử dụng những đường nét tinh xảo mang đến diện mạo sang trọng và bề thế. Các chi tiết phào chỉ được chăm chút tỉ mỉ giúp tôn lên vẻ đẹp hài hòa của tổng thể kiến trúc. Điểm nhấn đặc biệt nằm ở cầu thang với lan can lục bình dẫn vào sảnh chính, tạo cảm giác vừa vững chắc vừa duyên dáng. Sự kết hợp này không chỉ nâng tầm thẩm mỹ mà còn đem lại không gian sống tiện nghi cho gia đình đông thành viên.


Thiết kế nhà mái Nhật 5 phòng ngủ mang nét đẹp bền vững theo thời gian
Thiết kế nhà mái Nhật 5 phòng ngủ chinh phục mọi ánh nhìn nhờ sự cân đối trong hình khối và gam màu trang nhã. Kiến trúc mái Nhật dốc thoải không chỉ tạo nên vẻ thanh thoát mà còn giúp công trình luôn bền đẹp trước tác động của thời tiết. Đây là lựa chọn mang lại không gian sống sang trọng, ấm cúng và trường tồn cùng năm tháng.


Thiết kế nhà 3 tầng 5 phòng ngủ mái Mansard sang trọng
Thiết kế nhà 3 tầng 5 phòng ngủ mái Mansard toát lên vẻ bề thế ngay từ cái nhìn đầu tiên. Kiến trúc mái Mansard vừa tạo sự cân đối, vừa làm nổi bật dáng vẻ uy nghi của công trình. Không chỉ vậy, ở mặt tiền, những đường phào chỉ tinh xảo kết hợp cùng lan can sắt uốn nghệ thuật mang đến vẻ đẹp hài hòa và cuốn hút cho ngoại thất. Bên trong, nội thất được bố trí hợp lý, đáp ứng đầy đủ nhu cầu sinh hoạt và nghỉ ngơi cho gia đình nhiều thế hệ.


Thiết kế nhà đẹp 2 tầng 5 phòng ngủ chữ L kết hợp gạch kiến trúc
Thiết kế nhà đẹp 2 tầng 5 phòng ngủ chữ L mang đến sự hài hòa giữa thẩm mỹ và công năng. Kiểu dáng chữ L giúp không gian thêm thông thoáng, đồng thời tạo khoảng sân rộng rãi phía trước. Đặc biệt, mặt tiền mẫu nhà nổi bật với gạch kiến trúc cùng mảng ốp trang trí tinh xảo, vừa chắc chắn vừa hút mắt. Nhờ vậy mà, tổng thể công trình toát lên vẻ đẹp hiện đại và bền vững theo thời gian.



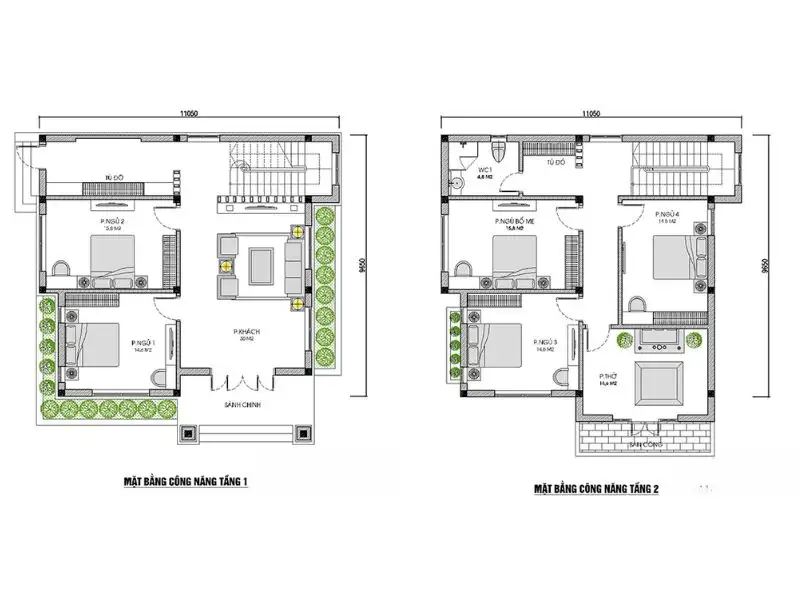
Tham khảo bản vẽ nhà 5 phòng ngủ bố trí khoa học thuận tiện trong sinh hoạt



Bảng dự toán chi phí xây dựng nhà 5 phòng ngủ tối ưu ngân sách
Theo mặt bằng giá xây dựng hiện nay, chi phí xây nhà 5 phòng ngủ năm 2025 thường dao động trong các khoảng sau:
- Phần thô: 3,3 – 4,5 triệu VNĐ/m² (bao gồm móng, khung, tường, mái và nhân công).
- Hoàn thiện cơ bản: 2 – 3,5 triệu VNĐ/m² (gồm sơn, cửa, gạch lát, thiết bị vệ sinh, hệ thống điện – nước).
- Xây trọn gói chìa khóa trao tay: 4,85 – 7 triệu VNĐ/m² (tùy thuộc vào phong cách kiến trúc và chất lượng vật liệu).
Dưới đây là bảng ước tính ngân sách một số loại hình nhà 5 phòng ngủ phổ biến:
| Loại hình nhà ở | Khoảng chi phí |
| Chi phí xây nhà 2 tầng 5 phòng ngủ 100m2 | 1.460.000.000đ đến 1.740.000.000đ |
| Mẫu nhà vườn 1 tầng 130m2 5 phòng ngủ | 949.000.000đ đến 1.130.000.000đ |
| Mẫu nhà 3 tầng 110m2 5 phòng ngủ | 2.410.000.000đ đến 2.870.000.000đ |
| Kiến trúc nhà 4 tầng 80m2 thiết kế 5 phòng ngủ | 2.340.000.000đ đến 2.780.000.000đ |
>> Xem thêm: Báo giá xây nhà trọn gói giá rẻ
Mẫu nhà 5 phòng ngủ hợp xu hướng không chỉ mang lại không gian sống tiện nghi mà còn thể hiện gu thẩm mỹ tinh tế của gia chủ. Với kinh nghiệm thi công thực tế và đội ngũ kiến trúc sư sáng tạo, Xây dựng Nhất Tín luôn sẵn sàng đồng hành để kiến tạo nên những công trình chất lượng, tối ưu công năng. Để được tư vấn chi tiết và nhận báo giá về thiết kế nhà 5 phòng ngủ nhanh chóng, vui lòng liên hệ Hotline: 0988607705 để được hỗ trợ tận tâm.
> Có thể bạn quan tâm: Mẫu nhà đẹp 4 phòng ngủ
KS Tran Nghia (xaydungnhattin.com)










