Với diện tích hạn chế, mẫu nhà 6x8m thường gặp khó khăn trong việc bố trí không gian sao cho hợp lý. Tuy nhiên, nếu bạn biết cách bố trí một cách khoa học, ngôi nhà vẫn có thể đáp ứng đầy đủ các nhu cầu sinh hoạt của gia đình. Nếu bạn đang tìm kiếm ý tưởng thiết kế nhà 6x8m tận dụng diện tích hiệu quả, bài viết dưới đây của Nhất Tín sẽ mang đến những gợi ý hữu ích. Cùng khám phá ngay bài viết dưới đây của chúng tôi.
>> Xem thêm: Thiết kế nhà 6m ấn tượng với được nét kiến trúc độc đáo
Tóm tắt nội dung
- 1 Nhà phố 6×8 sử dụng cửa kính mặt tiền giúp tận dụng ánh sáng thiên nhiên
- 2 Thiết kế nhà ngang 6m dài 8m mái Thái có gara để xe tối ưu
- 3 Mẫu nhà 2 tầng 6x8m đẹp với thiết kế mái che kính tạo không gian mở
- 4 Thiết kế nhà 3 tầng 6 x 8m với đường nét sắc sảo và tinh tế
- 5 Mẫu nhà cấp 4 diện tích 6x8m có 2 phòng ngủ
- 6 Thiết kế nhà 6x8m 4 tầng với mặt tiền sử dụng gạch bông gió kết hợp gạch mộc lạ mắt
- 7 Mẫu thiết kế nhà 6x8m có sân vườn ở nông thôn
- 8 Mẫu nhà 6x8m gác lửng với thiết kế mái tôn
- 9 Nhà 6x8m 3 phòng ngủ với lam gỗ trang trí mặt tiền độc đáo
- 10 Top những bản vẽ công năng nhà ống 6×8 ấn tượng và tiết kiệm không gian
- 11 Chi phí xây nhà 6×8 hết bao nhiêu tiền?
Nhà phố 6×8 sử dụng cửa kính mặt tiền giúp tận dụng ánh sáng thiên nhiên
Mẫu nhà phố 6×8 mà Nhất Tín giới thiệu dưới đây được thiết kế thông minh, mang đến không gian thoáng đãng và mát mẻ cho cả gia đình. Việc bố trí cửa kính tại mặt tiền giúp tối ưu hóa nguồn sáng tự nhiên, khắc phục nhược điểm nhỏ hẹp của công trình. Cùng tham khảo cách bố trí nhà 6x8m tối ưu qua những hình ảnh dưới đây.



Thiết kế nhà ngang 6m dài 8m mái Thái có gara để xe tối ưu
Thiết kế nhà ngang 6m dài 8m mái Thái là giải pháp hoàn hảo cho gia đình nhỏ hoặc cặp vợ chồng mới cưới. Thiết kế mái Thái không chỉ tôn lên vẻ đẹp thanh thoát của mặt tiền mà còn giúp ngôi nhà thêm phần bề thế. Đặc biệt, không gian sân nhỏ được tận dụng khéo léo để bố trí gara, mang đến sự tiện nghi và tối ưu hóa công năng sử dụng cho cả gia đình.





Mẫu nhà 2 tầng 6x8m đẹp với thiết kế mái che kính tạo không gian mở
Với thiết kế mái che kính, mẫu nhà 2 tầng 6x8m đẹp dưới đây tạo nên không gian mở rộng và thoáng đãng, giúp khắc phục nhược điểm ngôi nhà nhỏ hẹp. Phần mái che kính kết hợp với trần ốp gỗ cấu tạo nên hệ mái hình chóp gọn gàng và độc đáo. Nhờ đó, không gian sân thượng bên dưới luôn được thông thoáng và tràn ngập ánh sáng tự nhiên.


Thiết kế nhà 3 tầng 6 x 8m với đường nét sắc sảo và tinh tế
Thiết kế nhà 3 tầng 6 x 8m do Nhất Tín giới thiệu dưới đây ghi điểm với đường nét kiến trúc sắc sảo tạo nên vẻ ngoài thanh thoát và tinh tế. Mặt tiền được thiết kế hài hòa với những mảng tường trắng – xám phân tách rõ ràng, tạo hiệu ứng chiều sâu ấn tượng. Bên cạnh đó, kiến trúc mái bằng không chỉ mang lại vẻ đẹp đơn giản, hiện đại mà còn giúp tối ưu chi phí xây dựng so với các kiểu mái khác.



Mẫu nhà cấp 4 diện tích 6x8m có 2 phòng ngủ
Mẫu nhà cấp 4 diện tích 6x8m với 2 phòng ngủ là giải pháp tối ưu nhu cầu sử dụng của gia đình nhỏ ít thành viên. Nhờ mặt tiền rộng 6m, không gian được bố trí linh hoạt, đảm bảo sự tiện nghi và thoải mái. Bên cạnh đó, hệ thống cửa thông gió giúp tận dụng ánh sáng tự nhiên và tăng cường lưu thông không khí, mang lại không gian sống thoáng đãng, dễ chịu.


Thiết kế nhà 6x8m 4 tầng với mặt tiền sử dụng gạch bông gió kết hợp gạch mộc lạ mắt
Thiết kế nhà 6x8m 4 tầng gây ấn tượng với mặt tiền sử dụng gạch bông gió kết hợp gạch mộc độc đáo. Mảng tường gạch bông gió không chỉ tạo hiệu ứng thẩm mỹ mà còn giúp lưu thông không khí hiệu quả. Bên cạnh đó, việc sử dụng gạch mộc góp phần cách nhiệt hiệu quả, giúp giảm tiêu hao năng lượng cho hệ thống điều hòa và sưởi ấm. Nhờ vậy, ngôi nhà không chỉ sở hữu vẻ ngoài đẹp mắt mà còn mang nét đẹp gần gũi, mộc mạc.



Mẫu thiết kế nhà 6x8m có sân vườn ở nông thôn
Nằm giữa vùng quê thanh bình, mẫu thiết kế nhà 6x8m có sân vườn mang đến không gian sống hài hòa với thiên nhiên. Nhờ vậy, gia chủ có thể tận hưởng những giây phút thư thái sau một ngày dài bận rộn. Xung quanh ngôi nhà là khu vườn rộng rãi, vừa tạo điểm nhấn xanh mát vừa góp phần mang lại bầu không khí trong lành. Chính vì thế, không gian sống của gia đình luôn thoáng đãng và dễ chịu.



Mẫu nhà 6x8m gác lửng với thiết kế mái tôn
Mẫu nhà 6x8m có gác lửng với thiết kế mái tôn là lựa chọn lý tưởng cho những gia đình muốn tối ưu diện tích mà vẫn đảm bảo chi phí hợp lý. Tầng lửng được bố trí hệ kính cường lực lớn, vừa mở rộng tầm nhìn vừa tận dụng tối đa ánh sáng tự nhiên cho không gian sống. Đặc biệt, thiết kế mái tôn không chỉ giúp tiết kiệm chi phí xây dựng mà còn có độ bền cao và khả năng thoát nước tốt, mang đến sự bảo vệ vững chắc cho ngôi nhà trước các tác động của thời tiết.





Nhà 6x8m 3 phòng ngủ với lam gỗ trang trí mặt tiền độc đáo
Mẫu nhà 6x8m 3 phòng ngủ không chỉ được thiết kế tối ưu công năng mà còn sở hữu mặt tiền độc đáo mang dấu ấn thẩm mỹ riêng. Hệ lam gỗ đua ra với thiết kế khung hộp chữ L nổi bật trên nền tường trắng tạo điểm nhấn tinh tế cho tổng thể kiến trúc. Không chỉ tạo điểm nhấn thẩm mỹ, lam gỗ còn đóng vai trò như mái che tự nhiên cho tầng dưới. Đồng thời, gia chủ có thể tận dụng khu vực này để bố trí cây xanh hoặc tiểu cảnh, mang đến không gian sống hài hòa và gần gũi với thiên nhiên.


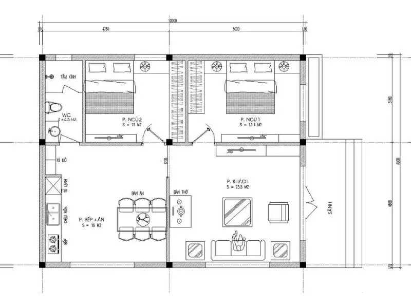
Top những bản vẽ công năng nhà ống 6×8 ấn tượng và tiết kiệm không gian


Chi phí xây nhà 6×8 hết bao nhiêu tiền?
Chi phí xây nhà 6x8m thường biến động tùy thuộc vào yêu cầu và loại hình xây dựng, cụ thể như sau:
- Đơn giá nhà cấp 4 dao động từ 4.250.000đ – 5.500.000đ/m2.
- Đơn giá xây nhà phố 6x8m từ khoảng 4.700.000đ – 5.750.000đ/m2.
Với đơn giá trên, chi phí xây dựng ước tính cho từng loại hình như sau:
- Chi phí xây nhà cấp 4 ngang 6m sâu 8m hết khoảng 307.200.000 đến 374.400.000 đồng.
- Chi phí làm nhà 2 tầng 6x8m từ 643.200.000 đến 816.000.000 đồng.
- Giá xây dựng nhà 3 tầng diện tích sàn 48m2 vào 964.800.000 đến 1.220.000.000 đồng.
>> Xem thêm: Bảng giá xây nhà mới nhất năm nay
Như vậy, Nhất Tín đã giới thiệu những mẫu nhà 6x8m nhỏ đẹp và tối ưu công năng cho gia chủ. Hy vọng bài viết trên sẽ là nguồn cảm hứng để bạn có những ý tưởng thiết kế mới lạ cho mẫu nhà tương lai của mình. Để tham khảo thêm nhiều thiết kế nhà ngang 6m sâu 8m khoa học và tiện nghi, hãy liên hệ ngay đến Nhất Tín để được hỗ trợ. Hotline: 0988607705 / Zalo: 0911062189.
> Xem thêm: Thiết kế nhà ngang 6m dài 7m
KS Tran Nghia (xaydungnhattin.com)










