Trong xu hướng nhà ở hiện nay, thiết kế nhà 72m2 được nhiều gia đình lựa chọn nhờ khả năng tối ưu công năng và tạo dựng không gian sống thông minh, tiện nghi trong từng mét vuông. Với diện tích vừa phải, mỗi chi tiết trong thiết kế đều được sắp xếp khoa học để đảm bảo sự thoải mái và thẩm mỹ. Cùng Xây dựng Nhất Tín xem qua các mẫu nhà đẹp 72m2 ngay bên dưới để khám phá những ý tưởng phù hợp cho tổ ấm của bạn.
>> Xem thêm: Tổng hợp xu hướng thiết kế nhà đẹp được ưa chuộng nhất hiện nay
Tóm tắt nội dung
- 1 Thiết kế nhà 72m2 3 tầng ban công kính rộng thoáng
- 2 Mẫu nhà cấp 4 8x9m mái bằng sử dụng chất liệu cao cấp
- 3 Thiết kế nhà 6×12 2 tầng phong cách Hiện Đại kết hợp không gian xanh mát mẻ
- 4 Xây nhà 72m2 2.5 tầng kết hợp showroom cho thuê kinh doanh tối ưu không gian
- 5 Ý tưởng xây nhà 9x8m2 3 tầng tân Cổ Điển có phào chỉ tinh tế
- 6 Thiết kế nhà cấp 4 12x6m mái Nhật 3 gian tạo dấu ấn riêng
- 7 Mẫu nhà đẹp 72m2 2 tầng 1 tum có sân thượng sau với phong cách công nghiệp
- 8 Mặt tiền nhà đẹp 4.5 x16m có gác lửng với kiến trúc lệch tầng tối ưu không gian sống
- 9 Bản vẽ bố trí công năng mẫu nhà 72m2 với cách sắp xếp tiện ích khoa học
- 10 Tham khảo đơn giá xây nhà 72m2 tối ưu diện tích mới nhất hiện nay
- 11 Dự toán ngân sách thi công trọn gói nhà 72m2 theo quy mô
Thiết kế nhà 72m2 3 tầng ban công kính rộng thoáng
Thiết kế nhà 72m2 3 tầng mang đến không gian sống tiện nghi và thoáng đãng. Ngôi nhà nổi bật với ban công kính rộng, giúp đón ánh sáng tự nhiên và mở rộng tầm nhìn. Thiết kế này tạo nên sự giao hòa giữa không gian nội thất và cảnh quan bên ngoài. Từng chi tiết kiến trúc được bố trí tinh tế, đảm bảo cả tính thẩm mỹ lẫn công năng sử dụng, mang đến cho gia chủ một tổ ấm thoải mái và đầy cảm hứng.



Mẫu nhà cấp 4 8x9m mái bằng sử dụng chất liệu cao cấp
Mẫu nhà cấp 4 8x9m mang đến vẻ đẹp tinh giản nhưng vẫn toát lên sự sang trọng nhờ thiết kế mái bằng và phần mặt tiền ốp đá vân ấn tượng. Những đường nét vuông vức cùng cách phối màu hài hòa giúp tổng thể ngôi nhà trở nên vững chắc và thanh lịch. Bên trong, không gian được bố trí hợp lý, tận dụng tối đa diện tích 72m2 để mang lại không gian sống tiện nghi, thoáng đãng và gần gũi cho gia đình.


>> Xem thêm: Thiết kế nhà mặt tiền 8m sâu 9m
Thiết kế nhà 6×12 2 tầng phong cách Hiện Đại kết hợp không gian xanh mát mẻ
Thiết kế nhà 6×12 2 tầng mang phong cách hiện đại, đề cao sự thoáng đãng và kết nối với thiên nhiên. Không gian xanh được bố trí tinh tế tại ban công, giúp ngôi nhà luôn ngập tràn ánh sáng tự nhiên và không khí trong lành. Cách sắp xếp công năng hợp lý giúp từng khu vực sinh hoạt trở nên tiện nghi, thoải mái tạo nên tổ ấm bền vững và đầy cảm hứng cho gia đình.


>> Tham khảo: Mẫu thiết kế nhà phố 6x12m
Xây nhà 72m2 2.5 tầng kết hợp showroom cho thuê kinh doanh tối ưu không gian
Xây nhà 72m2 theo mô hình 2.5 tầng kết hợp showroom là lựa chọn lý tưởng cho gia chủ muốn vừa ở vừa kinh doanh. Tầng trệt được bố trí làm không gian trưng bày sản phẩm, trong khi các tầng trên dành cho sinh hoạt tiện nghi và riêng tư. Thiết kế linh hoạt giúp tận dụng tối đa diện tích, đáp ứng trọn vẹn nhu cầu thực tế của gia đình.


Ý tưởng xây nhà 9x8m2 3 tầng tân Cổ Điển có phào chỉ tinh tế
Ý tưởng xây nhà 9x8m2 theo phong cách Tân Cổ Điển mang đến vẻ đẹp sang trọng và tinh tế trong từng chi tiết. Mẫu thiết kế 3 tầng được cân đối hài hòa giữa hình khối và tỷ lệ, tạo cảm giác bề thế nhưng vẫn giữ được sự nhẹ nhàng, thanh thoát. Các chi tiết phào chỉ và cửa vòm được chăm chút kỹ lưỡng, góp phần tôn lên nét thẩm mỹ đặc trưng, giúp ngôi nhà trở thành không gian sống đẳng cấp và đầy cuốn hút.


Thiết kế nhà cấp 4 12x6m mái Nhật 3 gian tạo dấu ấn riêng
Thiết kế nhà cấp 4 12x6m theo kiểu 3 gian kết hợp mái Nhật mang đến vẻ đẹp hài hòa và ấm cúng. Bố cục ngôi nhà được chia cân đối, mỗi không gian đều có sự liên kết tự nhiên, giúp gia chủ dễ dàng sinh hoạt và thư giãn. Kiểu mái Nhật với độ dốc nhẹ không chỉ giúp thoát nước tốt mà còn tạo nét thanh thoát cho tổng thể kiến trúc, mang lại cảm giác yên bình và gần gũi trong từng đường nét.


Mẫu nhà đẹp 72m2 2 tầng 1 tum có sân thượng sau với phong cách công nghiệp
Mẫu nhà đẹp 72m2 2 tầng 1 tum mang đến không gian sống tiện nghi và thông thoáng cho cả gia đình. Điểm nhấn đặc biệt của công trình là khu sân thượng bố trí phía sau, vừa là nơi thư giãn, vừa có thể tận dụng để trồng cây xanh hay phơi đồ. Bố cục ngôi nhà được sắp xếp khoa học, đảm bảo sự riêng tư giữa các tầng thoải mái cho mọi thành viên trong gia đình.


Mặt tiền nhà đẹp 4.5 x16m có gác lửng với kiến trúc lệch tầng tối ưu không gian sống
Mặt tiền nhà đẹp 4.5x16m nổi bật với các chi tiết seno trang trí tinh tế, tạo điểm nhấn hài hòa cho tổng thể công trình. Kiến trúc lệch tầng kết hợp cùng gác lửng giúp không gian bên trong trở nên thông thoáng và tận dụng tối đa diện tích sử dụng. Từng đường nét thiết kế được bố trí cân đối, mang đến vẻ đẹp thanh thoát nhưng vẫn đảm bảo sự tiện nghi, đáp ứng nhu cầu sinh hoạt của gia đình trong diện tích vừa phải.


>> Tham khảo: Mẫu nhà đẹp gác lửng được ưa chuộng hiện nay
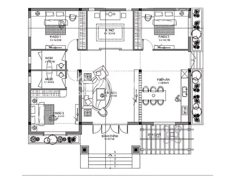
Bản vẽ bố trí công năng mẫu nhà 72m2 với cách sắp xếp tiện ích khoa học



Tham khảo đơn giá xây nhà 72m2 tối ưu diện tích mới nhất hiện nay
Đơn giá xây nhà diện tích 72m2
Xây nhà 72m2 không có mức chi phí cố định, mà sẽ thay đổi tùy theo phong cách thiết kế, chất lượng vật liệu và vị trí thi công. Trung bình, chi phí xây dựng dao động từ 4.850.000đ/m² đến 7.500.000đ/m², phù hợp với nhiều nhu cầu và mức đầu tư khác nhau. Đây là mức giá tham khảo giúp gia chủ dễ dàng ước tính ngân sách, đồng thời lựa chọn phương án thi công hợp lý, đảm bảo công trình đạt cả về thẩm mỹ lẫn công năng sử dụng.
>> Tham khảo: Tham khảo báo giá xây dựng chìa khóa trao tay
Cách tính chi phí xây nhà nhà 72m2
Công thức tính: Chi phí xây nhà = Tổng diện tích xây dựng (m2) x Đơn giá trung bình (VNĐ/m2)
Trong đó:
- Tổng diện tích xây dựng = Diện tích sàn mỗi tầng + Móng + Mái + diện tích lửng.
- Đơn giá xây dựng tùy thuộc vào gói vật liệu, phong cách nhà.
Ví dụ cụ thể: Tính chi phí xây nhà 2 tầng (72m2 diện tích sàn) móng cọc và mái bằng.
- Tầng 1: 72m2
- Tầng 2: 72m2
- Móng: 50% diện tích sàn = 36m2
- Mái: 50% diện tích = 36m2
Tổng diện tích xây dựng: 72 + 72 + 36 + 36 = 216m2
Chi phí ước tính: 216 x 6,5 triệu = 1.404.000.000VNĐ (đơn giá gói tốt cao cấp)
Dự toán ngân sách thi công trọn gói nhà 72m2 theo quy mô
Ngoài ra, quý bạn đọc có thể tham khảo thêm ước tính ngân sách xây nhà 72m2 trong phần nội dung tiếp theo. Những thông tin này sẽ giúp bạn dễ dàng so sánh, lựa chọn giải pháp xây dựng phù hợp với nhu cầu thực tế và mức đầu tư mong muốn, đảm bảo tối ưu cả về chi phí lẫn chất lượng công trình.
| Loại hình nhà ở | Khoảng chi phí |
| Mẫu nhà cấp 4 8x9m | 504.000.000 đ đến 583.200.000đ |
| Thiết kế nhà 6×12 2 tầng | 1.050.000.000đ đến 1.250.000.000đ |
| Xây nhà 72m2 2.5 tầng | 1.310.000.000đ đến 1.570.000.000đ |
| Xây nhà 9x8m2 3 tầng | 1.580.000.000đ đến 1.880.000.000đ |
| Biệt thự 72m2 2 3 tầng | 1.750.000.000đ đến 2.010.000.000đ |
>>> Có thể bạn quan tâm:
Báo giá xây thô và nhân công hoàn thiện tại Xây dựng Nhất Tín
Như vậy, bài viết trên đã giúp bạn có thêm ý tưởng về thiết kế nhà 72m2 đẹp và chi phí xây dựng phù hợp với nhiều nhu cầu khác nhau. Mỗi ngôi nhà là một câu chuyện riêng – hãy để Nhất Tín giúp bạn viết nên câu chuyện ấy bằng sự tận tâm và sáng tạo. Hoặc Zalo: Liên hệ 0988607705 ngay hôm nay để biến ý tưởng trong mơ thành tổ ấm thực tế – Xây dựng Nhất Tín luôn sẵn sàng đồng hành cùng bạn!
> Tham khảo: Thiết kế nhà phố 70m2
KS Tran Nghia (xaydungnhattin.com)










