Những mẫu thiết kế nhà 8×8 đang dần trở thành xu hướng được nhiều gia đình lựa chọn hiện nay. Với diện tích vuông vắn, kiểu nhà này không chỉ dễ bố trí công năng mà còn được đánh giá cao về mặt phong thủy. Nếu bạn đang tìm kiếm một không gian sống lý tưởng thì đừng bỏ lỡ những mẫu thiết kế nhà phố 8x8m ấn tượng mà Nhất Tín chia sẻ dưới đây.
>> Xem thêm: Mẫu nhà phố mặt tiền 8m đẹp
Tóm tắt nội dung
- 1 Mẫu nhà phố 8x8m Hiện Đại có khuôn viên sân vườn ấn tượng
- 2 Thiết kế nhà 8x8m phong cách Tân Cổ Điển
- 3 Mẫu thiết kế nhà 2 tầng 8×8 mái Nhật
- 4 Nhà 8×8 1 tầng có gác lửng với thiết kế mái lệch
- 5 Nhà 8×8 3 phòng ngủ mái ngói mang vẻ ngoài độc đáo
- 6 Thiết kế nhà vuông 64m2 (8x8m) với gam màu đơn điệu và tinh tế
- 7 Mẫu nhà 3 tầng 8x8m với thiết kế bo góc sáng tạo và ấn tượng
- 8 Nhà cấp 4 mái Thái ngang 8m sâu 8m ở nông thôn
- 9 Xem thêm các bản vẽ công năng thiết kế nhà 8x8m với cách bố trí khoa học
- 10 Hướng dẫn dự tính chi phí xây nhà vuông 8x8m
Mẫu nhà phố 8x8m Hiện Đại có khuôn viên sân vườn ấn tượng
Mẫu nhà phố 8x8m Hiện Đại với khuôn viên sân vườn ấn tượng mang đến một không gian sống lý tưởng giữa lòng đô thị. Mặt tiền nổi bật với hệ lam cửa lùa thông minh, cho phép điều chỉnh ánh sáng linh hoạt, đảm bảo sự thông thoáng và tăng tính thẩm mỹ. Điểm cộng lớn nhất chính là khu sân vườn xanh mát – nơi gia chủ có thể thư giãn, tận hưởng bầu không khí trong lành ngay tại nhà. Đây là lựa chọn hoàn hảo cho những ai yêu thích cuộc sống tiện nghi nhưng vẫn muốn gần gũi với thiên nhiên mỗi ngày.





>> Tham khảo thêm: Nhà phố mặt tiền 8m Hiện Đại
Thiết kế nhà 8x8m phong cách Tân Cổ Điển
Thiết kế nhà 8x8m mang phong cách Tân Cổ Điển toát lên vẻ sang trọng với gam màu trắng chủ đạo. Mặt tiền ấn tượng nhờ hệ cửa kính hình vòm mềm mại tạo cảm giác thanh thoát và tinh tế. Thêm vào đó, các đường phào chỉ của mẫu nhà đều được chăm chút tỉ mỉ, góp phần làm nổi bật từng mảng tường. Đặc biệt, khu vực ban công được bố trí đèn chùm lộng lẫy, mang lại không gian ấm cúng và đậm chất thẩm mỹ.



Mẫu thiết kế nhà 2 tầng 8×8 mái Nhật
Mẫu thiết kế nhà 2 tầng 8×8 mái Nhật nổi bật với vẻ đẹp cân đối và trang nhã. Tường rào được ốp đá chắc chắn, vừa gia tăng tính thẩm mỹ vừa đảm bảo độ bền lâu dài cho công trình. Nhờ sự kết hợp hợp lý giữa công năng và tính thẩm mỹ, mẫu nhà mang đến một tổ ấm tiện nghi phù hợp với nhu cầu sống hiện đại.



Nhà 8×8 1 tầng có gác lửng với thiết kế mái lệch
Nhà 8×8 1 tầng có gác lửng được thiết kế với mái lệch chữ A độc đáo, tạo điểm nhấn nổi bật cho tổng thể kiến trúc. Với tông trắng chủ đạo kết hợp với chi tiết ốp gỗ, ngoại thất mẫu nhà mang đến vẻ đẹp thanh lịch, tinh tế nhưng vẫn ấm cúng và gần gũi. Đặc biệt, phần gác lửng bên trong giúp mở rộng không gian sinh hoạt, tối ưu diện tích và đáp ứng linh hoạt nhu cầu của gia đình.


Nhà 8×8 3 phòng ngủ mái ngói mang vẻ ngoài độc đáo
Nhà 8×8 3 phòng ngủ được thiết kế mái ngói tạo nên vẻ đẹp hài hòa giữa nét truyền thống và hiện đại. Điểm nhấn nổi bật của ngôi nhà là hệ cửa kính vuông tinh giản giúp mở rộng tầm nhìn và tận dụng tối đa ánh sáng tự nhiên. Bên cạnh đó, bố cục 3 phòng ngủ được bố trí hợp lý mang đến không gian sống tiện nghi cho gia đình từ 3 đến 6 thành viên.



Thiết kế nhà vuông 64m2 (8x8m) với gam màu đơn điệu và tinh tế
Thiết kế nhà vuông 64m² (8x8m) sở hữu vẻ đẹp tinh tế với gam màu trung tính đơn giản nhưng vẫn toát lên sự sang trọng. Điểm nhấn nổi bật nằm ở các đường phào chỉ được chạm khắc tỉ mỉ, tạo chiều sâu cho mặt tiền. Đặc biệt, ban công rộng rãi mở ra hai mặt thoáng, góp phần mang đến không gian sống thoáng đãng và tràn ngập ánh sáng tự nhiên.


Mẫu nhà 3 tầng 8x8m với thiết kế bo góc sáng tạo và ấn tượng
Mẫu nhà 3 tầng 8x8m gây ấn tượng với thiết kế bo góc sáng tạo mang đến vẻ đẹp mềm mại và khác biệt. Các mảng tường kết hợp đường cong tinh tế tạo nên tổng thể kiến trúc uyển chuyển, hài hòa. Mặt tiền sử dụng chất liệu gỗ một cách khéo léo làm tôn lên nét sang trọng và cuốn hút cho ngôi nhà. Cùng Nhất Tín khám phá mẫu thiết kế ấn tượng qua những hình ảnh dưới đây!



Nhà cấp 4 mái Thái ngang 8m sâu 8m ở nông thôn
Mẫu nhà cấp 4 mái Thái ngang 8m sâu 8m tại nông thôn mang đến không gian sống lý tưởng cho những gia đình nhỏ. Kiến trúc mái Thái không chỉ tôn lên vẻ đẹp thanh thoát mà còn thể hiện sự sang trọng, bền vững theo thời gian. Ngoài ra, mẫu nhà thiết kế thêm tầng lửng giúp ngôi nhà trông cao ráo hơn, đồng thời gia tăng sự thông thoáng và tiện nghi trong sinh hoạt. Đặc biệt, mặt tiền được trang trí tinh tế với các đường phào chỉ sắc nét, tạo điểm nhấn độc đáo, góp phần nâng cao giá trị thẩm mỹ cho toàn bộ ngôi nhà.



Xem thêm các bản vẽ công năng thiết kế nhà 8x8m với cách bố trí khoa học
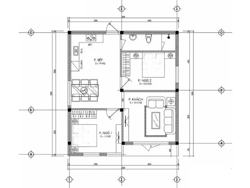
Mặt bằng 2D bố trí nội thất nhà 8×8 1 tầng


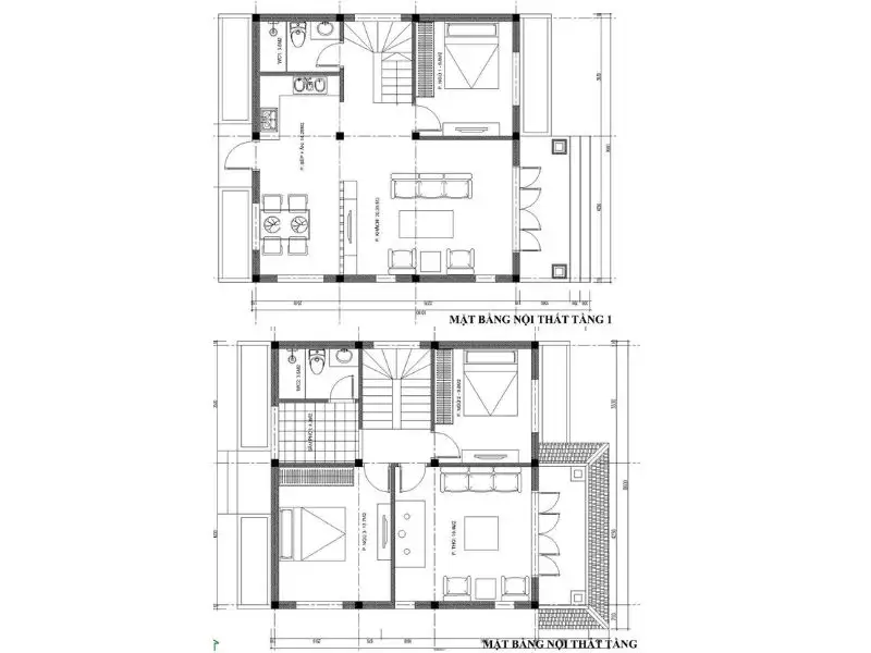
Bản vẽ nhà 2 tầng 8x8m


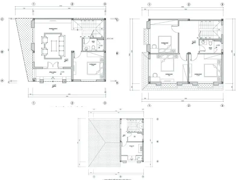
Mẫu bố trí công năng nhà 3 tầng 8x8m

Bản vẽ bố trí công năng nhà 4 tầng 1 tum diện tích 8×8 có thang máy

Hướng dẫn dự tính chi phí xây nhà vuông 8x8m
Đơn giá xây dựng nhà 8x8m trọn gói sẽ dao động 4.500.000 VNĐ/m2 – 6.900.000 VNĐ/m2, tùy thuộc vào nhiều yếu tố như: loại hình công trình (nhà cấp 4, nhà phố, biệt thự…), vật liệu xây dựng, khu vực thi công và yêu cầu thiết kế cụ thể.
Để giúp bạn dễ dàng hơn trong việc dự toán chi phí, Nhất Tín sẽ hướng dẫn cách tính chi phí xây nhà theo diện tích từng bước, kèm theo công thức chi tiết bên dưới.
Công thức tính chi phí
Chi phí xây nhà = Tổng diện tích xây dựng (m2) x Đơn giá trung bình (VNĐ/m2)
Trong đó:
- Tổng diện tích xây dựng = Diện tích sàn mỗi tầng + Móng + Mái + các khu vực khác (nếu có).
- Đơn giá xây dựng tùy thuộc vào gói vật liệu, phong cách nhà.
Ví dụ cụ thể chi phí xây nhà 2 tầng (8x8m) móng cọc và mái tôn. Với đơn giá trọn gói là 5.300.000 đ/m2
- Tầng 1: 8 x 8 = 64m2
- Tầng 2: 8 x 8 = 64m2
- Móng: 50% diện tích sàn = 32m2
- Mái: 25% diện tích = 16m2
- Tổng diện tích xây dựng: 64 + 64 + 32 + 16 = 176m2
Chi phí ước tính: 176 x 5,3 triệu = 932.800.000 VNĐ
>> Có thể bạn quan tâm: Xây thô mất bao nhiêu tiền?
Tham khảo dự toán theo từng loại hình cụ thể
Dưới đây là bảng ngân sách ước tính về chi phí xây dựng nhà 8x8m theo từng loại hình nhà ở:
| Loại hình nhà ở | Khoảng ngân sách |
| nhà 8×8 1 tầng | 409.6 triệu – 499.2 triệu |
| thiết kế nhà 8×8 có gác lửng | 643.2 triệu – 758.4 triệu |
| mẫu nhà 8×8 2 tầng | 857.6 triệu – 1.01 tỷ |
| mẫu nhà 3 tầng 8x8m | 1.29 tỷ – 1.52 tỷ |
| thiết kế nhà phố 8x8m 4 tầng | 1.72 tỷ – 2.02 tỷ |
Như vậy, Xây dựng Nhất Tín đã chia sẻ đến bạn những ý tưởng thiết kế nhà phố 8x8m đa dạng phong cách. Hy vọng bài viết giúp bạn có thêm cảm hứng cho tổ ấm của mình, cũng như hiểu rõ hơn về chi phí dự kiến cho mẫu nhà mơ ước. Nếu bạn cần thêm tư vấn hoặc ý tưởng thiết kế khác cho nhà ống 8x8m, đừng ngần ngại liên hệ Nhất Tín qua hotline: 0988 607 705 hoặc Zalo: 0911 062 189 để được hỗ trợ tận tâm nhé!
KS Tran Nghia (xaydungnhattin.com)










