Mẫu nhà 1 trệt 1 lầu 8x16m là một lựa chọn phổ biến và được nhiều gia đình lựa chọn hiện nay. Với mặt tiền ngang 8m thoáng rộng, mẫu nhà này đem đến cho gia đình một không gian sống thoải mái và linh hoạt, tối ưu công năng. Nếu bạn đang tìm ý tưởng bố trí cho ngôi nhà của mình thì đừng bỏ lỡ bài viết dưới đây của Nhất Tín nhé. Dưới đây là tổng hợp các mẫu nhà 1 lầu 8x16m đẹp và ấn tượng. Mời bạn đọc tham khảo thêm!
>> Xem thêm: 56+ Mẫu nhà 1 trệt 1 lầu ngang 8m “Thời Thượng” được ưa chuộng
Tóm tắt nội dung
- 1 Mẫu nhà 1 trệt 1 lầu 8×16 Hiện Đại đáp ứng xu thế xây dựng ngày nay
- 2 Bản vẽ thiết kế nhà 1 trệt 1 lầu 8x16m mái Nhật tại Bình Phước cho gia đình chú Hòa
- 3 Mẫu thiết kế nhà 8x16m 1 trệt 1 lầu đơn giản tối ưu công năng sử dụng
- 4 Thiết kế nhà mái Thái 2 tầng 8×16 có 4 phòng ngủ tại phú Nhuận cho gia đình chị Huệ
- 5 Mẫu nhà 1 trệt 1 lầu 8x16m đẹp có sân thượng hút mắt
- 6 Mẫu mặt tiền nhà phố 1 trệt 1 lầu 128m2 sàn với thiết kế không gian mở
- 7 Mặt tiền nhà 1 trệt 1 lầu 1 sân thượng 8x16m mang phong cách Hiện Đại
- 8 Mẫu biệt thự 1 trệt 1 lầu 8x16m Tân Cổ Điển ở nông thôn với bố trí sân vườn ấn tượng
- 9 Bản vẽ mặt tiền nhà ống 1 lầu có gác lửng thông tầng 8×16 đẹp sang trọng
- 10 Mẫu nhà ngang 8m quy mô 1 trệt 1 lầu kết hợp kinh doanh
- 11 Tham khảo thêm một số mặt bằng mẫu nhà 8x16m 1 trệt 1 lầu tối ưu không gian sống
Mẫu nhà 1 trệt 1 lầu 8×16 Hiện Đại đáp ứng xu thế xây dựng ngày nay
Với thiết kế 4 mặt thoáng, mẫu nhà 1 trệt 1 lầu 8×16 Hiện Đại có khả năng tiếp nhận ánh sáng tự nhiên và luồng không khí trong lành nhiều hơn. Nhờ vậy mà không gian sống của ngôi nhà luôn thoải mái và dễ chịu. Tận dụng lợi thế của mẫu nhà này, kiến trúc sư đã sử dụng phong cách thiết kế Hiện Đại đem đến một không gian sống tiện nghi, sang trọng cho gia đình.
- Công năng: Phòng khách thông tầng, 3 phòng ngủ, 1 phòng thờ, phòng ăn + bếp, phòng trà và khu vực sinh hoạt chung khác.
- Phong cách: Hiện Đại Luxury.
- Gam màu: Trắng – xám – đen chủ đạo.




Bản vẽ thiết kế nhà 1 trệt 1 lầu 8x16m mái Nhật tại Bình Phước cho gia đình chú Hòa
Nhà 1 lầu 8x16m thường có mặt tiền thoáng rộng và diện tích vừa phải, dễ dàng bố trí các công năng trong nhà. Bởi vậy đây là loại hình nhà ở được nhiều gia đình ưa chuộng và tìm hiểu trong thời gian gần đây.
Kiến trúc Tân Cổ Điển là một trong những điểm nhấn ấn tượng của mẫu thiết kế nhà 1 trệt 1 lầu 8x16m mái Nhật này. Những đường nét phào chỉ được thiết kế vừa phải mang thiên hướng Hiện Đại giúp cho mẫu nhà không quá cầu kỳ nhưng vẫn toát lên vẻ sang trọng và cuốn hút của mẫu nhà này.
- Công năng: Phòng khách thông tầng, 4 phòng ngủ, 1 phòng thờ, phòng ăn + bếp, phòng trà và khu vực sinh hoạt chung khác.
- Phong cách: Tân Cổ Điển mang thiên hướng Hiện Đại.
- Gam màu: Trắng – Xanh navy đậm chủ đạo.



Mẫu thiết kế nhà 8x16m 1 trệt 1 lầu đơn giản tối ưu công năng sử dụng
Mẫu thiết kế nhà 8x16m 1 trệt 1 lầu đơn giản được thiết kế với hệ mái Thái có độ dốc lớn và cao, đem đến cảm giác thanh thoát và thoáng rộng. Không chỉ dừng lại ở đó, mẫu nhà sử dụng gam màu trắng chủ đạo cùng với đường nét đơn giản giúp cho kiến trúc ngoại thất ngôi nhà thêm phần trang nhã và cuốn hút hơn.
- Công năng: Phòng khách thông tầng, 5 phòng ngủ, 1 phòng thờ, phòng ăn + bếp và khu vực sinh hoạt chung khác.
- Phong cách: Hiện Đại – Tối giản.
- Gam màu: Trắng chủ đạo.


Thiết kế nhà mái Thái 2 tầng 8×16 có 4 phòng ngủ tại phú Nhuận cho gia đình chị Huệ
Với sự kết hợp độc đáo giữa kiểu kiến trúc Tân Cổ Điển và kiến trúc mái Thái, mẫu nhà 1 trệt 1 lầu 8x16m có 4 phòng ngủ này đem đến một không gian sống tinh tế và sang trọng. Từng đường nét phào chỉ trang trí cho đến lan can, cửa sổ của ngôi nhà,… đều được kiến trúc sư bố trí vô cùng tỉ mỉ.
- Công năng: Phòng khách, 3 phòng ngủ, 1 phòng thờ, phòng ăn + bếp, phòng làm việc và khu vực sinh hoạt chung khác.
- Phong cách: Tân Cổ Điển.
- Gam màu: Trắng chủ đạo kết hợp của nâu gỗ tinh tế.




Mẫu nhà 1 trệt 1 lầu 8x16m đẹp có sân thượng hút mắt
Mặt tiền mẫu nhà 8x16m 1 trệt 1 lầu gây ấn tượng với hình khối độc đáo cùng với gam màu trung tính tạo nên một vẻ ngoài mộc mạc, tinh tế cho mẫu nhà này. Mảng tường ốp đá màu xám tạo nên điểm nhấn đặc biệt giúp tô điểm không gian của mẫu nhà này. Với ý tưởng thiết kế độc đáo, mẫu nhà đã thể hiện cá tính mạnh mẽ và phá cách trong lối sống của gia chủ.
- Công năng: Phòng khách, 4 phòng ngủ, 1 phòng thờ, phòng ăn + bếp, phòng làm việc ở tầng tum và khu vực sinh hoạt chung khác.
- Phong cách: Hiện Đại.
- Gam màu: Tường trắng chủ đạo kết hợp gỗ ốp và đá tự nhiên.



Mẫu mặt tiền nhà phố 1 trệt 1 lầu 128m2 sàn với thiết kế không gian mở
Thiết kế cửa kính lớn mang đến cho mẫu nhà 1 trệt 1 lầu với diện tích sàn 128m2 một không gian mở và thoáng đãng. Kiến trúc sư đã tinh tế sử dụng lam gỗ làm trang trí, tạo ra những điểm nhấn ấn tượng trên mặt tiền, đồng thời cũng tạo không gian riêng tư cho ngôi nhà mà vẫn duy trì sự thông thoáng.
- Công năng: Phòng khách, 5 phòng ngủ, phòng ăn + bếp, phòng làm việc ở tầng tum và khu vực sinh hoạt chung khác.
- Phong cách: Rustic kết hợp Hiện Đại.
- Gam màu: Gam màu xám nhạt của đá tự nhiên kết hợp màu gỗ tạo điểm nhấn ấn tượng.


Mặt tiền nhà 1 trệt 1 lầu 1 sân thượng 8x16m mang phong cách Hiện Đại
Với cách sử dụng màu ấn tượng mẫu nhà 1 trệt 1 lầu 1 sân thượng 8x16m này đem đến một không gian sống Hiện Đại và đẳng cấp cho gia chủ. Không chỉ vậy, ngôi nhà được thiết kế với cửa kính lớn và cấu trúc duplex thông tầng, mang lại một cảm giác quý phái và lịch lãm cho ngôi nhà này.
- Công năng: Phòng khách, 4 phòng ngủ, phòng ăn, phòng bếp, sân thượng trước và sân thượng sau, khu vực sinh hoạt chung khác.
- Phong cách: Phong cách Hiện Đại.
- Gam màu: Gam màu trắng sang trọng kết hợp với màu nâu của gỗ ốp tường tạo nên nét đẹp ấn tượng cho ngôi nhà.




Mẫu biệt thự 1 trệt 1 lầu 8x16m Tân Cổ Điển ở nông thôn với bố trí sân vườn ấn tượng
Mẫu biệt thự 1 trệt 1 lầu 8x16m này là sự kết hợp hoàn hảo giữa kiến trúc Tân Cổ Điển cùng kiến trúc mái Nhật sang trọng. Với diện tích 8x16m, mẫu nhà này đem đến một không gian thoáng rộng và thoải mái cho gia đình. Không chỉ vậy, kiến trúc sư đã tỉ mỉ thiết kế ngôi nhà đem đến nét đẹp tinh tế và cuốn hút. Đồng thời, bố cục bên trong ngôi nhà đều được sắp xếp khoa học và đáp ứng các yếu tố tối ưu không gian, phong thủy gia đình.
- Công năng: Phòng khách, 3 phòng ngủ, phòng ăn, phòng bếp, phòng làm việc và phòng trà cùng các khu vực sinh hoạt chung khác.
- Phong cách: Phong cách Tân Cổ Điển.
- Gam màu: Gam màu trắng tinh tế của tường nhà kết hợp với màu ghi xám của mái Nhật tạo nên điểm nhấn nổi bật.

Bản vẽ mặt tiền nhà ống 1 lầu có gác lửng thông tầng 8×16 đẹp sang trọng
Mẫu nhà ống 1 lầu có gác lửng thông tầng 8×16 được thiết kế theo phong cách Hiện Đại mang đến một không gian sống đẹp mắt và sang trọng. Với việc sử dụng mảng gỗ ốp cùng đá ốp tự nhiên làm điểm nhấn khiến cho ngôi nhà trở nên ấn tượng và độc đáo hơn. Không chỉ vậy kiến trúc sư đã bố trí thêm tầng tum cùng sân thượng rộng rãi giúp gia đình tận dụng tối đa và mở rộng không gian sống của mình.
- Công năng: Phòng khách, 4 phòng ngủ, phòng ăn, phòng bếp, phòng làm việc và phòng thờ ở tầng tum cùng các khu vực sinh hoạt chung khác.
- Phong cách: Phong cách Hiện Đại.
- Gam màu: Gam màu xám trắng kết hợp nâu gỗ và màu xám đen của đá tự nhiên.


Mẫu nhà ngang 8m quy mô 1 trệt 1 lầu kết hợp kinh doanh
Tận dụng lợi thế mặt tiền thoáng rộng, gia đình đã sử dụng lầu 1 để phục vụ cho hoạt động kinh doanh của mình. Với sự kết hợp tinh tế giữa gam màu trắng và kiểu kiến trúc Tân Cổ Điển, mẫu nhà ngang 8m 1 trệt 1 lầu 128m2 sàn trở nên vô cùng sang trọng và quý phái. Chính vì vậy, mẫu mặt tiền này là một không gian lý tưởng để kinh doanh các sản phẩm xa xỉ và cao cấp. Cùng chiêm ngưỡng vẻ đẹp của kiến trúc mẫu nhà qua nội dung hình ảnh Nhất Tín chia sẻ dưới đây.
- Công năng: Lầu trệt sử dụng toàn bộ không gian cho phòng khách và phục vụ việc kinh doanh, lầu 1 bố trí 2 phòng ngủ, phòng thờ, bếp và khu vực sinh hoạt chung khác.
- Phong cách: Tân Cổ Điển.
- Gam màu: Gam màu trắng tinh tế kết hợp với gạch ốp màu vàng dịu giúp ngoại thất mẫu nhà thêm phần ấm cúng và tinh tế.


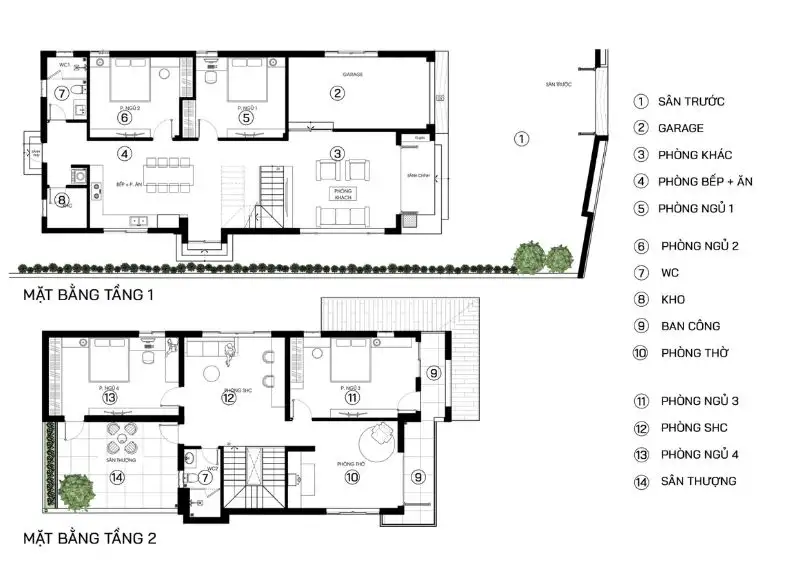
Tham khảo thêm một số mặt bằng mẫu nhà 8x16m 1 trệt 1 lầu tối ưu không gian sống
Bản vẽ mặt bằng mẫu nhà 1 trệt 1 lầu 8x16m có tầng tum và sân thượng



Bản vẽ bố trí công năng nhà Hiện Đại 1 trệt 1 lầu 8x16m

Trên đây là tổng hợp những mẫu nhà 1 lầu 8x16m ấn tượng nhất mà Nhất Tín muốn chia sẻ đến quý bạn đọc. Với lợi thế mặt tiền thoáng rộng mẫu nhà 1 trệt 1 lầu 8×16 được nhiều gia đình ưa chuộng hiện nay. Diện tích không gian sống của mẫu nhà vừa phải giúp gia chủ có thể dễ dàng bố trí công năng và tối ưu không gian sử dụng hơn. Nếu bạn cần tư vấn thiết kế – xây nhà hãy liên hệ ngay với chúng tôi để được hỗ trợ nhanh nhất. Hotline: 0988607705 /Zalo: 0911062189 – Mr.Thắng.
Xaydungnhattin (Xaydungnhattin.com)









