Sở hữu mặt tiền rộng 10m và chiều sâu 15m, những mẫu nhà phố 10x15m luôn gây ấn tượng bởi sự cân đối và khả năng tối ưu công năng vượt trội. Với diện tích lý tưởng, gia chủ có thể dễ dàng thiết kế không gian sống hiện đại, thoáng đãng và đầy cảm hứng. Sự hòa quyện giữa yếu tố thẩm mỹ và tiện nghi chính là điểm nổi bật của những mẫu nhà này. Hãy cùng Xây dựng Nhất Tín khám phá ngay các thiết kế nhà mặt tiền 10m sâu 15m tiêu biểu dưới đây để cảm nhận rõ nét vẻ đẹp kiến trúc độc đáo trong từng chi tiết.
>> Xem thêm: Mẫu nhà đẹp ngang 10m
Tóm tắt nội dung
- 1 Mẫu nhà 2 tầng 10x15m hòa quyện với thiên nhiên
- 2 Mẫu nhà 1 tầng 10x15m mái ngói truyền thống
- 3 Thiết kế nhà mặt tiền 10m sâu 15m kiểu Pháp kết hợp kinh doanh khách sạn
- 4 Mẫu nhà phố 10x15m 3 phòng ngủ Địa Trung Hải ấn tượng
- 5 Mẫu nhà phố 10x15m 3 tầng phong cách Công Nghiệp vô cùng đẳng cấp
- 6 Mẫu biệt thự nhà vườn 10×15 mang nét Neo Classic quyền quý
- 7 Mẫu nhà 10x15m đẹp Hiện Đại với hình khối độc đáo đầy phá cách
- 8 Mặt bằng nhà 10x15m 5 tầng 1 tum với thiết kế lam che ấn tượng
- 9 Mẫu nhà 2 tầng 10x15m mái Nhật bề thế
- 10 Mẫu nhà cấp 4 10x15m có gác lửng với thiết kế mái lệch lạ mắt
- 11 Bản vẽ nhà ngang 10m dài 15m tối ưu công năng và tiện nghi
- 12 Dự toán ngân sách xây nhà 10x15m trọn gói theo từng quy mô cụ thể
Mẫu nhà 2 tầng 10x15m hòa quyện với thiên nhiên
Mẫu nhà 2 tầng 10x15m với thiết kế sân vườn và tiểu cảnh mang đến không gian sống lý tưởng, nơi con người hòa mình vào thiên nhiên một cách nhẹ nhàng và tinh tế. Không chỉ nổi bật nhờ kiến trúc hài hòa, mẫu nhà còn gây ấn tượng với khoảng sân xanh mát và tiểu cảnh được bố trí khéo léo, tạo nên cảm giác thư thái mỗi ngày.




Mẫu nhà 1 tầng 10x15m mái ngói truyền thống
Mẫu nhà 1 tầng 10x15m mái ngói truyền thống kết hợp cùng chất liệu gỗ mang đến vẻ đẹp mộc mạc nhưng vẫn toát lên sự tinh tế và sang trọng. Thiết kế này là sự giao thoa hài hòa giữa kiến trúc truyền thống và lối sống hiện đại, phù hợp với những ai yêu thích sự giản dị, gần gũi với thiên nhiên. Đặc biệt, nội thất bên trong nhà được lựa chọn kỹ lưỡng, tận dụng chất liệu gỗ một cách khéo léo để làm nổi bật vẻ đẹp tổng thể và tạo nên không gian sống ấm cúng, trang nhã.




Thiết kế nhà mặt tiền 10m sâu 15m kiểu Pháp kết hợp kinh doanh khách sạn
Thiết kế nhà mặt tiền 10m sâu 15m kiểu Pháp kết hợp kinh doanh mang đến một không gian sống sang trọng, thanh lịch và đậm chất nghệ thuật. Những đường phào chỉ được chăm chút tỉ mỉ không chỉ tạo điểm nhấn kiến trúc mà còn góp phần tôn lên vẻ đẳng cấp, thu hút mọi ánh nhìn ngay từ lần đầu. Đặc biệt, khu vực sảnh lễ tân được bố trí hợp lý tại tầng trệt, vừa thuận tiện trong việc đón tiếp khách, vừa đảm bảo sự riêng tư cho không gian nghỉ ngơi phía trên của khách hàng.


Mẫu nhà phố 10x15m 3 phòng ngủ Địa Trung Hải ấn tượng
Mẫu nhà phố 10x15m phong cách Địa Trung Hải gây ấn tượng với đường nét mềm mại, mở ra không gian sống thoáng đãng và gần gũi. Gam màu ấm áp kết hợp cùng thiên nhiên xanh mát mang đến cảm giác nghỉ dưỡng ngay trong chính tổ ấm. Thiết kế bao gồm 3 phòng ngủ tiện nghi, đáp ứng nhu cầu sinh hoạt của gia đình nhiều thế hệ. Đặc biệt, điểm nhấn nổi bật của ngôi nhà nằm ở phần nội thất cao cấp, được bố trí khéo léo, tạo nên sự hài hòa giữa vẻ đẹp truyền thống Địa Trung Hải và tiện nghi đương đại.



Mẫu nhà phố 10x15m 3 tầng phong cách Công Nghiệp vô cùng đẳng cấp
Mẫu nhà phố 10x15m 3 tầng phong cách Công Nghiệp gây ấn tượng mạnh mẽ bởi vẻ đẹp mạnh mẽ, cá tính làm tôn lên chất riêng của công trình. Thiết kế nổi bật với các mảng tường bê tông thô và tông màu trung tính đặc trưng. Điểm cộng lớn của ngôi nhà là việc sử dụng vật liệu cao cấp như kính cường lực, gỗ tự nhiên… góp phần tạo nên không gian sống hiện đại, bền vững và đầy tính thẩm mỹ.




Mẫu biệt thự nhà vườn 10×15 mang nét Neo Classic quyền quý
Mẫu biệt thự nhà vườn 10x15m mang phong cách Neo Classic gây ấn tượng bởi vẻ đẹp thanh lịch, quyền quý, thể hiện qua những đường nét kiến trúc tinh tế và chuẩn mực. Thiết kế là sự kết hợp hài hòa giữa thiên nhiên mềm mại của không gian sân vườn và sự tráng lệ, bề thế đặc trưng của kiến trúc tân cổ điển. Các chi tiết như mái vòm, trụ cột đối xứng và hoa văn trang trí được thiết kế đồng bộ, góp phần tạo nên tổng thể sang trọng và đẳng cấp cho công trình.



Mẫu nhà 10x15m đẹp Hiện Đại với hình khối độc đáo đầy phá cách
Mẫu nhà 10x15m đẹp phong cách Hiện Đại gây ấn tượng mạnh với hình khối kiến trúc độc đáo, thể hiện sự phá cách và cá tính riêng của gia chủ. Những đường nét dứt khoát cùng bố cục phi đối xứng tạo nên diện mạo cuốn hút ngay từ ánh nhìn đầu tiên. Không chỉ nổi bật ở ngoại thất, không gian nội thất bên trong cũng được chăm chút tỉ mỉ với cách phối màu hài hòa, vật liệu cao cấp và cách bài trí thông minh. Tất cả hòa quyện tạo nên một tổ ấm hiện đại, đậm chất riêng.



Mặt bằng nhà 10x15m 5 tầng 1 tum với thiết kế lam che ấn tượng
Mặt bằng nhà 10x15m 5 tầng 1 tum được thiết kế tối ưu hóa diện tích sử dụng và đảm bảo sự thông thoáng cho từng không gian. Nổi bật trên tổng thể kiến trúc là hệ lam gỗ ấn tượng tại mặt tiền, vừa tạo điểm nhấn thẩm mỹ, vừa hỗ trợ che nắng và giảm nhiệt hiệu quả. Nhờ đó, sự kết hợp giữa vật liệu tự nhiên và đường nét mạnh mẽ càng làm nổi bật vẻ cuốn hút và khác biệt của công trình.



Mẫu nhà 2 tầng 10x15m mái Nhật bề thế
Mẫu nhà 2 tầng 10x15m mái Nhật ghi điểm với vẻ đẹp bề thế và đầy tinh tế. Kiến trúc mái Nhật nhẹ nhàng kết hợp cùng mặt tiền rộng mang lại cảm giác vững chãi nhưng vẫn rất thanh thoát. Một trong những điểm nổi bật của thiết kế này là ban công rộng rãi, thoáng đãng – nơi lý tưởng để bày bàn trà, thưởng thức không khí trong lành và tận hưởng những khoảnh khắc thư giãn mỗi ngày.




Mẫu nhà cấp 4 10x15m có gác lửng với thiết kế mái lệch lạ mắt
Mẫu nhà cấp 4 10x15m có gác lửng với thiết kế mái lệch lạ mắt mang đến nét riêng độc đáo và đầy thu hút. Với lợi thế hai mặt tiền, ngôi nhà luôn thông thoáng, sáng sủa và dễ dàng tạo điểm nhấn kiến trúc giữa không gian xung quanh. Phần gác lửng được bố trí hợp lý, giúp mở rộng diện tích sử dụng mà vẫn đảm bảo sự ấm cúng, tiện nghi cho sinh hoạt hằng ngày của gia đình.


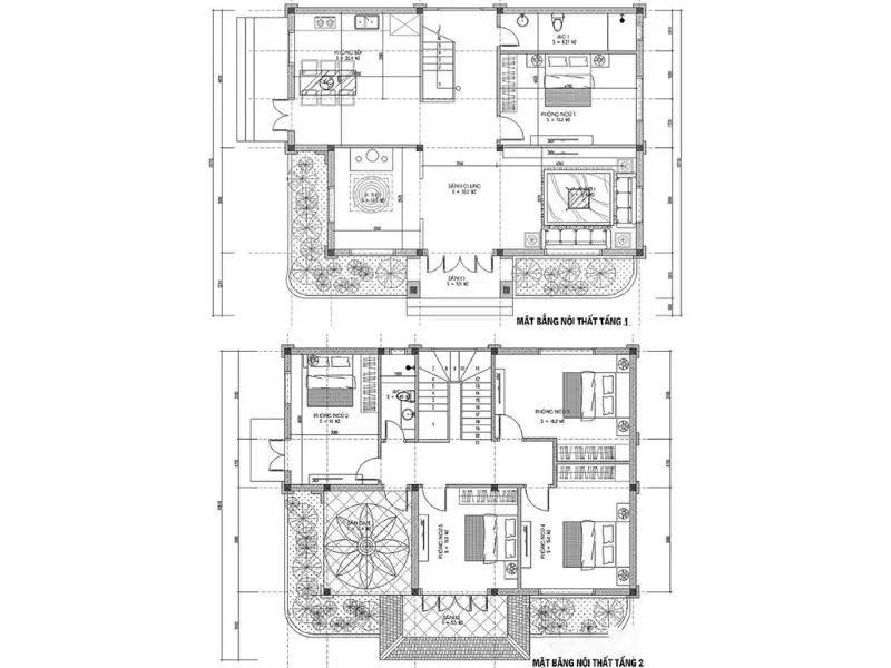
Bản vẽ nhà ngang 10m dài 15m tối ưu công năng và tiện nghi


Dự toán ngân sách xây nhà 10x15m trọn gói theo từng quy mô cụ thể
| Loại hình nhà ở | Khoảng chi phí |
| Mẫu nhà 1 tầng 10x15m | 990.000.000đ đến 1.220.000.000đ |
| Mẫu nhà cấp 4 10x15m có gác lửng | 1.490.000.000đ đến 1.820.000.000đ |
| Mẫu nhà 2 tầng 10x15m | 2.070.000.000đ đến 2.610.000.000đ |
| Mẫu nhà phố 10x15m 3 tầng | 3.110.000.000đ đến 3.920.000.000đ |
| Mặt bằng nhà 10x15m 4 tầng | 4.140.000.000đ đến 5.220.000.000đ |
>> Tham khảo: Giá thầu xây dựng trọn gói
Như vậy, Nhất Tín hy vọng đã mang đến cho bạn những gợi ý thiết thực trong việc thiết kế mẫu nhà phố 10x15m – từ kiến trúc tổng thể đến bố trí công năng tối ưu. Nếu bạn đang tìm kiếm một đơn vị uy tín để hiện thực hóa tổ ấm mơ ước, Xây dựng Nhất Tín sẵn sàng đồng hành cùng bạn với đội ngũ chuyên gia giàu kinh nghiệm và quy trình làm việc chuyên nghiệp. Đừng ngần ngại liên hệ Hotline: 0988607705 hoặc Zalo: 0911062189 để được tư vấn thiết kế nhà ngang 10m sâu 15m miễn phí và báo giá thi công nhanh chóng!
>> Xem thêm: Mẫu nhà phố 10x12m
KS Tran Nghia (xaydungnhattin.com)










