Mẫu nhà đẹp diện tích 150m2 luôn là lựa chọn lý tưởng cho những gia đình mong muốn một không gian sống rộng rãi, tiện nghi và mang đậm dấu ấn cá nhân. Với diện tích này, kiến trúc sư có thể thoải mái sáng tạo trong việc bố trí công năng, kết hợp hài hòa giữa thẩm mỹ và sự tiện dụng. Cùng Nhất Tín xem qua bài viết ngay bên dưới để bạn đọc có thêm nhiều ý tưởng thú vị, mang đến phong cách mới lạ và ấn tượng cho mẫu nhà 150m2 của mình.
>> Tham khảo: Thiết kế nhà đẹp chuẩn gu thẩm mỹ – Tối ưu từng mét vuông không gian sống
Tóm tắt nội dung
- 1 Mẫu nhà cấp 4 diện tích 150m2 mặt tiền 10m nổi bật với kiến trúc mái Thái
- 2 Mẫu nhà đẹp 2 tầng 150m2 (6x25m) mái Nhật Tân Cổ Điển sở hữu sân vườn thoáng mát cho tổ ấm bình yên
- 3 Nhà 150m2 1 tầng có sân thượng tạo không gian nghỉ dưỡng tinh tế
- 4 Mẫu nhà 2 tầng 4 phòng ngủ 150m2 mang nét hiện đại, tiện nghi và đầy đủ công năng
- 5 Mẫu nhà 3 tầng 5 phòng ngủ 150m2 mái Pháp sang trọng cho tổ ấm đẳng cấp
- 6 Mặt tiền nhà 15×10 phong cách Indochine ấn tượng với nét đẹp vượt thời gian
- 7 Mẫu nhà 150m2 đẹp quy mô 5 tầng sử dụng làm văn phòng kinh doanh
- 8 Mẫu nhà đẹp diện tích 150m2 4 tầng có thiết kế mái bằng tinh tế
- 9 Bản vẽ bố trí công năng nhà 150m2 đầy tiện ích
- 10 Xây nhà 150m2 hết bao nhiêu tiền? Tham khảo thêm chi phí xây mẫu nhà đẹp diện tích 150m2
Mẫu nhà cấp 4 diện tích 150m2 mặt tiền 10m nổi bật với kiến trúc mái Thái
Mẫu nhà cấp 4 diện tích 150m2 mang đến vẻ đẹp bề thế và sang trọng nhờ thiết kế mái Thái thanh thoát cùng hệ cột vuông được chạm khắc họa tiết tinh xảo. Từng đường nét trong kiến trúc đều toát lên sự cân đối và tinh tế, tạo nên một tổng thể vừa vững chãi vừa mềm mại. Nhờ vậy mà, mẫu nhà này không chỉ đáp ứng nhu cầu sinh hoạt tiện nghi mà còn thể hiện gu thẩm mỹ đậm chất riêng của gia chủ.


Mẫu nhà đẹp 2 tầng 150m2 (6x25m) mái Nhật Tân Cổ Điển sở hữu sân vườn thoáng mát cho tổ ấm bình yên
Mẫu nhà đẹp 2 tầng 150m2 ghi điểm với phong cách Tân Cổ Điển tinh tế, kết hợp cùng mái Nhật thanh thoát tạo nên vẻ sang trọng nhưng vẫn gần gũi. Những đường phào chỉ nhẹ nhàng trên nền tường trắng mang lại cảm giác hài hòa, mềm mại cho tổng thể. Bao quanh ngôi nhà là khoảng sân vườn thoáng mát, giúp không gian sống trở nên trong lành và mang đến cảm giác thư thái mỗi khi trở về.


Nhà 150m2 1 tầng có sân thượng tạo không gian nghỉ dưỡng tinh tế
Nhà 150m2 1 tầng được thiết kế hài hòa với không gian mở và khoảng sân thượng bên hông tạo không gian nghỉ dưỡng cho ngôi nhà. Từ khu vực này, gia chủ có thể tận hưởng trọn vẹn không khí trong lành, ngắm nhìn cảnh quan xung quanh và thư giãn sau ngày dài làm việc. Sự kết hợp giữa kiến trúc tinh gọn và không gian ngoài trời thoáng đãng giúp ngôi nhà trở thành nơi lý tưởng để tận hưởng cuộc sống yên bình.


Mẫu nhà 2 tầng 4 phòng ngủ 150m2 mang nét hiện đại, tiện nghi và đầy đủ công năng
Mẫu nhà 2 tầng 4 phòng ngủ 150m2 mang phong cách hiện đại, được bao quanh bởi sân vườn rộng thoáng cùng tiểu cảnh xanh mát, tạo nên không gian sống gần gũi với thiên nhiên. Từng đường nét kiến trúc được bố trí hài hòa, vừa đảm bảo công năng tiện nghi, vừa mang lại cảm giác thư thái và dễ chịu. Đây là lựa chọn lý tưởng cho những gia đình yêu thích sự tinh tế và mong muốn một tổ ấm sang trọng giữa thiên nhiên trong lành.



Mẫu nhà 3 tầng 5 phòng ngủ 150m2 mái Pháp sang trọng cho tổ ấm đẳng cấp
Mẫu nhà 3 tầng 5 phòng ngủ 150m2 gây ấn tượng với thiết kế mái Pháp sang trọng và ban công lục bình mang nét đẹp cổ điển tinh tế. Kiến trúc được chăm chút kỹ lưỡng, từ đường phào chỉ nhẹ nhàng đến màu sơn hài hòa, tạo nên tổng thể cân đối và đầy cuốn hút. Ngôi nhà không chỉ mang lại không gian sống tiện nghi cho gia đình nhiều thế hệ mà còn thể hiện gu thẩm mỹ đẳng cấp và tinh tế của gia chủ.


Mặt tiền nhà 15×10 phong cách Indochine ấn tượng với nét đẹp vượt thời gian
Mặt tiền nhà 15×10 mang phong cách Indochine với vẻ đẹp hòa quyện giữa nét Á Đông truyền thống và tinh thần hiện đại. Thiết kế bán hầm được bố trí tinh tế, vừa tăng diện tích sử dụng vừa góp phần tạo nên sự bề thế cho công trình. Sân vườn trước – sau được sắp đặt khéo léo với cây xanh và lối đi lát đá, mang đến cảm giác thư thái, gần gũi thiên nhiên, đồng thời tôn lên vẻ sang trọng, tinh tế cho tổng thể ngôi nhà.



Mẫu nhà 150m2 đẹp quy mô 5 tầng sử dụng làm văn phòng kinh doanh
Mẫu nhà 150m2 đẹp được thiết kế 5 tầng theo hướng đa công năng, kết hợp linh hoạt giữa không gian kinh doanh và khu văn phòng làm việc tiện nghi. Nhờ sự bố trí hợp lý, công trình mang lại tính linh hoạt và hiệu quả cao trong sử dụng. Bên cạnh đó, các chi tiết trang trí tối giản nhưng tinh tế góp phần tạo nên tổng thể hài hòa, thể hiện gu thẩm mỹ hiện đại và chuyên nghiệp của chủ đầu tư.


Mẫu nhà đẹp diện tích 150m2 4 tầng có thiết kế mái bằng tinh tế
Mẫu nhà đẹp diện tích 150m2 ghi điểm với thiết kế mái bằng vững chãi, tạo nên vẻ tinh tế và hài hòa cho tổng thể công trình. Điểm nhấn nổi bật nằm ở hệ lam gỗ ốp ngang trang trí mặt tiền, vừa tăng tính thẩm mỹ vừa tạo cảm giác ấm áp và gần gũi cho ngôi nhà. Hệ cửa kính rộng được bố trí khéo léo giúp tối ưu ánh sáng tự nhiên, tạo không gian sống thông thoáng và kết nối hài hòa với cảnh quan bên ngoài.


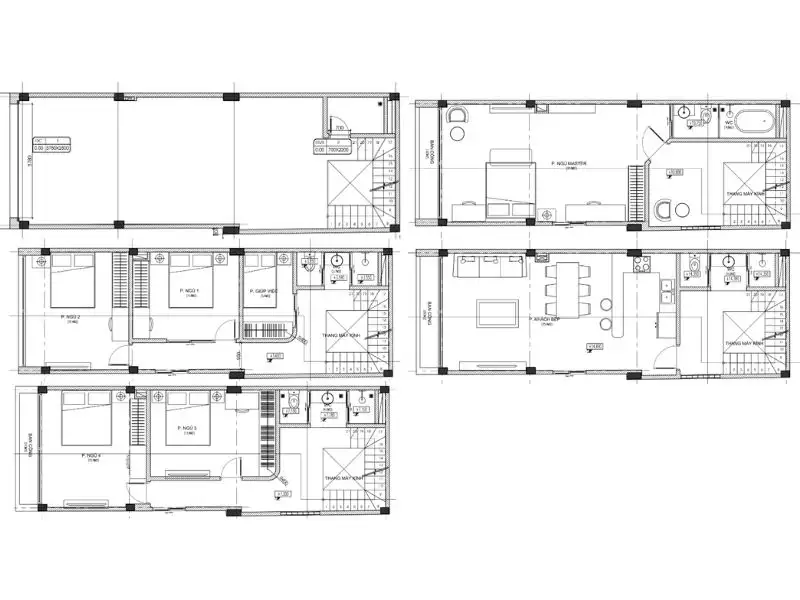
Bản vẽ bố trí công năng nhà 150m2 đầy tiện ích





Xây nhà 150m2 hết bao nhiêu tiền? Tham khảo thêm chi phí xây mẫu nhà đẹp diện tích 150m2
Chi phí xây dựng nhà 150m2 thường dao động trong khoảng 4.800.000đ – 7.500.000đ/m², tùy thuộc nhiều yếu tố khác nhau. Với diện tích này, bạn có thể linh hoạt lựa chọn kiểu nhà phù hợp như nhà 1 tầng, 2 tầng, 3 tầng,… hay biệt thự, nhà vườn nhỏ. Để được tư vấn cụ thể và nhận báo giá chi tiết theo nhu cầu, hãy liên hệ Xây dựng Nhất Tín để được hỗ trợ nhanh chóng và tận tâm.
| Loại hình nhà ở | Khoảng chi phí |
| Nhà 150m2 1 tầng | 1.100.000.000đ đến 1.310.000.000đ |
| Mẫu nhà cấp 4 diện tích 10x15m có gác lửng | 1.640.000.000đ đến 1.960.000.000đ |
| Mẫu nhà đẹp 2 tầng 150m2 | 2.190.000.000đ đến 2.610.000.000đ |
| Mẫu nhà 12×12,5m đẹp 3 tầng | 3.290.000.000 đ đến 3.920.000.000đ |
| Mẫu nhà 6x25m 3 tầng 1 tum có sân thượng | 3.940.000.000đ đến 4.670.000.000đ |
| Thiết kế nhà 150m2 4 tầng | 4.380.000.000đ đến 5.220.000.000đ |
| Mẫu nhà trọ 5 tầng 150m2 | 5.480.000.000đ đến 6.530.000.000đ |
| Văn phòng 6 tầng 150m2 | 6.570.000.000đ đến 7.830.000.000đ |
>> Xem thêm: Đơn giá thi công trọn gói nhà phố
Trên đây là những gợi ý giúp bạn có thêm ý tưởng cho nhà 150m2 vừa đẹp vừa tối ưu công năng sử dụng. Mỗi thiết kế đều mang nét riêng, thể hiện gu thẩm mỹ và phong cách sống của gia chủ. Nếu bạn đang tìm đơn vị đồng hành để biến bản vẽ thành hiện thực, hãy liên hệ Xây dựng Nhất Tín qua số 0988 607 705 để được tư vấn và nhận báo giá chi tiết cho mẫu nhà đẹp diện tích 150m2 ngay hôm nay.
KS Tran Nghia (xaydungnhattin.com)










