Nếu bạn đang tìm kiếm một ngôi nhà vừa rộng rãi, vừa đáp ứng đầy đủ tiện ích cho gia đình từ 4–6 thành viên thì mẫu nhà đẹp 3 phòng ngủ chính là gợi ý hoàn hảo. Không chỉ tối ưu công năng sử dụng, kiểu nhà này còn phù hợp với xu hướng sống hiện đại. Hãy cùng Xây dựng Nhất Tín tham khảo những thiết kế nhà 3 phòng ngủ chúng tôi chia sẻ dưới đây. Với nhiều năm kinh nghiệm, Nhất Tín sẽ giúp bạn có được không gian sống bền đẹp, tiện nghi và đúng với mức đầu tư mong muốn.
>> Tham khảo thêm: Thiết kế nhà đẹp tối ưu tiện nghi
Tóm tắt nội dung
- 1 Mẫu nhà quê 3 phòng ngủ với ngân sách 500 triệu tối ưu chi phí
- 2 Mẫu nhà cấp 4 3 phòng ngủ 1 phòng khách, 1 phòng bếp có thiết kế mái Nhật ấn tượng
- 3 Mẫu nhà 3 phòng ngủ 2 tầng 1 tum sử dụng chất liệu cao cấp sang trọng
- 4 Mẫu nhà cấp 4 đẹp 3 phòng ngủ phong cách Hiện Đại
- 5 Mẫu nhà đẹp 2 tầng 3 phòng ngủ có tầng lửng phong cách Tân Cổ Điển
- 6 Mẫu nhà 5×20 3 phòng ngủ 2 tầng mái bằng với thiết kế lam dọc mặt tiền độc đáo
- 7 Mẫu nhà chữ L đẹp 3 phòng ngủ đầy tiện ích
- 8 Mẫu nhà cấp 4 đẹp 120m2 3 phòng ngủ mái Thái thông thoáng
- 9 Mẫu nhà 3 tầng đẹp 3 phòng ngủ kết hợp kinh doanh
- 10 Xem thêm bản vẽ nhà 3 phòng ngủ tối ưu không gian
- 11 Tham khảo bảng dự toán chi phí xây nhà 3 phòng ngủ mới nhất năm nay
Mẫu nhà quê 3 phòng ngủ với ngân sách 500 triệu tối ưu chi phí
Mẫu nhà 3 phòng ngủ với 500 triệu là gợi ý phù hợp cho những gia đình mong muốn vừa tiết kiệm vừa có không gian sống thoải mái. Thiết kế 3 phòng ngủ được sắp xếp hợp lý, mang lại sự tiện nghi cho các thành viên. Không những vậy, ngôi nhà mang nét cổ kính giản dị, gợi cảm giác gần gũi và ấm áp. Cùng với đó, sân vườn thoáng đãng tạo bầu không khí trong lành, giúp gia đình tận hưởng không gian yên bình mỗi ngày.


Mẫu nhà cấp 4 3 phòng ngủ 1 phòng khách, 1 phòng bếp có thiết kế mái Nhật ấn tượng
Mẫu nhà cấp 4 3 phòng ngủ 1 phòng khách, 1 phòng bếp được đánh giá cao nhờ cách bố trí công năng hợp lý, mang lại sự thoải mái và tiện nghi cho gia đình. Điểm nhấn nổi bật ở mặt tiền chính là lớp đá đen sang trọng kết hợp cùng mái Nhật thanh thoát, tạo nên tổng thể hài hòa và bền vững. Sự kết hợp tinh tế này không chỉ nâng cao tính thẩm mỹ mà còn khẳng định phong cách sống hiện đại, phù hợp với nhu cầu của nhiều gia đình hiện nay.


Mẫu nhà 3 phòng ngủ 2 tầng 1 tum sử dụng chất liệu cao cấp sang trọng
Mẫu nhà 3 phòng ngủ 2 tầng 1 tum được sử dụng chất liệu cao cấp sang trọng tạo nên không gian sống hài hòa và tiện nghi. Lam gỗ ốp trần ở mặt tiền được xem là điểm nhấn nổi bật, vừa mang lại sự ấm áp vừa giúp ngôi nhà thêm phần hiện đại. Về công năng, ba phòng ngủ được bố trí với mục đích riêng: một phòng dành cho bố mẹ, một phòng cho con cái và một phòng dự trữ để đón khách hoặc làm không gian nghỉ ngơi linh hoạt.


Mẫu nhà cấp 4 đẹp 3 phòng ngủ phong cách Hiện Đại
Mẫu nhà cấp 4 đẹp 3 phòng ngủ Hiện Đại nổi bật với tông trắng tinh tế kết hợp cửa gỗ và nội thất gọn gàng, tạo nên tổng thể hài hòa và ấm áp. Trong bố trí công năng, phòng ngủ chính được thiết kế khép kín để đảm bảo sự riêng tư cho vợ chồng. Phòng ngủ thứ hai đặt gần phòng khách, thuận tiện cho sinh hoạt của con cái. Phòng còn lại nằm yên tĩnh phía sau, mang đến không gian nghỉ ngơi thoải mái cho ông bà hoặc người lớn tuổi.


Mẫu nhà đẹp 2 tầng 3 phòng ngủ có tầng lửng phong cách Tân Cổ Điển
Mẫu nhà đẹp 2 tầng 3 phòng ngủ có tầng lửng phong cách Tân Cổ Điển chinh phục người nhìn bởi vẻ sang trọng và tinh tế. Điểm nhấn nổi bật nằm ở những khung cửa vòm mềm mại kết hợp cùng phào chỉ tinh xảo, giúp mặt tiền trở nên cuốn hút và khác biệt. Không gian bên trong được bố trí hợp lý với 3 phòng ngủ tiện nghi, mang lại sự thoải mái cho gia đình.


Mẫu nhà 5×20 3 phòng ngủ 2 tầng mái bằng với thiết kế lam dọc mặt tiền độc đáo
Mẫu nhà 5×20 3 phòng ngủ 2 tầng gây ấn tượng với thiết kế lam dọc mặt tiền, tạo nên vẻ đẹp hiện đại và cuốn hút ngay từ ánh nhìn đầu tiên. Kiến trúc mái bằng vuông vức hòa quyện cùng hệ lam dọc tinh tế, vừa tăng tính thẩm mỹ vừa giúp ngôi nhà thông thoáng hơn. Ngoài ra, cửa kính lớn được bố trí khéo léo, đón trọn ánh sáng tự nhiên và mở rộng tầm nhìn, mang lại không gian sống thoải mái, gần gũi với thiên nhiên.


>> Tham khảo: Thiết kế nhà ngang 5m dài 20m
Mẫu nhà chữ L đẹp 3 phòng ngủ đầy tiện ích
Mẫu nhà chữ L đẹp 3 phòng ngủ đẹp gây ấn tượng với mặt tiền được ốp chất liệu cao cấp, vừa tạo điểm nhấn sang trọng vừa đảm bảo độ bền theo thời gian. Thiết kế chữ L thông thoáng giúp các không gian bên trong dễ dàng đón ánh sáng tự nhiên, mang lại sự lưu thông không khí tốt hơn. Nhờ vậy, tổng thể ngôi nhà không chỉ hiện đại và bền vững mà còn tạo cảm giác thoải mái, nâng cao chất lượng sống cho gia chủ.


Mẫu nhà cấp 4 đẹp 120m2 3 phòng ngủ mái Thái thông thoáng
Mẫu nhà cấp 4 đẹp 120m2 3 phòng ngủ mái Thái thông thoáng nổi bật với gam màu trắng thanh lịch, mang lại cảm giác nhẹ nhàng và gần gũi. Thiết kế mái Thái cao thoáng không chỉ giúp ngôi nhà luôn mát mẻ mà còn tận dụng tối đa ánh sáng tự nhiên. Nhờ sự kết hợp hài hòa giữa màu sắc, vật liệu và kiến trúc, công trình tạo nên tổng thể hiện đại, bền vững và đáp ứng nhu cầu thẩm mỹ của nhiều gia đình.


Mẫu nhà 3 tầng đẹp 3 phòng ngủ kết hợp kinh doanh
Mẫu nhà 3 tầng đẹp 3 phòng ngủ kết hợp kinh doanh gây ấn tượng với mặt tiền uốn cong mềm mại, tạo nét duyên dáng và khác biệt. Khu vực sinh hoạt của gia đình được bố trí trên các tầng, vừa đảm bảo sự riêng tư cho gia đình vừa thuận tiện trong cuộc sống hàng ngày. Tầng trệt dành cho không gian kinh doanh, giúp chủ nhà vừa an cư vừa phát triển công việc. Sự kết hợp hài hòa giữa thẩm mỹ và công năng mang đến một lựa chọn đầy giá trị.


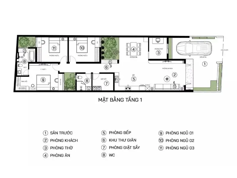
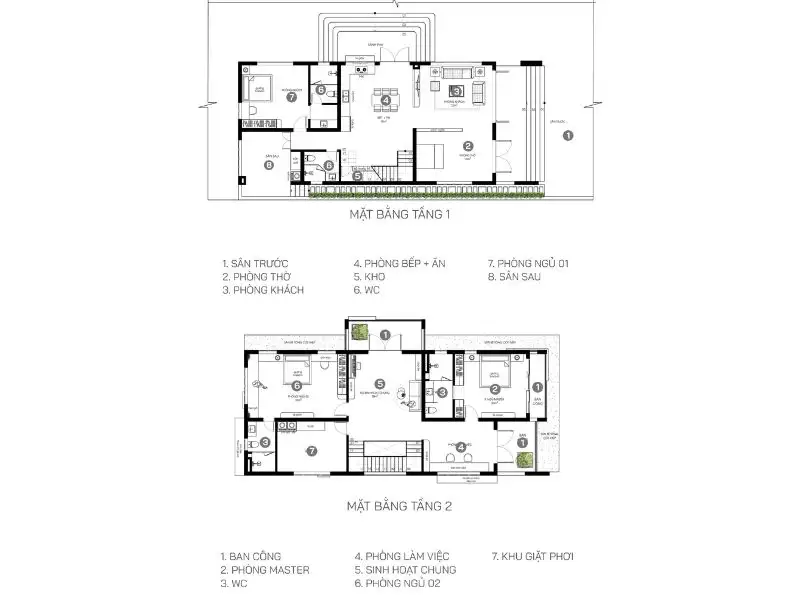
Xem thêm bản vẽ nhà 3 phòng ngủ tối ưu không gian




Tham khảo bảng dự toán chi phí xây nhà 3 phòng ngủ mới nhất năm nay
| Loại hình nhà ở | Khoảng chi phí |
| Mẫu nhà cấp 4 đẹp 5×25 3 phòng ngủ | 975.000.000đ đến 1.090.000.000đ |
| Mẫu nhà gác lửng đẹp 3 phòng ngủ 100m2 | 1.100.000.000đ đến 1.250.000.000đ |
| Mẫu nhà 5×20 3 phòng ngủ 2 tầng | 1.460.000.000đ đến 1.740.000.000đ |
| Mẫu nhà đẹp 2 tầng 3 phòng ngủ có tầng lửng 110m2 | 2.010.000.000đ đến 2.390.000.000đ |
| Mẫu nhà 3 tầng đẹp 3 phòng ngủ 80m2 | 1.750.000.000đ đến 2.090.000.000đ |
>> Xem thêm: Báo giá xây dựng chìa khóa trao tay
Mẫu nhà quê 3 phòng ngủ đầy tiện ích không chỉ mang đến không gian sống thoải mái, gần gũi với thiên nhiên mà còn đáp ứng trọn vẹn nhu cầu sinh hoạt của gia đình. Với sự đồng hành của Nhất Tín, bạn sẽ dễ dàng sở hữu ngôi nhà ấm cúng, bền vững và phù hợp với mong muốn của mình. Nếu bạn cần tư vấn chi tiết hơn về mẫu nhà đẹp 3 phòng ngủ, vui lòng liên hệ hotline: 0988607705 để được hỗ trợ tận tình.
KS Tran Nghia (xaydungnhattin.com)










