Những mẫu nhà 6x12m luôn thu hút mọi ánh nhìn nhờ vẻ đẹp ấn tượng và tinh tế trong từng chi tiết. Để bạn dễ dàng hình dung các thiết kế này, bài viết sau Nhất Tín sẽ chia sẻ những mẫu nhà phố 6x12m đẹp và tối ưu công năng. Với những gợi ý này, bạn chắc chắn sẽ tìm thấy nguồn cảm hứng cho ngôi nhà mơ ước của mình. Hãy tham khảo ngay để có ý tưởng phù hợp với thẩm mỹ và nhu cầu sống thoải mái cho cả gia đình nhé!
>> Xem thêm: Top 98+ Mẫu nhà phố ngang 6m vạn người mê
Tóm tắt nội dung
- 1 Mẫu nhà 6×12 2 tầng kiến trúc mái Thái Tân Cổ Điển
- 2 Mẫu nhà 6×12 có gác lửng với khuôn viên vườn thoáng đãng
- 3 Mẫu nhà cấp 4 6×12 với thiết kế mặt tiền gạch bông gió ô vuông
- 4 Thiết kế nhà 6×12 có gara phong cách kiến trúc tối giản và tinh tế
- 5 Thiết kế nhà ngang 6m dài 12m có tầng tum và sân thượng
- 6 Mẫu nhà lệch tầng 6×12 với mặt tiền thiết kế hình vòm độc đáo
- 7 Mẫu nhà 3 tầng 6×12 Hiện Đại có giếng trời giúp nội thất nhà luôn thông thoáng
- 8 Thiết kế nhà 6×12 2 tầng 4 phòng ngủ với các hình khối thiết kế độc đáo
- 9 Mẫu nhà phố 6×12 đẹp 4 tầng với thiết kế ban công ốp gỗ hút mắt
- 10 Mẫu nhà 6x12m 1 tầng mái Thái với kiến trúc kiểu chữ L ở nông thôn
- 11 Tham khảo bản vẽ bố trí công năng nội thất các mẫu nhà phố 6x12m đẹp được thiết kế tối ưu
- 12 Ước tính chi phí xây dựng một số mẫu nhà 6x12m mới nhất hiện nay
Mẫu nhà 6×12 2 tầng kiến trúc mái Thái Tân Cổ Điển
Mẫu nhà 6×12 2 tầng là sự giao thoa tinh tế giữa phong cách Tân Cổ Điển sang trọng và nét duyên dáng của mái Thái. Thiết kế này không chỉ đề cao tính thẩm mỹ mà còn tối ưu công năng, đáp ứng trọn vẹn nhu cầu của gia đình hiện đại. Điểm nhấn nổi bật của ngôi nhà đó là hệ cột Doric vững chãi kết hợp với chân cột đá vuông mang đến vẻ bề thế, trang nhã. Bên cạnh đó, mái Thái với độ dốc hợp lý giúp tổng thể ngôi nhà trở nên cao ráo, thanh thoát và đầy ấn tượng.



Mẫu nhà 6×12 có gác lửng với khuôn viên vườn thoáng đãng
Nếu bạn là người yêu thích vẻ đẹp gần gũi với thiên nhiên thì mẫu nhà 6×12 có gác lửng dưới đây chắc chắn sẽ là lựa chọn đáng cân nhắc. Phần gác lửng được thiết kế rộng rãi, kết hợp với kiến trúc mái chữ A thanh thoát giúp không gian trở nên cao thoáng hơn. Không chỉ vậy, ngôi nhà còn được bao phủ bởi khuôn viên vườn xanh mát tạo một chốn an yên lý tưởng cho những gia đình mong muốn không gian sống gần gũi, hòa mình vào thiên nhiên.



Mẫu nhà cấp 4 6×12 với thiết kế mặt tiền gạch bông gió ô vuông
Việc sử dụng gạch bông gió ô vuông cho mặt tiền là một giải pháp lý tưởng, giúp mẫu nhà cấp 4 6x12m vừa đẹp mắt vừa tối ưu công năng. Những khoảng hở tinh tế trên tường không chỉ tạo điểm nhấn kiến trúc mà còn tăng cường khả năng đón gió và ánh sáng tự nhiên, mang đến không gian sống thoáng mát, dễ chịu. Bên cạnh đó, hệ lam cửa lùa được thiết kế khéo léo giúp duy trì sự thông thoáng của mẫu nhà.


Thiết kế nhà 6×12 có gara phong cách kiến trúc tối giản và tinh tế
Mẫu thiết kế nhà 6×12 có gara dưới đây là lựa chọn lý tưởng cho những gia đình đề cao sự tiện nghi và tối ưu công năng. Mẫu nhà này nổi bật với phong cách Tối giản cùng những đường nét tinh gọn giúp định hình không gian một cách rõ ràng và hài hòa. Đặc biệt, khoảng sân trước được thiết kế mái che lam gỗ không chỉ tạo nơi để xe ô tô thuận tiện mà còn góp phần tăng thêm nét thẩm mỹ cho tổng thể ngôi nhà.


Thiết kế nhà ngang 6m dài 12m có tầng tum và sân thượng
Mẫu nhà ngang 6m dài 12m được thiết kế tối ưu với tầng tum và sân thượng, tạo nên không gian sinh hoạt linh hoạt và thoải mái. Khu vực này gia đình có thể tận dụng làm phòng sinh hoạt chung, phòng thờ hoặc góc thư giãn ngoài trời, mang lại sự kết nối hài hòa giữa không gian trong nhà và thiên nhiên. Nhờ bố cục hợp lý và thiết kế tinh tế, mẫu nhà này không chỉ đáp ứng nhu cầu sử dụng mà còn mang đến môi trường sống tiện nghi, thoáng đãng và tràn đầy ánh sáng tự nhiên.



Mẫu nhà lệch tầng 6×12 với mặt tiền thiết kế hình vòm độc đáo
Mẫu nhà lệch tầng 6x12m do Nhất Tín giới thiệu là minh chứng cho sự sáng tạo và tinh tế trong kiến trúc hiện đại. Mặt tiền được tạo hình vòm uyển chuyển, không chỉ tôn lên vẻ đẹp thanh thoát mà còn mang đến nét mềm mại và dịu dàng cho tổng thể ngôi nhà. Thêm vào đó, lối thiết kế tầng lệch khéo léo phân chia các khu vực chức năng một cách hợp lý, mang lại sự tiện nghi và thoải mái cho người sử dụng.



Mẫu nhà 3 tầng 6×12 Hiện Đại có giếng trời giúp nội thất nhà luôn thông thoáng
Giếng trời không chỉ là điểm nhấn mà còn là “lá phổi xanh” trong thiết kế mẫu nhà 3 tầng 6x12m phong cách Hiện Đại. Nhờ sự sắp đặt khéo léo, ánh sáng tự nhiên len lỏi vào từng ngóc ngách, giúp không gian nội thất luôn thoáng đãng và tràn đầy sinh khí. Đồng thời, thiết kế mặt tiền mẫu nhà được tô điểm bằng gạch bông gió kết hợp lan can kính cường lực, vừa tạo cảm giác rộng mở vừa tăng tính thẩm mỹ cho tổng thể kiến trúc.



Thiết kế nhà 6×12 2 tầng 4 phòng ngủ với các hình khối thiết kế độc đáo
Được kiến tạo bởi hình khối độc đáo, mẫu thiết kế nhà 6×12 2 tầng 4 phòng ngủ mang đến vẻ đẹp vững chắc và cuốn hút. Mặt tiền được thiết kế hài hòa với hai mảng khối đối lập gồm: một bên là ban công lồi tạo điểm nhấn ấn tượng, bên còn lại sử dụng seno trang trí chữ A, mang đến sự tương phản ấn tượng. Từng chi tiết đều được KTS chăm chút tỉ mỉ, góp phần tạo nên một tổng thể kiến trúc hài hòa và cuốn hút. Cùng Nhất Tín khám phá mẫu nhà này qua những hình ảnh dưới đây!



Mẫu nhà phố 6×12 đẹp 4 tầng với thiết kế ban công ốp gỗ hút mắt
Mẫu nhà phố 6×12 đẹp 4 tầng thu hút ánh nhìn với thiết kế ban công ốp gỗ sang trọng, mang đến nét đẹp hài hòa và ấm áp. Kết cấu ban công dạng khối hộp không chỉ tạo cảm giác vững chãi mà còn góp phần làm nổi bật chiều sâu kiến trúc. Đặc biệt, trần ban công được ốp gỗ tự nhiên, vừa tạo điểm nhấn tinh tế vừa tôn lên nét đẹp hiện đại của công trình.



Mẫu nhà 6x12m 1 tầng mái Thái với kiến trúc kiểu chữ L ở nông thôn
Giữa khung cảnh đồng quê thanh bình, mẫu nhà 6x12m 1 tầng mái Thái kiểu chữ L mang đến không gian sống thoáng đãng và gần gũi với thiên nhiên. Thiết kế chữ L không chỉ tối ưu diện tích sử dụng mà còn mở ra khoảng sân rộng rãi, thích hợp cho các hoạt động ngoài trời. Đặc biệt, hệ cửa kính được bố trí hài hòa theo hai cánh của chữ L, giúp tận dụng tối đa ánh sáng tự nhiên và tăng cường sự kết nối giữa không gian trong và ngoài nhà.



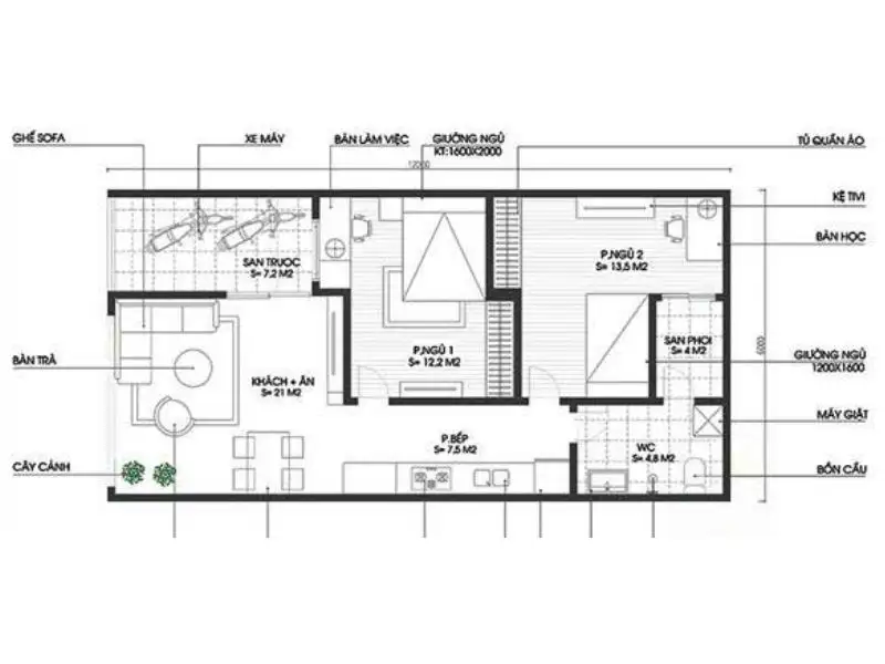
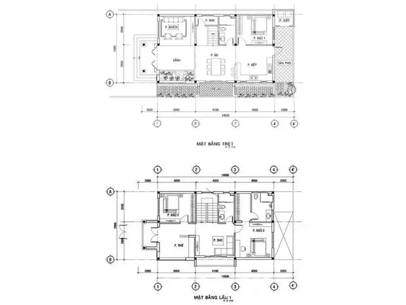
Tham khảo bản vẽ bố trí công năng nội thất các mẫu nhà phố 6x12m đẹp được thiết kế tối ưu





Ước tính chi phí xây dựng một số mẫu nhà 6x12m mới nhất hiện nay
Các hạng mục chi phí khi xây nhà diện tích 6x12m
| Hạng mục chi phí | Đơn giá | Ghi chú |
| Thiết kế kết cấu, 3D kiến trúc | 100.000 – 200.000 VNĐ/m2 | Miễn phí khi ký hợp đồng thi công tại Nhất Tín |
| Xin giấy phép xây dựng | 6.000.000 – 20.000.000 VNĐ | Miễn phí khi ký hợp đồng thi công tại Nhất Tín |
| Chi phí xây nhà phần thô | 3.200.000 – 3.750.000 VNĐ/m2 | Liên hệ Nhất Tín để được tư vấn báo giá cụ thể |
| Giá hoàn thiện nhà đã xây thô | 1.450.000 – 2.750.000 VNĐ/m2 | Liên hệ Nhất Tín để được tư vấn báo giá cụ thể |
| Chi phí tháo dỡ (nếu có) | 5.000.000 – 20.000.000 VNĐ | Chưa gồm trong gói xây dựng. |
| Chi phí ép cọc | 240.000 đ – 270.000 VNĐ/ mét dài cọc | Chưa bao gồm chi phí ca ép nhân công và không bao gồm trong hợp đồng. |
| Chi phí hoàn công | 10.000.000 – 20.000.000 VNĐ | Không bao gồm trong gói xây dựng. |
| Mua sắm đồ nội thất | 100.000.000 – 150.000.000 VNĐ | Mức giá tùy vào nhu cầu của gia chủ |
Dự trù kinh phí xây nhà ống 6x12m theo các loại hình phổ biến
| Loại hình | Ước tính chi phí |
| Chi phí xây nhà 2 tầng 6x12m | 964.800.000 đến 1.220.000.000 đồng |
| Ngân sách xây nhà cấp 4 diện tích 6×12 | 460.800.000 đến 561.600.000 đồng |
| Kinh phí thi công nhà 3 tầng 6×12 | 1.450.000.000 đến 1.840.000.000 đồng |
| Chi phí thi công nhà 4 tầng ngang 6m sâu 12m | 1.930.000.000 đến 2.450.000.000 đồng |
| Nhà 2 tầng có tum và sân thượng mặt tiền 6m dài 12m | 1.210.000.000 đến 1.530.000.000 đồng |
| Nhà 3 tầng có tum và sân thượng ngang 6m dài 12m | 1.690.000.000 đến 2.140.000.000 đồng |
>> Tham khảo: Giá thầu xây dựng trọn gói
Như vậy, trong bài viết trên Nhất Tín đã tuyển chọn kỹ lưỡng những mẫu nhà 6×12 tiện nghi và ấn tượng nhất. Hy vọng đây sẽ là nguồn cảm hứng hữu ích, giúp bạn định hình không gian sống lý tưởng và sắp xếp công năng một cách tối ưu. Nếu bạn cần tư vấn thiết kế chi tiết cho ngôi nhà 6x12m của mình, đừng ngần ngại liên hệ với Nhất Tín. Chúng tôi luôn sẵn sàng đồng hành và giải đáp mọi thắc mắc của bạn. Hotline: 0988607705 / Zalo: 0911062189.
>> Xem thêm: Thiết kế nhà phố 6x11m
KS Tran Nghia (xaydungnhattin.com)










