Trong những năm gần đây, mẫu nhà 6×15 trở thành sự lựa chọn hàng đầu của nhiều gia đình Việt. Không chỉ tối ưu diện tích, kiến trúc này còn mang đến nét đẹp thời thượng, đón đầu mọi xu hướng thiết kế. Nhằm bắt kịp xu hướng này, Xây dựng Nhất Tín xin giới thiệu mẫu thiết kế nhà phố 6x15m thể hiện phong cách độc đáo và vẻ đẹp bền vững theo thời gian. Hãy tham khảo ngay!
>> Có thể bạn quan tâm: Thiết kế nhà phố đẹp mặt tiền 6m
Tóm tắt nội dung
- 1 Nhà 6×15 2 tầng 4 phòng ngủ sử dụng vật liệu mộc mạc và gần gũi
- 2 Nhà 6×15 1 tầng ở nông thôn với kiến trúc mái bằng
- 3 Mẫu nhà cấp 4 6×15 2 phòng ngủ có sân vườn nhỏ trước nhà
- 4 Mẫu nhà đẹp 3 tầng 6×15 có tầng tum kèm bản vẽ 2D bố trí công năng
- 5 Mẫu nhà mái Thái 6×15 có 2 mặt thoáng tối ưu năng lượng tự nhiên
- 6 Mẫu nhà gác lửng 6×15 kết hợp kinh doanh
- 7 Nhà 2 tầng 3 phòng ngủ 6×15 có thiết kế mái chữ A ấn tượng
- 8 Mẫu nhà 6x15m có gara với gam màu xám và thiết kế lam cửa lùa ấn tượng
- 9 Nhà 2 tầng chữ L 6×15 với thiết kế mở hòa mình vào thiên nhiên
- 10 Nhà lệch tầng 6×15 với mặt tiền xây gạch mộc ấn tượng
- 11 Thiết kế nhà phố 6mx15m có gác lửng với thiết kế mái ngói đỏ
- 12 Nhà ngang 6m dài 15m có thang máy với mặt tiền ốp đá nổi bật
- 13 Mẫu nhà đẹp 6x15m 4 tầng với đường cong kiến trúc tinh tế
- 14 Xem thêm bản vẽ bố trí công năng mẫu nhà 6×15 thiết kế khoa học và tối ưu
- 15 Tham khảo bảng ước tính chi phí xây nhà 6x15m mới nhất hiện nay
Nhà 6×15 2 tầng 4 phòng ngủ sử dụng vật liệu mộc mạc và gần gũi
Mẫu nhà 6×15 2 tầng 4 phòng ngủ sử dụng vật liệu mộc mạc mang đến không gian sống gần gũi và thân thuộc. Mảng tường bao được xây bằng gạch nung với kiểu xếp zigzag tạo nên điểm nhấn độc đáo và mộc mạc. Đặc biệt, mái dốc được thiết kế đơn giản và lợp bằng ngói xi măng nhẹ, không chỉ mang tính hiện đại mà còn đảm bảo khả năng cách nhiệt hiệu quả.



Nhà 6×15 1 tầng ở nông thôn với kiến trúc mái bằng
Mẫu nhà cấp 4 đẹp 6×15 ở nông thôn với kiến trúc mái bằng được thiết kế với đường nét tinh tế và tối giản, tạo nên vẻ hài hòa với khung cảnh yên bình của làng quê. Kiểu mái bằng mang đến sự gọn gàng và mạnh mẽ, đồng thời tối ưu chi phí xây dựng. Bên cạnh đó, mặt tiền được ốp gạch màu xám, không chỉ mang nét đẹp hiện đại mà còn thể hiện sự hòa hợp với cảnh quan xung quanh.



Mẫu nhà cấp 4 6×15 2 phòng ngủ có sân vườn nhỏ trước nhà
Mẫu nhà cấp 4 6x15m được thiết kế với sân vườn nhỏ phía trước, tạo không gian xanh mát và mang lại cảm giác thư thái cho gia chủ. Hệ mái ngói đỏ truyền thống có độ dốc vừa phải, không chỉ giúp thoát nước hiệu quả mà còn tôn lên nét đẹp mộc mạc, gần gũi. Đặc biệt, màu đỏ của mái hài hòa với những đường bo tròn mềm mại trên mảng tường mặt tiền, tạo điểm nhấn độc đáo và tăng thêm sức hút cho tổng thể kiến trúc.



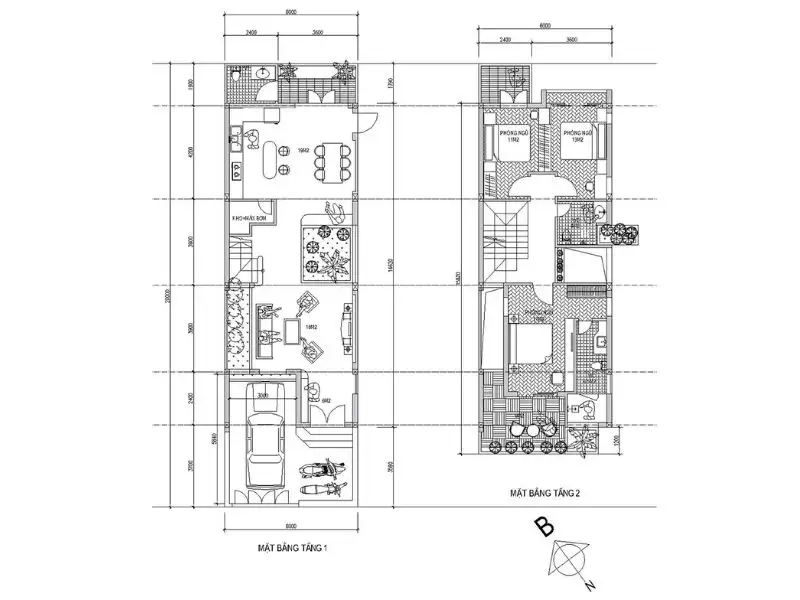
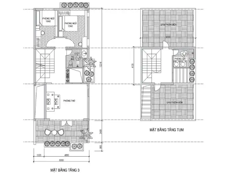
Mẫu nhà đẹp 3 tầng 6×15 có tầng tum kèm bản vẽ 2D bố trí công năng
Mẫu nhà đẹp 3 tầng 6×15 có tầng tum dưới đây là giải pháp lý tưởng cho những gia đình đông thành viên muốn mở rộng diện tích. Với ngân sách xây dựng khoảng 2,3 tỷ đồng, mẫu nhà này bố trí 5 phòng ngủ đáp ứng nhu cầu sinh hoạt tiện nghi cho gia đình 2-3 thế hệ chung sống. Để hiểu rõ hơn về phương án thiết kế, cùng chiêm ngưỡng vẻ đẹp ngoại thất nhà phố 3 tầng 6x15m kèm bản vẽ 2D bố trí công năng được Nhất Tín chia sẻ dưới đây.




Mẫu nhà mái Thái 6×15 có 2 mặt thoáng tối ưu năng lượng tự nhiên
Mẫu nhà mái Thái 6×15 dưới đây được thiết kế với hai mặt thoáng, giúp tận dụng tối đa ánh sáng và gió trời, mang đến không gian sống thoáng đãng, dễ chịu. Nhờ lợi thế này, ngôi nhà không chỉ tiết kiệm năng lượng mà còn đảm bảo sự lưu thông không khí tốt hơn. Bên cạnh đó, hệ mái Thái đa chiều không chỉ tạo điểm nhấn kiến trúc nổi bật cho cả hai mặt tiền mà còn giữ được sự cân đối, giúp tổng thể ngôi nhà trở nên hài hòa và ấn tượng hơn.


Mẫu nhà gác lửng 6×15 kết hợp kinh doanh
Mẫu nhà gác lửng 6×15 mà Nhất Tín giới thiệu dưới đây là lựa chọn lý tưởng cho gia chủ muốn kết hợp giữa không gian sống và kinh doanh. Tầng trệt được thiết kế rộng rãi, tối ưu diện tích để phù hợp với nhiều loại hình kinh doanh khác nhau. Bên cạnh đó, mặt tiền sử dụng các mảng gạch sẫm màu làm điểm nhấn, không chỉ tăng tính thẩm mỹ mà còn tạo sự thu hút cho khách hàng ngay từ cái nhìn đầu tiên.



Nhà 2 tầng 3 phòng ngủ 6×15 có thiết kế mái chữ A ấn tượng
Nhà 2 tầng 3 phòng ngủ 6×15 mà Nhất Tín giới thiệu dưới đây là lựa chọn lý tưởng cho gia đình từ 4-5 thành viên. Với ngân sách xây dựng khoảng 1,3 tỷ đồng, ngôi nhà cung cấp đủ không gian để bố trí 3 phòng ngủ, đảm bảo sự thoải mái và tiện nghi cho tất cả các thành viên. Hãy cùng tham khảo cách bố trí không gian của mẫu nhà 2 tầng 6x15m với 3 phòng ngủ qua những hình ảnh dưới đây.


Mẫu nhà 6x15m có gara với gam màu xám và thiết kế lam cửa lùa ấn tượng
Mẫu nhà 6x15m có gara dưới đây gây ấn tượng với mảng tường gam màu xám làm chủ đạo, toát lên vẻ đẹp thanh lịch và tinh tế. Nổi bật trên nền xám ấy là hệ lam cửa lùa bằng gỗ cho phép đóng mở dễ dàng, tạo ra không gian thoáng đãng và mát mẻ. Nếu bạn yêu thích mẫu thiết kế nhà phố 6x15m này, hãy cùng chiêm ngưỡng những phối cảnh 3D ngoại thất dưới đây để tìm kiếm ý tưởng phù hợp cho không gian sống của mình nhé.


Nhà 2 tầng chữ L 6×15 với thiết kế mở hòa mình vào thiên nhiên
Hướng đến môi trường sống gần gũi với thiên nhiên, mẫu nhà 2 tầng chữ L 6×15 thiết kế mở mang đến không gian thông thoáng và thư giãn. Thiết kế mở được thể hiện qua kiến trúc chữ L kết hợp với hệ kính cường lực trải dài xuyên suốt các mặt tiền. Nhờ đó, ngôi nhà không chỉ mở rộng diện tích tiếp giáp với sân vườn xanh mát mà còn tạo ra sự kết nối hài hòa giữa không gian bên trong và bên ngoài.



Nhà lệch tầng 6×15 với mặt tiền xây gạch mộc ấn tượng
Khác với những kiểu nhà phố phổ biến hiện nay, mẫu nhà lệch tầng 6×15 nổi bật với mặt tiền được xây bằng gạch mộc. Mảng tường gạch thô mộc mạc không chỉ thể hiện nét đẹp gần gũi mà còn giúp ngôi nhà trở nên độc đáo và cuốn hút hơn. Đặc biệt, cửa sổ và các khối bê tông được tạo hình uốn cong tinh tế, vừa tôn lên vẻ thanh thoát vừa tạo điểm nhấn ấn tượng cho tổng thể công trình.



Thiết kế nhà phố 6mx15m có gác lửng với thiết kế mái ngói đỏ
Thiết kế nhà phố 6mx15m có gác lửng dưới đây mang đậm vẻ đẹp dân dã pha chút hoài cổ nhờ hệ mái ngói đỏ đặc trưng. Không chỉ là điểm nhấn kiến trúc ấn tượng, mái ngói đỏ còn giúp điều hòa nhiệt độ, giữ cho không gian bên trong luôn mát mẻ. Nhờ đó, thiết kế này trở thành lựa chọn lý tưởng phù hợp với điều kiện khí hậu Việt Nam, mang đến một không gian sống thoải mái và thư thái cho gia đình.





Nhà ngang 6m dài 15m có thang máy với mặt tiền ốp đá nổi bật
Mẫu nhà ngang 6x15m có thang máy mà Nhất Tín giới thiệu dưới đây là lựa chọn lý tưởng cho các khu đô thị hoặc những lô đất có diện tích hạn chế. Việc tích hợp thang máy không chỉ nâng tầm tiện nghi mà còn mang đến sự thoải mái và tiện lợi cho mọi thành viên trong gia đình. Nếu bạn đang tìm kiếm ý tưởng cho ngôi nhà mơ ước của mình, hãy tham khảo những hình ảnh dưới đây để có thêm cảm hứng thiết kế!


Mẫu nhà đẹp 6x15m 4 tầng với đường cong kiến trúc tinh tế
Mẫu nhà đẹp 6x15m 4 tầng thu hút ngay từ cái nhìn đầu tiên nhờ những đường cong mềm mại trong thiết kế kiến trúc. Đường nét kiến trúc này không chỉ tạo điểm nhấn độc đáo mà còn mang lại vẻ thanh thoát, sang trọng cho công trình. Không chỉ vậy, mặt tiền được chia thành hai mảng đối lập hài hòa: một bên sử dụng gam màu trắng trang nhã, bên còn lại ốp gỗ tối màu giúp ngôi nhà thêm phần độc đáo.


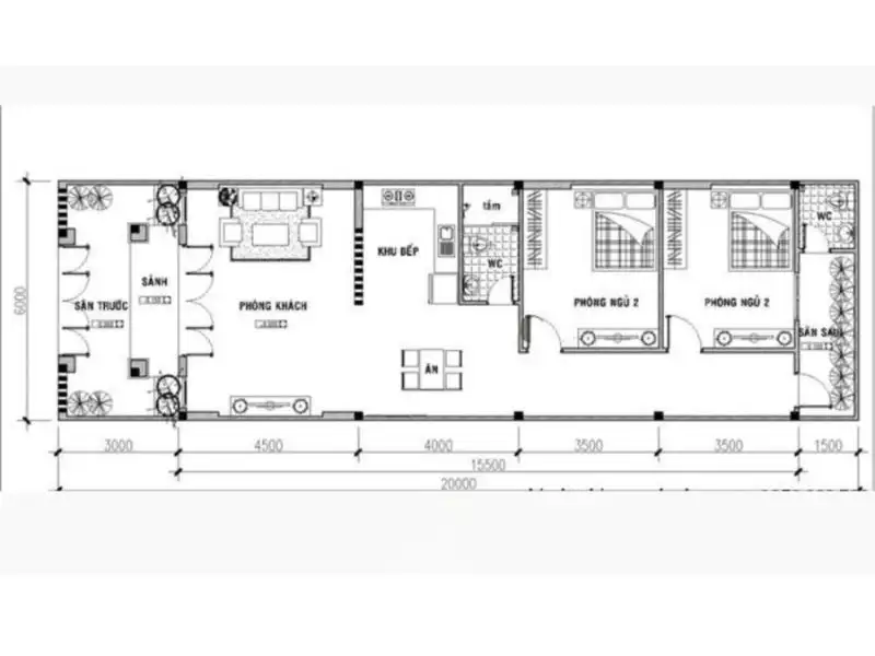
Xem thêm bản vẽ bố trí công năng mẫu nhà 6×15 thiết kế khoa học và tối ưu





Tham khảo bảng ước tính chi phí xây nhà 6x15m mới nhất hiện nay
| Loại nhà | Dự toán ngân sách |
| Chi phí xây nhà ngang 6m dài 15m cấp 4 | 576.000.000 đến 702.000.000 đồng |
| Chi phí xây nhà 2 tầng 6x15m | 1.210.000.000 đến 1.530.000.000 đồng |
| Giá thi công nhà 3 tầng rộng 6m dài 15m | 1.810.000.000 đến 2.300.000.000 đồng |
| Giá xây dựng nhà 6x15m 4 tầng | 2.410.000.000 đến 3.060.000.000 đồng |
>> Tham khảo dự toán chi tiết: Giá thầu xây dựng trọn gói
Trên đây là một số mẫu nhà 6×15 thịnh hành nhất được Nhất Tín tổng hợp đầy đủ cho gia chủ thỏa sức lựa chọn. Hy vọng bài viết trên sẽ giúp bạn lựa chọn được kiểu nhà phù hợp với gu thẩm mỹ và điều kiện kinh tế của gia đình. Để được tư vấn thêm mẫu thiết kế nhà 6x15m mới nhất hiện nay, hãy liên hệ ngay đến Nhất Tín để được hỗ trợ. Hotline: 0988607705 / Zalo: 0911062189.
>> Xem thêm các mẫu nhà ấn tượng:
BST 99 nhà phố 6×13 đẹp cuốn hút
KS Tran Nghia (xaydungnhattin.com)










