Những mẫu nhà 8×14 chính là lựa chọn đang “làm mưa làm gió” trong giới thiết kế hiện nay. Với tỷ lệ vàng trong kiến trúc, loại nhà này không chỉ mang đến không gian sống thoải mái mà còn dễ dàng biến hóa linh hoạt theo nhiều phong cách khác nhau. Trong bài viết này, Xây dựng Nhất Tín sẽ giới thiệu đến bạn các mẫu thiết kế nhà ngang 8m dài 14m đẹp nhất, được chọn lọc kỹ lưỡng theo xu hướng mới nhất hiện nay. Cùng đón xem!
>> Xem thêm: Mẫu nhà phố ngang 8m đẹp cuốn hút
Tóm tắt nội dung
- 1 Mẫu nhà 8×14 đẹp 3 tầng phong cách Indochine tuyệt tác không gian
- 2 Thiết kế nhà ngang 8m dài 14m 4 tầng mang đậm chất Hiện Đại và thời thượng
- 3 Mẫu nhà 2 tầng 8x14m đẹp với mặt tiền ốp gỗ tạo nét riêng độc đáo
- 4 Mẫu nhà cấp 4 diện tích 8x14m mái Bằng với gam màu thanh lịch
- 5 Nhà mái Nhật ngang 8m sâu 14m với thiết kế của kính lớn tối ưu năng lượng tự nhiên
- 6 Nhà rộng 8m sâu 14m có phòng thờ với khuôn viên xanh mát, gần gũi thiên nhiên
- 7 Mẫu nhà 8x14m 4 phòng ngủ có gara để xe tối ưu tiện nghi cho gia đình
- 8 Phối cảnh 3D nhà ống 8x14m có gác lửng phong cách Châu Âu
- 9 Biệt thự mái Thái 8x14m nông thôn với gam màu mộc mạc và ấm cúng
- 10 Mặt bằng 2D bố trí công năng nhà diện tích 8x14m
- 11 Xem thêm bảng dự toán chi phí xây nhà 8x14m mới nhất năm nay
Mẫu nhà 8×14 đẹp 3 tầng phong cách Indochine tuyệt tác không gian
Mẫu nhà 8×14 đẹp 3 tầng phong cách Indochine là sự kết hợp hoàn hảo giữa nét đẹp truyền thống Á Đông và kiến trúc Pháp Cổ Điển. Với gam màu trung tính làm chủ đạo, không gian sống toát lên vẻ nhẹ nhàng nhưng vẫn đầy cuốn hút nhờ các chi tiết kiến trúc đặc trưng của phong cách Đông Dương như: mái ngói gạch nung âm dương, họa tiết hoa lá trang trí,… Cùng ngắm nhìn vẻ đẹp ấn tượng của mẫu nhà qua nội dung dưới đây.



Thiết kế nhà ngang 8m dài 14m 4 tầng mang đậm chất Hiện Đại và thời thượng
Thiết kế nhà ngang 8m dài 14m 4 tầng Hiện Đại ấn tượng với những đường nét kiến trúc dứt khoát nhưng vẫn đầy tinh tế. Tông trắng chủ đạo kết hợp hài hòa cùng gam màu ấm áp tạo nên tổng thể sang trọng và ấm cúng. Điểm nhấn của thiết kế chính là các mảng lam gỗ và chi tiết trang trí được bố trí khéo léo, vừa mang lại sự riêng tư vừa tạo cảm giác thông thoáng và thoải mái cho từng không gian sinh hoạt.


Mẫu nhà 2 tầng 8x14m đẹp với mặt tiền ốp gỗ tạo nét riêng độc đáo
Mẫu nhà 2 tầng 8x14m đẹp là lựa chọn phổ biến, phù hợp với nhu cầu sinh hoạt của nhiều gia đình Việt Nam. Điểm nổi bật trong thiết kế này chính là mặt tiền được ốp gỗ, mang đến vẻ đẹp độc đáo và khác biệt so với những ngôi nhà thông thường. Việc sử dụng gỗ tự nhiên không chỉ tạo cảm giác ấm cúng, gần gũi với thiên nhiên mà còn thể hiện gu thẩm mỹ tinh tế của gia chủ.





Mẫu nhà cấp 4 diện tích 8x14m mái Bằng với gam màu thanh lịch
Mẫu nhà cấp 4 8x14m mái bằng mang dáng vẻ nhẹ nhàng mà đầy cuốn hút nhờ lối thiết kế tối giản, hiện đại. Tông màu xám chủ đạo tạo nên cảm giác thanh thoát đồng thời giúp công trình dễ dàng hòa mình vào cảnh quan xung quanh. Dấu ấn riêng của nhà cấp 4 mái bằng này nằm ở những mảng tường ốp gạch kiến trúc – một nét chấm phá tinh tế, vừa tô điểm thẩm mỹ, vừa vững bền theo thời gian.



Nhà mái Nhật ngang 8m sâu 14m với thiết kế của kính lớn tối ưu năng lượng tự nhiên
Nhà mái Nhật ngang 8m sâu 14m là sự kết hợp hài hòa giữa nét hiện đại và vẻ đẹp thanh thoát. Hệ mái Nhật được thiết kế tinh gọn, tạo cảm giác bề thế nhưng vẫn giữ được sự nhẹ nhàng. Điểm nhấn đặc biệt nằm ở hệ cửa kính lớn ốp khung gỗ – được bố trí khéo léo để đón nắng sớm, gió trời, giúp không gian tràn ngập ánh sáng tự nhiên và tối ưu hiệu quả nguồn năng lượng thiên nhiên.


Nhà rộng 8m sâu 14m có phòng thờ với khuôn viên xanh mát, gần gũi thiên nhiên
Nhà rộng 8m sâu 14m có phòng thờ được thiết kế hài hòa giữa không gian sống tiện nghi và yếu tố tâm linh truyền thống. Phòng thờ được bố trí trang nghiêm, ấm cúng – là nơi gia chủ gửi gắm lòng thành kính với tổ tiên trong không gian yên tĩnh, trầm lắng. Không chỉ vậy, bao quanh ngôi nhà là khuôn viên xanh mát, mang đến cảm giác thư thái, gần gũi với thiên nhiên – một chốn an yên giữa đời thường tấp nập.




Mẫu nhà 8x14m 4 phòng ngủ có gara để xe tối ưu tiện nghi cho gia đình
Mẫu nhà 8x14m với 4 phòng ngủ và gara để xe được thiết kế tối ưu, đáp ứng đầy đủ nhu cầu sinh hoạt cho gia đình đông thành viên. Trên diện tích 112m², các không gian được bố trí hợp lý đảm bảo sự tiện nghi và riêng tư cho từng thành viên. Đặc biệt, gara nằm bên hông nhà được tích hợp khéo léo, vừa thuận tiện trong sử dụng, vừa góp phần hoàn thiện tổng thể kiến trúc một cách hiện đại và gọn gàng.



Phối cảnh 3D nhà ống 8x14m có gác lửng phong cách Châu Âu
Phối cảnh 3D mẫu nhà ống 8x14m có gác lửng mang đậm dấu ấn phong cách Châu Âu. Đây là sự kết hợp hài hòa giữa nét tinh tế trong thiết kế và tính tiện nghi trong công năng. Gác lửng được bố trí khéo léo, vừa mở rộng không gian sinh hoạt, vừa tạo điểm nhấn kiến trúc độc đáo. Đặc biệt, tông màu nâu trung tính chủ đạo góp phần mang lại cảm giác ấm áp, gần gũi giúp tổng thể ngôi nhà trở nên hài hòa và thu hút từ cái nhìn đầu tiên.




Biệt thự mái Thái 8x14m nông thôn với gam màu mộc mạc và ấm cúng
Biệt thự mái Thái 8x14m nông thôn với gam màu mộc mạc và ấm cúng mang đến không gian sống lý tưởng cho gia đình yêu thích sự giản dị và gần gũi với thiên nhiên. Thiết kế sử dụng gam màu chủ đạo như nâu đất, vàng kem kết hợp mái ngói đỏ truyền thống tạo nên vẻ đẹp hài hòa, ấm áp. Hệ cửa gỗ và các đường nét kiến trúc tinh tế giúp ngôi nhà luôn thông thoáng, đón gió và ánh sáng tự nhiên.



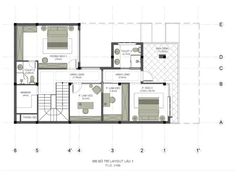
Mặt bằng 2D bố trí công năng nhà diện tích 8x14m



Xem thêm bảng dự toán chi phí xây nhà 8x14m mới nhất năm nay
| Loại hình nhà ở | Khoảng ngân sách |
| Thiết kế nhà ngang 8m dài 14m 3 tầng | 2.25 tỷ – 2.86 tỷ |
| Mẫu nhà 8×14 đẹp 2 tầng | 1.5 tỷ – 1.9 tỷ |
| Thiết kế nhà phố 8×14 1 tầng 1 lửng | 1.13 tỷ -1.43 tỷ |
| Mẫu nhà cấp 4 diện tích 8x14m | 1.08 tỷ – 1.31 tỷ |
>> Tham khảo: Giá xây nhà theo m2
Trên đây là gợi ý về mẫu nhà 8×14 đẹp, vừa đảm bảo tính thẩm mỹ, vừa tối ưu không gian sống. Nếu bạn đang tìm kiếm một đơn vị uy tín để thiết kế nhà ngang 8m dài 14m, hãy liên hệ ngay với Xây dựng Nhất Tín. Với kinh nghiệm và đội ngũ chuyên nghiệp, chúng tôi cam kết mang đến những công trình chất lượng, phù hợp với nhu cầu và ngân sách của bạn. Để được tư vấn chi tiết, vui lòng gọi Hotline: 0988607705 hoặc Zalo: 0911062189.
>> Xem thêm:
KS Tran Nghia (xaydungnhattin.com)










