Nhà mặt tiền 9m sâu 7m là lựa chọn phổ biến cho những gia đình mong muốn một không gian sống tiện nghi và thẩm mỹ. Dù diện tích không quá lớn, nhưng nhờ bố trí hợp lý, ngôi nhà vẫn tạo cảm giác rộng rãi, thoáng đãng. Xem qua các mẫu nhà 9×7 bên dưới để có thêm cho gia đình một ý tưởng về không gian sống lý tưởng, phù hợp với nhu cầu và sở thích riêng. Cùng Xây dựng Nhất Tín đón xem!
>> Xem thêm: Nhà phố mặt tiền 9m
Tóm tắt nội dung
- 1 Thiết kế nhà mặt tiền 9m sâu 7m 2 tầng tum có gara để xe bên hông nhà
- 2 Mẫu nhà 9×7 1 tầng đẹp chữ L với kiến trúc mái Nhật màu đỏ hút mắt
- 3 Thiết kế nhà ngang 9m dài 7m 4 tầng có mặt tiền sử dụng cửa kính Hiện Đại
- 4 Nhà ống đẹp 9x7m mái bằng đơn giản với gam màu trắng – xám chủ đạo
- 5 Biệt thự vườn mini có 3 phòng ngủ diện tích 9x7m tại Hà Tĩnh
- 6 Nhà đẹp 3 tầng mặt tiền 9m dài 7m với kiến trúc mái lệch độc đáo
- 7 Nhà cấp 4 gác lửng ngang 9m dài 7m tối ưu công năng với đường nét kiến trúc tinh tế
- 8 Tham khảo bản vẽ bố trí công năng nhà 9×7 với bố cục không gian khoa học
- 9 Xem thêm bảng ngân sách trọn gói xây dựng nhà 9x7m sát thực tế lên đến 95%
Thiết kế nhà mặt tiền 9m sâu 7m 2 tầng tum có gara để xe bên hông nhà
Mẫu nhà 2 tầng có tum với mặt tiền 9m sâu 7m không chỉ mang đến vẻ đẹp hiện đại mà còn tối ưu công năng sử dụng. Tầng tum được thiết kế khéo léo, giúp mở rộng diện tích sinh hoạt, đồng thời tăng cường sự thông thoáng và lấy sáng tự nhiên. Thiết kế gara để xe bên hông nhà tạo sự thuận tiện trong di chuyển, giữ không gian mặt tiền gọn gàng hơn. Đáng chú ý là lớp ốp đá vàng cao cấp làm nổi bật kiến trúc tổng thể, mang đến vẻ sang trọng và bền vững theo thời gian.



Mẫu nhà 9×7 1 tầng đẹp chữ L với kiến trúc mái Nhật màu đỏ hút mắt
Mẫu nhà 9×7 1 tầng chữ L không chỉ nổi bật với thiết kế hài hòa mà còn tạo điểm nhấn ấn tượng, giúp tổng thể kiến trúc trở nên cuốn hút hơn. Kiểu dáng chữ L giúp tối ưu không gian, mở ra khoảng sân rộng rãi, mang lại sự thoáng đãng và tiện nghi cho gia đình. Song song với đó, mái Nhật màu đỏ nổi bật không chỉ tạo vẻ đẹp sang trọng mà còn giúp ngôi nhà thêm ấm cúng và gần gũi. Kết hợp với tường ốp gạch mộc tinh tế, công trình vừa thẩm mỹ vừa bền vững theo thời gian, mang đến không gian sống lý tưởng.



Thiết kế nhà ngang 9m dài 7m 4 tầng có mặt tiền sử dụng cửa kính Hiện Đại
Mẫu nhà 4 tầng với mặt tiền 9m dài 7m mang phong cách Hiện Đại, tối ưu không gian sống. Hệ cửa kính lớn không chỉ giúp tận dụng ánh sáng tự nhiên mà còn tạo cảm giác rộng rãi, thoáng đãng cho toàn bộ ngôi nhà. Kết hợp với đó là tông màu gỗ ấm áp, mẫu nhà thêm phần sang trọng và gần gũi mang đến vẻ đẹp tinh tế. Kiến trúc thông minh giúp tối ưu diện tích sử dụng, đảm bảo sự tiện nghi cho mọi thành viên trong gia đình.



Nhà ống đẹp 9x7m mái bằng đơn giản với gam màu trắng – xám chủ đạo
Mẫu nhà ống 9x7m được thiết kế theo phong cách hiện đại với mái bằng tối giản, mang đến vẻ đẹp thanh lịch và tinh tế. Gam màu trắng – xám chủ đạo tạo cảm giác trang nhã, đồng thời giúp tổng thể kiến trúc thêm sang trọng. Không chỉ vậy, mẫu nhà được kết hợp hệ cửa kính thông tầng không chỉ tăng cường ánh sáng tự nhiên mà còn giúp không gian bên trong luôn thoáng đãng và rộng rãi. Sự kết hợp hài hòa giữa đường nét kiến trúc và vật liệu cao cấp tạo nên một không gian sống tiện nghi và đầy cuốn hút.


Biệt thự vườn mini có 3 phòng ngủ diện tích 9x7m tại Hà Tĩnh
Mẫu biệt thự vườn mini 9x7m ghi dấu ấn với thiết kế hài hòa giữa vẻ đẹp sang trọng và tiện nghi. Hệ cột được ốp gạch trang trí không chỉ tạo điểm nhấn vững chắc mà còn làm tăng tính thẩm mỹ cho tổng thể công trình. Đặc biệt, mẫu nhà có ban công rộng rãi với mái che thoáng đãng, mang đến không gian thư giãn lý tưởng. Nhờ vậy mà không gian sống luôn ấm cúng và đầy cuốn hút.



Nhà đẹp 3 tầng mặt tiền 9m dài 7m với kiến trúc mái lệch độc đáo
Mẫu nhà 3 tầng thu hút với thiết kế mái lệch ấn tượng, tạo nên nét phá cách đầy cá tính. Sự kết hợp giữa bê tông vững chắc và gỗ tự nhiên không chỉ giảm bớt sự cứng nhắc mà còn mang lại cảm giác ấm cúng, hài hòa. Các đường nét kiến trúc được chăm chút tỉ mỉ giúp tổng thể ngôi nhà trở nên sang trọng và tinh tế. Bố cục chặt chẽ cùng sự kết hợp hài hòa giữa màu sắc, vật liệu và hình khối mang đến một không gian sống tiện nghi và đầy tính thẩm mỹ.



Nhà cấp 4 gác lửng ngang 9m dài 7m tối ưu công năng với đường nét kiến trúc tinh tế
Mẫu nhà cấp 4 có gác lửng 9x7m được thiết kế tối ưu, vừa mở rộng không gian sử dụng vừa đảm bảo sự thông thoáng cho ngôi nhà. Gác lửng giúp tận dụng tối đa diện tích, phù hợp với gia đình muốn có thêm không gian sinh hoạt mà vẫn giữ được sự gọn gàng. Kiến trúc ngôi nhà được trau chuốt với những đường nét tinh xảo kết hợp hài hòa cùng các chi tiết trang trí đẹp mắt. Tổng thể ngôi nhà toát lên vẻ hiện đại, sang trọng mang đến một không gian sống tiện nghi và đầy cảm hứng.



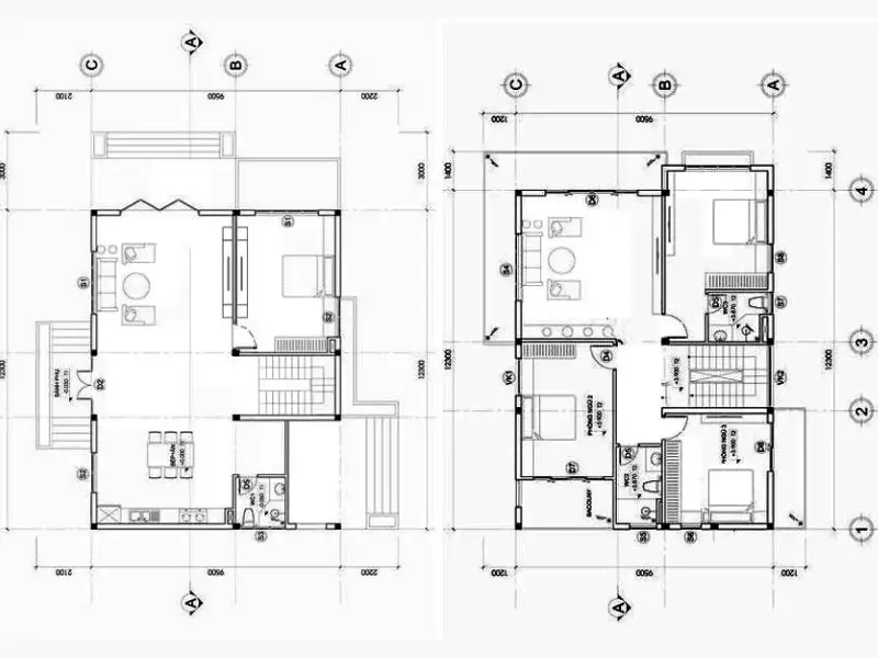
Tham khảo bản vẽ bố trí công năng nhà 9×7 với bố cục không gian khoa học




Xem thêm bảng ngân sách trọn gói xây dựng nhà 9x7m sát thực tế lên đến 95%
| Loại hình nhà ở | Khoảng chi phí |
| Xây dựng nhà 9x7m 1 tầng | 403.200.000đ đến 491.400.000đ |
| Nhà ống đẹp 9x7m 2 tầng | 844.200.000đ đến 1.070.000.000đ |
| Thiết kế nhà ngang 9m dài 7m 3 tầng | 1.270.000.000đ đến 1.610.000.000đ |
| Nhà cấp 4 gác lửng ngang 9m dài 7m | 633.150.000đ đến 746.550.000đ |
| Phối cảnh nhà phố 9x7m 4 tầng | 1.690.000.000đ đến 2.140.000.000đ |
>> Xem thêm: Báo giá xây dựng chìa khóa trao tay
Nhất Tín chuyên thiết kế nhà mặt tiền 9m sâu 7m với phong cách hiện đại, tối ưu công năng và đảm bảo tính thẩm mỹ cao. Chúng tôi luôn lắng nghe nhu cầu của khách hàng để tạo nên không gian sống tiện nghi, sang trọng và phù hợp với xu hướng. Nếu cần hỗ trợ thêm thông tin về thiết kế thi công nhà 9x7m, hãy liên hệ ngay Hotline: 0988607705 / Zalo: 0911062189 để được tư vấn và hiện thực hóa ngôi nhà mơ ước của bạn.
> Tham khảo: Mẫu nhà ngang 9m dài 5m
KS Tran Nghia (xaydungnhattin.com)










