Nhà ở kết hợp kinh doanh trở thành lựa chọn lý tưởng cho những gia chủ muốn tối ưu hóa diện tích và tăng thêm nguồn thu ngay tại chỗ. Thiết kế này cho phép bạn vừa duy trì sự riêng tư của không gian sinh hoạt, vừa bố trí một khu vực kinh doanh thuận tiện và hiệu quả. Nếu bạn đang cân nhắc mô hình này và muốn hiểu rõ hơn về đặc điểm cũng như các lưu ý quan trọng, hãy cùng Nhất Tín khám phá trong phần nội dung bên dưới.
>> Tham khảo: Thiết Kế Nhà Đẹp – Giải Pháp Không Gian Sống Lý Tưởng
Tóm tắt nội dung
- 1 Nhà ở kết hợp kinh doanh là gì? Đặc điểm của mẫu nhà kết hợp kinh doanh
- 2 Các mẫu nhà ở kết hợp kinh doanh theo quy mô và công năng sử dụng
- 2.1 Mẫu nhà cấp 4 vừa ở vừa kinh doanh riêng biệt
- 2.2 Mẫu thiết kế nhà ở kết hợp kinh doanh với quy mô 2 tầng tối ưu diện tích
- 2.3 Thiết kế nhà vừa ở vừa cho thuê kinh doanh 3 tầng đảm bảo sự riêng tư
- 2.4 Thiết kế nhà vừa ở vừa cho thuê quy mô 4 – 6 tầng
- 2.5 Mẫu nhà kết hợp kinh doanh có gác lửng dễ dàng điều chỉnh quy mô khi cần
- 2.6 Mẫu nhà shophouse đẹp quy mô lớn với đa dạng loại hình kinh doanh
- 3 Mẫu nhà kinh doanh theo các mô hình phổ biến hiện nay
- 3.1 Thiết kế nhà góc 2 mặt tiền làm Showroom trưng bày sản phẩm
- 3.2 Thiết kế nhà kinh doanh spa, salon tóc, tattoo
- 3.3 Mẫu nhà kinh doanh quán cafe, trà sữa
- 3.4 Top những mẫu nhà kinh doanh lưu trú (khách sạn, nhà nghỉ, nhà trọ, căn hộ dịch vụ) tăng nguồn thu nhập thụ động
- 3.5 Tòa văn phòng với thiết kế tối ưu cho doanh nghiệp
- 3.6 Mẫu kiến trúc kinh doanh nhà hàng mới với không gian mở ấn tượng
- 3.7 Thiết kế nhà kinh doanh đẹp phù hợp với showroom thời trang
- 3.8 Mẫu nhà kinh doanh nhà sách, văn phòng phẩm, siêu thị mini tiện lợi
- 3.9 Mẫu thiết kế kinh doanh Showroom nội thất, decor thu hút khách hàng
- 3.10 Thiết kế gian hàng kinh doanh cửa hàng điện thoại, điện tử
- 4 Chủ đầu tư cần chú ý những gì khi thi công các mẫu nhà để kinh doanh
- 5 Báo giá thiết kế thi công mẫu nhà ở kết hợp kinh doanh tại Xây dựng Nhất Tín
Nhà ở kết hợp kinh doanh là gì? Đặc điểm của mẫu nhà kết hợp kinh doanh
Nhà ở kết hợp kinh doanh là loại hình nhà vừa dùng để sinh hoạt gia đình, vừa phục vụ hoạt động buôn bán hoặc dịch vụ. Không gian được bố trí hợp lý để đảm bảo sự thuận tiện trong kinh doanh và sự riêng tư trong sinh hoạt hằng ngày.
Tùy theo mục đích khai thác và quy mô kinh doanh, công trình có thể được thiết kế với khu vực kinh doanh bố trí tách biệt ở tầng trệt hoặc phát triển theo dạng nhà thương mại nhỏ. Việc phân chia công năng rõ ràng giúp quá trình vận hành diễn ra thuận lợi, đồng thời tạo điều kiện để gia chủ linh hoạt điều chỉnh không gian khi nhu cầu sử dụng thay đổi theo thời gian. Dưới đây là đặc điểm chi tiết của 2 loại hình này:
| Đặc điểm | Nhà kết hợp kinh doanh
(Shophouse) |
Mẫu nhà kinh doanh |
| Mục đích sử dụng | Kết hợp hai chức năng: ở và kinh doanh. | Phục vụ hoàn toàn cho hoạt động thương mại, dịch vụ, văn phòng, cho thuê,… |
| Thiết kế không gian | Tách biệt rõ khu kinh doanh và khu sinh hoạt gia đình. | Không gian mở, ít vách ngăn, tối ưu cho hoạt động kinh doanh. |
| Bố trí tiện ích | Đầy đủ tiện ích sinh hoạt cho gia đình cũng như tiện ích phục vụ kinh doanh. | Tập trung tiện ích thương mại: thang máy, PCCC, điều hòa trung tâm, sảnh lễ tân. |
| Lối đi | Thường có lối đi riêng cho khu ở và kinh doanh để đảm bảo riêng tư. | Một lối vào chung, thường là sảnh lớn. |
| Vị trí | Mặt phố khu dân cư, khu đô thị mới. | Khu trung tâm, khu phức hợp, khu dịch vụ – thương mại. |
| Tính linh hoạt | Dễ chuyển đổi thành nhà kinh doanh thuần túy. | Khó chuyển đổi sang nhà ở do hạn chế công năng và pháp lý. |

Các mẫu nhà ở kết hợp kinh doanh theo quy mô và công năng sử dụng
Mẫu nhà cấp 4 vừa ở vừa kinh doanh riêng biệt
Mẫu nhà cấp 4 kết hợp kinh doanh được nhiều gia đình lựa chọn nhờ khả năng tổ chức không gian ở và không gian kinh doanh một cách rõ ràng. Thiết kế thường ưu tiên không gian kinh doanh ở mặt tiền với lối đi riêng, tạo sự thuận tiện khi tiếp khách và trưng bày sản phẩm. Trong khi đó, không gian ở được bố trí tách biệt phía sau hoặc sang bên hông, đảm bảo sự yên tĩnh và riêng tư cho sinh hoạt gia đình. Nhờ cách sắp xếp hợp lý, ngôi nhà đáp ứng nhu cầu sinh hoạt, vừa tối ưu hiệu quả kinh doanh.



>> Xem thêm: Giá xây dựng nhà cấp 4 trọn gói là bao nhiêu?
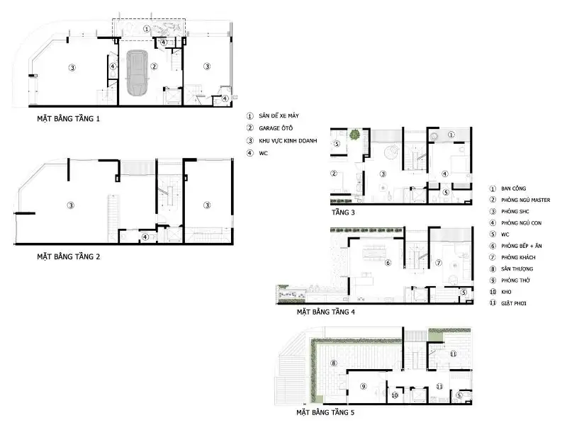
Mẫu thiết kế nhà ở kết hợp kinh doanh với quy mô 2 tầng tối ưu diện tích
Nhà ở kết hợp kinh doanh 2 tầng mang đến lợi thế phân tầng công năng, vừa tối ưu kinh doanh vừa đảm bảo không gian sinh hoạt riêng tư cho gia đình. Nhờ đó, gia chủ có thể linh hoạt lựa chọn phương án bố trí phù hợp với nhu cầu sử dụng và khai thác lâu dài.
– Khu kinh doanh: Có thể bố trí độc lập phía trước, bên hông hoặc toàn bộ tầng 1; ưu tiên không gian mở, thuận tiện trưng bày sản phẩm và tiếp khách.
– Khu sinh hoạt gia đình: Sắp xếp tại tầng 2 hoặc khối nhà phía sau, bao gồm phòng khách, bếp và phòng ngủ, đảm bảo sự yên tĩnh và riêng tư cho sinh hoạt hằng ngày.




>> Tham khảo: Chi phí xây dựng nhà 2 tầng mới nhất
Thiết kế nhà vừa ở vừa cho thuê kinh doanh 3 tầng đảm bảo sự riêng tư
Nhà 3 tầng kết hợp sinh hoạt và kinh doanh tạo cơ hội phân chia các khu vực theo từng tầng, giúp gia chủ khai thác tối đa diện tích và linh hoạt sắp xếp không gian theo nhu cầu sử dụng.
– Khu kinh doanh/cho thuê: Có thể bố trí khu vực riêng phía trước nhà hoặc tại tầng 1 hoặc cả tầng 1 và tầng 2; thiết kế mở, tận dụng mặt tiền, thuận tiện vận hành và tiếp đón khách hàng.
– Khu sinh hoạt gia đình: Sắp xếp tại các tầng phía trên hoặc tòa riêng phía sau, đầy đủ tiện nghi và độc lập với khu kinh doanh.





>> Xem thêm: Chi phí xây nhà 3 tầng trọn gói
Thiết kế nhà vừa ở vừa cho thuê quy mô 4 – 6 tầng
Nhà 4–6 tầng vừa ở vừa cho thuê đang trở thành lựa chọn phổ biến tại các khu đô thị đông dân nhờ khả năng khai thác hiệu quả diện tích sử dụng. Thiết kế thường tách bạch không gian sinh hoạt của gia đình và khu vực cho thuê, đảm bảo sự riêng tư nhưng vẫn thuận tiện quản lý. Các tầng cho thuê có thể linh hoạt bố trí làm phòng trọ cao cấp, căn hộ mini hoặc văn phòng nhỏ, đáp ứng đa dạng nhu cầu thị trường. Nhờ đó, mô hình này không chỉ phù hợp để an cư lâu dài mà còn mang lại nguồn thu ổn định và bền vững cho gia chủ.



Mẫu nhà kết hợp kinh doanh có gác lửng dễ dàng điều chỉnh quy mô khi cần
Nhà ở kết hợp kinh doanh với thiết kế gác lửng cho phép tổ chức không gian theo nhiều lớp, giúp phân tách hợp lý giữa hoạt động buôn bán và sinh hoạt. Tầng trệt đóng vai trò là khu kinh doanh chính, được bố trí thông thoáng để tối ưu mặt bằng và trưng bày sản phẩm. Phần gác lửng phía trên đảm nhiệm các chức năng hỗ trợ như làm việc, lưu trữ hoặc nghỉ ngơi tạm thời, qua đó giảm áp lực sử dụng cho tầng trệt. Nhờ cách bố trí này, ngôi nhà vừa đảm bảo hiệu quả kinh doanh, vừa linh hoạt trong việc điều chỉnh công năng khi quy mô sử dụng thay đổi trong tương lai.





>> Tham khảo: Hướng dẫn tính chi phí xây nhà gác lửng A-Z
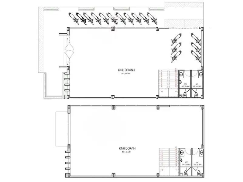
Mẫu nhà shophouse đẹp quy mô lớn với đa dạng loại hình kinh doanh
Mẫu nhà shophouse quy mô lớn tại các khu đô thị mới thường được thiết kế đồng bộ mang lại vẻ ngoài sang trọng và chuyên nghiệp. Thiết kế ưu tiên tối đa hóa diện tích kinh doanh, dễ dàng phục vụ nhiều loại hình như cửa hàng, văn phòng, showroom hay quán cà phê, đáp ứng linh hoạt nhu cầu của chủ đầu tư. Với vị trí đắc địa trên các trục đường chính, vỉa hè rộng và mật độ giao thông cao, shophouse luôn được đánh giá cao về tiềm năng khai thác và khả năng tiếp cận khách hàng.




Mẫu nhà kinh doanh theo các mô hình phổ biến hiện nay
Thiết kế nhà góc 2 mặt tiền làm Showroom trưng bày sản phẩm
Thiết kế nhà góc 2 mặt tiền làm showroom trưng bày mang lại lợi thế nổi bật về mặt thương mại. Công trình thường sử dụng hệ kính lớn ở cả mặt tiền và mặt hông, giúp mở rộng tầm nhìn và tạo cảm giác không gian thông thoáng. Nhờ thiết kế mở, ánh sáng tự nhiên được khai thác hiệu quả và phân bổ hài hòa trong toàn bộ không gian, góp phần làm nổi bật sản phẩm trưng bày. Cách tổ chức này giúp showroom tạo ấn tượng rõ ràng và thu hút khách hàng ngay từ cái nhìn đầu tiên.





Thiết kế nhà kinh doanh spa, salon tóc, tattoo
Thiết kế không gian kinh doanh cho spa, salon tóc hay tattoo cần được định hướng rõ ràng ngay từ đầu để phù hợp đặc thù dịch vụ và đối tượng khách hàng. Cách bố trí không gian nên ưu tiên sự gọn gàng, riêng tư và thuận tiện cho quá trình vận hành. Mặt tiền và nội thất cần thể hiện phong cách đồng nhất, tạo cảm giác chuyên nghiệp và dễ nhận diện. Khi được thiết kế bài bản, không gian kinh doanh sẽ góp phần nâng cao trải nghiệm và gia tăng giá trị thương hiệu.



Mẫu nhà kinh doanh quán cafe, trà sữa
Mẫu nhà kinh doanh quán cafe, trà sữa thường được thiết kế với mặt tiền mở, sử dụng kính lớn kết hợp bảng hiệu rõ ràng nhằm tăng khả năng thu hút và nhận diện thương hiệu. Tầng trệt bố trí quầy order và khu phục vụ chính, thuận tiện cho việc đón khách và vận hành hằng ngày. Các tầng trên và sân thượng được khai thác linh hoạt làm khu phục vụ bổ sung hoặc phát triển mô hình rooftop ngoài trời, góp phần đa dạng trải nghiệm và nâng cao hiệu quả kinh doanh.




Top những mẫu nhà kinh doanh lưu trú (khách sạn, nhà nghỉ, nhà trọ, căn hộ dịch vụ) tăng nguồn thu nhập thụ động
Khi nhu cầu lưu trú ngày càng gia tăng, các mô hình nhà kinh doanh cho thuê không chỉ đáp ứng chức năng ở mà còn trở thành giải pháp tạo nguồn thu hiệu quả. Từ những công trình quy mô nhỏ đến mô hình khai thác lớn, thiết kế thường được định hướng linh hoạt để phù hợp với nhiều nhóm khách hàng khác nhau. Yếu tố then chốt nằm ở việc tổ chức không gian hợp lý, công năng gọn gàng, dễ vận hành và tận dụng tối đa diện tích sử dụng. Nhờ đó, mỗi công trình vừa đáp ứng nhu cầu lưu trú, vừa góp phần gia tăng giá trị đầu tư và duy trì nguồn thu ổn định theo thời gian.







>> Xem thêm:
Tòa văn phòng với thiết kế tối ưu cho doanh nghiệp
Thiết kế tòa văn phòng tối ưu cho doanh nghiệp không chỉ chú trọng yếu tố thẩm mỹ mà còn thể hiện rõ bản sắc thương hiệu trong từng không gian sử dụng. Trên nền tảng đó, các mẫu thiết kế hiện nay đề cao tính linh hoạt trong tổ chức mặt bằng, giúp các bộ phận phối hợp nhịp nhàng và nâng cao hiệu suất vận hành. Đồng thời, việc bố trí nội thất khoa học tạo điều kiện để doanh nghiệp dễ dàng điều chỉnh không gian khi mở rộng quy mô hoặc tái cấu trúc nhân sự theo từng giai đoạn phát triển.






Mẫu kiến trúc kinh doanh nhà hàng mới với không gian mở ấn tượng
Trong bối cảnh kinh doanh ẩm thực ngày càng phát triển, các mẫu nhà hàng với thiết kế thời thượng đang trở thành xu hướng được nhiều chủ đầu tư ưu tiên. Thiết kế thường tập trung nâng cao trải nghiệm ẩm thực cho thực khách. Thay vì bị giới hạn bởi tường khép kín, nhiều công trình ưu tiên không gian mở, sử dụng cửa kính lớn, đưa cây xanh vào nội thất hoặc bố trí khu vực ngoài trời, tạo cảm giác thoáng đãng và gần gũi với thiên nhiên. Nhờ vậy, mỗi không gian nhà hàng vừa thư thái vừa để lại ấn tượng khó quên cho khách.




Thiết kế nhà kinh doanh đẹp phù hợp với showroom thời trang
Thiết kế showroom thời trang tạo ấn tượng ngay từ mặt tiền nhờ khai thác tối đa không gian mở và hệ cửa kính lớn. Giải pháp này giúp sản phẩm bên trong được chiếu sáng rõ ràng, dễ dàng thu hút ánh nhìn từ bên ngoài. Điểm nhấn của showroom nằm ở sự kết hợp hài hòa giữa ánh sáng tự nhiên và hệ đèn chiếu chuyên nghiệp, làm nổi bật chất liệu, màu sắc và từng chi tiết thiết kế. Nhờ đó, showroom không chỉ là nơi trưng bày mà còn mang đến trải nghiệm mua sắm sinh động và đầy cảm hứng.




Mẫu nhà kinh doanh nhà sách, văn phòng phẩm, siêu thị mini tiện lợi
Thiết kế nhà kinh doanh nhà sách, văn phòng phẩm và siêu thị mini thường ưu tiên mặt tiền thông thoáng, giúp công trình dễ nhận diện và thu hút khách hàng. Tổng thể mẫu nhà kinh doanh được xử lý gọn gàng, sử dụng cửa kính lớn kết hợp bảng hiệu rõ ràng nhằm tăng khả năng quan sát không gian bên trong từ bên ngoài. Nhờ cách xử lý mặt đứng đơn giản cùng lối vào rộng rãi góp phần tạo ấn tượng chuyên nghiệp và nâng cao hiệu quả khai thác kinh doanh.






Mẫu thiết kế kinh doanh Showroom nội thất, decor thu hút khách hàng
Mặt tiền showroom nội thất và đồ decor được ví như một khung tranh khổng lồ, nơi các set nội thất ấn tượng được phô bày trọn vẹn qua hệ cửa kính lớn. Không gian này không chỉ đóng vai trò trưng bày sản phẩm mà còn truyền tải rõ phong cách sống và tinh thần thiết kế mà thương hiệu hướng tới. Nhờ được chăm chút kỹ lưỡng, mặt tiền tạo nên cảm giác sang trọng, thu hút và mời gọi khách hàng bước vào trải nghiệm.





Thiết kế gian hàng kinh doanh cửa hàng điện thoại, điện tử
Thiết kế gian hàng kinh doanh điện thoại và thiết bị điện tử thường đặt trọng tâm vào mặt tiền nhằm thể hiện rõ tinh thần công nghệ và sự chuyên nghiệp của thương hiệu. Khu vực phía trước được tổ chức gọn gàng, kết hợp logo, bảng hiệu nổi bật cùng mảng kính lớn để tạo điểm nhấn và tăng khả năng nhận diện. Cách bố trí rõ ràng, ánh sáng hợp lý và lối vào thông thoáng giúp khơi gợi nhu cầu, mời gọi khách hàng.




Chủ đầu tư cần chú ý những gì khi thi công các mẫu nhà để kinh doanh
Để một ngôi nhà kinh doanh vận hành hiệu quả và sinh lời bền vững, chủ đầu tư cần chú trọng hàng loạt yếu tố quan trọng ngay từ giai đoạn thiết kế – thi công, trong đó nổi bật nhất gồm:
- Phong thủy: Chú trọng bố trí lối vào, mặt tiền và dòng di chuyển bên trong hợp lý, tạo cảm giác thuận lợi cho việc đón khách và kinh doanh.
- Loại hình kinh doanh: Xác định rõ mô hình kinh doanh để lựa chọn phong cách thiết kế và cách tổ chức không gian phù hợp.
- Tính linh hoạt tương lai: Thiết kế cần dễ cải tạo, chuyển đổi công năng khi thay đổi mô hình kinh doanh, hạn chế phát sinh chi phí lớn.
- Tiện ích cho khách và nhân viên: Bố trí đầy đủ khu vệ sinh, khu để xe và không gian nghỉ ngơi cho nhân viên, đảm bảo vận hành thuận tiện.
- Chất lượng thi công và vật liệu: Ưu tiên vật liệu bền, dễ bảo trì, chịu tải tốt; đồng thời chú trọng kết cấu, chống thấm, chống nóng và cách âm khi cần thiết.
- Hệ thống kỹ thuật: Đảm bảo hệ thống điện, nước, chiếu sáng, điều hòa và phòng cháy chữa cháy đáp ứng nhu cầu sử dụng và an toàn.
- Phù hợp pháp lý: Kiểm tra đầy đủ quy hoạch, giấy phép xây dựng và các quy định liên quan đến kinh doanh và phòng cháy chữa cháy.
- Chi phí và tiến độ: Lập dự toán chi tiết, có phương án dự phòng rủi ro và giám sát thi công chặt chẽ để đảm bảo tiến độ và chất lượng công trình.
Báo giá thiết kế thi công mẫu nhà ở kết hợp kinh doanh tại Xây dựng Nhất Tín
Dưới đây là chi phí các hình thức xây dựng từ phần thô, hoàn thiện đến trọn gói mà Nhất Tín cung cấp, giúp khách hàng có cái nhìn rõ ràng và dễ dàng lựa chọn phương án phù hợp với nhu cầu và ngân sách.
| Loại Hình Xây dựng | Gói Trung Bình | Đơn giá gói Khá | Đơn giá gói Tốt |
| Nhà ở kết hợp kinh doanh (loại hình nhà cấp 4) | 4.750.000đ – 5.200.000đ/m2 | 4.850.000đ – 5.600.000đ/m2 | 5.550.000đ – 5.900.000đ/m2 |
| Nhà ở kết hợp kinh doanh (loại hình nhà phố 1-2 mặt tiền) | 4.850.000đ – 5.550.000đ/m2 | 5.000.000đ – 5.750.000đ/m2 | 5.600.000đ – 6.200.000đ/m2 |
| Nhà Hàng, Khách sạn, Văn phòng, Nhà trọ… | 4.700.000đ – 4.950.000đ/m2 | 5.400.000đ – 5.700.000đ/m2 | 5.600.000đ – 5.900.000đ/m2 |
| Tòa văn phòng (quy mô 6-8 tầng) | 5.300.000đ – 5.550.000đ/m2 | 5.400.000đ – 5.750.000đ/m2 | 5.500.000đ – 6.200.000đ/m2 |
| Siêu thị, Showroom lớn Hiện Đại (đường nét đơn giản) | 5.400.000đ – 5.650.000đ/m2 | 5.600.000đ – 5.950.000đ/m2 | 5.700.000đ – 6.550.000đ/m2 |
Tham khảo: Giá xây dựng nhà chìa khóa trao tay chi tiết từng loại hình
Những mẫu nhà ở kết hợp kinh doanh đang ngày càng được nhiều gia chủ lựa chọn nhờ khả năng tối ưu không gian sinh hoạt và tạo thêm nguồn thu bền vững. Để sở hữu thiết kế hiệu quả, thẩm mỹ và kiểm soát tốt chi phí đầu tư, quý khách có thể đồng hành cùng Xây dựng Nhất Tín, đội ngũ của chúng tôi luôn sẵn sàng tư vấn và đưa ra giải pháp phù hợp nhất cho từng nhu cầu thực tế. Liên hệ hotline: 0988 607 705 để được hỗ trợ nhanh chóng.
KS Tran Nghia (xaydungnhattin.com)










