Sở hữu một mẫu thiết kế nhà phố 9x9m đẹp, hài hòa và tiện nghi là mong muốn của nhiều gia chủ. Trong nội dung dưới đây, Nhất Tín mang đến những giải pháp thiết kế nhà 9x9m tinh tế, tối ưu công năng và tạo dấu ấn trong từng đường nét. Mỗi không gian đều được sắp xếp hợp lý, không chỉ đảm bảo tính thẩm mỹ mà còn đáp ứng đầy đủ nhu cầu sinh hoạt. Cùng đón xem!
>> Xem thêm: Những mẫu nhà mặt tiền 9m đẹp
Tóm tắt nội dung
- 1 Thiết kế nhà phố 9x9m Tân Cổ Điển có hầm nổi để xe tiện nghi
- 2 Mẫu nhà 9mx9m 3 tầng với kiến trúc mái Nhật Hiện Đại
- 3 Mẫu nhà 9×9 đẹp có gác lửng với khuôn viên sân vườn thoáng đãng
- 4 Mẫu nhà cấp 4 9×9 2 mặt tiền nổi bật với đường phào chỉ tinh tế
- 5 Nhà phố 9×9 3 phòng ngủ Hiện Đại với gam màu trắng – nâu tương phản
- 6 Nhà phố 9×9 2 tầng mái Thái ấn tượng với thiết kế sân thượng độc đáo
- 7 Mẫu thiết kế nhà 9x9m 1 tầng với thiết kế mái bằng tinh tế
- 8 Mẫu nhà vuông 9×9 với lối bố trí kiến trúc độc đáo
- 9 Bản vẽ mặt bằng công năng nhà ống mặt tiền 9m sâu 9m
- 10 Bảng dự tính chi phí xây nhà 9x9m phần thô và trọn gói mới nhất
Thiết kế nhà phố 9x9m Tân Cổ Điển có hầm nổi để xe tiện nghi
Mang phong cách Tân Cổ Điển sang trọng, mẫu nhà phố 9x9m nổi bật với đường nét tinh tế và bố cục hài hòa. Điểm nhấn nổi bật là hầm nổi để xe không chỉ giúp tối ưu diện tích mà còn đảm bảo sự thuận tiện trong sinh hoạt. Không chỉ vậy, mặt tiền nhà được chăm chút tỉ mỉ với phào chỉ hoa văn tinh xảo, tạo điểm nhấn đẳng cấp và cuốn hút. Sự kết hợp giữa kiến trúc Cổ Điển và tiện ích hiện đại mang đến một không gian sống lý tưởng.



Mẫu nhà 9mx9m 3 tầng với kiến trúc mái Nhật Hiện Đại
Mẫu nhà 9x9m 3 tầng gây ấn tượng với kiến trúc Hiện Đại kết hợp mái Nhật thanh lịch, tạo nên tổng thể hài hòa và tinh tế. Điểm nhấn đặc biệt là mặt tiền ốp đá vàng sang trọng, không chỉ nâng tầm thẩm mỹ mà còn đảm bảo độ bền vững theo thời gian. Sự kết hợp khéo léo giữa đường nét hiện đại và chi tiết mái Nhật mang đến vẻ đẹp cuốn hút, giúp ngôi nhà trở thành không gian sống lý tưởng, đáp ứng cả yếu tố thẩm mỹ lẫn công năng cho gia chủ.



Mẫu nhà 9×9 đẹp có gác lửng với khuôn viên sân vườn thoáng đãng
Mẫu nhà 9x9m có gác lửng mang đến không gian sống rộng rãi, tiện nghi và gần gũi với thiên nhiên. Điểm nhấn đặc biệt là khuôn viên sân vườn thoáng mát, giúp gia chủ tận hưởng bầu không khí trong lành ngay tại nhà. Bên cạnh đó, thiết kế cửa kính hình vòm lớn tạo nét mềm mại, tinh tế cho kiến trúc giúp tận dụng tối đa ánh sáng tự nhiên. Sự kết hợp hài hòa giữa kiến trúc và cảnh quan tạo nên một không gian sống lý tưởng, thư thái.



Mẫu nhà cấp 4 9×9 2 mặt tiền nổi bật với đường phào chỉ tinh tế
Mẫu nhà cấp 4 9x9m với thiết kế 2 mặt tiền gây ấn tượng nhờ những đường phào chỉ tinh tế, tạo điểm nhấn thẩm mỹ cho mặt tiền ngôi nhà. Kiến trúc ngôi nhà hài hòa kết hợp cùng hệ cửa gỗ sang trọng không chỉ làm tăng vẻ đẹp cổ điển mà còn mang lại không gian ấm cúng, gần gũi. Sự kết hợp giữa đường nét tinh xảo và chất liệu cao cấp mang đến một không gian sống vừa sang trọng vừa bền vững theo thời gian.



Nhà phố 9×9 3 phòng ngủ Hiện Đại với gam màu trắng – nâu tương phản
Mẫu nhà phố 9x9m được thiết kế theo phong cách Hiện Đại, tối ưu công năng với 3 phòng ngủ tiện nghi, đáp ứng nhu cầu sinh hoạt của gia đình. Gam màu trắng – nâu tương phản tạo nên vẻ đẹp tinh tế, sang trọng, đồng thời làm nổi bật các đường nét kiến trúc. Đặc biệt, ngôi nhà được thiết kế mái che nhựa poly được bố trí hợp lý, vừa giúp che nắng, mưa hiệu quả vừa tạo không gian thông thoáng, tràn ngập ánh sáng tự nhiên.



Nhà phố 9×9 2 tầng mái Thái ấn tượng với thiết kế sân thượng độc đáo
Mẫu nhà phố 9x9m 2 tầng nổi bật với hệ mái Thái bề thế, tạo nên vẻ đẹp sang trọng và hài hòa. Điểm nhấn đặc biệt của ngôi nhà là sân thượng rộng rãi, được thiết kế tinh tế, mang đến không gian thư giãn lý tưởng cho gia đình. Ngoài ra, các mảng gạch kiến trúc được bố trí khéo léo, giúp mặt tiền thêm cuốn hút và ấn tượng. Thiết kế tổng thể không chỉ đề cao tính thẩm mỹ mà còn tối ưu công năng, tạo nên một không gian sống tiện nghi và thoải mái.


Mẫu thiết kế nhà 9x9m 1 tầng với thiết kế mái bằng tinh tế
Mẫu nhà 9x9m 1 tầng sở hữu thiết kế mái bằng tinh tế, mang lại vẻ đẹp thanh lịch và vững chắc. Sự kết hợp giữa tông màu trắng trang nhã và đường chỉ xanh tinh tế giúp mặt tiền thêm phần nổi bật và cuốn hút cuốn hút. Bên cạnh đó, hệ thống cửa kính lớn không chỉ tăng cường ánh sáng tự nhiên mang đến cảm giác thông thoáng và thoải mái cho nội thất bên trong. Cùng Nhất Tín xem qua mẫu thiết kế nhà mái bằng bên dưới nhé!



Mẫu nhà vuông 9×9 với lối bố trí kiến trúc độc đáo
Mẫu nhà vuông 9×9 thu hút ánh nhìn với lối bố trí kiến trúc sáng tạo, vừa đảm bảo tính thẩm mỹ vừa mang đến không gian sống tiện nghi. Sự kết hợp hài hòa giữa tông màu ấm giúp ngôi nhà trở nên gần gũi, ấm cúng nhưng vẫn toát lên nét sang trọng, hiện đại. Đặc biệt, ngôi nhà được thiết kế với lối cầu thang riêng dẫn lên tầng 2, tạo sự thuận tiện và riêng tư cho không gian sinh hoạt.


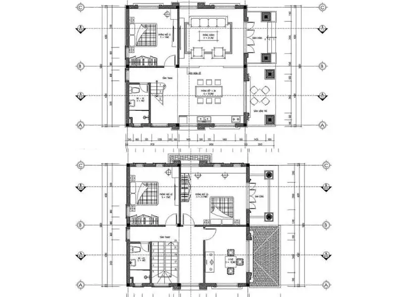
Bản vẽ mặt bằng công năng nhà ống mặt tiền 9m sâu 9m



Bảng dự tính chi phí xây nhà 9x9m phần thô và trọn gói mới nhất
Để giúp bạn hiểu rõ hơn và có kế hoạch tài chính phù hợp cho căn nhà mơ ước, Nhất Tín đưa ra đơn giá xây dựng nhà theo mức độ hoàn thiện, giúp bạn dễ dàng dự trù chi phí một cách chính xác và hiệu quả.
| Loại hình | Chi phí xây thô/m2 | Chi phí trọn gói/m2 |
| Giá nhà cấp 4 | 2.750.000 đ/m2 – 3.150.000 đ/m2 | 4.550.000đ/m2 – 5.000.000đ/m2 |
| Giá thi nhà phố | 3.050.000 – 3.500.000 đ/m2 | 4.900.000 đ/m2 – 6.650.000 đ/m2 |
| Giá xây dựng nhà phố 2 mặt tiền | 3.250.000 – 3.650.000 đ/m2 | |
| Đơn giá thi công biệt thự liền kề, biệt thự Tân Cổ Điển | 3.300.000 – 3.800.000 đ/m2 | 5.200.000 đ/m2 – 7.000.000 đ/m2 |
>> Xem thêm: Giá xây dựng chìa khóa trao tay
Hy vọng những mẫu nhà 9×9 đẹp trên đây do Nhất Tín tổng hợp sẽ giúp bạn có thêm ý tưởng cho ngôi nhà mơ ước. Nếu bạn đang tìm kiếm một nhà thầu uy tín, Xây dựng Nhất Tín chính là lựa chọn đáng tin cậy. Chúng tôi cam kết mang đến những giải pháp thiết kế nhà phố 9x9m sáng tạo, thi công chất lượng, đáp ứng mọi nhu cầu của gia chủ. Liên hệ ngay qua Hotline: 0988607705 / Zalo: 0911062189 để được tư vấn miễn phí và hiện thực hóa ý tưởng của bạn!
> Xem thêm: Thiết kế nhà mặt tiền 9m sâu 7m
KS Tran Nghia (xaydungnhattin.com)










