Mẫu nhà bán hầm ngày càng được nhiều gia đình lựa chọn bởi khả năng tối ưu diện tích và mang đến không gian sống tiện nghi. Thiết kế bán hầm không chỉ giúp tăng thêm diện tích sử dụng mà còn tạo sự thông thoáng, nâng tầm thẩm mỹ cho ngôi nhà. Nếu bạn đang tìm kiếm giải pháp độc đáo phù hợp với xu thế này thì đừng bỏ lỡ những gợi ý thiết kế nhà bán hầm mà Xây dựng Nhất Tín chia sẻ dưới đây.
>> Xem thêm: Những mẫu nhà đẹp giá rẻ được nhiều gia chủ lựa chọn
Tóm tắt nội dung
- 1 Mẫu nhà cấp 4 có tầng hầm đẹp với thiết kế mái Thái thông thoáng
- 2 Mẫu nhà 2 tầng 1 hầm kết hợp chất liệu cao cấp
- 3 Mẫu nhà có tầng hầm đẹp 3 tầng Tân Cổ Điển sang trọng
- 4 Mẫu nhà bán hầm đẹp với thiết kế mái Mansard đầy mê hoặc
- 5 Mẫu nhà bán hầm kết hợp kinh doanh tiện nghi
- 6 Thiết kế nhà 5x20m có tầng hầm chìm tông với gam màu trắng đầy quý phái
- 7 Mặt tiền mẫu nhà 6m có hầm với thiết kế cách điệu ở các tầng
- 8 Mẫu nhà tầng âm đẹp với thiết kế mái Nhật cân đối
- 9 Biệt thự 3 tầng bán hầm phong cách Hiện Đại
- 10 Bản vẽ nhà có tầng hầm đầy tiện ích
- 11 Tham khảo thêm chi phí xây nhà có tầng hầm đa công năng
Mẫu nhà cấp 4 có tầng hầm đẹp với thiết kế mái Thái thông thoáng
Mẫu nhà cấp 4 có tầng hầm đẹp là lựa chọn lý tưởng cho gia đình muốn vừa có không gian sinh hoạt thoải mái vừa tận dụng tối đa diện tích. Tầng hầm rộng rãi thuận tiện để xe hoặc làm kho, giúp ngôi nhà luôn gọn gàng. Kết hợp với đó là thiết kế mái Thái cao ráo và mặt tiền ốp đá sang trọng mang đến vẻ đẹp đầy cuốn hút cho mẫu nhà.


Mẫu nhà 2 tầng 1 hầm kết hợp chất liệu cao cấp
Mẫu nhà 2 tầng 1 hầm thu hút mọi ánh nhìn nhờ mặt tiền ốp đá đen sang trọng, mang lại vẻ đẹp bền vững theo thời gian. Thiết kế hiện đại được sắp xếp hài hòa giữa công năng và thẩm mỹ, giúp không gian sống luôn thoáng đãng và tiện nghi. Đây là lựa chọn lý tưởng cho những gia đình mong muốn sở hữu một ngôi nhà vừa đẳng cấp vừa gần gũi, đảm bảo giá trị sử dụng lâu dài.


Mẫu nhà có tầng hầm đẹp 3 tầng Tân Cổ Điển sang trọng
Mẫu nhà hầm đẹp 3 tầng Tân Cổ Điển nổi bật với những đường phào chỉ tinh tế kết hợp hoa văn họa tiết trang trí chạy dọc khắp mặt tiền. Thiết kế này không chỉ mang đến vẻ bề thế, quyền quý mà còn tôn lên sự hài hòa, cân đối trong từng chi tiết. Đặc biệt với tầng hầm tiện ích, ngôi nhà trở thành không gian sống đẳng cấp, đáp ứng nhu cầu thẩm mỹ và công năng cho gia chủ.



Mẫu nhà bán hầm đẹp với thiết kế mái Mansard đầy mê hoặc
Mẫu nhà bán hầm đẹp mái Mansard toát lên vẻ ngoài sang trọng nhưng vẫn giữ được nét tinh tế nhờ lối thiết kế tối giản. Sự kết hợp khéo léo giữa hình khối gọn gàng và gam màu xám công nghiệp mang lại diện mạo cuốn hút khiến người nhìn không thể rời mắt. Chính sự hài hòa trong từng đường nét này đã góp phần nâng cao giá trị thẩm mỹ và khẳng định đẳng cấp cho công trình.

Mẫu nhà bán hầm kết hợp kinh doanh tiện nghi
Mẫu nhà bán hầm kết hợp kinh doanh mang đến giải pháp thông minh cho gia chủ trong đô thị hiện nay. Thiết kế mặt tiền gạch mộc tối giản tạo nên vẻ đẹp gần gũi và tự nhiên, đồng thời vẫn toát lên nét độc đáo giúp thu hút ánh nhìn. Sự kết hợp hài hòa giữa công năng và thẩm mỹ không chỉ nâng cao chất lượng không gian sống mà còn mở rộng cơ hội kinh doanh đầy tiềm năng cho gia đình.



Thiết kế nhà 5x20m có tầng hầm chìm tông với gam màu trắng đầy quý phái
Kiến trúc mẫu nhà 5×20 có tầng hầm mang đến sự cân đối và sang trọng trong từng đường nét. Mặt tiền nổi bật với thiết kế hoa văn phào chỉ tinh xảo làm tôn lên nét đẹp đặc trưng của phong cách Tân Cổ Điển. Không chỉ vậy, tầng hầm chìm vừa giúp tối ưu diện tích để xe, vừa tăng tính tiện nghi cho gia đình. Cùng chiêm ngưỡng vẻ đẹp của mẫu nhà qua những hình ảnh dưới đây.


Mặt tiền mẫu nhà 6m có hầm với thiết kế cách điệu ở các tầng
Mặt tiền nhà phố 6m có hầm gây ấn tượng với các tầng được cách điệu tinh tế, tạo nên diện mạo hiện đại và khác biệt. Những đường vòm cong tại loggia mỗi tầng không chỉ là điểm nhấn nổi bật mà còn nâng tầm thẩm mỹ tổng thể. Sự kết hợp hài hòa giữa kiến trúc và công năng giúp công trình vừa nổi bật vừa đáp ứng trọn vẹn nhu cầu sinh hoạt của gia đình.


Mẫu nhà tầng âm đẹp với thiết kế mái Nhật cân đối
Mẫu nhà tầng âm đẹp mái Nhật gây ấn tượng với thiết kế vừa sang trọng vừa tiện dụng. Điểm đặc biệt nằm ở hai hầm đối xứng được sắp xếp hợp lý, mang lại khu vực sử dụng linh hoạt và ngăn nắp. Phần mái Nhật hài hòa càng tôn lên vẻ đẹp tổng thể, bảo đảm công trình vừa đẹp mắt vừa tiện nghi cho gia đình.


Biệt thự 3 tầng bán hầm phong cách Hiện Đại
Biệt thự 3 tầng bán hầm mang phong cách Hiện đại với đường nét vuông vức và bố cục tinh tế. Mặt tiền mẫu nhà kết hợp hài hòa giữa chất liệu cao cấp và gam màu tinh tế mang lại vẻ đẹp bền vững theo thời gian. Không chỉ vậy, không gian sống được thiết kế mở, kết hợp nhiều mảng xanh tạo cảm giác thư giãn và gần gũi thiên nhiên. Đây chính là lựa chọn hoàn hảo cho gia chủ yêu thích sự đẳng cấp và tiện nghi.


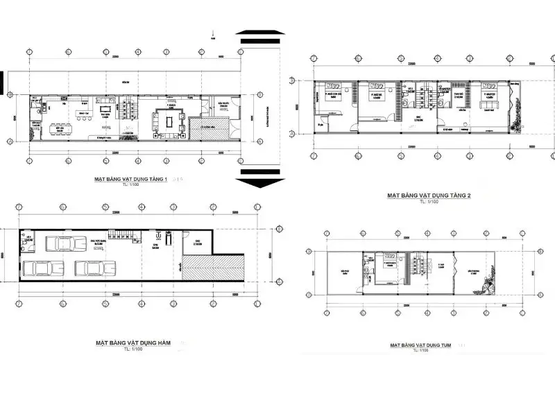
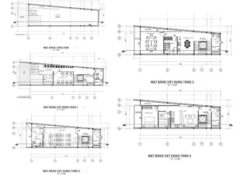
Bản vẽ nhà có tầng hầm đầy tiện ích



Tham khảo thêm chi phí xây nhà có tầng hầm đa công năng
| Loại hình nhà ở | Khoảng chi phí |
| Nhà cấp 4 có tầng hầm 100m2 | 1.130.000.000đ đến 1.270.000.000đ |
| Mẫu nhà bán hầm 2 tầng 120m2 | 2.050.000.000đ đến 2.190.000.000đ |
| Biệt thự Hiện Đại 3 tầng có hầm nổi 180m2 | 4.370.000.000đ đến 5.020.000.000đ |
| Mẫu nhà 4 tầng thiết kế bán hầm 75m2 | 2.590.000.000đ đến 2.910.000.000đ |
>> Tham khảo thêm:
Những mẫu nhà bán hầm đẹp được Nhất Tín chia sẻ trên đây không chỉ tối ưu diện tích mà còn mang lại không gian sống tiện nghi, phù hợp với xu hướng hiện đại. Với kinh nghiệm thi công chuyên nghiệp, Nhất Tín luôn đồng hành cùng gia chủ để kiến tạo những công trình chất lượng và bền vững. Liên hệ hotline: 0988607705 để được tư vấn chi tiết và nhận báo giá thi công mẫu nhà bán hầm chính xác nhất.
KS Tran Nghia (xaydungnhattin.com)










