Thiết kế nhà mặt tiền 11m sâu 8m mang đến không gian sống rộng rãi, phù hợp cho những gia đình yêu thích sự thoáng đãng và tiện nghi. Trong bài viết này, Xây dựng Nhất Tín mang đến các mẫu nhà với thiết kế đẹp mắt và chú trọng vào công năng trong sử dụng. Đây sẽ là gợi ý lý tưởng để bạn tìm thấy phong cách riêng cho tổ ấm của mình. Cùng xem qua các thiết kế nhà 11x8m ngay bên dưới.
>> Xem thêm: Thiết kế mẫu nhà đẹp
Tóm tắt nội dung
- 1 Thiết kế nhà vuông 11x8m 2 tầng mang phong cách Tân Cổ Điển
- 2 Thiết kế nhà mặt tiền 11m sâu 8m mái Thái có gam màu trắng chủ đạo
- 3 Nhà 2 tầng 11x8m 4 phòng ngủ mái Bằng sử dụng ban công kính thoáng đãng
- 4 Nhà 11x8m 3 tầng Hiện Đại có gara bên hông nhà
- 5 Thiết kế nhà 2 tầng 88m2 kết hợp kinh doanh tiện lợi
- 6 Thiết kế nhà ngang 11m sâu 8m với mặt tiền ốp đá tông vàng ấm cúng
- 7 Nhà 2 tầng mái Nhật 11×8 kết hợp không gian xanh thoáng mát
- 8 Thiết kế nhà mặt tiền 11m sâu 8m có gác lửng với đường nét đơn giản
- 9 Biệt thự ngang 11m sâu 8m có sân vườn với mặt tiền ốp đá xanh đầy cuốn hút
- 10 Gợi ý bản vẽ nhà 11x8m bố trí công năng tiện ích theo từng quy mô nhà ở
- 11 Tham khảo giá thiết kế và thi công nhà mặt tiền 11m x 8m trọn gói mới nhất
Thiết kế nhà vuông 11x8m 2 tầng mang phong cách Tân Cổ Điển
Thiết kế nhà vuông 11x8m 2 tầng là lựa chọn lý tưởng cho những gia đình tìm kiếm sự cân đối và hài hòa trong không gian sống. Công trình nổi bật với thiết kế mái Mansard sang trọng, không chỉ tôn lên vẻ đẹp thẩm mỹ mà còn mang lại sự bền vững theo thời gian. Kiến trúc vuông vắn, tinh tế trong từng đường nét giúp ngôi nhà trở thành điểm nhấn cuốn hút, đáp ứng cả giá trị sử dụng lẫn giá trị thẩm mỹ.
- Quy mô xây dựng: 1 trệt 1 lầu
- Ngân sách: khoảng 1.640.000.000đ
- Phong cách: Kiểu Pháp Tân Cổ Điển



Thiết kế nhà mặt tiền 11m sâu 8m mái Thái có gam màu trắng chủ đạo
Thiết kế nhà mặt tiền 11m sâu 8m được nhiều gia đình ưa chuộng nhờ sự cân đối và vẻ đẹp hài hòa. Ngôi nhà nổi bật với mái Thái thanh thoát, vừa tạo cảm giác cao ráo vừa giúp không gian luôn thông thoáng. Kết hợp cùng tông màu trắng chủ đạo, công trình mang đến diện mạo tinh khôi và bền vững theo thời gian.
- Quy mô xây dựng: nhà cấp 4
- Ngân sách: khoảng 712.800.000đ
- Phong cách: Hiện Đại


Nhà 2 tầng 11x8m 4 phòng ngủ mái Bằng sử dụng ban công kính thoáng đãng
Nhà 2 tầng 11x8m 4 phòng ngủ gây ấn tượng với mặt tiền được ốp gạch kiến trúc đen sang trọng, tạo sự nổi bật ngay từ ánh nhìn đầu tiên. Sự kết hợp giữa hình khối cân đối và gam màu tối cuốn hút mang đến vẻ đẹp bền vững theo thời gian. Không chỉ chú trọng thẩm mỹ, mẫu nhà còn đảm bảo công năng tiện nghi, trở thành lựa chọn phù hợp cho những gia đình mong muốn một không gian sống tinh tế.
- Quy mô xây dựng: 1 trệt 1 lầu
- Ngân sách: khoảng 1.530.000.000đ
- Phong cách: Hiện Đại


Nhà 11x8m 3 tầng Hiện Đại có gara bên hông nhà
Nhà 11x8m 3 tầng được nhiều gia đình yêu thích nhờ thiết kế cân đối, vừa đảm bảo tính thẩm mỹ vừa tối ưu công năng. Điểm nhấn đặc biệt của mẫu nhà này là gara bên hông nhà, giúp tối ưu diện tích và tạo sự thuận tiện trong sinh hoạt. Với kiến trúc hài hòa, từng đường nét được chăm chút kỹ lưỡng, mẫu thiết kế trở thành lựa chọn lý tưởng cho những ai mong muốn không gian sống tiện nghi và bền vững.
- Quy mô xây dựng: 1 trệt 2 lầu có tum và sân thượng.
- Ngân sách: khoảng 2.300.000.000đ
- Phong cách: Hiện Đại



Thiết kế nhà 2 tầng 88m2 kết hợp kinh doanh tiện lợi
Thiết kế nhà 2 tầng 88m2 ngày càng được nhiều gia chủ lựa chọn nhờ sự tối ưu trong công năng và tính thẩm mỹ. Đặc biệt, mẫu nhà này kết hợp kinh doanh sang trọng, vừa đảm bảo không gian sinh hoạt tiện nghi, vừa mang lại giá trị sử dụng đa năng. Với kiến trúc cân đối và mặt tiền cuốn hút, đây là giải pháp lý tưởng cho những ai muốn sở hữu một không gian sống kết hợp làm việc hiệu quả.
- Quy mô xây dựng: 2 tầng 1 lửng 1 tum
- Ngân sách: khoảng 2.460.000.000đ
- Phong cách: Tân Cổ Điển


Thiết kế nhà ngang 11m sâu 8m với mặt tiền ốp đá tông vàng ấm cúng
Thiết kế nhà ngang 11m sâu 8m gây ấn tượng bởi sự cân đối trong bố cục và vẻ đẹp gần gũi. Điểm nhấn nổi bật nằm ở mặt tiền ốp đá tông vàng ấm cúng, vừa mang lại cảm giác sang trọng, vừa tạo sự thân thiện cho tổng thể công trình. Với sự kết hợp hài hòa giữa màu sắc và chất liệu, mẫu thiết kế này không chỉ bền vững theo thời gian mà còn khẳng định gu thẩm mỹ tinh tế của gia chủ.
- Quy mô xây dựng: Nhà vườn 1 tầng
- Ngân sách: khoảng 730.400.000đ
- Phong cách: Hiện Đại


Nhà 2 tầng mái Nhật 11×8 kết hợp không gian xanh thoáng mát
Nhà 2 tầng mái Nhật 11×8 ghi điểm nhờ đường nét sắc sảo và vẻ đẹp tinh tế. Ban công rộng rãi được bố trí cây xanh tạo cảm giác trong lành ngôi nhà, đồng thời trở thành góc thư giãn lý tưởng cho gia đình. Đây là lựa chọn phù hợp cho những ai tìm kiếm tổ ấm gần gũi thiên nhiên nhưng vẫn giữ được sự sang trọng.
- Quy mô xây dựng: Nhà 1 trệt 1 lầu mái Nhật
- Ngân sách: khoảng 730.400.000đ
- Phong cách: Hiện Đại



Thiết kế nhà mặt tiền 11m sâu 8m có gác lửng với đường nét đơn giản
Thiết kế nhà mặt tiền 11m sâu 8m có gác lửng mang đến vẻ đẹp hài hòa nhờ cách phối hợp màu sắc tinh tế. Tường sơn tông trắng chủ đạo kết hợp màu nâu làm điểm nhấn giúp tổng thể trở nên ấm cúng và nổi bật. Những đường nét thiết kế đơn giản nhưng dứt khoát tạo nên diện mạo thanh thoát, phù hợp xu hướng hiện nay. Đây là lựa chọn lý tưởng cho gia đình mong muốn không gian sống vừa sang trọng vừa gần gũi.
- Quy mô xây dựng: Nhà 1 trệt 1 lửng
- Ngân sách: khoảng 1.100.000.000đ
- Phong cách: Hiện Đại



Biệt thự ngang 11m sâu 8m có sân vườn với mặt tiền ốp đá xanh đầy cuốn hút
Biệt thự ngang 11m sâu 8m nổi bật với mặt tiền ốp gạch xanh Navy độc đáo, tạo nên sức hút riêng và gây ấn tượng ngay từ ánh nhìn đầu tiên. Hệ ban công rộng mở kết hợp cây xanh mang lại cảm giác thoáng đãng, hòa hợp thiên nhiên. Từng chi tiết kiến trúc được xử lý tinh tế, giúp công trình vừa sang trọng vừa bền đẹp theo thời gian, phù hợp cho những gia chủ yêu thích sự tinh tế.
- Quy mô xây dựng: Nhà 1 trệt 1 lầu có tum
- Ngân sách: khoảng 2.300.000.000đ
- Phong cách: Hiện Đại


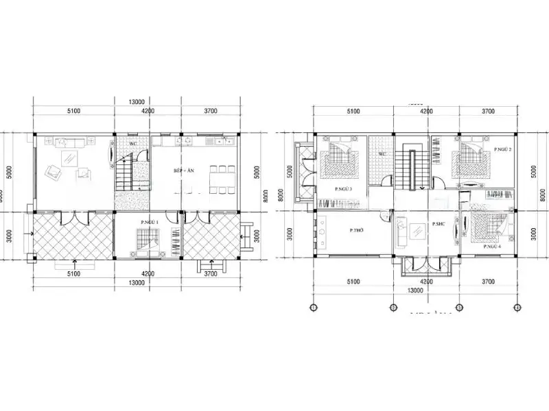
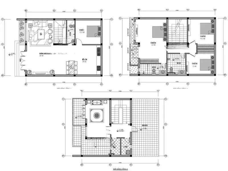
Gợi ý bản vẽ nhà 11x8m bố trí công năng tiện ích theo từng quy mô nhà ở



Tham khảo giá thiết kế và thi công nhà mặt tiền 11m x 8m trọn gói mới nhất
Giá thiết kế nhà
|
Bảng giá thiết kế |
|||
| Công việc | Đơn giá (VNĐ/m2) | Nội dung công việc | Ghi chú |
| Thiết kế kết cấu, 3D mặt tiền | 100.000 – 180.000 | Thiết kế kết cấu, 3D mặt tiền. Dự toán chi phí xây nhà theo yêu cầu. | Chưa bao gồm thiết kế 3D nội thất |
| Thiết kế 3D nội thất | 100.000 – 150.000 | Thiết kế 3D nội thất Hiện Đại, Tân Cổ Điển, Cổ Điển,… Dự toán chi phí xây nhà theo yêu cầu. | Chưa bao gồm thiết kế kiến trúc, kết cấu |
| Thiết kế nhà trọn gói | 150.000 – 200.000 | Thiết kế kết cấu, 3D mặt tiền, 3D nội thất. Dự toán chi phí xây nhà theo yêu cầu. | |
| Thiết kế lâu đài, biệt thự | Liên hệ nhận báo giá chi tiết! | ||
*Ghi chú:
– Thiết kế nhà, nhà phố 2 mặt tiền đơn giá sẽ tăng 10.000 vnđ/m2.
– Đơn giá chưa bao gồm phí VAT.
– Miễn phí 100% thiết kế khi ký hợp đồng thi công.
>> Tham khảo: Bảng báo giá thiết kế kiến trúc
Giá thi công nhà
Với diện tích 88m2, chi phí xây nhà 11x8m trọn gói thường dao động từ 4.900.000đ đến 7.500.000đ tùy theo loại hình, khu vực xây dựng và vật liệu sử dụng. Để có cái nhìn rõ ràng hơn, bạn có thể tham khảo chi tiết dự toán chi phí thi công nhà trọn gói theo từng loại hình nhà ở trong bảng ngay bên dưới.
| Loại hình nhà ở | Khoảng chi phí |
| Thiết kế nhà ngang 11m sâu 8m 1 tầng | 642.400.000đ đến 765.600.000đ |
| Thiết kế nhà 2 tầng 88m2 | 1.280.000.000đ đến 1.530.000.000đ |
| Thiết kế nhà mặt tiền 11m sâu 8m có gác lửng | 963.600.000đ đến 1.150.000.000đ |
| Nhà 11x8m 3 tầng | 1.930.000.000đ đến 2.300.000.000đ |
>> Tham khảo: Đơn giá thi công trọn gói nhà phố tại Xây dựng Nhất Tín
Qua những gợi ý trên, hy vọng bạn đã có thêm ý tưởng để lựa chọn mẫu nhà mặt tiền 11m x 8m phù hợp với nhu cầu của gia đình. Nếu bạn đang tìm đơn vị thi công uy tín, hãy để Xây dựng Nhất Tín đồng hành cùng bạn với dịch vụ trọn gói chất lượng. Liên hệ hotline: 0988607705 để được tư vấn và nhận báo giá chi tiết cho thiết kế nhà mặt tiền 11m sâu 8m ngay hôm nay.
KS Tran Nghia (xaydungnhattin.com)










