Thiết kế nhà mặt tiền 15m sâu 10m không chỉ mang đến không gian sống thoáng rộng mà còn được đánh giá cao về yếu tố phong thủy, giúp gia chủ thu hút vượng khí và tài lộc. Với diện tích lý tưởng, mẫu nhà này dễ dàng đáp ứng cả nhu cầu sinh hoạt lẫn tính thẩm mỹ tinh tế. Cùng Xây dựng Nhất Tín xem qua các mẫu nhà 15x10m ngay bên dưới để tìm gợi ý phù hợp cho tổ ấm của bạn.
>> Tham khảo: Thiết kế nhà sang trọng đa dạng phong cách
Tóm tắt nội dung
- 1 Thiết kế nhà mặt tiền 15m sâu 10m 1 tầng mái Nhật thanh thoát có khuôn viên rộng rãi
- 2 Mẫu nhà ngang 15m sâu 10m 2 mặt tiền phong cách Tân Cổ Điển mang nét tinh xảo
- 3 Thiết kế nhà ngang 15m x 10m 3 tầng sử dụng vật liệu gỗ làm tăng vẻ ngoài ấm cúng
- 4 Mẫu nhà mặt tiền 15x10m 2 tầng ốp gạch kiến trúc nâu ấn tượng
- 5 Kiến trúc nhà phố ngang 15m sâu 10m thiết kế 4 phòng ngủ riêng tư
- 6 Mẫu nhà cấp 4 mặt tiền 15×10 có gác lửng với thiết kế mái Thái thoáng đãng
- 7 Thiết kế nhà mặt tiền 15m sâu 10m chữ L mái bằng Hiện Đại
- 8 Mẫu nhà phố mặt tiền 15m x 10m thiết kế chữ U mái lệch độc đáo
- 9 Tham khảo thêm các bản vẽ bố trí công năng tối ưu cho mẫu nhà 15x10m
- 10 Chi phí xây nhà mặt tiền 15m sâu 10m cập nhật mới nhất
Thiết kế nhà mặt tiền 15m sâu 10m 1 tầng mái Nhật thanh thoát có khuôn viên rộng rãi
Thiết kế nhà mặt tiền 15m sâu 10m được bố trí khoa học, mang đến không gian sống rộng rãi, phù hợp cho gia đình nhiều thế hệ. Điểm nhấn nổi bật của mẫu nhà này là thiết kế mái Nhật thanh thoát kết hợp cùng sân vườn rộng rãi, tạo sự gắn kết với thiên nhiên. Đây là lựa chọn lý tưởng cho những ai mong muốn một không gian sống tiện nghi và gần gũi.



Mẫu nhà ngang 15m sâu 10m 2 mặt tiền phong cách Tân Cổ Điển mang nét tinh xảo
Mẫu nhà ngang 15m sâu 10m 2 mặt tiền gây ấn tượng với thiết kế hai mặt tiền thoáng đãng, tối ưu khả năng đón sáng tự nhiên và tạo điểm nhấn kiến trúc độc đáo. Công trình nổi bật với mái Mansard phong cách Tân Cổ Điển, mang đến vẻ đẹp sang trọng và giá trị bền vững theo thời gian. Đây là lựa chọn lý tưởng dành cho gia chủ mong muốn sở hữu không gian sống đẳng cấp, cuốn hút và thể hiện gu thẩm mỹ tinh tế.


Thiết kế nhà ngang 15m x 10m 3 tầng sử dụng vật liệu gỗ làm tăng vẻ ngoài ấm cúng
Thiết kế nhà ngang 15m x 10m 3 tầng là sự kết hợp hài hòa giữa vật liệu gỗ ấm áp và không gian xanh mát ở ban công. Lối thiết kế này không chỉ mang lại vẻ đẹp gần gũi với thiên nhiên mà còn tạo cảm giác thoải mái, thư giãn cho gia chủ. Sự hòa quyện tinh tế giữa chất liệu và cảnh quan giúp ngôi nhà thân thiện, trở thành không gian sống đáng mơ ước.


Mẫu nhà mặt tiền 15x10m 2 tầng ốp gạch kiến trúc nâu ấn tượng
Mẫu nhà mặt tiền 15x10m 2 tầng toát lên vẻ đẹp tinh tế nhờ phần mặt tiền được ốp gạch tông nâu mang lại cảm giác ấm áp và bền vững. Không chỉ gây ấn tượng ở diện mạo bên ngoài, không gian bên trong còn được chú trọng yếu tố phong thủy trong cách bố trí phòng khách, giúp cân bằng năng lượng. Đây là lựa chọn phù hợp cho gia chủ đề cao cả thẩm mỹ lẫn sự hài hòa trong cuộc sống.



Kiến trúc nhà phố ngang 15m sâu 10m thiết kế 4 phòng ngủ riêng tư
Kiến trúc nhà phố ngang 15m sâu 10m mang đến sự bề thế và cân đối, phù hợp với nhiều gia đình yêu thích không gian sống tiện nghi. Với lợi thế diện tích rộng, ngôi nhà được bố trí thiết kế 4 phòng ngủ khoa học, đảm bảo sự riêng tư và thoải mái cho từng thành viên. Hình khối kiến trúc hài hòa cùng mặt tiền cuốn hút góp phần khẳng định phong cách sống hiện đại, tạo nên một tổ ấm vừa sang trọng vừa hút mắt.


>> Xem thêm: Mẫu nhà đẹp 4 phòng ngủ
Mẫu nhà cấp 4 mặt tiền 15×10 có gác lửng với thiết kế mái Thái thoáng đãng
Mẫu nhà cấp 4 mặt tiền 15×10 có gác lửng ghi điểm nhờ sự kết hợp hài hòa giữa thẩm mỹ và công năng. Ngôi nhà sử dụng thiết kế mái Thái cao ráo, tạo sự thanh thoát và bền vững theo thời gian. Điểm nhấn ấn tượng chính là hệ cửa vòm quý phái, mang lại nét mềm mại cho mặt tiền. Với phong cách này, mẫu nhà không chỉ đẹp mắt mà còn khẳng định gu thẩm mỹ tinh tế của gia chủ.




Thiết kế nhà mặt tiền 15m sâu 10m chữ L mái bằng Hiện Đại
Thiết kế nhà mặt tiền 15m sâu 10m theo kiểu chữ L mang đến sự thông thoáng và tối ưu diện tích sử dụng. Kiến trúc chữ L tạo khoảng sân rộng rãi phía trước giúp tối ưu nguồn năng lượng tự nhiên và tăng giá trị thẩm mỹ tổng thể. Ban công sử dụng chất liệu kính trong suốt vừa tạo cảm giác hiện đại, vừa mở rộng tầm nhìn, đón ánh sáng tự nhiên.


Mẫu nhà phố mặt tiền 15m x 10m thiết kế chữ U mái lệch độc đáo
Mẫu nhà phố mặt tiền 15m x 10m được thiết kế theo kiểu chữ U mang đến không gian sống thoáng đãng và gắn kết với thiên nhiên. Điểm nhấn nổi bật nằm ở kiến trúc mái lệch độc đáo, tạo nên tổng thể hiện đại và cuốn hút. Không chỉ vậy, hồ bơi được bố trí hài hòa trong khuôn viên, vừa là nơi thư giãn lý tưởng, vừa nâng tầm giá trị thẩm mỹ cho ngôi nhà.

>> Xem thêm: Mẫu nhà chữ U đẹp nhất
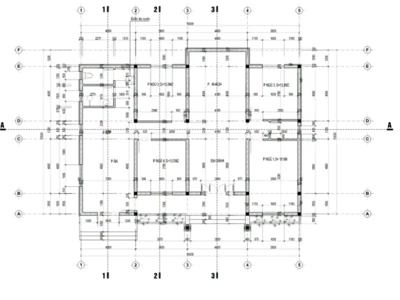
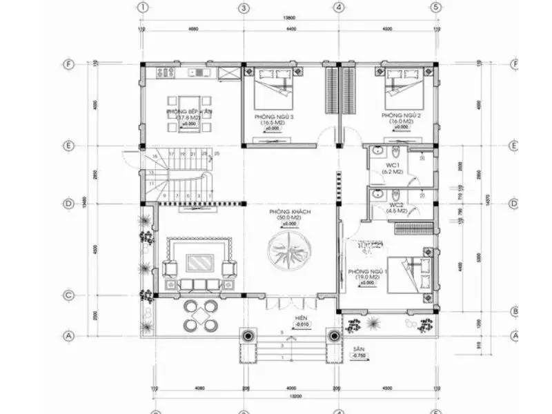
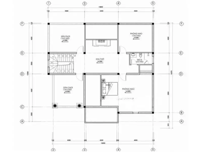
Tham khảo thêm các bản vẽ bố trí công năng tối ưu cho mẫu nhà 15x10m



Chi phí xây nhà mặt tiền 15m sâu 10m cập nhật mới nhất
| Loại hình nhà ở | Khoảng chi phí |
| Thiết kế nhà mặt tiền 15m sâu 10m 1 tầng | 1.100.000.000đ đến 1.310.000.000đ |
| Mẫu nhà cấp 4 mặt tiền 15×10 có gác lửng | 1.580.000.000đ đến 1.820.000.000đ |
| Mẫu nhà mặt tiền 15x10m 2 tầng | 2.190.000.000đ đến 2.610.000.000đ |
| Thiết kế nhà ngang 15m x 10m 3 tầng | 3.290.000.000đ đến 3.920.000.000đ |
| Biệt thự ngang 15m sâu 10m 2 tầng | 2.430.000.000đ đến 2.790.000.000đ |
>>> Tham khảo ngay: Chi phí xây dựng nhà tại Xây dựng Nhất Tín
Nếu bạn đang tìm kiếm ý tưởng cho nhà mặt tiền 15m sâu 10m, Xây dựng Nhất Tín sẽ là đơn vị đồng hành đáng tin cậy, mang đến giải pháp thiết kế và thi công tối ưu cho tổ ấm của bạn. Chúng tôi luôn đặt sự hài lòng của gia chủ làm trọng tâm, để mỗi công trình không chỉ đẹp về thẩm mỹ mà còn tiện nghi và bền vững theo thời gian.
KS Tran Nghia (xaydungnhattin.com)










