Thiết kế nhà 50m2 đang là lựa chọn lý tưởng cho nhiều gia đình mong muốn sở hữu không gian sống tiện nghi nhưng vẫn tiết kiệm chi phí. Với diện tích vừa phải, mỗi mẫu thiết kế đều chú trọng tối ưu công năng, đồng thời tạo nên vẻ thẩm mỹ hài hòa và cuốn hút. Cùng Xây dựng Nhất Tín xem qua các mẫu nhà nhỏ đẹp 50m2 ngay bên dưới giúp bạn tìm được ý tưởng phù hợp cho ngôi nhà mơ ước.
>> Xem thêm: Ý tưởng thiết kế các mẫu nhà đẹp
Tóm tắt nội dung
- 1 Mẫu nhà 50m2 1 tầng thiết kế cửa kính lớn Hiện Đại
- 2 Thiết kế nhà 50m2 có gác lửng mái chữ A đơn giản
- 3 Nhà nhỏ đẹp 50m2 3 tầng kết hợp không gian xanh thoáng mát
- 4 Mẫu nhà đẹp 50m2 phong cách Tân Cổ Điển sang trọng
- 5 Thiết kế nhà phố 50m2 đẹp 2 tầng sử dụng gạch thông gió phía mặt tiền
- 6 Ý tưởng xây nhà 50m2 có sân vườn tạo không gian thư giãn
- 7 Mẫu nhà nhỏ 50m2 có sân thượng thiết kế 3 tầng tối ưu công năng
- 8 Mẫu nhà nhỏ đẹp 50m2 kết hợp cửa hàng kinh doanh
- 9 Thiết kế nhà 50m2 1 phòng ngủ tông trắng kết hợp gạch kiến trúc hài hòa
- 10 Phương pháp tính chi phí xây nhà 50m2 mới nhất hiện nay
Mẫu nhà 50m2 1 tầng thiết kế cửa kính lớn Hiện Đại
Mẫu nhà 50m2 1 tầng mang phong cách Hiện Đại được nhiều gia đình yêu thích nhờ sự tối ưu trong thiết kế và tính thẩm mỹ tinh gọn. Điểm nhấn nổi bật đến từ hệ thống cửa kính lớn, giúp không gian luôn thoáng sáng và gần gũi thiên nhiên. Đây là lựa chọn phù hợp cho những ai mong muốn sở hữu ngôi nhà nhỏ gọn nhưng vẫn tiện nghi và cuốn hút.


>> Xem thêm: Thiết kế nhà 2 phòng ngủ 1 phòng khách
Thiết kế nhà 50m2 có gác lửng mái chữ A đơn giản
Thiết kế nhà 50m2 có gác lửng trở nên ấn tượng nhờ sự kết hợp giữa mái chữ A và gác lửng, tạo cảm giác cao ráo và thoáng đãng. Không gian được mở rộng một cách thông minh, vừa đảm bảo tính tiện nghi vừa giữ sự cân đối trong tổng thể kiến trúc. Thiết kế này mang đến lựa chọn lý tưởng cho những gia đình mong muốn sự hài hòa giữa công năng và thẩm mỹ.


>> Xem thêm: Mẫu nhà chữ A đẹp
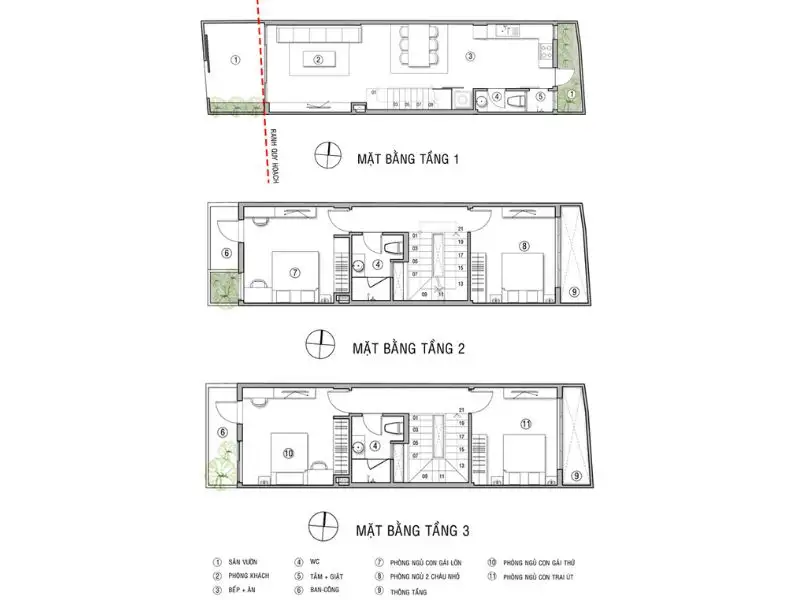
Nhà nhỏ đẹp 50m2 3 tầng kết hợp không gian xanh thoáng mát
Nhà nhỏ đẹp 50m2 được thiết kế 3 tầng gọn gàng nhưng vẫn đầy đủ tiện nghi, phù hợp với nhịp sống đô thị. Điểm nhấn nổi bật là hệ ban công kính ở các tầng, vừa tạo cảm giác thoáng sáng vừa mang đến tầm nhìn rộng mở. Không gian xanh được khéo léo bố trí tại ban công giúp ngôi nhà trở nên gần gũi thiên nhiên, mang lại sự thư giãn cho gia đình sau những giờ làm việc bận rộn.


Mẫu nhà đẹp 50m2 phong cách Tân Cổ Điển sang trọng
Mẫu nhà đẹp 50m2 mang phong cách Tân Cổ Điển tạo ấn tượng bởi vẻ sang trọng và tinh tế trong từng chi tiết. Nổi bật ở tầng 2 và tầng lửng là hệ cửa vòm kính cao, vừa tôn lên nét kiến trúc mềm mại vừa giúp không gian luôn tràn ngập ánh sáng tự nhiên. Sự kết hợp hài hòa giữa kiểu dáng cổ điển và tiện nghi hiện đại khiến mẫu nhà này trở thành lựa chọn lý tưởng cho gia đình yêu thích sự đẳng cấp.


>> Tham khảo thêm: Mẫu nhà diện tích 5×10
Thiết kế nhà phố 50m2 đẹp 2 tầng sử dụng gạch thông gió phía mặt tiền
Thiết kế nhà phố 50m2 đẹp được nhiều gia đình yêu thích nhờ khả năng tối ưu không gian sống trong diện tích vừa phải. Mẫu nhà 2 tầng nổi bật với mặt tiền sử dụng gạch thông gió vừa giúp lấy sáng, đón gió tự nhiên, vừa tạo điểm nhấn thẩm mỹ độc đáo. Kiến trúc hiện đại kết hợp cùng gam màu trang nhã mang lại cảm giác thoáng mát, tinh tế và phù hợp với nhịp sống đô thị năng động ngày nay.


Ý tưởng xây nhà 50m2 có sân vườn tạo không gian thư giãn
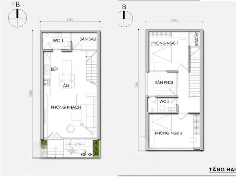
Xây nhà 50m2 là lựa chọn phù hợp cho gia đình nhỏ mong muốn không gian tiện nghi và thoáng mát. Ngôi nhà này được thiết kế có sân vườn xanh mát, mang lại sự gần gũi với thiên nhiên, đồng thời giúp tổng thể kiến trúc thêm phần hài hòa. Bên trong, phòng khách liên thông với bếp tạo cảm giác rộng rãi, kết nối sinh hoạt chung. Đây là giải pháp tối ưu vừa tiết kiệm diện tích vừa đảm bảo sự thoải mái cho gia đình.


Mẫu nhà nhỏ 50m2 có sân thượng thiết kế 3 tầng tối ưu công năng
Mẫu nhà nhỏ 50m2 có sân thượng được nhiều gia đình yêu thích nhờ cách khai thác tối đa công năng trên diện tích hạn chế. Thiết kế 3 tầng mang lại không gian sinh hoạt thoải mái, đáp ứng nhu cầu của các thành viên trong gia đình. Tông màu xám công nghiệp được sử dụng khéo léo ở mặt tiền giúp công trình toát lên vẻ cá tính, hiện đại và bền vững.



Mẫu nhà nhỏ đẹp 50m2 kết hợp cửa hàng kinh doanh
Mẫu nhà nhỏ đẹp 50m2 này là lựa chọn lý tưởng cho những ai cần không gian vừa phải để mở cửa hàng. Thiết kế hiện đại với mặt tiền cửa kính lớn giúp trưng bày sản phẩm nổi bật và thu hút khách hàng ngay từ bên ngoài. Bên trong, cách bố trí thông minh giúp tối ưu diện tích, mang lại sự thuận tiện trong hoạt động kinh doanh mà vẫn đảm bảo sự thoáng sáng cho toàn bộ không gian.


Thiết kế nhà 50m2 1 phòng ngủ tông trắng kết hợp gạch kiến trúc hài hòa
Thiết kế nhà 50m2 1 phòng ngủ với gác lửng thông minh mang lại không gian tiện ích và thoải mái cho gia đình nhỏ. Nhờ cách bố trí này, phòng ngủ được tách biệt ở tầng lửng, vừa tạo sự riêng tư, vừa tối ưu diện tích sử dụng. Khu vực sinh hoạt phía dưới vẫn giữ được sự thoáng đãng phù hợp cho những ai yêu thích phong cách sống gọn gàng và tiện nghi.



Phương pháp tính chi phí xây nhà 50m2 mới nhất hiện nay
Cách tính chi phí xây nhà
Nhà mặt tiền 50m2 được xây dựng với chi phí trọn gói dao động từ 4.800.000đ đến 6.900.000đ/m². Hãy cùng Nhất Tín tham khảo cách tính chi phí để bạn dễ dàng dự trù kinh phí phù hợp cho ngôi nhà của mình.
Công thức tính: Chi phí xây nhà = Tổng diện tích xây dựng (m2) x Đơn giá xây dựng (VNĐ/m2)
Trong đó:
- Tổng diện tích xây dựng = Diện tích sàn mỗi tầng + Móng + Mái + các khu vực khác tùy theo loại hình nhà
- Đơn giá xây dựng tùy thuộc vào gói vật liệu, phong cách nhà. (Hoặc mức độ hoàn thiện mẫu nhà)
Ví dụ cụ thể chi phí xây nhà 1 tầng có gác (50m2) móng cọc và mái tôn.
Tầng 1: 50m2
Gác lửng: 25m2
Móng: 50% diện tích = 25m2
Mái: 40% diện tích = 20m2
Tổng diện tích xây dựng: 50 + 25 + 25 + 20 = 120m2
=> Chi phí ước tính: 120 x 5,2 triệu = 624.000.000 VNĐ (đơn giá gói khá)
Báo giá thi công theo mức độ hoàn thiện
| Hạng mục | Đơn giá / m2 |
| Đơn giá xây thô | 3.200.000đ đến 3.850.000đ |
| Đơn giá xây nhà hoàn thiện | 1.850.000đ đến 3.450.000đ |
| Đơn giá xây nhà trọn gói | 4.900.000đ đến 7.000.000đ |
Ví dụ dự toán thực tế và bảng ngân sách dự kiến theo loại hình
| Loại hình xây dựng | Khoảng chi phí |
| Mẫu nhà phố 50m2 1 tầng | 365.000.000đ đến 435.000.000đ |
| Thiết kế nhà 50m2 có gác lửng | 547.500.000đ đến 652.500.000đ |
| Mẫu nhà 50m2 2 tầng | 730.000.000đ đến 870.000.000đ |
| Nhà nhỏ đẹp 50m2 3 tầng | 1.100.000.000đ đến 1.310.000.000đ |
Ngoài ra, bạn đọc có thể dự toán mẫu nhà tương ứng trong bảng sau:
Như vậy, Xây dựng Nhất Tín đã chia sẻ đến bạn những gợi ý về nhà nhỏ đẹp 50m2 với thiết kế hiện đại và công năng tối ưu. Nếu bạn đang tìm kiếm một giải pháp xây dựng vừa thẩm mỹ vừa tiết kiệm chi phí, Nhất Tín chính là đối tác đáng tin cậy để đồng hành. Hãy liên hệ ngay qua Hotline: 0988607705 hoặc Zalo: 0911062189 để được tư vấn chi tiết và nhận báo giá nhanh chóng.
KS Tran Nghia (xaydungnhattin.com)










