Mẫu nhà ngang 5m đang trở thành lựa chọn phổ biến cho các gia đình sinh sống tại khu vực thành thị. Với diện tích vừa phải, kiểu nhà này không chỉ đáp ứng nhu cầu công năng linh hoạt mà còn thể hiện gu thẩm mỹ và cá tính riêng của gia chủ. Chính sự kết hợp hoàn hảo này đã mở ra vô vàn ý tưởng sáng tạo, làm phong phú cho những thiết kế mặt tiền nhà phố 5m hiện nay. Dưới đây là những ý tưởng thiết kế thời thượng cho mẫu nhà này, mời bạn đọc cùng Nhất Tín khám phá và tìm kiếm cảm hứng cho không gian sống của mình.
>> Tham khảo: 868+ Thiết kế mẫu nhà đẹp – Xu Hướng Thiết Kế Nhà Ấn Tượng
Tóm tắt nội dung
- 1 Tổng hợp những mẫu mặt tiền nhà phố 5m theo loại hình kiến trúc
- 1.1 Mẫu nhà mặt tiền 5m 2 tầng vạn người mê
- 1.2 Mẫu nhà ống 5m 1 tầng đẹp với mặt tiền hút mắt
- 1.3 Mẫu nhà mặt tiền 5m 3 tầng sang trọng và tinh tế
- 1.4 Phối cảnh mẫu nhà 5m mái Thái với vẻ đẹp thanh thoát và cuốn hút
- 1.5 Mẫu nhà 5m Tân Cổ Điển đẹp mãn nhãn mọi góc nhìn
- 1.6 Thiết kế nhà phố mặt tiền 5m đẹp phong cách Hiện Đại
- 1.7 Mẫu nhà đẹp mặt tiền 5m với kiến trúc mái Nhật
- 1.8 Thiết kế nhà ngang 5m mái bằng tinh tế
- 2 Chiêm ngưỡng các mẫu nhà 5m đẹp theo diện tích xây dựng
- 2.1 Nhà ống mặt tiền 5m sâu 20m với các chi tiết kiến trúc sắc sảo
- 2.2 Ý tưởng thiết kế mẫu nhà 5m x 12m thể hiện cá tính và đẳng cấp của gia chủ
- 2.3 Mặt tiền nhà phố 5m cấp 4 diện tích 5x25m có 3 phòng ngủ
- 2.4 Mẫu nhà đẹp mặt tiền 5m sâu 30m hoàn hảo đến từng chi tiết
- 2.5 Thiết kế nhà ngang 5m dài 15m đẹp đến từng milimet
- 2.6 Mẫu thiết kế nhà ống 5x10m với thiết kế mặt tiền độc đáo
- 3 Một số thiết kế nhà ngang 5m ấn tượng theo công năng sử dụng
- 4 Tham khảo các bản vẽ nhà ngang 5m với thiết kế tối ưu và tiện nghi
- 5 Đơn giá xây dựng nhà phố rộng 5m cập nhật mới nhất hiện nay
Tổng hợp những mẫu mặt tiền nhà phố 5m theo loại hình kiến trúc
Mẫu nhà mặt tiền 5m 2 tầng vạn người mê
Những mẫu nhà mặt tiền 5m 2 tầng được nhiều người ưa chuộng nhờ sự linh hoạt trong thiết kế, thể hiện gu thẩm mỹ và cá tính riêng của gia chủ. Kiểu kiến trúc này cho phép gia chủ thỏa sức sáng tạo với những mẫu thiết kế độc đáo và ấn tượng. Hãy cùng tham khảo những mẫu nhà 2 tầng ngang 5m mà Nhất Tín chia sẻ dưới đây để tìm kiếm ý tưởng thiết kế cho ngôi nhà của mình nhé!





Mẫu nhà ống 5m 1 tầng đẹp với mặt tiền hút mắt
Mẫu nhà ống 5m 1 tầng đẹp là sự lựa chọn lý tưởng dành cho những gia đình có ngân sách hạn chế, đặc biệt phù hợp với gia đình nhỏ hoặc các cặp vợ chồng trẻ. Tuy không gian không quá lớn, nhưng nếu bố trí khéo léo và khoa học, mẫu nhà ngang 5m này vẫn đảm bảo sự tiện nghi, thoải mái và tối ưu hóa diện tích sử dụng.




Mẫu nhà mặt tiền 5m 3 tầng sang trọng và tinh tế
Mẫu nhà mặt tiền 5m 3 tầng là sự lựa chọn hoàn hảo cho những gia đình muốn sở hữu một không gian sống sang trọng và tiện nghi. Mặc dù mặt tiền chỉ 5m, mẫu thiết kế 3 tầng giúp linh hoạt trong việc bố trí công năng, mang đến cảm giác rộng rãi và thoải mái cho cả gia đình. Cùng chiêm ngưỡng những mẫu thiết kế nhà 3 tầng ngang 5m đẹp tiện nghi được Nhất Tín chia sẻ dưới đây.




Phối cảnh mẫu nhà 5m mái Thái với vẻ đẹp thanh thoát và cuốn hút
Phối cảnh mẫu nhà 5m mái Thái ấn tượng với vẻ đẹp thanh lịch và cuốn hút. Mẫu nhà là sự kết hợp hoàn hảo giữa nét truyền thống và vẻ đẹp sang trọng, tinh tế. Sự hòa quyện này không chỉ mang lại giá trị thẩm mỹ cao mà còn đáp ứng đầy đủ các yêu cầu về công năng và tính bền vững, tạo nên không gian sống lý tưởng cho gia đình.




Mẫu nhà 5m Tân Cổ Điển đẹp mãn nhãn mọi góc nhìn
Nếu bạn yêu thích vẻ đẹp lộng lẫy và đẳng cấp thì chắc chắn không thể bỏ qua những mẫu nhà 5m Tân Cổ Điển ấn tượng dưới đây. Những thiết kế này toát lên vẻ đẹp tinh tế với các chi tiết uốn lượn tỉ mỉ và hoa văn khắc chạm cầu kỳ. Bên cạnh đó, các công trình Tân Cổ Điển 5m thường được thiết kế với cấu trúc hình khối rõ ràng, mang đến cảm giác hài hòa và cân đối cho tổng thể kiến trúc.




Thiết kế nhà phố mặt tiền 5m đẹp phong cách Hiện Đại
Đặc trưng của những thiết kế nhà phố mặt tiền 5m đẹp Hiện Đại là nét cứng cáp, khỏe khoắn của những khối bê tông vững chãi. Nhờ những đường nét đơn giản kết hợp với những chi tiết trang trí được sắc sảo, mẫu thiết kế giúp tối ưu công năng hiệu quả cho cả gia đình. Tham khảo ngay những mẫu nhà 5m Hiện Đại dưới đây để có ý tưởng xây nhà đẹp như mơ, thu hút mọi ánh nhìn.





Mẫu nhà đẹp mặt tiền 5m với kiến trúc mái Nhật
Với thiết kế mái Nhật thanh thoát và đầy tính thẩm mỹ, những mẫu nhà đẹp mặt tiền 5m sẽ là lựa chọn lý tưởng cho những ai yêu thích vẻ đẹp nhẹ nhàng và bền vững. Nổi bật với hệ mái Nhật kiên cố và đồ sộ, những công trình này không chỉ tạo nên vẻ đẹp thanh lịch và nhẹ nhàng mà còn giúp thoát nước hiệu quả. Để tăng cường cảm giác gần gũi với thiên nhiên, gia chủ có thể kết hợp các vật liệu tự nhiên như đá, gỗ, tre,… từ đó kiến tạo nên không gian sống thư giãn và thoải mái cho cả gia đình.


Thiết kế nhà ngang 5m mái bằng tinh tế
Thiết kế nhà ngang 5m mái bằng mang đến vẻ đẹp tinh tế và sang trọng, phù hợp với những gia đình yêu thích không gian sống tiện nghi và bền vững. Những mẫu thiết kế này không chỉ giúp tiết kiệm chi phí xây dựng mà còn tối ưu hóa không gian sử dụng trên mái. Để tìm kiếm ý tưởng thiết kế nhà mái bằng ngang 5m đẹp tiện nghi, hãy cùng chiêm ngưỡng những mặt phố đẹp mà Nhất Tín chia sẻ dưới đây.





Chiêm ngưỡng các mẫu nhà 5m đẹp theo diện tích xây dựng
Nhà ống mặt tiền 5m sâu 20m với các chi tiết kiến trúc sắc sảo
Những mẫu nhà ống mặt tiền 5m sâu 20m với các chi tiết kiến trúc sắc sảo toát lên vẻ đẹp sang trọng, thể hiện cá tính và gu thẩm mỹ riêng của gia chủ. Với diện tích 100m2, mẫu nhà 5x20m cho phép bố trí nhiều phòng chức năng, đáp ứng sự tiện nghi cho các thành viên trong gia đình. Không chỉ vậy, mặt tiền nổi bật với chi tiết hoa văn trang trí, kết hợp với đường phào chỉ được chăm chút kỹ lưỡng, giúp tạo điểm nhấn và tăng giá trị thẩm mỹ cho mẫu nhà.




Ý tưởng thiết kế mẫu nhà 5m x 12m thể hiện cá tính và đẳng cấp của gia chủ
Mặc dù diện tích sàn chỉ 60m2, nếu biết cách bố trí công năng hợp lý, thiết kế mẫu nhà 5m x 12m vẫn có thể đáp ứng đầy đủ tiện nghi cho cả gia đình. Không chỉ vậy, kiến trúc này còn linh hoạt trong thiết kế, thể hiện phong cách sống và gu thẩm mỹ riêng của gia chủ. Những mẫu nhà mà Nhất Tín chia sẻ dưới đây sẽ là nguồn cảm hứng quý giá để bạn tìm kiếm ý tưởng thiết kế cho ngôi nhà mơ ước của mình.




Mặt tiền nhà phố 5m cấp 4 diện tích 5x25m có 3 phòng ngủ
Nếu bạn đang tìm kiếm giải pháp thiết kế tối ưu chi phí nhưng vẫn đầy đủ tiện nghi, những mẫu mặt tiền nhà phố 5m cấp 4 5×25 dưới đây sẽ là sự lựa chọn lý tưởng. Mặc dù chỉ có 1 tầng, thiết kế nhà vẫn khéo léo bố trí 3 phòng ngủ công năng. Điều này giúp những mẫu nhà 5m này đáp ứng đầy đủ nhu cầu sinh hoạt thoải mái cho gia đình từ 3-4 thành viên, mang lại không gian sống thư giãn và tiện nghi.
Xem thêm: Mẫu nhà đẹp 5×25 tại đây!




Mẫu nhà đẹp mặt tiền 5m sâu 30m hoàn hảo đến từng chi tiết
Tận dụng lợi thế về chiều sâu, mẫu nhà đẹp mặt tiền 5m sâu 30m kiến tạo nên không gian sống thoáng đãng và dễ chịu cho cả gia đình. Với diện tích sàn lên đến 150m2, thiết kế nhà cho phép phân chia các phòng chức năng một cách hợp lý và linh hoạt. Đồng thời, các chi tiết đều được chú trọng tỉ mỉ, mang lại không gian sống không chỉ tiện nghi mà còn đáp ứng thẩm mỹ, thể hiện đẳng cấp và cá tính riêng của gia chủ.




Thiết kế nhà ngang 5m dài 15m đẹp đến từng milimet
Thiết kế nhà ngang 5m dài 15m đã trở thành lựa chọn phổ biến cho nhiều gia đình ở khu vực đô thị hiện nay. Với bề ngang 5m và chiều dài 15m, kiểu nhà này hoàn hảo cho những lô đất hình chữ nhật thường thấy trong thành phố. Nhờ đó, kiến trúc của nó có thể được sáng tạo theo nhiều phong cách khác nhau, phù hợp với gu thẩm mỹ và nhu cầu riêng của từng gia đình.




Mẫu thiết kế nhà ống 5x10m với thiết kế mặt tiền độc đáo
Mẫu thiết kế nhà ống 5x10m mà Nhất Tín giới thiệu dưới đây gây ấn tượng mạnh mẽ bởi thiết kế mặt tiền độc đáo. Các kiến trúc sư đã khéo léo thể hiện sự sáng tạo của mình trong từng chi tiết, mang đến những bản vẽ không chỉ đẹp mắt mà còn phản ánh cá tính và gu thẩm mỹ riêng của gia chủ. Hãy cùng chiêm ngưỡng những mẫu nhà mang vẻ đẹp thời thượng và phá cách qua những hình ảnh dưới đây.




Một số thiết kế nhà ngang 5m ấn tượng theo công năng sử dụng
Thiết kế nhà 5x17m có gara để ô tô tiện lợi
Để phục vụ nhu cầu di chuyển của gia đình, thiết kế nhà 5x17m có gara ô tô được bố trí tối ưu công năng, mang lại không gian sống tiện lợi. Gara thường được bố trí tại khu vực tầng trệt, giúp gia chủ dễ dàng ra vào mà không tốn nhiều thời gian. Với diện tích sàn 85m2, ngôi nhà linh hoạt trong việc sắp xếp các phòng chức năng, tạo ra môi trường sống tiện nghi và thoải mái cho cả gia đình.




Thiết kế nhà phố 5x19m có thang máy
Nhằm tạo sự thuận tiện khi di chuyển giữa các tầng, thiết kế nhà phố 5x19m có thang máy đang dần được nhiều gia đình ưa chuộng. Đây là lựa chọn hoàn hảo cho những ngôi nhà từ 3 tầng trở lên, giúp tiết kiệm thời gian di chuyển. Đặc biệt, đối với những gia đình có người già hoặc trẻ nhỏ, việc lắp đặt thang máy là lựa chọn cần thiết. Điều này không chỉ giúp đảm bảo an toàn mà còn mang lại sự tiện lợi trong sinh hoạt hàng ngày.




Mẫu nhà gác lửng 5×18 đẹp và tiện nghi
Mẫu nhà gác lửng 5×18 đẹp là giải pháp lý tưởng để mở rộng diện tích với ngân sách hợp lý. Thiết kế này không chỉ tạo điều kiện cho không khí lưu thông giữa các tầng mà còn mang lại không gian sống tiện nghi. Gia đình có thể linh hoạt sử dụng gác lửng để bố trí phòng ngủ, làm kho chứa đồ hoặc thiết kế khu vực sinh hoạt chung ấm cúng. Dưới đây, Nhất Tín xin giới thiệu những mẫu nhà 5×18 có gác lửng đẹp mắt, hy vọng sẽ là nguồn cảm hứng giúp bạn có ý tưởng xây dựng ngôi nhà mơ ước của mình.





Ý tưởng xây nhà ngang 5m dài 16m có tum và sân thượng
Ý tưởng xây nhà ngang 5m dài 16m có tum và sân thượng mang đến không gian sống thư giãn và thoải mái cho gia đình. Tầng thượng có thể được tận dụng làm khu vực sinh hoạt ngoài trời cho cả gia đình, hoặc làm nơi bố trí cây xanh tươi mát. Những mẫu thiết kế này không chỉ tạo ra không gian sống hòa hợp với thiên nhiên mà còn nâng cao giá trị thẩm mỹ, làm nổi bật vẻ đẹp cho ngôi nhà của bạn.



Tham khảo các bản vẽ nhà ngang 5m với thiết kế tối ưu và tiện nghi
Mặt bằng công năng nhà phố 5m 1 tầng




Mặt bằng 2D nhà 2 tầng mặt tiền 5m


Bản vẽ bố trí công năng nội thất nhà 5m 3 tầng



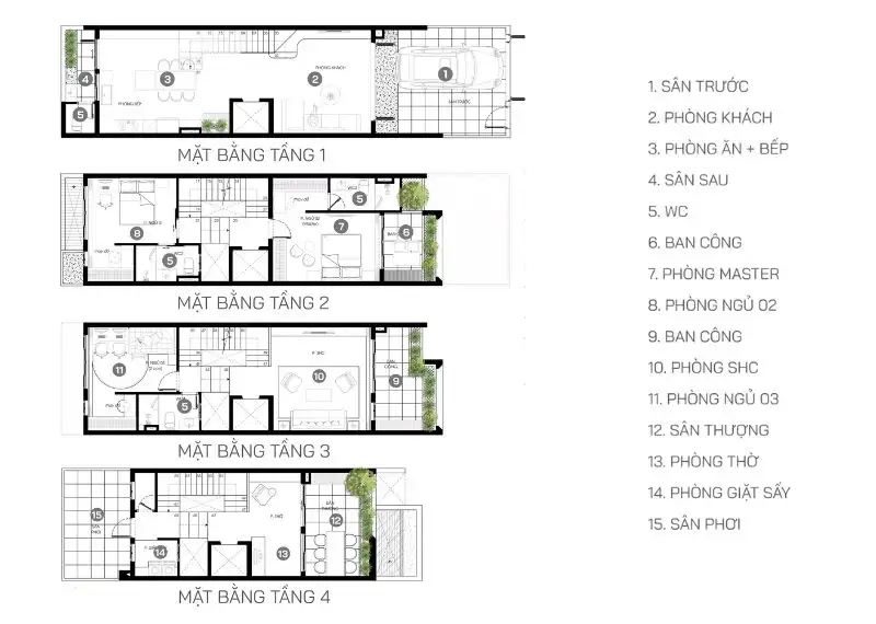
Thiết kế mặt bằng 2D nhà ống 4 tầng rộng 5m


Đơn giá xây dựng nhà phố rộng 5m cập nhật mới nhất hiện nay
Đơn giá xây dựng nhà phố 5m dao động từ 2.550.000 vnđ/m2 – 7.000.000 đ/m2 tùy thuộc vào yêu cầu và loại gói dịch vụ gia chủ lựa chọn. Thông tin các gói cụ thể như sau:
- Gói xây dựng phần thô và nhân công hoàn thiện có giá từ 2.550.000 vnđ/m2 – 3.850.000 vnđ/m2.
- Giá xây dựng trọn gói dao động từ: 4.250.000đ/m2 – 7.000.000 đ/m2.
>> Để có thông tin chính xác hơn mời bạn đọc tham khảo bài viết: Bảng báo giá xây dựng nhà phố
Tổng kết lại, nội dung trên Nhất Tín đã giới thiệu những mẫu mặt tiền nhà phố 5m ấn tượng, thu hút mọi ánh nhìn. Hy vọng rằng bài viết này sẽ là nguồn cảm hứng cho bạn trong việc xây dựng ý tưởng thiết kế nhà phù hợp với nhu cầu của cả gia đình. Nếu bạn cần tư vấn thêm về thiết kế nhà ngang 5m đẹp và tối ưu công năng, hãy liên hệ ngay với Nhất Tín để được hỗ trợ miễn phí. Hotline: 0988607705 / Zalo: 0911062189.
> Xem thêm: Thiết kế nhà phố đẹp mặt tiền 4m
KS. Nghia Tran (Xaydungnhattin.com)










