Mẫu nhà 5×15 ngày càng trở nên phổ biến tại các khu vực đô thị, nơi diện tích đất thường nhỏ nhưng đòi hỏi cao về tính thẩm mỹ và công năng. Với lối thiết kế thông minh, những ý tưởng thiết kế mặt tiền nhà phố 5m sâu 15m mà Nhất Tín chia sẻ trong bài viết dưới đây sẽ mang đến không gian sống tiện nghi, đáp ứng nhu cầu sinh hoạt thoải mái cho cả gia đình. Cùng tham khảo để có ý tưởng thiết kế sáng tạo cho ngôi nhà mơ ước của mình nhé!
>> Xem thêm: Thiết kế nhà phố mặt tiền 5m đẹp
Tóm tắt nội dung
- 1 Mẫu nhà 5×15 3 tầng phong cách Tân Cổ Điển với hệ thức cột Corinthian kiêu sa
- 2 Mẫu nhà 5×15 2 tầng mái Thái tinh tế và đẳng cấp
- 3 Thiết kế nhà lệch tầng 5x15m kèm bản vẽ công năng tiện nghi
- 4 Nhà 3 tầng 3 phòng ngủ 5×15 Hiện Đại với hình khối mặt tiền vát chéo lạ mắt
- 5 Nhà 5×15 cấp 4 chi phí rẻ phù hợp với gia đình nhỏ
- 6 Thiết kế nhà 2 tầng 3 phòng ngủ 5×15 có sân thượng thoáng rộng
- 7 Mẫu nhà 3 tầng 5x15m 4 phòng ngủ với thiết kế không gian xanh gần gũi thiên nhiên
- 8 Mẫu nhà 5x15m có giếng trời với thiết kế lam cách tân độc đáo
- 9 Thiết kế nhà 4 tầng ngang 5m dài 15m với hệ kính kịch tường giúp tối ưu hóa ánh sáng tự nhiên
- 10 Mẫu nhà phố 5×15 1 trệt 1 lầu có gác lửng
- 11 Xem thêm ý tưởng bố trí nội thất nhà phố 5×15 đẹp cuốn hút
- 12 Tham khảo mẫu bố trí công năng 2D tối ưu của các mẫu nhà ngang 5m sâu 15m
- 13 Dự toán chi phí xây nhà phố 5x15m mới nhất hiện nay
Mẫu nhà 5×15 3 tầng phong cách Tân Cổ Điển với hệ thức cột Corinthian kiêu sa
Mẫu nhà 5×15 3 tầng phong cách Tân Cổ Điển dưới đây thu hút người nhìn bởi lối kiến trúc sang trọng và tinh tế, nổi bật với hệ thống cột Corinthian kiêu sa. Mặt tiền của ngôi nhà được trang trí bằng những đường phào chỉ thanh lịch, kết hợp với các chi tiết hoa văn đắp nổi, tạo nên vẻ đẹp uy nghi và đẳng cấp cho tổng thể kiến trúc.






Mẫu nhà 5×15 2 tầng mái Thái tinh tế và đẳng cấp
Mang vẻ đẹp sang trọng và trang nhã, mẫu nhà 5×15 2 tầng mái Thái mà Nhất Tín chia sẻ dưới đây thể hiện sự đẳng cấp và tinh tế. Phần mái Thái được thiết kế mái ngói làm nổi bật vẻ bề thế cho tổng thể ngôi nhà. Những đường phào chỉ tinh tế gợi lên dáng vẻ thanh thoát, kết hợp với chi tiết lan can lục bình bê tông, thể hiện rõ nét đặc trưng của phong cách Tân Cổ Điển.





Thiết kế nhà lệch tầng 5x15m kèm bản vẽ công năng tiện nghi
Khác với kiến trúc nhà phố truyền thống, mẫu nhà lệch tầng 5x15m mang đến một không gian sống hiện đại, thoáng đãng và giàu tính sáng tạo. Điểm đặc trưng của thiết kế này là việc bố trí mặt bằng theo cao độ chênh lệch giữa các tầng, giúp tận dụng tối đa ánh sáng và thông gió tự nhiên. Nhờ đó, ngôi nhà luôn duy trì được sự thông thoáng, hạn chế cảm giác bí bách thường thấy trong các mẫu nhà phố diện tích hạn chế.


Bản vẽ công năng của mẫu nhà lệch tầng 5x15m được thiết kế tối ưu, với từng khu vực chức năng phân bổ hợp lý. Cách sắp xếp lệch tầng giúp tạo ra các khoảng không gian mở liên kết với nhau, đồng thời tăng hiệu quả sử dụng diện tích. Mời quý bạn đọc tham khảo cách bố trí nội thất của mẫu nhà này qua những hình ảnh tiếp theo.



Nhà 3 tầng 3 phòng ngủ 5×15 Hiện Đại với hình khối mặt tiền vát chéo lạ mắt
Nhà 3 tầng 3 phòng ngủ 5×15 Hiện Đại được Nhất Tín giới thiệu dưới đây nổi bật với thiết kế mặt tiền vát chéo ấn tượng. Hình khối mặt tiền sử dụng các đường nét vuông vắn kết hợp hài hòa cùng những vòm cong mềm mại, tạo nên sự tương phản thú vị. Điểm nhấn đặc biệt chính là phần đỉnh vát chéo độc đáo cùng các khung vòm lớn ở ban công, mang đến vẻ đẹp phá cách nhưng không kém phần thanh lịch và gần gũi.





Nhà 5×15 cấp 4 chi phí rẻ phù hợp với gia đình nhỏ
Mẫu nhà 5×15 cấp 4 dưới đây là sự lựa chọn hoàn hảo cho những gia đình nhỏ có ngân sách hạn chế. Nhờ những đường nét đơn giản, kết hợp với cấu trúc hình khối hộp, mẫu nhà này không chỉ tiết kiệm chi phí xây dựng mà còn tối ưu không gian sử dụng. Với mặt bằng công năng được bố trí gồm 1 phòng ngủ, 1 phòng khách + bếp, ngôi nhà đáp ứng nhu cầu sinh hoạt thoải mái cho gia đình nhỏ.



Thiết kế nhà 2 tầng 3 phòng ngủ 5×15 có sân thượng thoáng rộng
Vẻ ngoài của thiết kế nhà 2 tầng 3 phòng ngủ 5×15 có sân thượng gây ấn tượng mạnh mẽ bởi thiết kế với các đường cong mềm mại, tạo nên vẻ đẹp khác biệt so với những ngôi nhà xung quanh. Mặt tiền với lớp sơn màu trắng chủ đạo, làm nổi bật nét trang nhã của những đường vòm uốn lượn. Đặc biệt, mái hiên ở tầng trên cùng được lợp bằng khung sắt và kính tối màu, không chỉ mang lại sự thông thoáng mà còn nâng cao tính thẩm mỹ cho ngôi nhà.



Mẫu nhà 3 tầng 5x15m 4 phòng ngủ với thiết kế không gian xanh gần gũi thiên nhiên
Nếu bạn yêu thích thiên nhiên, mẫu nhà 3 tầng 5x15m 4 phòng ngủ mà Nhất Tín giới thiệu dưới đây chắc chắn sẽ làm bạn hài lòng. Ngôi nhà được thiết kế theo lối mở, nổi bật với hệ ban công và sân thượng rộng rãi, mang lại không gian thoáng đãng. Điểm nhấn đặc biệt là những dây leo rủ xuống từ tầng trên tạo hiệu ứng mềm mại, không chỉ làm cân bằng với đường nét vuông vức của kiến trúc mà còn mang đến không gian sống xanh mát, gần gũi thiên nhiên.



Mẫu nhà 5x15m có giếng trời với thiết kế lam cách tân độc đáo
Mẫu nhà 5x15m có giếng trời nổi bật với lối thiết kế lam cách tân độc đáo. Ngoại thất được trang trí bằng giàn lam kim loại, không chỉ gia tăng tính thẩm mỹ mà còn giảm ánh nắng trực tiếp, giúp điều tiết khí hậu bên trong ngôi nhà một cách hiệu quả. Bên cạnh đó, cổng chính được làm bằng kim loại đục lỗ với thiết kế ô vuông lạ mắt tạo nên sự ấn tượng ngay từ cái nhìn đầu tiên.







Thiết kế nhà 4 tầng ngang 5m dài 15m với hệ kính kịch tường giúp tối ưu hóa ánh sáng tự nhiên
Thiết kế nhà 4 tầng ngang 5m dài 15m mà Nhất Tín chia sẻ dưới đây được thiết kế thông minh với đường nét tinh tế và có tính thẩm mỹ cao. Mẫu nhà sử dụng hệ kính kịch trần giúp tận dụng tối đa ánh sáng tự nhiên, mang lại không gian mở và thông thoáng. Không chỉ vậy, tầng thượng của ngôi nhà được thiết kế thoáng đãng với mái che gỗ, tại đây gia đình có thể tận dụng làm khu vực thư giãn hoặc sân vườn nhỏ.



Mẫu nhà phố 5×15 1 trệt 1 lầu có gác lửng
Mẫu nhà phố 5×15 1 trệt 1 lầu có gác lửng nổi bật nhờ sự tinh tế trong thiết kế. Ngoại thất của ngôi nhà được tô điểm bằng gam màu đen mạnh mẽ của mảng tường và kim loại, hòa quyện với màu nâu gỗ ấm áp của trần nhà, mang đến một vẻ đẹp dễ chịu và hài hòa cho không gian sống. Đặc biệt, tầng lửng sử dụng hệ kính trong suốt ở mặt tiền, giúp tối ưu ánh sáng tự nhiên, mang đến không gian sống thoáng đãng và tràn đầy năng lượng.




Xem thêm ý tưởng bố trí nội thất nhà phố 5×15 đẹp cuốn hút
Ý tưởng bố trí phòng khách




Ý tưởng bố trí phòng bếp








Tham khảo mẫu bố trí công năng 2D tối ưu của các mẫu nhà ngang 5m sâu 15m
Dưới đây, Nhất Tín sẽ chia sẻ những bản vẽ bố trí công năng 2D tối ưu, giúp bạn hình dung rõ hơn về thiết kế cho mẫu nhà mơ ước của mình. Để tham khảo thêm nhiều bản vẽ CAD nhà 5x15m đầy đủ và chi tiết, hãy liên hệ ngay với Nhất Tín để được hỗ trợ.
Bản bố trí công năng mẫu nhà 5×15 cấp 4

Bản vẽ cad nhà 2 tầng 5×15

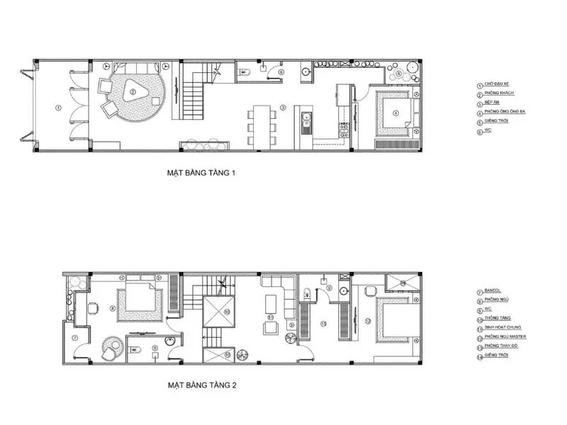
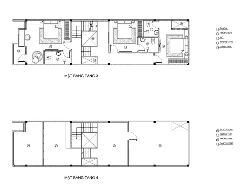
Mặt bằng công năng nhà 5×15 3 tầng

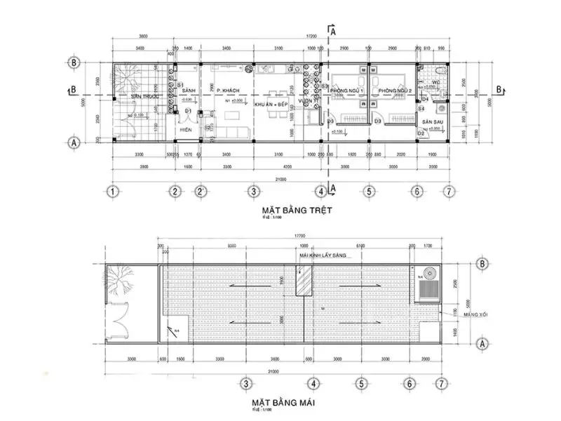
Bản vẽ 2D nhà ống 5x15m 3 tầng 1 tum

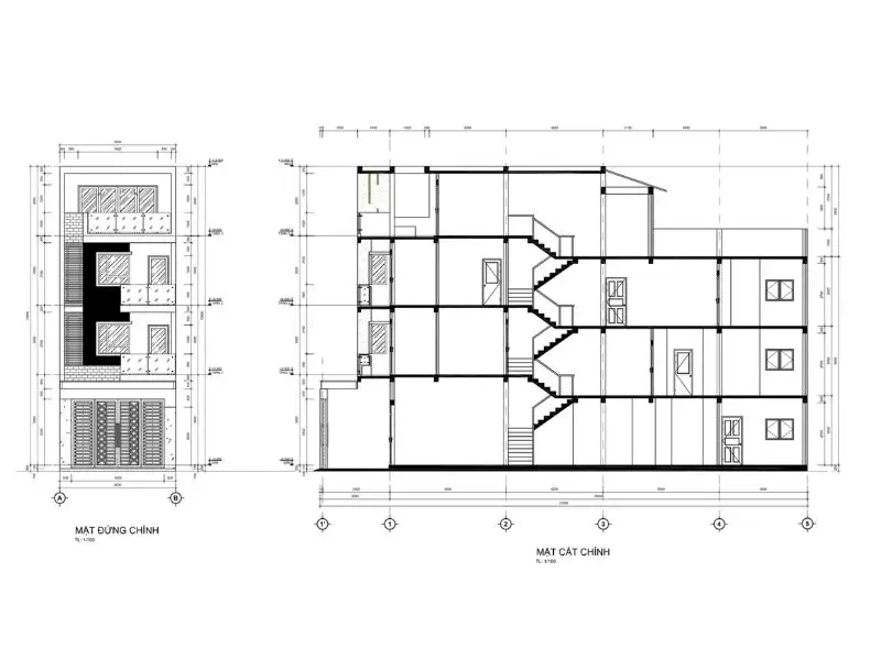
Mặt tiền nhà phố 5×15 kiến trúc 4 tầng


Dự toán chi phí xây nhà phố 5x15m mới nhất hiện nay
Chi phí thi công mẫu nhà phố 5x15m có thể dao động từ 4.550.000 đồng/m2 đến 5.900.000 đồng/m2, tùy vào yêu cầu và sự lựa chọn vật liệu, thiết kế của bạn. Dưới đây là tổng chi phí xây dựng trọn gói cho một số mẫu nhà ngang 5m dài 15m phổ biến:
| Loại hình | Ngân sách xây dựng |
| Nhà 5×15 cấp 4 | 490.000.000 đ – 585.000.000 đ |
| Nhà 2 tầng 3 phòng ngủ 5×15 | 1.010.000.000 đ – 1.280.000.000 đ |
| Mẫu nhà ngang 5m sâu 15m 2 tầng 1 tum | 1.260.000.000 đ – 1.590.000.000 đ |
| Mẫu nhà 5×15 3 tầng | 1.510.000.000 đ – 1.910.000.000 đ |
| Thiết kế nhà phố 5*15 4 tầng | 2.010.000.000 đ – 2.550.000.000 đ |
>> Có thể bạn quan tâm:
Báo giá thi công xây dựng trọn gói
Xây nhà phần thô bao nhiêu tiền 1m2?
Trên đây là thông tin đầy đủ về mẫu nhà 5×15 ấn tượng và độc đáo mà Nhất Tín muốn chia sẻ đến bạn. Hy vọng bài viết trên sẽ là nguồn cảm hứng, giúp bạn khơi dậy những ý tưởng thiết kế sáng tạo cho ngôi nhà tương lai của mình. Nếu bạn cần được tư vấn thiết kế mẫu nhà đẹp 5x15m phù hợp với nhu cầu và gu thẩm mỹ của mình, liên hệ ngay đến Nhất Tín để được hỗ trợ. Hotline: 0988607705 / Zalo: 0911062189.
KS Trần Nghĩa ( xaydungnhattin.com)










