Mẫu nhà 5×16 mang đến sự linh hoạt trong thiết kế, đáp ứng nhu cầu sinh hoạt của các gia đình phố thị. Kiểu nhà này không chỉ tối ưu quỹ đất hạn chế tại đô thị mà còn tạo nên không gian sống tiện nghi, thoải mái. Để giúp bạn có thêm nhiều ý tưởng độc đáo, Nhất Tín giới thiệu những mẫu thiết kế nhà 5x16m đẹp ấn tượng, thu hút mọi ánh nhìn qua nội dung dưới đây. Cùng khám phá ngay!
>> Xem thêm: Tổng hợp những mẫu nhà phố mặt tiền 5m đẹp cuốn hút
Tóm tắt nội dung
- 1 Thiết kế nhà 5×16 có gara 2 tầng với đường nét sắc sảo
- 2 Mẫu nhà 5x16m 3 tầng Hiện Đại đáp ứng công năng sử dụng cho gia đình trẻ
- 3 Bản vẽ nhà phố 5x16m 3 tầng mái Thái với gam màu trắng chủ đạo
- 4 Mẫu nhà lệch tầng 5×16 mang phong cách Tân Cổ Điển
- 5 Thiết kế nhà 5x16m có thang máy với kiến trúc 4 tầng
- 6 Mẫu nhà 5x16m 1 tầng (cấp 4) có 2 phòng ngủ
- 7 Mẫu nhà gác lửng 5×16 với thiết kế tối giản và tinh tế
- 8 Mặt bằng nhà phố ngang 5m dài 16m bố trí công năng tối ưu và tiết kiệm diện tích
- 9 Dự toán chi phí xây dựng một số mẫu nhà 5×16 mới nhất hiện nay
Thiết kế nhà 5×16 có gara 2 tầng với đường nét sắc sảo
Thiết kế nhà 5×16 có gara 2 tầng mang phong cách tối giản nhưng vẫn toát lên vẻ đẹp tinh tế. Nét tinh tế này được thể hiện qua những đường nét sắc sảo, kết hợp với kiến trúc hình khối hộp vuông vắn khiến cho ngôi nhà thêm phần bắt mắt. Đặc biệt, mặt tiền gây ấn tượng với những mảng tường ốp lam gỗ sọc độc đáo, không chỉ tạo ra sự phân chia rõ ràng, mà còn làm nổi bật lên các hình khối của mẫu nhà.



Mẫu nhà 5x16m 3 tầng Hiện Đại đáp ứng công năng sử dụng cho gia đình trẻ
Mẫu nhà 5x16m 3 tầng Hiện Đại mà Nhất Tín giới thiệu dưới đây là lựa chọn hoàn hảo cho các gia đình trẻ. Mặt tiền mẫu nhà thiết kế hệ kính lớn và lam che nắng, giúp tối ưu hóa nguồn năng lượng tự nhiên cho không gian bên trong. Với đường nét kiến trúc hiện đại, kết hợp cùng lối thiết kế thông minh, ngôi nhà đáp ứng đầy đủ công năng cho tất cả các thành viên trong gia đình.




Bản vẽ nhà phố 5x16m 3 tầng mái Thái với gam màu trắng chủ đạo
Bản vẽ nhà phố 5x16m 3 tầng mái Thái với gam màu trắng chủ đạo mang đến vẻ sang trọng và đẳng cấp. Thiết kế mái Thái giật cấp theo từng tầng không chỉ giúp chống nóng hiệu quả mà còn tạo chiều cao ấn tượng cho ngôi nhà. Bên cạnh đó, phía mặt tiền sử dụng gạch trang trí xen kẽ nổi bật trên nền trắng chủ đạo mang lại vẻ ngoài thẩm mỹ và độc đáo cho mẫu nhà.


Mẫu nhà lệch tầng 5×16 mang phong cách Tân Cổ Điển
Nổi bật với vẻ đẹp sang trọng và bề thế, mẫu nhà lệch tầng 5×16 Tân Cổ Điển dưới đây thu hút mọi ánh nhìn. Nét đẹp này được thể hiện qua hệ trụ cột kiên cố, kết hợp với hoa văn chạm khắc tỉ mỉ, mang đậm phong cách Tân Cổ Điển. Ngoài ra, ban công mẫu nhà sử dụng lan can lục bình bê tông, tạo cảm giác đồ sộ và hài hòa với đường nét tổng thể ngôi nhà.


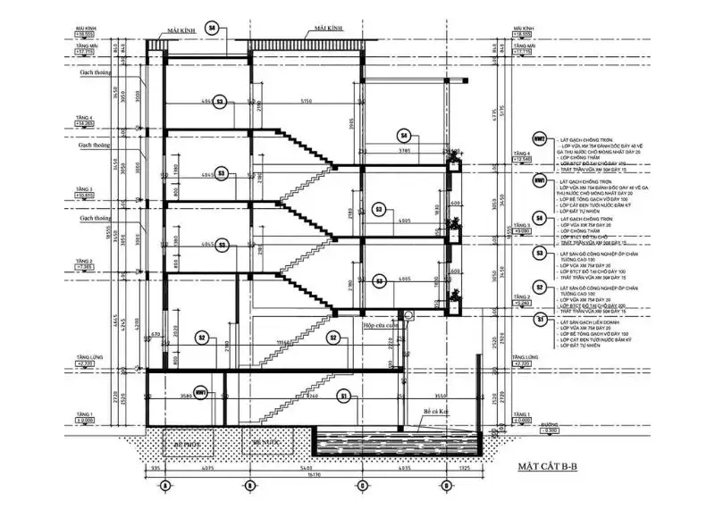
Thiết kế nhà 5x16m có thang máy với kiến trúc 4 tầng
Mẫu nhà ngang 5m dài 16m có thang máy mang đến không gian sống tiện nghi, phù hợp cho gia đình có 2-3 thế hệ chung sống. Ngoại thất được phủ lớp sơn trắng tinh khôi, gợi lên vẻ đẹp thanh lịch và nhã nhặn. Nổi bật trên nền trắng là hệ lan can màu vàng đồng với những chi tiết uốn lượn tinh tế, mang đậm nét đặc trưng của phong cách Tân Cổ Điển. Đặc biệt, mặt tiền còn thiết kế bức chương điêu khắc đồ sộ, tạo cảm giác trang hoàng và bề thế cho ngôi nhà.



Mẫu nhà 5x16m 1 tầng (cấp 4) có 2 phòng ngủ
Với diện tích sử dụng 80m², mẫu nhà 1 tầng 5x16m với 2 phòng ngủ dưới đây là lựa chọn lý tưởng cho gia đình nhỏ từ 2-3 thành viên. Để tối ưu hóa không gian và tạo sự thoáng đãng, ngôi nhà được thiết kế với mái Thái có độ dốc cao, mang lại vẻ ngoài thanh thoát cho mẫu nhà. Không chỉ vậy, mặt tiền bố trí hệ kính nhôm Xingfa, không chỉ tăng vẻ đẹp thẩm mỹ mà còn giúp lấy sáng tối đa cho không gian bên trong.


Mẫu nhà gác lửng 5×16 với thiết kế tối giản và tinh tế
Nhờ lối thiết kế tối giản, mẫu nhà gác lửng 5×16 giúp tiết kiệm chi phí xây dựng cho gia đình nhỏ có ngân sách hạn chế. Ngoại thất ngôi nhà sử dụng những đường nét phóng khoáng, kết hợp với gam màu trắng đơn giản, gợi lên vẻ đẹp trang nhã. Nổi bật trên nền trắng tinh khôi ấy là những chi tiết vòm uốn lượn mềm mại, giúp tôn lên nét tinh tế và thanh lịch cho mẫu nhà.

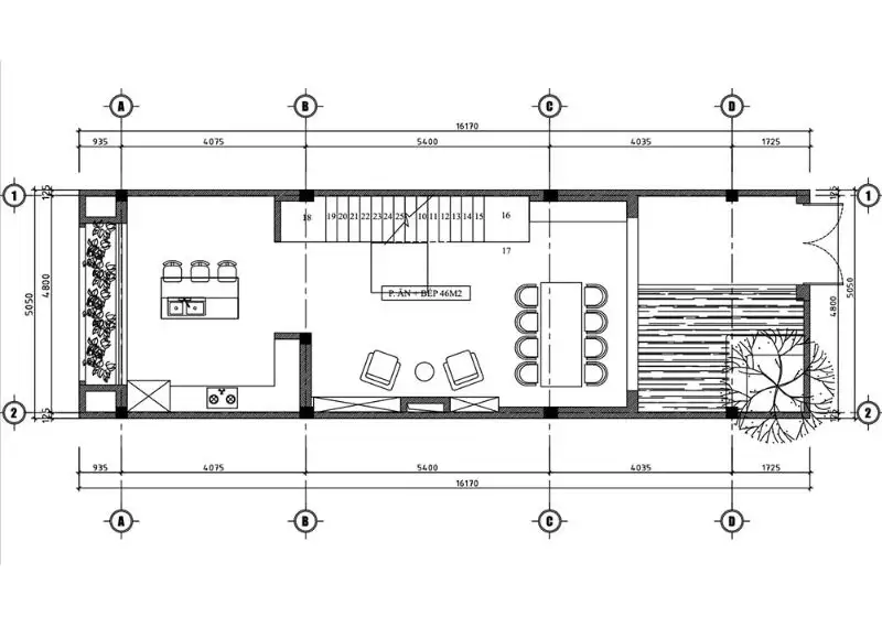
Mặt bằng nhà phố ngang 5m dài 16m bố trí công năng tối ưu và tiết kiệm diện tích
Mặt bằng 2D mẫu nhà ống 5×16 lệch tầng






Bản vẽ cad nhà 2 tầng 5×16 có tầng tum

Bản vẽ mặt bằng nhà ống 1 tầng 5x16m có tầng lửng


Dự toán chi phí xây dựng một số mẫu nhà 5×16 mới nhất hiện nay
Dưới đây là khoảng giá ước tính cho việc xây dựng một số mẫu nhà 5×16 phổ thông hiện nay:
- Ngân sách xây nhà cấp 4 (1 tầng) diện tích 5x16m khoảng từ 536.000.000 đến 632.000.000 đồng.
- Chi phí xây nhà 2 tầng 5×16 dao động từ 1.070.000.000 đến 1.260.000.000 đồng.
- Chi phí thi công nhà 3 tầng ngang 5m sâu 16m từ 1.610.000.000 đến 1.900.000.000 đồng.
- Dự toán chi phí xây dựng nhà 4 tầng 5x16m trung bình khoảng 2.140.000.000 đến 2.530.000.000 đồng.
Một số chi phí khác chưa gồm trong gói xây dựng như:
- Phí tháo dỡ công trình: từ 5.000.000 đến 20.000.000 đồng.
- Phí san lấp mặt bằng: 170.000 VNĐ – 300.000 VNĐ/m3.
- Phí lắp thang máy khoảng: 120.000.000 đồng. (thang cho nhà 3 tầng)
- Phí hoàn công nhà: từ 20.000.000 – 40.000.000 đồng.
>> Xem thêm: Bảng báo giá xây dựng nhà trọn gói
Trên đây Nhất Tín đã tổng hợp những mẫu nhà 5x16m với thiết kế tinh xảo và cuốn hút. Hy vọng những hình ảnh được chúng chia sẻ phía trên sẽ là nguồn cảm hứng dồi dào để bạn xây dựng ngôi nhà mơ ước cho gia đình của mình. Nếu bạn cần tư vấn về mẫu thiết kế nhà ngang 5m dài 16m phù hợp, hoặc muốn tham khảo những bản vẽ 2D công năng chi tiết, hãy liên hệ ngay đến Nhất Tín để được hỗ trợ. Hotline: 0988607705 / Zalo: 0911062189.
>> Xem thêm: Mẫu nhà ngang 5m dài 13m tối ưu công năng
KS Tran Thang (Xaydungnhattin.com)










