Trong bối cảnh diện tích đất ngày càng hạn chế, những mẫu nhà 5×13 ngày càng trở thành lựa chọn phổ biến, phù hợp với phong cách sống của các gia đình hiện đại. Với thiết kế tối ưu, mẫu nhà này không chỉ đáp ứng đầy đủ công năng sử dụng mà còn tạo nên vẻ đẹp ấn tượng và độc đáo. Hãy cùng Nhất Tín khám phá những ý tưởng thiết kế nhà 5x13m tiện nghi và ấn tượng qua bài viết dưới đây!
>> Xem thêm: Mẫu mặt tiền nhà phố 5m đẹp
Tóm tắt nội dung
- 1 Mẫu nhà 5x13m 2 tầng 1 tum mái tôn mang phong cách Hiện Đại
- 2 Nhà 2 tầng 3 phòng ngủ 5×13 mang gam màu trang nhã
- 3 Mẫu thiết kế nhà 3 tầng 5x13m có gara ô tô tối ưu công năng
- 4 Mẫu thiết kế nhà ống 2 tầng 5x13m với kiến trúc 2 mái trước sau
- 5 Thiết kế nhà 5×13 mái bằng với mặt tiền phong cách Tân Cổ Điển
- 6 Mẫu nhà gác lửng 5×13 mái Thái với thiết kế kiểu chữ L tối ưu diện tích đất
- 7 Thiết kế nhà 5x13m có thang máy 4 tầng với mặt tiền ốp đá xám cuốn hút
- 8 Bản vẽ thiết kế nhà diện tích 5x13m lệch tầng có sân thượng không gian mở
- 9 Mẫu nhà cấp 4 5×13 mặt tiền chéo tối ưu phong thủy
- 10 Mẫu nhà ngang 5m dài 13m mái Nhật có bố trí công năng tiện nghi
- 11 Tham khảo bản vẽ công năng nhà phố 5x13m với bố trí khoa học và tối ưu
- 12 Dự tính chi phí xây nhà 5x13m trọn gói với các kích thước phổ biến hiện nay
Mẫu nhà 5x13m 2 tầng 1 tum mái tôn mang phong cách Hiện Đại
Mẫu nhà 2 tầng 1 tum 5x13m mái tôn là giải pháp tối ưu chi phí cho những gia đình có ngân sách hạn chế. Nhờ những đường nét vuông vắn cùng bố cục đơn giản, mẫu nhà này tập trung vào công năng sử dụng. Đặc biệt, khu vực tầng trệt được thiết kế với mái che bằng tấm lợp polycarbonate, giúp lấy sáng và chống tia UV hiệu quả.





Nhà 2 tầng 3 phòng ngủ 5×13 mang gam màu trang nhã
Nhà 2 tầng 3 phòng ngủ 5×13 sở hữu gam màu trang nhã tạo cảm giác hiện đại và tinh tế. Ngoại thất ngôi nhà được kết hợp giữa sắc trắng tinh khôi thanh lịch và kính cường lực khung nhôm đen hiện đại. Không chỉ vậy, mặt tiền mẫu nhà nổi bật với mảng tường ốp gạch trang trí màu xám tạo nên nét chấm phá đầy cuốn hút, làm nổi bật vẻ đẹp tổng thể của kiến trúc.




Mẫu thiết kế nhà 3 tầng 5x13m có gara ô tô tối ưu công năng
Mẫu thiết kế nhà 3 tầng 5x13m có gara ô tô là giải pháp tối ưu cho những gia đình muốn tận dụng triệt để công năng sử dụng. Thiết kế tầng trệt thông minh với khoảng sân trước rộng rãi, kết hợp mái che từ sân thượng tầng trên, tạo không gian bảo vệ xe hiệu quả. Bên cạnh đó, gara được bố trí cửa cuốn hiện đại, mang lại sự tiện lợi và tăng tính thẩm mỹ cho mặt tiền ngôi nhà.


Mẫu thiết kế nhà ống 2 tầng 5x13m với kiến trúc 2 mái trước sau
Mẫu thiết kế nhà ống 2 tầng 5x13m gây ấn tượng với kiến trúc 2 mái trước sau độc đáo. Thiết kế mái dốc hai phía không chỉ giúp thoát nước hiệu quả mà còn cải thiện khả năng chống nóng cho ngôi nhà. Nhờ vậy mà, mẫu nhà này được nhiều gia đình ưa chuộng. Không những thế, mặt tiền nổi bật với tông màu trắng chủ đạo, kết hợp hài hòa với hệ kính và đá ốp, tạo nên vẻ ngoài sang trọng và cuốn hút.



Thiết kế nhà 5×13 mái bằng với mặt tiền phong cách Tân Cổ Điển
Sở hữu những đường nét trang trí cầu kỳ và tinh tế, mẫu nhà 5×13 mái bằng Tân Cổ Điển dưới đây gợi lên nét đẹp sang trọng và trang nhã. Sự tinh tế này được thể hiện qua những họa tiết uốn lượn tinh xảo trên phần mái và hệ cột trụ. Không chỉ vậy, màu sơn trắng được chọn làm gam màu chủ đạo, làm nổi bật những chi tiết hoa văn vàng đồng và cửa gỗ nâu đỏ, tạo nên tổng thể hài hòa và ấn tượng cho ngôi nhà.




Mẫu nhà gác lửng 5×13 mái Thái với thiết kế kiểu chữ L tối ưu diện tích đất
Mẫu nhà gác lửng 5×13 mái Thái mang đến không gian sống tiện nghi và tối ưu diện tích hiệu quả. Thiết kế chữ L giúp tận dụng tối đa quỹ đất, tạo thêm khoảng không gian linh hoạt cho việc bố trí công năng. Đặc biệt, mái Thái không chỉ tôn lên nét đẹp truyền thống mà còn giúp mở rộng không gian, đảm bảo sự thông thoáng cho tầng lửng áp mái.




Thiết kế nhà 5x13m có thang máy 4 tầng với mặt tiền ốp đá xám cuốn hút
Thiết kế nhà 5x13m có thang máy 4 tầng là lựa chọn hoàn hảo cho gia đình phố thị từ 4-6 thành viên. Kiến trúc 4 tầng kết hợp với thang máy không chỉ tăng cường tính tiện nghi mà còn thuận lợi cho việc di chuyển giữa các tầng. Đồng thời, ngoại thất của ngôi nhà được ốp đá tự nhiên màu xám sang trọng. Cùng với đó là các đường vân đá tinh tế ở phía mặt tiền, góp phần nâng cao tính thẩm mỹ và mang lại vẻ đẹp đẳng cấp cho ngôi nhà.



Bản vẽ thiết kế nhà diện tích 5x13m lệch tầng có sân thượng không gian mở
Mặc dù mặt tiền chỉ 5m, Thiết kế nhà diện tích 5x13m lệch tầng vẫn mang đến cảm giác thông thoáng nhờ thiết kế sân thượng không gian mở. Phần mái trang trí phía mặt tiền sử dụng chất liệu ngói với thiết kế hình chóp làm tăng tính thẩm mỹ cho mặt tiền mẫu nhà. Đặc biệt, khu vực mái còn được thiết kế thêm sân thượng nhỏ, tạo ra không gian thư giãn thoải mái cho gia đình.



Mẫu nhà cấp 4 5×13 mặt tiền chéo tối ưu phong thủy
Mẫu nhà cấp 4 5×13 mà Nhất Tín chia sẻ dưới đây được thiết kế thông minh, giúp tối ưu phong thủy cho gia chủ. Với mặt tiền chéo hướng về phía Đông Nam, ngôi nhà giúp đón nhận ánh sáng tự nhiên và gió mát, tạo ra không gian sống thoáng đãng và dễ chịu. Đồng thời, kiến trúc hình khối tối giản cùng thiết kế cửa kính lớn không chỉ tối ưu chi phí xây dựng mà còn mang đến không gian mở kết nối tốt với thiên nhiên.


Mẫu nhà ngang 5m dài 13m mái Nhật có bố trí công năng tiện nghi
Mẫu nhà ngang 5m dài 13m mái Nhật được Nhất Tín chia sẻ dưới đây mang vẻ đẹp Á Đông pha chút nét Hiện Đại tiện nghi. Kiến trúc đặc sắc với khối hộp vuông vắn và gọn gàng, tối ưu hóa diện tích đất sử dụng. Không chỉ vậy, hệ mái Nhật được làm từ ngói cao cấp với độ dốc vừa phải, giúp cách nhiệt và thoát nước hiệu quả. Nhờ tính thẩm mỹ cao và công năng tối ưu, mẫu thiết kế này trở thành lựa chọn hàng đầu cho nhiều gia đình ở đô thị cũng như khu vực ngoại ô.



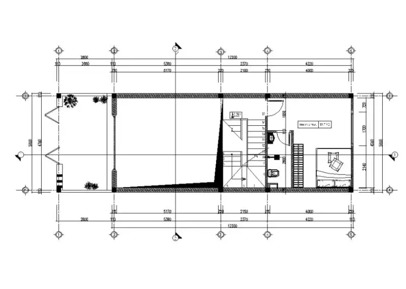
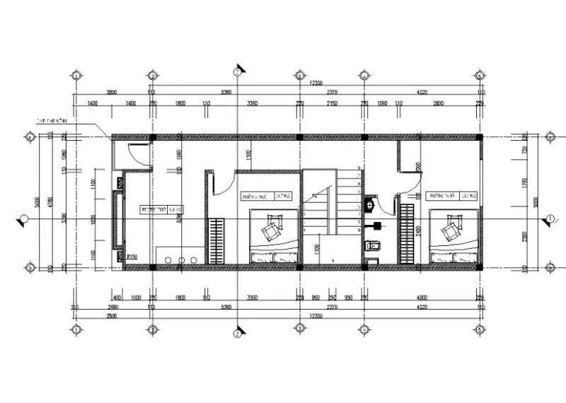
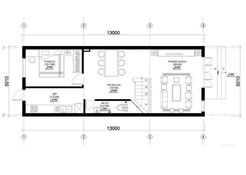
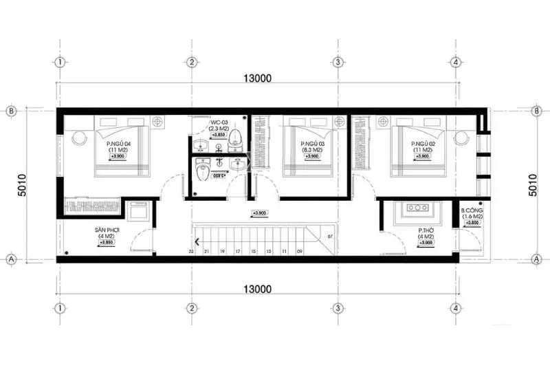
Tham khảo bản vẽ công năng nhà phố 5x13m với bố trí khoa học và tối ưu
Dưới đây là một số bản vẽ 2D nội thất nhà phố diện tích 5×13 phổ biến hiện nay. Liên hệ ngay với Nhất Tín để tham khảo bản vẽ cad nhà 5x13m chi tiết và hỗ trợ báo giá xây nhà miễn phí.
Mặt bằng bố trí công năng mẫu nhà 5x13m 3 tầng

Bản vẽ nhà phố 5x13m có tầng lửng



Bố trí công năng nội thất nhà ống 2 tầng ngang 5m sâu 13m


Dự tính chi phí xây nhà 5x13m trọn gói với các kích thước phổ biến hiện nay
Chi phí xây nhà 5×13 trọn gói phụ thuộc vào nhiều yếu tố như số tầng, vật liệu xây dựng, khu vực xây dựng và nhà thầu thi công. Dưới đây là dự toán ngân sách trọn gói xây nhà phố 5x13m tại Xây dựng Nhất Tín mời quý bạn đọc tham khảo:
- Mẫu nhà cấp 4 5×13: 416.000.000đ – 520.000.000 đ
- Mẫu nhà cấp 4 gác lửng 5×13: 624.000.000 đ – 780.000.000 đ
- Nhà 2 tầng 3 phòng ngủ 5×13: 871.000.000 đ – 1.110.000.000 đ
- Thiết kế nhà 1 trệt 1 lầu 5x13m có tầng tum và sân thượng: 1.090.000.000 đ – 1.380.000.000 đ
- Mẫu thiết kế nhà 3 tầng 5x13m: 1.310.000.000 đ – 1.660.000.000 đ
- Nhà phố 5x13m 4 tầng: 1.740.000.000 đ – 2.210.000.000 đ
Để có hiểu rõ hơn về cách tính và nhận báo giá chi tiết mời bạn đọc tham khảo bài viết: Báo giá xây nhà theo m2 – Trọn gói, chìa khóa trao tay
>> Xem thêm: Báo giá phần thô và nhân công hoàn thiện
Hy vọng những mẫu nhà 5×13 mà Nhất Tín chia sẻ trên đây sẽ là nguồn cảm hứng giúp bạn thiết kế ngôi nhà mơ ước của mình một cách hoàn hảo. Nếu bạn cần tư vấn thêm về nhiều mẫu thiết kế nhà 5x13m tối ưu, hãy liên hệ ngay với Nhất Tín để được hỗ trợ. Hotline: 0988607705 / Zalo: 0911062189.
>> Tham khảo thêm: Mẫu thiết kế nhà phố 5x12m đẹp
Thiết kế nhà ngang 5m dài 10m tối ưu công năng
KS Tran Thang (Xaydungnhattin.com)










