Nhờ sự linh hoạt trong thiết kế, mẫu nhà 5x18m mang đến vẻ đẹp độc đáo, thu hút mọi ánh nhìn. Bài viết dưới đây của Nhất Tín sẽ giới thiệu các mẫu thiết kế nhà 5x18m ấn tượng. Những mẫu thiết kế nhà ở này không chỉ thể hiện cá tính và gu thẩm mỹ riêng của từng gia chủ mà còn tạo ra không gian sống tiện nghi. Cùng tham khảo ngay!
>> Tham khảo thêm: Mẫu nhà ống mặt tiền 5m
Tóm tắt nội dung
- 1 Thiết kế nhà 5×18 có gara mang vẻ đẹp thời thượng
- 2 Mẫu nhà ống 5×18 mái tôn với kiến trúc 1 tầng 1 tum
- 3 Mẫu nhà 5×18 Hiện Đại 4 tầng với đường nét mặt tiền mềm mại
- 4 Mẫu nhà 3 tầng 5×18 ấn tượng với gam màu trắng và xanh Mint chủ đạo
- 5 Mẫu nhà cấp 4 5×18 trên lô đất lệch với thiết kế tối ưu diện tích đất
- 6 Mẫu nhà phố 5×18 có sân thượng với lối thiết kế mở
- 7 Nhà 5x18m 4 phòng ngủ với thiết kế mặt tiền độc đáo
- 8 Mẫu nhà đẹp 5×18 lệch tầng mang kiến trúc Tân Cổ Điển quý phái
- 9 Mẫu nhà gác lửng 5×18 kiến trúc Pháp tinh tế
- 10 Xem thêm các bản vẽ bố trí công năng nội thất nhà 5×18 phù hợp với các nhu cầu của gia đình
- 11 Tham khảo chi phí xây dựng trọn gói mẫu nhà phố 5x18m đẹp theo một số loại hình cụ thể
Thiết kế nhà 5×18 có gara mang vẻ đẹp thời thượng
Mẫu thiết kế nhà 5x18m có gara là giải pháp lý tưởng cho những gia đình sở hữu xe ô tô. Khu vực gara được bố trí riêng biệt ở tầng trệt, với mặt tiền ốp gạch granite vân mây màu kem, không chỉ tạo điểm nhấn ấn tượng mà còn bảo vệ không gian bên trong hiệu quả. Đặc biệt, mặt tiền của mẫu nhà được tô điểm với những mảng tường ốp gỗ xen kẽ, làm tôn lên vẻ đẹp ấm áp và sang trọng.



Mẫu nhà ống 5×18 mái tôn với kiến trúc 1 tầng 1 tum
Mẫu nhà ống 5×18 mái tôn với thiết kế 1 tầng 1 tum mà Nhất Tín giới thiệu dưới là giải pháp tối ưu chi phí cho gia đình từ 3-4 thành viên chung sống. Phần mái tôn được thiết kế theo kiểu mái dốc, giúp nước mưa dễ dàng thoát ra và tránh tình trạng ngập úng. Hệ mái được làm từ tôn cao cấp, không chỉ có khả năng chống thấm mà còn cách nhiệt hiệu quả, mang đến không gian mát mẻ và thoải mái cho các tầng dưới.



Mẫu nhà 5×18 Hiện Đại 4 tầng với đường nét mặt tiền mềm mại
Nếu bạn yêu thích vẻ đẹp độc đáo và phá cách, mẫu nhà 4 tầng 5x18m hiện đại dưới đây chắc chắn sẽ không làm bạn thất vọng. Kiến trúc của ngôi nhà gây ấn tượng với thiết kế hình trăng khuyết mềm mại, tôn lên nét tinh tế và cuốn hút cho vẻ ngoài. Không chỉ vậy, mặt tiền còn được tô điểm bởi những mảng tường gạch xây tô mộc mạc, tạo cảm giác gần gũi và ấm áp.



Mẫu nhà 3 tầng 5×18 ấn tượng với gam màu trắng và xanh Mint chủ đạo
Mẫu nhà 3 tầng 5×18 dưới đây mang đến cảm giác phóng khoáng và tươi mới với gam màu trắng tinh khôi kết hợp xanh Mint dịu mát. Sự phối hợp này không chỉ tạo cảm giác nhẹ nhàng, thanh thoát mà còn mang đến nét tinh tế, hiện đại và đầy phá cách. Đặc biệt, kiến trúc ngoại thất gây ấn tượng với các khối trụ mở, vừa tạo điểm nhấn độc đáo vừa giúp không gian bên trong luôn thông thoáng, tràn ngập ánh sáng tự nhiên.



Mẫu nhà cấp 4 5×18 trên lô đất lệch với thiết kế tối ưu diện tích đất
Với lối thiết kế thông minh, mẫu nhà cấp 4 5x18m tận dụng tối đa diện tích, khắc phục hiệu quả nhược điểm đất không vuông vắn. Kiến trúc mẫu nhà được thiết kế tối giản với đường nét thanh thoát và tinh tế, tạo nên vẻ đẹp sang trọng nhưng không kém phần tiện nghi. Nhờ vậy mà, không gian sống trở nên rộng rãi, thoải mái và đáp ứng đầy đủ nhu cầu sinh hoạt cho gia đình nhỏ từ 2-3 thành viên.




Mẫu nhà phố 5×18 có sân thượng với lối thiết kế mở
Mẫu nhà phố 5×18 với thiết kế sân thượng mang đến không gian sống thoáng đãng và thoải mái. Tầng thượng được thiết kế mở, kết hợp mái che lam sắt sọc tinh tế, vừa cản nắng, che mưa, vừa duy trì sự thông thoáng cho không gian bên trong mẫu nhà. Bên cạnh đó, mẫu nhà sử dụng cửa kính lớn giúp tận dụng tối đa ánh sáng tự nhiên, mang đến một không gian tràn đầy sức sống cho ngôi nhà.



Nhà 5x18m 4 phòng ngủ với thiết kế mặt tiền độc đáo
Mẫu nhà 5x18m 4 phòng ngủ gây ấn tượng bởi thiết kế độc đáo và cuốn hút. Mặt tiền sử dụng mảng tường ốp gỗ ngang, mang lại cảm giác ấm áp và hài hòa với thiên nhiên. Ban công tầng 3 được thiết kế với hệ lam bê tông dạng thanh dọc, vừa tạo điểm nhấn thẩm mỹ vừa giảm bớt tác động trực tiếp của nắng. Ngoài ra, hệ lam kim loại ở mặt tiền giúp điều hòa không khí, đảm bảo sự thông thoáng và tăng thêm nét hiện đại cho ngôi nhà.



Mẫu nhà đẹp 5×18 lệch tầng mang kiến trúc Tân Cổ Điển quý phái
Mẫu nhà đẹp 5x18m lệch tầng Tân Cổ Điển là sự giao thoa tinh tế giữa vẻ đẹp cổ điển và tiện nghi hiện đại. Ngoại thất mẫu nhà ấn tượng với hệ cột trụ vững chãi kết hợp cùng đường phào chỉ tinh xảo, tạo nên tổng thể bề thế và sang trọng. Đặc biệt, bức chương chạm khắc hoa văn tinh xảo không chỉ tôn lên nét cổ kính mà còn thể hiện sự quyền quý, làm nổi bật dấu ấn đẳng cấp của ngôi nhà.



Mẫu nhà gác lửng 5×18 kiến trúc Pháp tinh tế
Lấy cảm hứng từ kiến trúc Pháp, mẫu nhà gác lửng 5×18 toát lên vẻ đẹp sang trọng và tinh tế. Mặt tiền nổi bật với bức chương đồ sộ được chạm khắc phù điêu tinh xảo, kết hợp cùng mảng tường ốp đá vàng, tạo nên diện mạo quý phái và bề thế. Không chỉ vậy, để tối ưu không gian sống, phần gác lửng được thiết kế với cửa sổ lớn hướng ra sân thượng, mang lại sự thông thoáng và tràn ngập ánh sáng tự nhiên.



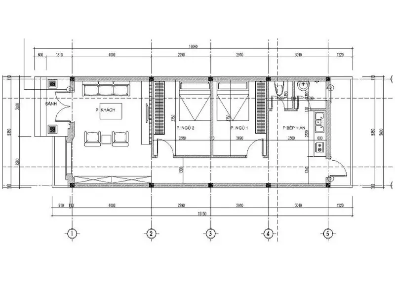
Xem thêm các bản vẽ bố trí công năng nội thất nhà 5×18 phù hợp với các nhu cầu của gia đình
Bản vẽ nhà ống 2 tầng 5x18m 3 phòng ngủ


Mặt bằng công năng mẫu nhà 5x18m 3 tầng có phòng thờ



Bản vẽ 2D nhà cấp 4 mặt tiền 5m sâu 18m


Tham khảo chi phí xây dựng trọn gói mẫu nhà phố 5x18m đẹp theo một số loại hình cụ thể
| Loại hình nhà ở | Ngân sách xây dựng |
| Nhà phố 5x18m đẹp quy mô 3 tầng | 1.810.000.000 đ – 2.300.000.000 đ |
| Mẫu nhà đẹp 5×18 2 tầng | 1.210.000.000 đ – 1.530.000.000 đ |
| Mẫu nhà gác lửng 5×18 (cấp 4 gác lửng) | 864.000.000 đ – 1.050.000.000 đ |
| Mẫu nhà ngang 5m dài 18m 2 tầng 1 tum | 1.510.000.000 đ – 1.910.000.000 đ |
| Thiết kế nhà 4 tầng 5x18m | 2.410.000.000 đ – 3.060.000.000 đ |
>> Xem thêm: Báo giá xây dựng trọn gói chìa khóa trao tay
Như vậy, nội dung trên Xây dựng Nhất Tín đã mang đến những mẫu nhà 5x18m đầy ấn tượng, chinh phục mọi ánh nhìn. Hy vọng bài viết này sẽ truyền cảm hứng, giúp bạn tìm ra ý tưởng thiết kế phù hợp với nhu cầu và phong cách riêng của gia đình. Để khám phá thêm nhiều mẫu nhà đẹp 5×18 khác, hãy truy cập website Xây dựng Nhất Tín hoặc liên hệ ngay qua Hotline để được tư vấn chi tiết. Hotline: 0988607705 / Zalo: 0911062189.
>> Xem thêm:
Top những mẫu nhà phố 5×16 chinh phục mọi ánh nhìn
KS Tran Thang (Xaydungnhattin.com)










