Bạn đang tìm kiếm ý tưởng cho mẫu nhà 60m2 đẹp vừa hiện đại, vừa tận dụng tối đa công năng? Với diện tích vừa phải, những mẫu thiết kế thông minh sẽ giúp không gian trở nên thoáng rộng và tiện nghi hơn bao giờ hết. Cùng xem qua các thiết kế nhà phố 60m2 mà Xây dựng Nhất Tín cung cấp ngay bên dưới để lựa chọn phương án phù hợp nhất cho tổ ấm của bạn.
>> Tham khảo thêm: Tổng hợp mẫu nhà đẹp giá rẻ đáng xây nhất năm nay
Tóm tắt nội dung
- 1 Thiết kế nhà 60m2 2 tầng 1 tum tông trắng mang phong cách Địa Trung Hải
- 2 Nhà cấp 4 6x10m mái Thái nổi bật với đường nét Hiện Đại
- 3 Thiết kế nhà phố 60m2 lô góc có 2 mặt tiền ấn tượng
- 4 Mẫu nhà phố 60m2 mái ngói có gác lửng nổi bật với thiết kế lam dọc trang trí mặt tiền
- 5 Thiết kế nhà 60m2 mặt tiền 4m ốp gạch màu xám độc đáo
- 6 Mẫu nhà đẹp 60m2 5 tầng có thang máy với thiết kế mái Mansard sang trọng
- 7 Thiết kế nhà 60m2 mặt tiền 5m 4 tầng mái bằng với gam màu trang nhã
- 8 Thiết kế nhà 60m2 3 tầng 3 phòng ngủ kết hợp kinh doanh tiện ích
- 9 Thiết kế nhà 60m2 mặt tiền 6m mái Nhật với quy mô 3 tầng bề thế
- 10 Bản vẽ nhà phố 60m2 với cách bố trí khoa học, tối ưu
- 11 Bảng giá thiết kế và thi công nhà 60m2 theo loại hình nhà ở mới nhất
Thiết kế nhà 60m2 2 tầng 1 tum tông trắng mang phong cách Địa Trung Hải
Thiết kế nhà 60m2 Địa Trung Hải mang đến vẻ đẹp phóng khoáng, gần gũi với thiên nhiên. Ngôi nhà được xây dựng 2 tầng có tum, tạo thêm không gian sinh hoạt tiện nghi và thoáng đãng cho gia đình. Đặc biệt, những đường nét mềm mại kết hợp gam màu ấm đặc trưng giúp căn nhà toát lên sự tinh tế và ấm cúng. Đây là lựa chọn lý tưởng cho những ai yêu thích sự thanh bình nhưng vẫn muốn đảm bảo công năng đầy đủ.


Nhà cấp 4 6x10m mái Thái nổi bật với đường nét Hiện Đại
Mẫu nhà cấp 4 6x10m gây ấn tượng bởi mái Thái tinh tế cùng tông trắng trang nhã, mang lại không gian sống sáng sủa và dễ chịu. Không chỉ vậy, kiểu dáng gọn gàng cùng đường nét rõ ràng giúp ngôi nhà thêm phần thanh thoát, tạo cảm giác rộng rãi hơn so với diện tích thực tế. Đây là lựa chọn lý tưởng cho gia đình mong muốn một không gian sống tiện nghi, thẩm mỹ và bắt kịp xu hướng kiến trúc hiện nay.


>> Tham khảo thêm: Khám phá các thiết kế nhà 6m x 10m đẹp, sang trọng và tiết kiệm chi phí
Thiết kế nhà phố 60m2 lô góc có 2 mặt tiền ấn tượng
Thiết kế nhà phố 60m2 hai mặt tiền nằm ở vị trí góc giúp ngôi nhà tận dụng tối đa ánh sáng tự nhiên và mang đến không gian sống thoáng đãng, dễ chịu. Với ban công kính hiện đại kết hợp không gian xanh tinh tế, ngôi nhà mang lại cảm giác gần gũi với thiên nhiên nhưng vẫn giữ nét sang trọng cuốn hút. Kiến trúc gọn gàng, bố cục thông minh giúp tối ưu công năng, đồng thời khẳng định dấu ấn riêng cho gia chủ giữa lòng đô thị năng động.


Mẫu nhà phố 60m2 mái ngói có gác lửng nổi bật với thiết kế lam dọc trang trí mặt tiền
Mẫu nhà phố 60m2 với thiết kế mái ngói truyền thống kết hợp gác lửng thông minh mang đến sự hài hòa giữa công năng và thẩm mỹ. Kiểu mái ngói vừa tạo cảm giác gần gũi, vừa giúp ngôi nhà bền vững trước thời tiết. Trong khi đó, gác lửng mở rộng diện tích sử dụng, phù hợp với nhu cầu của nhiều gia đình. Đây là lựa chọn lý tưởng cho không gian sống tiện nghi trên diện tích nhỏ.



>> Tham khảo: Thiết kế mẫu nhà gác lửng đẹp – Sáng tạo trong từng mét vuông
Thiết kế nhà 60m2 mặt tiền 4m ốp gạch màu xám độc đáo
Thiết kế nhà 60m2 với mặt tiền 4m được ốp gạch kiến trúc xám mang đến vẻ đẹp tinh tế và bền vững theo thời gian. Sắc xám trung tính kết hợp cùng các đường nét kiến trúc gọn gàng giúp ngôi nhà trở nên nổi bật nhưng vẫn giữ được sự hài hòa với cảnh quan xung quanh. Cùng Nhất Tín tham khảo qua mẫu nhà nhà ngay bên dưới.


>> Tham khảo: Gợi ý thiết kế nhà rộng 4m dài 15m tiết kiệm chi phí, vẫn đảm bảo thẩm mỹ
Mẫu nhà đẹp 60m2 5 tầng có thang máy với thiết kế mái Mansard sang trọng
Mẫu nhà đẹp 60m2 5 tầng gây ấn tượng với mái Mansard sang trọng, làm nổi bật nét kiến trúc Pháp tinh tế và đẳng cấp. Thiết kế này không chỉ tạo nên diện mạo bề thế, cuốn hút mà còn khẳng định đẳng cấp cho gia chủ. Điểm cộng lớn của ngôi nhà là việc tích hợp thang máy tiện nghi, giúp di chuyển giữa các tầng trở nên thuận lợi – đặc biệt phù hợp cho gia đình nhiều thế hệ cùng sinh sống.



Thiết kế nhà 60m2 mặt tiền 5m 4 tầng mái bằng với gam màu trang nhã
Thiết kế nhà 60m2 mặt tiền 5m được thiết kế 4 tầng với bố cục hợp lý, mang đến không gian sống tiện nghi cho gia đình. Điểm nhấn ấn tượng nằm ở phần trần mặt tiền ốp gỗ, tạo cảm giác sang trọng và gần gũi, đồng thời tôn lên giá trị thẩm mỹ cho tổng thể công trình. Bên cạnh đó, với kiến trúc được chăm chút tỉ mỉ, ngôi nhà vừa hiện đại vừa cân đối, trở thành tổ ấm bền vững cho gia đình.


>>> Tham khảo thêm: Tư vấn các mẫu thiết kế nhà phố 5 x 12m hợp phong thủy, tiết kiệm chi phí xây dựng
Thiết kế nhà 60m2 3 tầng 3 phòng ngủ kết hợp kinh doanh tiện ích
Thiết kế nhà 60m2 3 tầng là lựa chọn lý tưởng cho những gia đình muốn kết hợp giữa không gian sống và kinh doanh. Tầng trệt được bố trí linh hoạt làm khu vực buôn bán, thuận tiện cho sinh hoạt hằng ngày. Hai tầng trên dành cho không gian ở, đảm bảo sự riêng tư và thoải mái. Với bố cục hợp lý cùng mặt tiền được thiết kế hài hòa, ngôi nhà vừa đáp ứng nhu cầu công năng, vừa tạo ấn tượng thẩm mỹ trong khu phố.


>> Có thể bạn quan tâm: Mẫu nhà đẹp 3 phòng ngủ – Lựa chọn lý tưởng cho gia đình 4 đến 6 người
Thiết kế nhà 60m2 mặt tiền 6m mái Nhật với quy mô 3 tầng bề thế
Thiết kế nhà 60m2 mặt tiền 6m mang phong cách hiện đại kết hợp mái Nhật tinh tế, tạo nên tổng thể kiến trúc hài hòa và sang trọng. Ban công rộng được bố trí ở các tầng không chỉ giúp lấy sáng, đón gió tự nhiên mà còn là không gian thư giãn lý tưởng cho gia đình. Với tỷ lệ kiến trúc cân đối và cách phối màu nhẹ nhàng, ngôi nhà vừa toát lên vẻ thanh thoát, vừa mang lại cảm giác thoáng đãng, dễ chịu trong từng chi tiết thiết kế.


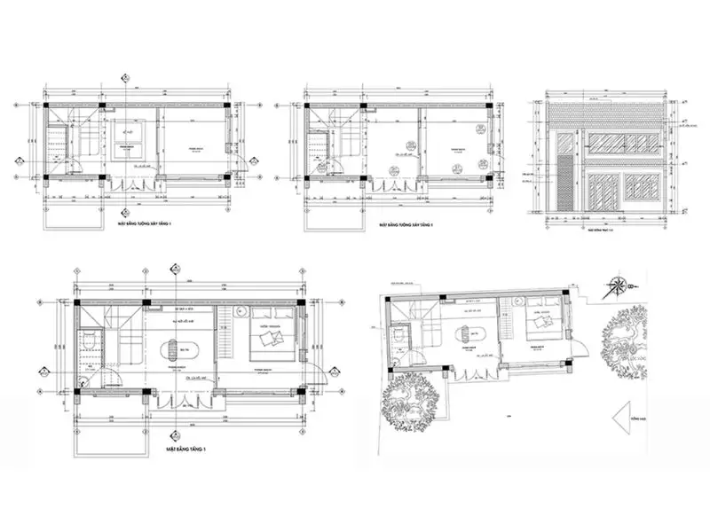
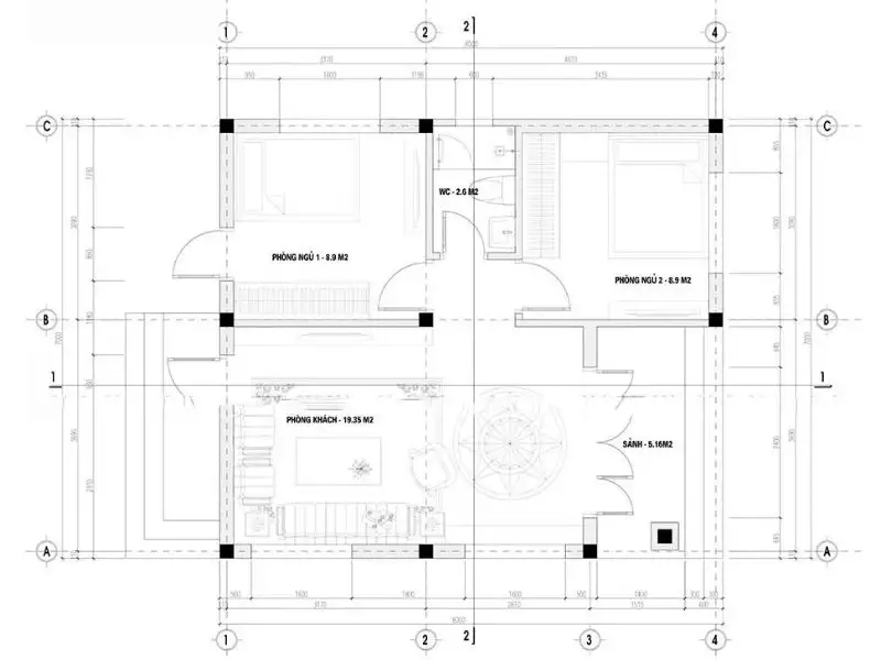
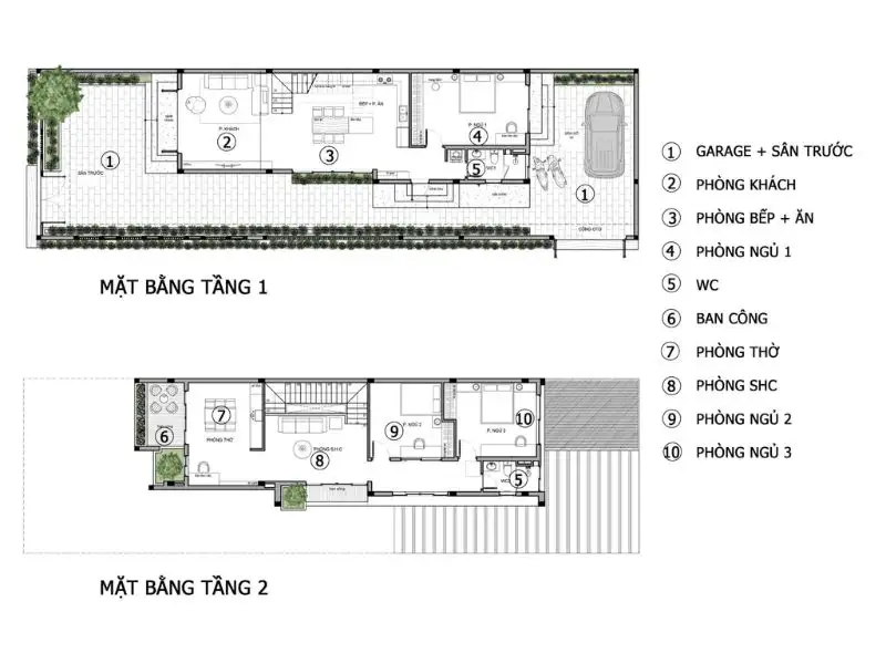
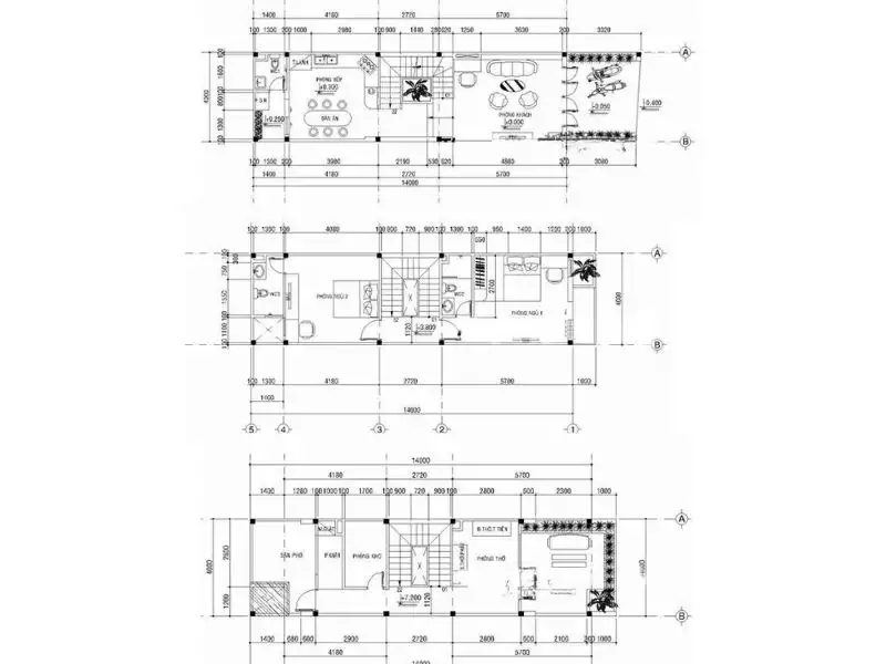
Bản vẽ nhà phố 60m2 với cách bố trí khoa học, tối ưu




Bảng giá thiết kế và thi công nhà 60m2 theo loại hình nhà ở mới nhất
Đơn giá thiết kế
| Bảng giá thiết kế | |||
| Hạng mục | Đơn giá (VNĐ/m2) | Nội dung công việc | Ghi chú |
| Thiết kế kết cấu, 3D mặt tiền | 100.000 – 130.000 | Thiết kế kết cấu, 3D mặt tiền. Dự toán chi phí xây nhà theo yêu cầu. | Chưa bao gồm thiết kế 3D nội thất |
| Thiết kế nhà phong cách Cổ Điển, mái Thái, Mái Nhật | 150.000 – 180.000 | Thiết kế kết cấu, 3D mặt tiền. Dự toán chi phí xây nhà theo yêu cầu. | |
| Thiết kế lâu đài, biệt thự | Liên hệ nhận báo giá chi tiết! | ||
| Thiết kế 3D nội thất | 100.000 – 150.000 | Thiết kế 3D nội thất Hiện Đại, Tân Cổ Điển, Cổ Điển,… Dự toán chi phí xây nhà theo yêu cầu. | Chưa bao gồm thiết kế kiến trúc, kết cấu |
| Thiết kế nhà trọn gói | 150.000 – 200.000 | Thiết kế kết cấu, 3D mặt tiền, 3D nội thất. Dự toán chi phí xây nhà theo yêu cầu. | |
*Ghi chú:
– Thiết kế nhà, nhà phố 2 mặt tiền đơn giá sẽ tăng 10.000 vnđ/m2.
– Đơn giá chưa bao gồm phí VAT.
– Miễn phí 100% thiết kế khi ký hợp đồng thi công.
>> Xem thêm: Cập nhật bảng báo giá thiết kế kiến trúc nhà phố trọn gói hiện nay
Đơn giá thi công
| Loại Hình Xây dựng | Đơn giá xây thô | Đơn giá hoàn thiện | Đơn giá xây trọn gói |
| Nhà cấp 4, Nhà Vườn | 3.300.000 vnđ – 3.600.000 vnđ/m2 | 1.400.000 – 1.950.000 đ/m2 | 4.450.000đ – 5.500.000đ/m2 |
| Nhà Phố 1 mặt tiền | 3.400.000 vnđ – 3.750.000 vnđ/m2 | 1.450.000 – 2.550.000 đ/m2 | 4.800.000đ – 5.900.000đ/m2 |
| Nhà Phố 2 mặt tiền | 3.450.000 vnđ – 3.800.000 vnđ/m2 | 1.800.000 – 2.750.000 đ/m2 | 5.000.000đ – 6.200.000đ/m2 |
| Biệt thự Tân Cổ Điển, mái Thái, mái Nhật, Villa | 3.500.000 vnđ – 3.850.000 vnđ/m2 | 1.900.000 – 3.450.000 đ/m2 | 5.150.000đ – 6.900.000đ/m2 |
| Nhà Hàng, khách sạn, Văn phòng, Nhà trọ… | 3.500.000 vnđ – 3.850.000 vnđ/m2 | Liên hệ | 4.700.000đ – 5.900.000đ/m2 |
>> Tham khảo:
Giá xây nhà trọn gói chìa khóa trao tay là bao nhiêu? Cập nhật chi tiết theo m²
Báo giá thi công phần thô – Cam kết rõ ràng, không phát sinh chi phí
Cập nhật bảng báo giá hoàn thiện nhà phần thô trọn gói hiện nay
Dự toán chi phí xây nhà 60m2 trọn gói
| Loại hình nhà ở | Khoảng chi phí |
| Nhà cấp 4 6x10m | 420.000.000đ đến 486.000.000đ |
| Thiết kế nhà phố 60m2 2 mặt tiền 2 tầng | 936.000.000đ đến 1.040.000.000đ |
| Thiết kế nhà 60m2 2 tầng 1 tum | 1.100.000.000đ đến 1.310.000.000đ |
| Thiết kế nhà 60m2 3 tầng | 1.310.000.000đ đến 1.570.000.000đ |
| Thiết kế nhà 5x12m 4 tầng | 1.750.000.000đ đến 2.090.000.000đ |
| Mẫu nhà đẹp 60m2 5 tầng | 2.190.000.000đ đến 2.610.000.000đ |
Ngoài ra, quý bạn đọc có thể tham khảo dự toán trong bảng sau với mức độ chính xác lên đến 99%:
Như vậy, bài viết trên đã giúp bạn có thêm những ý tưởng về các mẫu nhà 60m2 đẹp và tiện nghi. Với đội ngũ kiến trúc sư giàu kinh nghiệm, Nhất Tín luôn cam kết mang đến những giải pháp thiết kế phù hợp với nhu cầu và ngân sách của từng gia đình. Liên hệ ngay Hotline: 0988 607 705 hoặc Zalo: 0911 062 189 để được tư vấn chi tiết và nhận báo giá thiết kế xây dựng nhà phố 60m2 trọn gói hấp dẫn nhất hôm nay.
> Có thể bạn quan tâm: Mẫu nhà phố 50m2 đẹp theo tầng: 1 tầng, 2 tầng, 3 tầng…
KS Tran Nghia (xaydungnhattin.com)










