Mẫu nhà 90m2 đẹp tiện nghi mang đến không gian sống hiện đại và phù hợp với nhiều gia đình nhỏ hiện nay. Với diện tích vừa phải, kiến trúc sư thường chú trọng vào cách bố trí không gian hợp lý, tận dụng ánh sáng tự nhiên và vật liệu bền đẹp để tạo cảm giác thoáng rộng, sang trọng. Mỗi chi tiết đều được thiết kế tinh tế, hài hòa giữa thẩm mỹ và công năng sử dụng. Cùng Nhất Tín xem qua các mẫu thiết kế nhà phố 90m2 ngay bên dưới để chọn phong cách yêu thích cho tổ ấm của bạn.
>> Xem thêm: Mẫu Nhà Đẹp Giá Rẻ – Giải Pháp Hoàn Hảo Cho Tổ Ấm Tiết Kiệm
Tóm tắt nội dung
- 1 Nhà 90m2 cấp 4 có gác lửng Hiện Đại giải pháp kiến trúc năng động
- 2 Thiết kế nhà 90m2 2 tầng mái bằng kết hợp không gian xanh thư giãn
- 3 Nhà phố 90m2 mái Nhật thiết kế ban công rộng kết nối thiên nhiên
- 4 Thiết kế nhà phố 9x10m2 3 tầng kết hợp đường cong tinh tế tạo vẻ ngoài độc đáo
- 5 Thiết kế nhà 1 tầng 2 phòng ngủ 5x18m mái Thái tiện nghi cho gia đình trẻ
- 6 Thiết kế nhà 6×15 3 phòng ngủ có hầm với phong cách Tân Cổ Điển sang trọng
- 7 Mẫu nhà 2 tầng 90m2 đẹp có tum kết hợp kinh doanh shop quần áo giúp gia chủ tiết kiệm chi phí
- 8 Mẫu nhà 90m2 2 tầng chữ L mái xéo độc lạ
- 9 Bản vẽ bố trí công năng 2D mẫu nhà phố 90m2 tối ưu diện tích
- 10 Ước tính ngân sách xây dựng mẫu nhà 90m2 theo loại hình cụ thể
Nhà 90m2 cấp 4 có gác lửng Hiện Đại giải pháp kiến trúc năng động
Nhà 90m2 cấp 4 có gác lửng là lựa chọn lý tưởng cho những gia đình muốn không gian sống vừa tiện nghi vừa tối ưu diện tích. Thiết kế ứng dụng phong cách kiến trúc hiện đại, chú trọng sự thông thoáng và liên kết không gian, mang đến cảm giác rộng rãi và hài hòa. Đặc biệt, gác lửng được bố trí thông minh, mở rộng công năng sử dụng mà vẫn giữ được nét hài hòa trong tổng thể, tạo nên không gian sống ấm cúng và đầy cảm hứng.


>> Tham khảo: Mẫu nhà gác lửng đơn giản
Thiết kế nhà 90m2 2 tầng mái bằng kết hợp không gian xanh thư giãn
Thiết kế nhà 90m2 2 tầng mái bằng mang đến vẻ đẹp tinh tế phù hợp với nhịp sống năng động ngày nay. Mẫu nhà được bố trí ban công lớn có lam che nắng, vừa tăng tính thẩm mỹ vừa giúp điều tiết ánh sáng tự nhiên và giảm nhiệt. Bên cạnh đó, những mảng cây xanh được bố trí xen kẽ giữa các tầng tạo không gian sống thiên nhiên mang lại không gian sống dễ chịu và tràn đầy năng lượng cho gia đình.


>> Xem thêm: Xây nhà 2 tầng 90m2 hết bao nhiêu tiền?
Nhà phố 90m2 mái Nhật thiết kế ban công rộng kết nối thiên nhiên
Nhà phố 90m2 nổi bật với thiết kế mái Nhật thanh thoát, giúp công trình toát lên nét sang trọng và cân đối trong từng đường nét kiến trúc. Điểm đặc biệt của mẫu nhà này là ban công lớn được tận dụng làm mái che cho khu vực sân phía dưới, vừa giúp che nắng mưa, vừa tạo không gian tiện lợi để đỗ xe và sinh hoạt ngoài trời. Cách bố trí thông minh này không chỉ tối ưu diện tích mà còn mang lại sự tiện nghi và thoải mái cho gia đình trong quá trình sử dụng.


Thiết kế nhà phố 9x10m2 3 tầng kết hợp đường cong tinh tế tạo vẻ ngoài độc đáo
Thiết kế nhà phố 9x10m2 3 tầng gây ấn tượng với tạo hình mặt tiền độc đáo, sử dụng các đường cong mềm mại kết hợp mảng tường phẳng tinh tế. Hệ thống cửa kính lớn và những ô cửa bo tròn không chỉ giúp lấy sáng tự nhiên mà còn mang đến cảm giác nhẹ nhàng, thanh thoát cho tổng thể kiến trúc. Mỗi tầng đều được bố trí mảng xanh xen kẽ, tạo không gian sống trong lành, đồng thời thể hiện gu thẩm mỹ và phong cách sống hiện đại của gia chủ.


>> Tham khảo: Thiết kế nhà ngang 9m dài 10m
Thiết kế nhà 1 tầng 2 phòng ngủ 5x18m mái Thái tiện nghi cho gia đình trẻ
Thiết kế nhà 1 tầng 2 phòng ngủ 5x18m ghi điểm với mái Thái tinh tế, vừa mang lại vẻ đẹp sang trọng vừa giúp ngôi nhà mát mẻ quanh năm. Cầu thang nổi được bố trí khéo léo, tạo điểm nhấn cho không gian và giúp việc di chuyển trở nên thuận tiện hơn. Từng chi tiết trong thiết kế đều được sắp đặt hợp lý, đảm bảo sự hài hòa giữa thẩm mỹ và công năng, mang đến một tổ ấm tiện nghi và đầy thoải mái cho gia đình.


>> Tham khảo: Tham khảo bst nhà phố 5x18m đẹp nhất năm nay
Thiết kế nhà 6×15 3 phòng ngủ có hầm với phong cách Tân Cổ Điển sang trọng
Thiết kế nhà 6×15 3 phòng ngủ mang vẻ đẹp thanh thoát của phong cách Tân Cổ Điển, nổi bật với gam màu trắng trang nhã làm chủ đạo. Bên cạnh đó, hệ phào chỉ tinh tế ở mặt tiền vừa ôm lấy khối nhà, vừa tạo điểm nhấn trang nhã và sâu sắc cho ngoại thất. Đặc biệt, sự kết hợp hài hòa giữa tỷ lệ hình khối và hoa văn trang trí giúp tổng thể ngôi nhà toát lên vẻ sang trọng, đẳng cấp nhưng vẫn giữ được sự nhẹ nhàng và tinh tế.


>> Xem thêm: Thiết kế nhà phố 6mx15m
Mẫu nhà 2 tầng 90m2 đẹp có tum kết hợp kinh doanh shop quần áo giúp gia chủ tiết kiệm chi phí
Mẫu nhà 2 tầng 90m2 đẹp là lựa chọn lý tưởng cho gia chủ muốn kết hợp giữa không gian sống và kinh doanh. Tầng trệt được thiết kế làm khu vực buôn bán thuận tiện, trong khi các tầng trên là không gian sinh hoạt tiện nghi với nội thất hiện đại và bố trí khoa học. Điểm nhấn của ngôi nhà là tầng tum và sân thượng thoáng đãng, mang lại nơi thư giãn lý tưởng sau những giờ làm việc, đồng thời giúp tổng thể công trình thêm cân đối và sang trọng.



Mẫu nhà 90m2 2 tầng chữ L mái xéo độc lạ
Mẫu nhà 90m2 kiểu chữ L mái xéo 2 tầng gây ấn tượng với hình khối kiến trúc độc lạ và tinh tế. Thiết kế chữ L giúp ngôi nhà có thêm khoảng không gian mở, dễ dàng bố trí sân trước hoặc tiểu cảnh xanh mát. Phần mái xéo tạo điểm nhấn phá cách, mang lại cảm giác cao ráo và thoáng đãng cho tổng thể. Sự kết hợp hài hòa giữa kiểu dáng hiện đại và công năng tiện nghi khiến mẫu nhà này trở thành lựa chọn được nhiều gia đình yêu thích hiện nay.


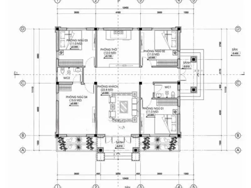
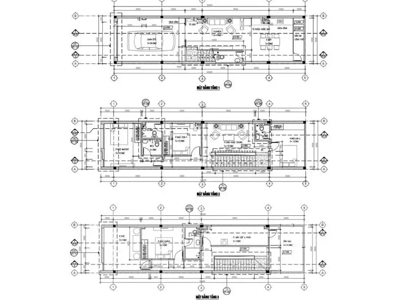
Bản vẽ bố trí công năng 2D mẫu nhà phố 90m2 tối ưu diện tích



Ước tính ngân sách xây dựng mẫu nhà 90m2 theo loại hình cụ thể
| Loại hình nhà ở | Khoảng chi phí |
| Nhà 90m2 cấp 4 có gác lửng | 985.500.000đ đến 1.170.000.000đ |
| Biệt thự mini 9x10m 2 tầng 1 tum | 1.640.000.000đ đến 1.960.000.000đ |
| Mẫu nhà 2 tầng 90m2 | 1.390.000.000đ đến 1.570.000.000đ |
| Mẫu thiết kế nhà 3 tầng 6x15m2 | 1.970.000.000đ đến 2.350.000.000đ |
| Mẫu nhà 5x18m2 1 tầng | 657.000.000đ đến 783.000.000đ |
>> Tham khảo thêm: Báo giá thi công xây dựng trọn gói tại Xây dựng Nhất Tín
Như vậy, những thiết kế nhà phố 90m2 Nhất Tín chia sẻ trên đây không chỉ mang đến không gian sống tiện nghi mà còn thể hiện gu thẩm mỹ tinh tế của gia chủ. Từ thiết kế ngoại thất đến cách bố trí công năng, mọi chi tiết đều được tính toán kỹ lưỡng để đảm bảo sự hài hòa và thoải mái. Nếu bạn đang tìm kiếm mẫu nhà 90m2 đẹp phù hợp với nhu cầu và ngân sách, hãy liên hệ ngay Xây dựng Nhất Tín qua Hotline: 0988 607 705 để được tư vấn và hỗ trợ trọn gói từ thiết kế đến thi công.
> Tham khảo thêm: Mẫu nhà diện tích 80m2 đẹp
KS Tran Nghia (xaydungnhattin.com)










