Mẫu nhà chữ U luôn được nhiều gia đình yêu thích bởi khả năng tạo nên không gian sống thoáng đãng, kết nối hài hòa giữa nội thất và sân vườn. Kiểu dáng này không chỉ mang lại sự tiện nghi trong sinh hoạt mà còn thể hiện nét đẹp kiến trúc độc đáo. Cùng Nhất Tín xem qua các mẫu thiết kế nhà chữ U đẹp nhất ngay bên dưới bài viết để tìm ý tưởng phù hợp cho ngôi nhà của bạn.
>> Tham khảo: BST thiết kế nhà dân dụng mới nhất năm nay
Tóm tắt nội dung
Mẫu nhà chữ U đẹp theo phong cách
Mẫu nhà chữ U 1 tầng kết hợp phong cách Tân Cổ Điển
Mẫu nhà chữ U 1 tầng phong cách Tân Cổ Điển nổi bật với vẻ đẹp sang trọng và ấn tượng ngay từ cái nhìn đầu tiên. Nổi bật nhất chính là phần cửa chính được thiết kế tinh xảo, với những chi tiết chạm khắc tỉ mỉ thể hiện sự đẳng cấp và tinh tế của gia chủ. Không gian chữ U giúp ngôi nhà trở nên thông thoáng, vừa tăng tính thẩm mỹ vừa tạo sự gắn kết hài hòa giữa sân vườn và khu vực sinh hoạt bên trong.


Mẫu nhà chữ U mái Thái kết hợp gạch kiến trúc hài hòa
Mẫu nhà chữ U với thiết kế mái Thái mang đến vẻ đẹp thanh thoát, gần gũi với thiên nhiên. Đặc biệt, không gian sân vườn nhỏ phía trước tạo điểm nhấn xanh mát, vừa giúp điều hòa không khí, vừa mang lại sự thư giãn cho gia chủ. Cùng Nhất Tín xem qua mẫu thiết kế nhà chữ U ngay bên dưới.


Mẫu nhà chữ U mái Nhật bề thế
Mẫu thiết kế chữ U mái Nhật chinh phục người nhìn nhờ hình khối bề thế, toát lên sự sang trọng và vững chãi. Khoảng sân giữa nhà được thiết kế mái che poly giúp che nắng mưa hiệu quả, đồng thời tạo nên không gian sinh hoạt chung thoáng mát và tiện lợi. Sự kết hợp hài hòa này không chỉ nâng tầm thẩm mỹ cho ngôi nhà mà còn đáp ứng tốt nhu cầu sử dụng hằng ngày của gia đình.


Thiết kế nhà chữ U phong thủy mang đến sự Hiện Đại đầy ấn tượng
Thiết kế nhà chữ U với bố cục cân đối và thoáng đãng, phù hợp cho nhiều gia đình hiện nay. Với phong cách Hiện Đại, mẫu nhà trở nên nổi bật nhờ phần ban công ở tầng 2 được tạo hình sắc mỹ thuật, vừa tăng tính thẩm mỹ vừa mang đến không gian thư giãn riêng tư. Nhờ sự hài hòa giữa công năng tối ưu và vẻ đẹp tinh tế, ngôi nhà trở thành lựa chọn lý tưởng cho cuộc sống tiện nghi.

Các mẫu nhà chữ U đẹp theo quy mô
Mẫu nhà chữ U mái Bằng 5 gian tông màu trắng sang trọng
Mẫu nhà chữ U mái bằng với thiết kế 5 gian truyền thống mang đến cảm giác gần gũi và cân đối. Tông trắng chủ đạo được sử dụng khéo léo, giúp không gian trở nên tinh khôi, thanh thoát và dễ dàng hòa hợp với cảnh quan xung quanh. Xem qua mẫu thiết kế này ngay bên dưới.


Thiết kế nhà hình chữ U mái xéo bắt mắt
Thiết kế nhà hình chữ U với mái xéo độc đáo làm nên sức hút đặc biệt cho ngôi nhà. Không chỉ vậy, kiểu dáng chữ U tạo nên khoảng sân thoáng đãng, phía giữa sân được bố trí làm nơi thư giãn nghỉ ngơi, mang lại sự thoải mái cho gia đình. Chất liệu gỗ được sử dụng tinh tế trong nhiều chi tiết trang trí, giúp tổng thể công trình thêm ấm áp và giữ trọn nét đẹp bền vững theo thời gian.

Mẫu nhà hình chữ U đẹp ở nông thôn kết hợp phòng thờ
Mẫu nhà hình chữ U đẹp không chỉ ghi điểm nhờ bố cục thoáng đãng mà còn thể hiện sự chỉn chu trong từng chi tiết. Phía trên ngôi nhà được bố trí phòng thờ trang nghiêm, đáp ứng yếu tố phong tục truyền thống của gia đình Việt. Điểm nhấn lan can lục bình được kết hợp hài hòa, mang lại nét tinh tế và sang trọng cho toàn bộ mặt tiền, giúp công trình vừa bền vững vừa giữ trọn tính thẩm mỹ.



Mẫu nhà chữ U 2 tầng đẹp có sân vườn thông thoáng
Mẫu nhà chữ U 2 tầng toát lên vẻ sang trọng nhờ những đường phào chỉ tinh xảo, cột trụ bề thế cùng hệ mái đối xứng cân đối. Mặt tiền sử dụng gam trắng chủ đạo kết hợp cửa kính khung gỗ, mang đến sự hài hòa và điểm nhấn nổi bật cho tổng thể công trình. Nhờ đó, ngôi nhà không chỉ đẹp về hình thức mà còn thể hiện phong cách sống hiện đại và tinh tế.

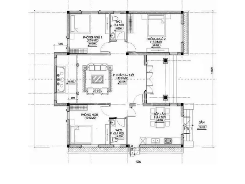
Bản vẽ mẫu nhà chữ U tối ưu công năng sử dụng


Dự toán chi phí xây dựng mẫu nhà chữ U theo diện tích
| Loại hình nhà ở | Khoảng chi phí |
| Mẫu nhà chữ U cấp 4 10×15 | 1.050.000.000 đ đến 1.220.000.000 đ |
| Mẫu nhà chữ U 1 tầng có gác lửng 72m2 | 788.400.000đ đến 896.400.000đ |
| Mẫu nhà chữ U 2 tầng 110m2 | 1.610.000.000đ đến 1.910.000.000đ |
| Mẫu nhà chữ U Tân Cổ Điển 3 tầng 90m2 | 2.190.000.000đ đến 2.510.000.000đ |
>> Tham khảo: Chi phí xây dựng nhà
Như vậy, qua những gợi ý trên, bạn đã có thêm ý tưởng về mẫu nhà chữ U vừa thẩm mỹ vừa tối ưu công năng. Nếu bạn đang tìm đơn vị thiết kế và thi công uy tín, Xây dựng Nhất Tín chính là lựa chọn đáng tin cậy. Đội ngũ kiến trúc sư giàu kinh nghiệm của chúng tôi sẵn sàng mang đến không gian sống sang trọng và bền vững. Liên hệ ngay qua Hotline: 0988607705 hoặc Zalo: 0911062189 để được tư vấn chi tiết.
>> Tham khảo thêm: Mẫu nhà chữ a đẹp
KS Tran Nghia (xaydungnhattin.com)










