Với lợi thế diện tích rộng, thiết kế nhà 200m2 mở ra không gian sống đầy cảm hứng – nơi từng đường nét kiến trúc hòa quyện giữa thẩm mỹ và tiện nghi. Dù theo phong cách tinh giản hay sang trọng, mỗi thiết kế đều toát lên dấu ấn riêng của gia chủ. Ngay bài viết bên dưới, Nhất Tín sẽ gợi mở những ý tưởng độc đáo, giúp bạn tìm thấy phiên bản hoàn hảo nhất cho mẫu nhà phố 200m2 mơ ước của mình.
>> Xem thêm: Thiết kế mẫu nhà đẹp
Tóm tắt nội dung
- 1 Gợi ý mẫu nhà 200m2 đẹp thiết kế tối ưu diện tích và công năng cho từng quy mô
- 1.1 Thiết kế nhà 200m2 1 tầng 3 phòng ngủ mái Nhật có gara riêng biệt đầy tinh tế
- 1.2 Thiết kế nhà 200m2 2 tầng mái Thái có phòng làm việc riêng yên tĩnh
- 1.3 Thiết kế nhà phố 200m2 3 tầng (10x20m) với khuôn viên xanh mát bao phủ khắp mọi góc nhà
- 1.4 Nhà 200m2 Villa mặt tiền 14m hòa quyện giữa kiến trúc và thiên nhiên
- 1.5 Thiết kế nhà đẹp 200m2 4 tầng Tân Cổ Điển thể hiện đẳng cấp và gu tinh tế
- 2 Thiết kế nhà trên đất 200m2 (theo từng loại hình) tạo dấu ấn riêng cho không gian sống
- 2.1 Mẫu biệt thự mặt bằng nhà phố 200m2 (8x20m) tối giản Hiện Đại cho gia đình thành thị
- 2.2 Thiết kế nhà vườn 200m2 2 tầng phong cách Indochine mang đến cảm giác thân thuộc
- 2.3 Thiết kế nhà trọ 200m2 bố trí nhiều phòng ngủ khoa học, dễ quản lý
- 2.4 Khách sạn 10x20m với ngoại thất bắt mắt
- 2.5 Thiết kế nhà 200m2 kiểu Pháp chuẩn sống sang với phòng khách lớn
- 3 Bản vẽ 2D mặt bằng nhà 200m2 bố trí tiện ích thông minh
- 4 Xây nhà 200m2 hết bao nhiêu tiền? Bảng giá xây nhà trọn gói với thiết kế nhà 200m2 đa công năng
Gợi ý mẫu nhà 200m2 đẹp thiết kế tối ưu diện tích và công năng cho từng quy mô
Thiết kế nhà 200m2 1 tầng 3 phòng ngủ mái Nhật có gara riêng biệt đầy tinh tế
Thiết kế nhà 200m2 1 tầng 3 phòng ngủ ghi điểm với hệ mái Nhật thanh thoát, mang đến vẻ đẹp cân đối và tinh tế cho tổng thể công trình. Phía trước sân được bố trí mái che poly trong suốt thuận tiện cho việc đỗ xe và bảo quản xe cộ của gia đình. Sự kết hợp hài hòa giữa kiến trúc và công năng giúp ngôi nhà không chỉ đẹp mắt mà còn mang lại cảm giác tiện nghi, gần gũi với thiên nhiên.
- Diện tích: Nhà cấp 4 3 phòng ngủ 20x10m
- Chi phí: 1.460.000.000đ đến 1.540.000.000đ


>> Tham khảo: Mẫu nhà đẹp 3 phòng ngủ tối ưu công năng
Thiết kế nhà 200m2 2 tầng mái Thái có phòng làm việc riêng yên tĩnh
Thiết kế nhà 200m2 2 tầng ghi điểm với hệ mái Thái cân đối và thanh thoát, tạo nên diện mạo sang trọng cho tổng thể công trình. Mặt tiền được điểm xuyết bằng họa tiết trang trí tinh tế, giúp không gian trở nên cuốn hút và giàu tính thẩm mỹ. Bên trong, ngôi nhà bố trí phòng làm việc riêng biệt, đảm bảo sự yên tĩnh cần thiết giữa nhịp sống hiện đại, đồng thời mang lại cảm giác ấm cúng và tiện nghi cho cả gia đình.
- Diện tích: nhà 3 tầng 12,5x16m
- Chi phí: 3.360.000.000đ đến 3.480.000.000đ





>> Tham khảo: Chi phí xây nhà 2 tầng 200m2
Thiết kế nhà phố 200m2 3 tầng (10x20m) với khuôn viên xanh mát bao phủ khắp mọi góc nhà
Thiết kế nhà phố 200m2 3 tầng gây ấn tượng với kiến trúc vuông vắn, cân đối trong từng đường nét. Đặc biệt, không gian xanh được sắp đặt tinh tế bao phủ mặt tiền ở các tầng, mang lại cảm giác mát mẻ và gần gũi với thiên nhiên. Sự kết hợp giữa hình khối vững chãi và mảng xanh mềm mại tạo nên một tổng thể hài hòa, vừa sang trọng vừa mang đến sự thư thái cho gia chủ trong từng khoảnh khắc sinh hoạt.
- Diện tích: nhà 3 tầng 10×20
- Chi phí: 4.380.000.000đ đến 4.620.000.000đ


>> Tham khảo: Thiết kế nhà ngang 10m dài 20m
Nhà 200m2 Villa mặt tiền 14m hòa quyện giữa kiến trúc và thiên nhiên
Nhà 200m2 Villa sở hữu gam màu thanh lịch cùng mặt tiền rộng 14m, mở ra một khuôn viên nghỉ dưỡng đáng mơ ước ngay giữa lòng thành phố. Từng đường nét được chăm chút tinh tế, không gian sân vườn hài hòa với kiến trúc tạo cảm giác thư giãn và sang trọng. Ngôi nhà không chỉ là nơi ở mà còn là điểm dừng chân lý tưởng, nơi gia chủ tận hưởng trọn vẹn sự bình yên và tiện nghi giữa nhịp sống đô thị.
- Diện tích: nhà vườn 1 tầng 14×14,2m
- Chi phí: 1.740.000.000đ đến 1.860.000.000đ




Thiết kế nhà đẹp 200m2 4 tầng Tân Cổ Điển thể hiện đẳng cấp và gu tinh tế
Thiết kế nhà đẹp 200m2 mang phong cách Tân Cổ Điển nổi bật với mái vòm kết hợp với mái Pháp sang trọng tạo nên vẻ ngoài cuốn hút ngay từ cái nhìn đầu tiên. Không những thế, các chi tiết phào chỉ, cột trụ và đường cong đều được trau chuốt tỉ mỉ, thể hiện sự tinh tế trong từng đường nét.
- Diện tích: Nhà 4 tầng 15×13,3m
- Chi phí: 6.960.000.000đ đến 7.440.000.000đ


Thiết kế nhà trên đất 200m2 (theo từng loại hình) tạo dấu ấn riêng cho không gian sống
Mẫu biệt thự mặt bằng nhà phố 200m2 (8x20m) tối giản Hiện Đại cho gia đình thành thị
Mẫu biệt thự mặt bằng nhà phố 200m2 được thiết kế hài hòa giữa không gian sống và thiên nhiên, mang đến cảm giác thư thái trong từng bước chân. Ngôi nhà sở hữu sân vườn lớn bao quanh, được bố trí cây xanh và tiểu cảnh tinh tế, giúp luồng khí luôn thông thoáng và mát mẻ. Cả nội thất bên trong lẫn ngoại thất bên ngoài đều được chăm chút tỉ mỉ, tạo nên một tổng thể vừa sang trọng, vừa gần gũi – nơi lý tưởng để tận hưởng cuộc sống an yên giữa lòng phố thị.
- Diện tích: nhà 2 tầng 8x20m Hiện Đại
- Chi phí: 2.920.000.000đ đến 3.080.000.000đ






Thiết kế nhà vườn 200m2 2 tầng phong cách Indochine mang đến cảm giác thân thuộc
Thiết kế nhà vườn 200m2 2 tầng mang phong cách Indochine đem đến vẻ đẹp giao hòa giữa Á Đông tinh tế và hơi thở phương Tây sang trọng. Mặt tiền ngôi nhà gây ấn tượng với họa tiết bông hoa trang trí mềm mại, tạo điểm nhấn duyên dáng giữa không gian xanh thoáng đãng của khu vườn. Từng đường nét kiến trúc được chăm chút tỉ mỉ, vừa mang đậm nét hoài cổ, vừa gợi cảm giác gần gũi, giúp gia chủ tận hưởng trọn vẹn không gian sống an yên và đầy nghệ thuật.
- Diện tích: nhà 2 tầng mái ngói 20x10m
- Chi phí: 3.900.000.000đ đến 4.150.000.000đ




Thiết kế nhà trọ 200m2 bố trí nhiều phòng ngủ khoa học, dễ quản lý
Thiết kế nhà trọ 200m2 được tối ưu với nhiều phòng và cách bố trí khoa học, mang đến không gian sinh hoạt tiện nghi cho nhiều đối tượng thuê. Mỗi phòng đều được thiết kế có gác lửng, giúp tăng diện tích sử dụng mà vẫn đảm bảo sự thoáng mát và riêng tư. Mẫu nhà trọ này không chỉ tận dụng tối đa diện tích mà còn giúp chủ đầu tư tối ưu chi phí xây dựng, đảm bảo hiệu quả khai thác lâu dài và bền vững.
- Diện tích: nhà trọ 9 tầng 16×12,5m
- Chi phí: 11.680.000.000đ đến 12.320.000.000đ


Khách sạn 10x20m với ngoại thất bắt mắt
Khách sạn 10x20m gây ấn tượng ngay từ cái nhìn đầu tiên nhờ phào chỉ chạy dọc tối giản nhưng đầy cuốn hút, tôn lên vẻ tinh tế và thanh thoát cho mặt tiền. Hai tầng dưới được thiết kế màu xanh lục bảo tạo vẻ ngoài độc đáo, vừa mang dấu ấn riêng biệt vừa giúp tổng thể công trình trở nên lạ mắt và thu hút hơn. Thiết kế ấn tượng này không chỉ nâng tầm hình ảnh khách sạn mà còn tạo sức hút mạnh mẽ đối với du khách ngay từ lần đầu ghé thăm.
- Diện tích: khách sạn 5 tầng 10x20m
- Chi phí: 7.800.000.000đ đến 8.300.000.000đ


>> Tham khảo: Thiết kế nhà phố 10×20
Thiết kế nhà 200m2 kiểu Pháp chuẩn sống sang với phòng khách lớn
Thiết kế nhà 200m2 kiểu Pháp nổi bật với mái Mansard sang trọng, mang đường nét sắc sảo và đầy uy nghi. Ban công tầng 3 rộng rãi không chỉ tạo nên không gian thoáng đãng mà còn là nơi gia đình cùng nhau tận hưởng bầu không khí trong lành mỗi sáng sớm hay chiều tối. Bên cạnh đó, từng chi tiết thiết kế đều thể hiện sự tinh tế và gu thẩm mỹ đẳng cấp của gia chủ.
- Diện tích: 16×12,5m
- Chi phí: 5.460.000.000đ đến 5.810.000.000đ


>> Xem thêm: Hướng dẫn tính giá xây nhà 3 tầng 200m2
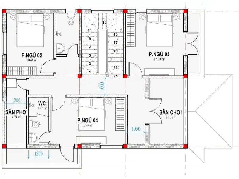
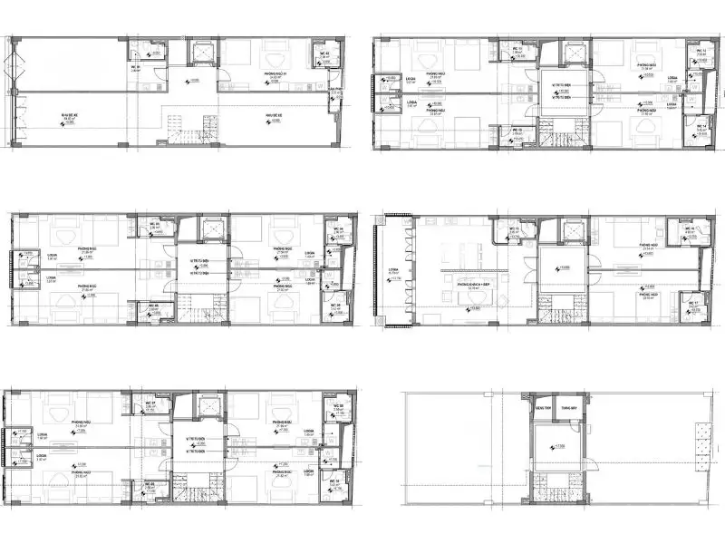
Bản vẽ 2D mặt bằng nhà 200m2 bố trí tiện ích thông minh






Xây nhà 200m2 hết bao nhiêu tiền? Bảng giá xây nhà trọn gói với thiết kế nhà 200m2 đa công năng
Chi phí xây nhà 200m2 thường dao động từ 3.800.000đ đến 7.000.000đ/m², tùy thuộc vào gói vật liệu và Mức độ hoàn thiện mà gia chủ lựa chọn. Tổng ngân sách có thể thay đổi đáng kể nếu gia chủ lựa chọn gói xây dựng phần thô hoặc trọn gói. Để dễ dàng dự trù chi phí chính xác hơn, bạn có thể tham khảo bảng dự toán trọn gói chi tiết mà Nhất Tín chia sẻ ngay bên dưới, giúp lập kế hoạch đầu tư phù hợp và hiệu quả nhất.
| Loại hình nhà ở | Khoảng chi phí |
| thiết kế nhà 200m2 1 tầng | 1.460.000.000đ đến 1.740.000.000đ |
| Mẫu nhà cấp 4 10×20 có gác lửng | 2.190.000.000đ đến 2.610.000.000đ |
| Nhà 8x25m 2 tầng | 2.920.000.000đ đến 3.680.000.000đ |
| thiết kế nhà 200m2 3 tầng | 4.380.000.000đ đến 5.220.000.000đ |
| Nhà vuông 15x13m 2 tầng 1 tum | 3.650.000.000đ đến 4.350.000.000đ |
| Thiết kế nhà đẹp 200m2 4 tầng | 5.840.000.000đ đến 6.960.000.000đ |
| Chung cư mini 5 tầng | 7.300.000.000đ đến 8.700.000.000đ |
>> Tham khảo thêm:
Như vậy, bài viết trên đã mang đến cho bạn những gợi ý thú vị về thiết kế nhà đẹp 200m2, nơi dung hòa giữa thẩm mỹ và công năng sử dụng. Nếu bạn đang tìm kiếm một giải pháp tối ưu cho không gian sống sang trọng và tiện nghi, hãy để Xây dựng Nhất Tín đồng hành cùng bạn. Liên hệ ngay Hotline: 0988 607 705 hoặc Zalo: 0911 062 189 để được tư vấn thiết kế và nhận báo giá chi tiết nhất.
KS Tran Nghia (xaydungnhattin.com)










