Những thiết kế nhà phố 5x19m được Nhất Tín chia sẻ dưới đây là sự kết hợp hoàn hảo giữa công năng và tính thẩm mỹ. Với lối thiết kế thông minh và sáng tạo, những mẫu nhà này không chỉ đáp ứng nhu cầu sinh hoạt tiện nghi mà còn thể hiện giá trị thẩm mỹ độc đáo. Nếu bạn đang tìm kiếm ý thiết kế nhà 5×19 thu hút và tối ưu công năng, hãy tham khảo ngay bài viết này nhé!
>> Xem thêm: Thiết kế nhà phố mặt tiền 5m đẹp
Tóm tắt nội dung
- 1 Mặt tiền nhà phố 5x19m Tân Cổ Điển với thiết kế mái Mansard
- 2 Thiết kế nhà ống 2 tầng 5x19m mái Thái sử dụng hệ thức cột Tuscan ấn tượng
- 3 Thiết kế nhà ống 2 tầng 1 tum 3 phòng ngủ 5x19m phong cách Hiện Đại
- 4 Phối cảnh 3d nhà 3 tầng 5×19 mái Nhật xếp chồng độc đáo
- 5 Thiết kế nhà phố 5x19m 4 tầng có gara ô tô trước nhà
- 6 Nhà 1 trệt 1 lầu 1 sân thượng mặt tiền 5m sâu 19m với thiết kế lan can mỹ nghệ cuốn hút
- 7 Mẫu nhà cấp 4 có sân vườn diện tích 5x19m
- 8 Tham khảo một số mẫu bản vẽ bố trí công năng nội thất nhà 5x19m
- 9 Xem thêm dự toán ngân sách cho mẫu nhà 5×19 theo một số quy mô cụ thể
Mặt tiền nhà phố 5x19m Tân Cổ Điển với thiết kế mái Mansard
Mặt tiền nhà phố 5x19m phong cách Tân Cổ Điển khiến người nhìn không thể rời mắt với thiết kế mái Mansard độc đáo. Phần mái nhà được chạm khắc tinh xảo kết hợp hài hòa với hệ cửa vòm ấn tượng, tạo nên vẻ đẹp sang trọng và quý phái. Bên cạnh đó, những đường phào chỉ mềm mại cùng hoa văn tinh tế trên nền tường trắng càng tôn lên vẻ đẹp thanh lịch và đẳng cấp của ngôi nhà.



Thiết kế nhà ống 2 tầng 5x19m mái Thái sử dụng hệ thức cột Tuscan ấn tượng
Mẫu nhà ống 2 tầng 5x19m mái Thái ấn tượng với hệ cột Tuscan vững chãi mang lại cảm giác bề thế và sang trọng. Với thiết kế thân trơn, chân đế vững và tỉ lệ cân đối, thiết kế cột Tuscan không chỉ tạo sự hài hòa mà còn giúp tổng thể kiến trúc trở nên thanh thoát. Bên cạnh đó, mái Thái với độ dốc lớn không chỉ tạo hiệu ứng mở rộng chiều cao mà còn tôn lên nét trang nhã, đẳng cấp cho ngoại thất ngôi nhà.



Thiết kế nhà ống 2 tầng 1 tum 3 phòng ngủ 5x19m phong cách Hiện Đại
Mẫu nhà ống 2 tầng 1 tum với 3 phòng ngủ theo phong cách Hiện Đại mà Nhất Tín giới thiệu dưới đây là lựa chọn lý tưởng cho các gia đình phố thị từ 3-4 thành viên. Nhờ việc sử dụng những đường nét thiết kế tối giản, kết hợp với bố trí các phòng công năng khoa học và hợp lý, ngôi nhà đáp ứng đầy đủ nhu cầu sinh hoạt tiện nghi cho tất cả các thành viên trong gia đình.






Phối cảnh 3d nhà 3 tầng 5×19 mái Nhật xếp chồng độc đáo
Nếu bạn yêu thích vẻ đẹp gần gũi và mộc mạc thì mẫu nhà 3 tầng 5×19 mái Nhật mà Nhất Tín chia sẻ dưới đây chắc chắn sẽ chinh phục bạn ngay từ cái nhìn đầu tiên. Mẫu nhà này nổi bật với hệ mái Nhật vững chãi với các góc vuông cân đối không chỉ mang lại cảm giác bề thế mà còn tạo sự hài hòa cho tổng thể ngôi nhà. Đặc biệt, phần mái lợp ngói kèo thép xám kết hợp với trần ốp gỗ lam sọc mang đến điểm nhấn độc đáo cho ngoại thất của ngôi nhà.


Thiết kế nhà phố 5x19m 4 tầng có gara ô tô trước nhà
Mẫu nhà phố 5x19m 4 tầng mà Nhất Tín giới thiệu dưới đây được thiết kế tối ưu, mang đến sự tiện nghi và tính thẩm mỹ cao. Gara ô tô được bố trí tích hợp ngay tại tầng trệt, giúp tối ưu diện tích sử dụng và đảm bảo sự thuận tiện cho gia chủ. Bên cạnh tính tiện nghi, mẫu nhà còn ghi điểm với tính thẩm mỹ cao nhờ sự kết hợp hài hòa giữa gam màu trắng – xám tương phản, tạo nên vẻ đẹp hiện đại và thanh lịch.


Nhà 1 trệt 1 lầu 1 sân thượng mặt tiền 5m sâu 19m với thiết kế lan can mỹ nghệ cuốn hút
Mẫu nhà 1 trệt 1 lầu 1 sân thượng 5x19m dưới đây toát lên vẻ đẹp thanh lịch và tinh tế nhờ những chi tiết thiết kế đầy nghệ thuật. Điểm nhấn nổi bật nhất chính là hệ lan can sắt mỹ nghệ với hoa văn uốn lượn tinh xảo giúp mặt tiền trở nên cuốn hút và sang trọng. Bên cạnh đó, tầng trệt được ốp đá cao cấp với họa tiết nhẹ nhàng, không chỉ tôn lên nét quý phái mà còn gia tăng độ bền cho công trình.



Mẫu nhà cấp 4 có sân vườn diện tích 5x19m
Mẫu nhà cấp 4 có sân vườn 5x19m ghi điểm với thiết kế tinh tế, kết hợp hài hòa giữa kiến trúc hiện đại và không gian xanh thư thái. Khoảng sân vườn bao quanh nhà được lát gạch sạch sẽ tạo khu vực thư giãn ngoài trời cho gia đình. Đặc biệt, hai bên lối vào được tô điểm bằng những chậu cây xanh, vừa tăng thêm sự tươi mát, vừa khiến cho ngoại thất ngôi nhà trở nên sinh động và cuốn hút hơn.


Tham khảo một số mẫu bản vẽ bố trí công năng nội thất nhà 5x19m
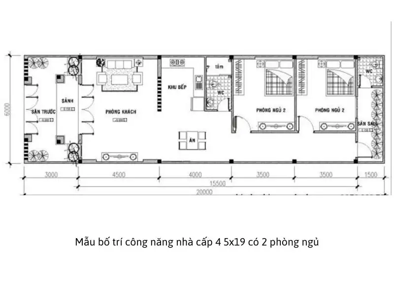
Mặt bằng nhà cấp 4 ngang 5m sâu 19m tối ưu diện tích


Bản vẽ 2D thiết kế nhà 5×19 2 tầng


Mẫu 2D bố trí công năng nội thất nhà 3 tầng 5×19


Bản vẽ công năng nhà 4 tầng diện tích 5x19m


Xem thêm dự toán ngân sách cho mẫu nhà 5×19 theo một số quy mô cụ thể
| Quy mô xây dựng | Ngân sách mẫu nhà |
| Thiết kế nhà ống 2 tầng 5x19m | 1.270.000.000 đ – 1.620.000.000 đ |
| Nhà 1 trệt 1 lầu 1 sân thượng 5×19 | 1.700.000.000 đ – 2.100.000.000 đ |
| Thiết kế nhà 5×19 4 tầng | 2.550.000.000 đ – 3.230.000.000 đ |
| Thiết kế nhà phố 5x19m 3 tầng | 1.910.000.000 đ – 2.420.000.000 đ |
| Mẫu nhà cấp 4 5×19 (95m2) | 608.000.000 đ – 741.000.000 đ |
| Nhà cấp 4 gác lửng ngang 5m rộng 19m | 912.000.000 đ – 1.110.000.000 đ |
>> Tham khảo: Bảng báo giá xây nhà trọn gói tại Xây dựng Nhất Tín
Nhất Tín đã mang đến những mẫu nhà 5x19m với thiết kế khoa học và tối ưu không gian giúp gia đình bạn tận hưởng cuộc sống tiện nghi, hiện đại. Hy vọng rằng những gợi ý này sẽ truyền cảm hứng để bạn hiện thực hóa ngôi nhà mơ ước của mình. Nếu bạn cần thêm ý tưởng thiết kế nhà phố 5x19m hoặc tư vấn chi tiết, hãy liên hệ ngay với Nhất Tín qua Hotline: 0988 607 705 / Zalo: 0911 062 189 để được hỗ trợ tận tình!
>> Xem thêm: Mẫu thiết kế nhà phố 5×17 đẹp, tối ưu công năng
KS Tran Thang (xaydungnhattin.com)










