Mẫu nhà gác lửng đang là lựa chọn lý tưởng của nhiều gia đình nhờ khả năng tối ưu không gian sống. Thiết kế này vừa tạo cảm giác thoáng đãng, vừa tăng diện tích sử dụng mà không tốn nhiều chi phí. Dưới đây là một số thiết kế nhà tầng lửng đẹp, giúp bạn dễ dàng hình dung và chọn phong cách phù hợp. Hy vọng các gợi ý mà Xây dựng Nhất Tín chia sẻ sẽ truyền cảm hứng để bạn bắt đầu kế hoạch cho ngôi nhà mơ ước.
>> Xem thêm: Mẫu nhà đẹp sang trọng
Tóm tắt nội dung
- 1 Nhà cấp 4 gác lửng 3 phòng ngủ 1 phòng thờ tiện lợi
- 2 Nhà gác lửng 3 phòng ngủ mái Thái thoáng mát
- 3 Mẫu nhà có lửng Hiện Đại đẹp 2 tầng tạo dấu ấn riêng
- 4 Mẫu nhà có tầng lửng đẹp 4 phòng ngủ tạo không gian riêng tư
- 5 Thiết kế nhà 1 trệt 1 lửng đẹp 2 phòng ngủ mái Nhật có khuôn viên sang trọng
- 6 Mẫu nhà 1 tầng rưỡi đơn giản sử dụng mái tôn
- 7 Nhà cấp 4 gác lửng 3 phòng ngủ 500 triệu mái lệch thu hút
- 8 Mẫu nhà 1 tầng có gác lửng mái Bằng kết hợp gỗ ấm cúng
- 9 Mẫu nhà gác lửng 5×18 với thiết kế mái ngói mang nét mộc mạc gần gũi
- 10 Mẫu nhà gác lửng 5×12 3 phòng ngủ mang màu sắc trung tính
- 11 Mẫu nhà 1 trệt 1 lửng 7x15m thiết kế sân vườn thư thái
- 12 Mẫu nhà gác lửng 4×12 có mặt tiền ốp gạch vân đá cao cấp
- 13 Mẫu nhà gác lửng 6×10 kết hợp cây xanh mang lại không khí trong lành
- 14 Bảng chi phí xây dựng trọn gói thiết kế nhà gác lửng
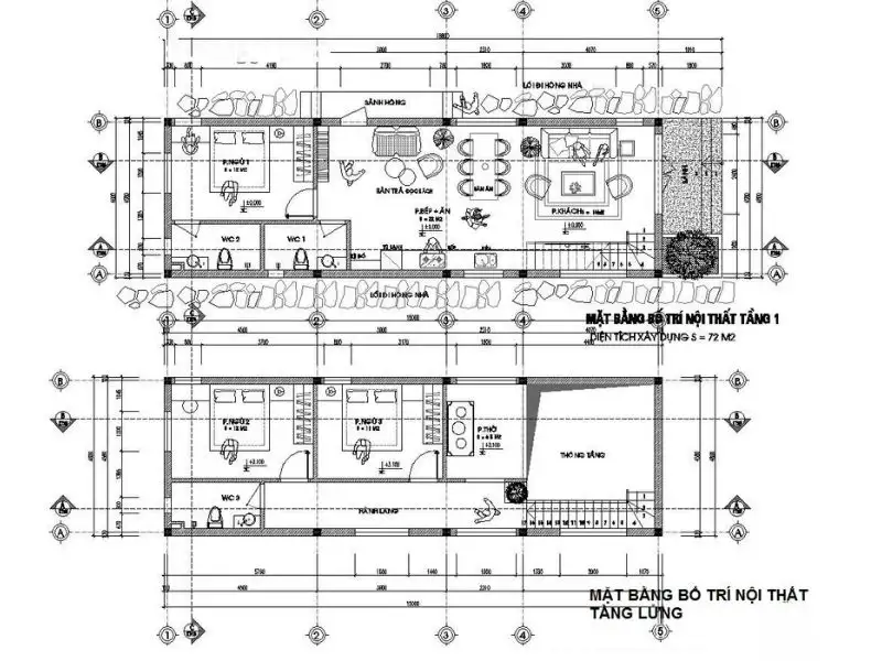
Nhà cấp 4 gác lửng 3 phòng ngủ 1 phòng thờ tiện lợi
Nhà cấp 4 gác lửng 3 phòng ngủ 1 phòng thờ mang đến không gian sống rộng rãi, thoáng đãng và đáp ứng đầy đủ công năng cho gia đình nhiều thế hệ. Thiết kế gác lửng thông minh giúp tối ưu diện tích sử dụng, đồng thời tạo sự riêng tư cho từng thành viên. Mặt tiền với điểm nhấn cửa kính lớn kết hợp lam gỗ trang trí tạo cảm giác sang trọng và thoáng sáng. Đây là lựa chọn lý tưởng cho những ai yêu thích sự tiện nghi và ấm cúng.



>> Tham khảo: Mẫu nhà đẹp 3 phòng ngủ
Nhà gác lửng 3 phòng ngủ mái Thái thoáng mát
Nhà gác lửng 3 phòng ngủ mái Thái mang đến không gian sống tiện nghi, phù hợp cho gia đình trẻ hoặc có 2 thế hệ cùng chung sống. Thiết kế mái Thái cao ráo giúp ngôi nhà luôn mát mẻ, chống nóng hiệu quả và đảm bảo tính thẩm mỹ hiện đại. Đặc biệt, mặt tiền nổi bật với cửa kính rộng kết hợp tiểu cảnh xanh, tạo cảm giác gần gũi thiên nhiên cho không gian sống.



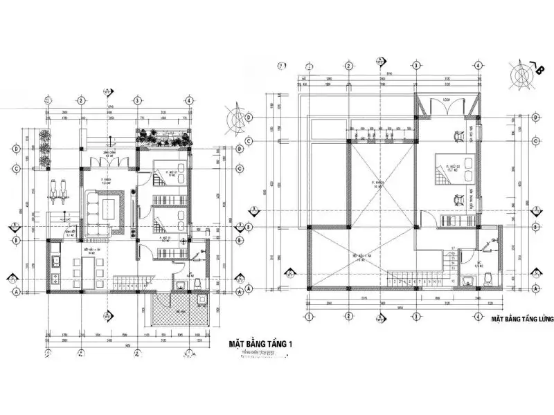
Mẫu nhà có lửng Hiện Đại đẹp 2 tầng tạo dấu ấn riêng
Mẫu nhà gác lửng Hiện Đại đẹp 2 tầng sở hữu thiết kế tinh gọn, chú trọng vào sự tiện nghi và thẩm mỹ. Tầng lửng được bố trí hợp lý, giúp gia tăng diện tích sử dụng mà vẫn giữ được sự thông thoáng cho không gian sống. Điểm nhấn nổi bật ở mặt tiền là hệ cửa kính rộng kết hợp cùng gam màu hiện đại, vừa tạo sự sang trọng vừa tận dụng ánh sáng tự nhiên, mang lại phong cách trẻ trung và đầy cuốn hút.


Mẫu nhà có tầng lửng đẹp 4 phòng ngủ tạo không gian riêng tư
Mẫu nhà gác lửng đẹp 4 phòng ngủ là lựa chọn lý tưởng cho gia đình đông thành viên. Thiết kế tầng lửng sử dụng gạch mộc mang lại vẻ đẹp gần gũi, ấm áp. Các phòng được bố trí khoa học, tận dụng tối đa diện tích để đảm bảo sự tiện nghi và thoáng đãng. Mỗi thành viên đều có không gian riêng tư thoải mái, đồng thời tổng thể ngôi nhà vẫn giữ được sự gắn kết hài hòa.


Thiết kế nhà 1 trệt 1 lửng đẹp 2 phòng ngủ mái Nhật có khuôn viên sang trọng
Thiết kế nhà 1 trệt 1 lửng đẹp 2 phòng ngủ mái Nhật mang đến không gian sống thoáng mát và đầy tính thẩm mỹ. Kiến trúc mái Nhật hài hòa với tổng thể sân vườn, tạo cảm giác gần gũi thiên nhiên. Đặc biệt, điểm nhấn nổi bật là cổng vòm lớn thông tầng, vừa ấn tượng vừa thể hiện sự bề thế. Công năng được bố trí khoa học giúp gia đình tận hưởng trọn vẹn sự thoải mái và tiện lợi.


Mẫu nhà 1 tầng rưỡi đơn giản sử dụng mái tôn
Mẫu nhà 1 tầng rưỡi đơn giản là lựa chọn lý tưởng cho gia đình trẻ yêu thích sự gọn gàng và thoáng mát. Thiết kế mái tôn nhẹ nhàng không chỉ giúp ngôi nhà luôn mát mẻ, dễ thi công mà còn tối ưu chi phí xây dựng. Mặt tiền được tạo hình tối giản, kết hợp cùng khoảng sân vườn xanh mát, mang lại tổng thể hài hòa đáp ứng trọn vẹn nhu cầu sinh hoạt.


Nhà cấp 4 gác lửng 3 phòng ngủ 500 triệu mái lệch thu hút
Nhà gác lửng 3 phòng ngủ 500 triệu mái lệch chinh phục nhiều gia đình nhờ thiết kế ấn tượng cùng chi phí xây dựng tối ưu. Kiến trúc mái lệch tạo điểm nhấn độc đáo, giúp tổng thể ngôi nhà thêm cá tính và nổi bật. Đặc biệt, hệ thống cửa kính được bố trí rộng khắp, mang đến không gian sáng sủa, thoáng đãng. Đây là mẫu nhà lý tưởng cho những ai tìm kiếm sự tiện nghi và tiết kiệm.

Mẫu nhà 1 tầng có gác lửng mái Bằng kết hợp gỗ ấm cúng
Mẫu nhà 1 tầng có gác lửng mái bằng mang đến không gian hiện đại nhưng vẫn gần gũi và ấm cúng. Không gian bên trong được thiết kế tiện ích, giúp tối ưu công năng cho gia đình nhỏ. Điểm nhấn nổi bật là sự kết hợp màu sắc thanh lịch cùng các chi tiết gỗ tự nhiên, tạo cảm giác ấm áp và sang trọng. Cùng Nhất Tín xem qua mẫu nhà ngay bên dưới.


Mẫu nhà gác lửng 5×18 với thiết kế mái ngói mang nét mộc mạc gần gũi
Mẫu nhà gác lửng 5×18 với thiết kế mái ngói là lựa chọn được nhiều gia đình yêu thích nhờ sự hài hòa giữa thẩm mỹ và công năng. Phần mái ngói được thiết kế mềm mại kết hợp cùng tường rào uốn cong, tạo nên tổng thể nhẹ nhàng và độc đáo. Bên trong, không gian được bố trí thông minh, giúp tối ưu diện tích sử dụng mà vẫn đảm bảo sự thoáng đãng và thoải mái cho mọi thành viên trong gia đình.





>> Xem thêm: Mẫu nhà đẹp 5×18
Mẫu nhà gác lửng 5×12 3 phòng ngủ mang màu sắc trung tính
Mẫu nhà đẹp gác lửng 5×12 3 phòng ngủ gây ấn tượng bởi vẻ ngoài hài hòa, hiện đại và gần gũi. Gam màu trung tính chủ đạo mang đến sự tinh tế, dễ dàng kết hợp với không gian xung quanh. Đặc biệt, tường rào được trang trí bằng gạch bông thông gió vừa tạo điểm nhấn độc đáo, vừa giúp ngôi nhà thêm thoáng mát.


>> Xem thêm: Thiết kế nhà ngang 5m dài 12m
Mẫu nhà 1 trệt 1 lửng 7x15m thiết kế sân vườn thư thái
Mẫu nhà 1 trệt 1 lửng 7x15m mang đến không gian sống thoáng mát, gần gũi với thiên nhiên cho gia đình. Sân vườn xanh mát không chỉ là điểm nhấn kiến trúc mà còn góp phần tạo bầu không khí trong lành cho toàn bộ ngôi nhà. Bên trong ngôi nhà, từng mét vuông đều được tính toán kỹ lưỡng. Đặc biệt, tủ chứa đồ được bố trí khéo léo dưới cầu thang, giúp không gian luôn sạch sẽ, tiện nghi và rộng rãi.


>> Xem ngay: Mẫu nhà đẹp 7mx15m
Mẫu nhà gác lửng 4×12 có mặt tiền ốp gạch vân đá cao cấp
Mẫu nhà gác lửng 4×12 mang đến vẻ đẹp sang trọng và hiện đại ngay từ cái nhìn đầu tiên. Thiết kế gác lửng giúp tối ưu diện tích sử dụng, tạo thêm không gian sinh hoạt cho gia đình. Điểm nhấn ở mặt tiền là hệ cửa kính khung nhôm lớn, giúp đón sáng tự nhiên và kết hợp hài hòa cùng gạch vân đá, tạo nên tổng thể cuốn hút và bền vững theo thời gian.



>> Tham khảo: Mẫu nhà diện tích 4×12
Mẫu nhà gác lửng 6×10 kết hợp cây xanh mang lại không khí trong lành
Mẫu nhà gác lửng 6×10 là lựa chọn lý tưởng cho gia đình yêu thích sự thoáng mát. Không gian sống được thiết kế hài hòa với cây xanh bao quanh, tạo nên bầu không khí dễ chịu và gần gũi thiên nhiên. Bên trong, gác lửng mở rộng diện tích sử dụng, mang đến sự tiện nghi và thoải mái cho sinh hoạt hằng ngày, đồng thời giữ được sự tinh tế trong từng chi tiết kiến trúc.


>> Tham khảo: Mẫu nhà 6x10m đẹp
Bảng chi phí xây dựng trọn gói thiết kế nhà gác lửng
| Loại hình nhà ở | Khoảng chi phí |
| Nhà có lửng 5×15 2 tầng | 1.420.000.000đ đến 1.680.000.000đ |
| Mẫu nhà gác lửng đẹp 5×20 | 1.150.000.000đ đến 1.360.000.000đ |
| Mẫu nhà gác lửng 4×12 3 tầng | 1.280.000.000đ đến 1.510.000.000đ |
| Mẫu nhà gác lửng 5×12 4 tầng | 2.020.000.000đ đến 2.400.000.000đ |
| Mẫu nhà gác lửng 7x15m | 1.200.000.000đ đến 1.420.000.000đ |
| Mẫu nhà gác lửng 5×18 | 1.035.500.000đ đến 1.220.000.000đ |
| Mẫu nhà gác lửng 6×10 | 707.000.000đ đến 833.000.000đ |
>>> Xem thêm: Báo giá xây dựng nhà trọn gói
Những mẫu nhà gác lửng đẹp được Nhất Tín chia sẻ trên đây giúp tối ưu không gian, mang lại sự tiện nghi và thoáng đãng, đáp ứng nhu cầu sống hiện đại. Nếu bạn đang tìm đơn vị thi công uy tín, Xây dựng Nhất Tín sẵn sàng cung cấp dịch vụ chuyên nghiệp với thiết kế tinh tế và chi phí minh bạch. Hãy liên hệ hotline 0988 607 705 để được tư vấn chi tiết và hiện thực hóa ngôi nhà mơ ước của bạn.
KS Tran Nghia (xaydungnhattin.com)










