Mẫu nhà lệch tầng ngày càng được nhiều gia đình quan tâm nhờ cách bố trí độc đáo và khả năng tạo chiều sâu cho không gian. Kiểu nhà này không chỉ mang lại sự thoáng rộng mà còn giúp tối ưu hóa từng khu vực chức năng trong nhà. Nhất Tín mời bạn đọc qua bài viết bên dưới để nắm rõ hơn về ưu nhược điểm cũng như những ý tưởng thiết kế nhà tầng lệch độc đáo. Hy vọng bạn sẽ tìm được mẫu phù hợp, góp phần tạo nên không gian sống tiện nghi và thoải mái cho cả gia đình.
>> Tham khảo thêm: Tổng hợp những mẫu mặt tiền nhà ở đa dạng loại hình và quy mô
Tóm tắt nội dung
- 1 Nhà lệch tầng là gì? Những đặc điểm tạo nên sự khác biệt so với nhà tầng truyền thống
- 2 Ưu điểm và nhược điểm của mẫu nhà tầng lệch
- 3 Các mẫu nhà lệch tầng đẹp – Xu hướng được ưa chuộng trong kiến trúc đô thị
- 3.1 Thiết kế nhà ống 2 tầng lệch đẹp ban công kính giúp không gian thêm thoáng sáng và trẻ trung
- 3.2 Phối cảnh 3D mẫu nhà lệch tầng 4×12 quy mô 5 tầng với cầu thang thông tầng và không gian sinh hoạt đa dạng
- 3.3 Mẫu nhà ống 3 tầng lệch đẹp sáng tạo với đường cong mặt tiền, mang cảm giác uyển chuyển
- 3.4 Thiết kế mẫu nhà lệch tầng 3 phòng ngủ Hiện Đại nổi bật với gạch mộc tạo điểm nhấn
- 3.5 Mẫu nhà tầng lệch 2 tầng 64m2 ấn tượng với thiết kế mái lệch độc đáo
- 3.6 Mẫu nhà lệch tầng 5×12 4 tầng sử dụng lam gỗ dọc trên trần mang đến nét đẹp hài hòa
- 3.7 Mẫu nhà lệch tầng 4×16 có gara và sân trước riêng biệt tối ưu lối đi, đảm bảo tiện lợi hằng ngày
- 3.8 Mẫu nhà lệch tầng 6×12 đẹp mắt nhờ mặt tiền gạch ốp tinh tế
- 3.9 Mẫu nhà lệch tầng 5×20 được thiết kế lệch tầng giúp tối ưu không gian
- 3.10 Nhà ngang 5m 2 tầng bố trí logia thông minh giúp ngôi nhà đón gió tối ưu
- 3.11 Thiết kế mẫu nhà lệch tầng 5×15 4 phòng ngủ tông màu đen xám mang đến vẻ ngoài sang trọng và huyền bí
- 4 Tham khảo chi tiết báo giá xây dựng trọn gói mẫu nhà tầng lệch mới nhất
Nhà lệch tầng là gì? Những đặc điểm tạo nên sự khác biệt so với nhà tầng truyền thống
Nhà lệch tầng là một kiểu kiến trúc độc đáo, trong đó các sàn nhà hoặc không gian chức năng chính có độ cao chênh lệch (so le nhau) thay vì bằng phẳng và thẳng hàng như nhà truyền thống. Cầu thang thường được thiết kế ở vị trí trung tâm, kết hợp với giếng trời để kết nối các khu vực có cao độ khác nhau này.
Những đặc điểm nổi bật của nhà lệch tầng:
- Không gian đa chiều, sinh động: Các tầng được bố trí so le tạo nên tầm nhìn mở và cảm giác liên kết giữa các khu vực, đem lại nét hiện đại hơn so với nhà tầng truyền thống.
- Thông gió và ánh sáng tốt: Cầu thang và giếng trời đặt ở trung tâm giúp luồng gió và ánh sáng lan tỏa đều, hạn chế cảm giác bí trong những ngôi nhà có mặt tiền hẹp.
- Tối ưu diện tích, công năng linh hoạt: Thiết kế phù hợp với nhà ống, cho phép sắp xếp các phòng hợp lý và tận dụng khéo léo từng khoảng trống, như khu vực dưới cầu thang.
- Đảm bảo sự riêng tư: Cao độ chênh lệch giữa các tầng giúp phân tách không gian, tạo sự riêng tư mà không làm mất đi tính kết nối của toàn bộ ngôi nhà.

Ưu điểm và nhược điểm của mẫu nhà tầng lệch
Nhà lệch tầng là một lựa chọn kiến trúc đầy sáng tạo, nhưng cũng đi kèm những ưu và nhược điểm nhất định. Khi hiểu rõ từng mặt lợi – hại, bạn sẽ dễ dàng cân nhắc và xác định liệu kiểu nhà này có phù hợp với nhu cầu của gia đình hay không. Mời bạn xem qua ưu và nhược điểm bên dưới để có cái nhìn rõ ràng hơn trước khi quyết định.
Ưu điểm
- Lấy sáng và thông gió hiệu quả: Nhờ cao độ so le kết hợp với giếng trời, ánh sáng và luồng không khí được phân bổ đều khắp nhà, hạn chế tình trạng bí bách thường thấy ở nhà ống.
- Không gian thoáng và có chiều sâu: Cách bố trí lệch tầng giúp loại bỏ cảm giác chia tách cứng nhắc, mở rộng tầm nhìn theo chiều cao và tạo nên trải nghiệm không gian sinh động hơn.
- Tối ưu diện tích sử dụng: Những khoảng chênh cấp hoặc khu vực dưới cầu thang có thể tận dụng làm nhà kho, gara, tiểu cảnh… giúp nâng cao hiệu quả sử dụng từng khu vực.
- Thích hợp với nhiều dạng đất: Kiểu thiết kế này đặc biệt phù hợp với nhà ống hoặc những lô đất hẹp ngang, sâu dài hay nền đất không bằng phẳng.
- Thẩm mỹ hiện đại và riêng tư hợp lý: Kiến trúc mang nét cá tính, dễ tạo điểm nhấn; đồng thời các không gian chức năng vẫn được phân tách nhẹ nhàng để đảm bảo sự riêng tư cần thiết.
Nhược điểm
- Thi công phức tạp và tốn kém hơn: Do hệ dầm, sàn và cầu thang không nằm cùng cao độ, quá trình tính toán và thi công đòi hỏi kỹ thuật cao, khiến chi phí xây dựng thường vượt mức của nhà tầng truyền thống.
- Bất tiện cho người già và trẻ nhỏ: Sự xuất hiện của nhiều bậc thang và cao độ chênh lệch có thể gây khó khăn khi di chuyển, đặc biệt với người lớn tuổi, trẻ em hoặc người có hạn chế về vận động.
- Dễ truyền tiếng ồn: Không gian mở giúp thoáng khí nhưng cũng làm âm thanh lan nhanh giữa các khu vực. Nếu không xử lý cách âm kỹ, tiếng ồn có thể ảnh hưởng sinh hoạt.
Các mẫu nhà lệch tầng đẹp – Xu hướng được ưa chuộng trong kiến trúc đô thị
Thiết kế nhà ống 2 tầng lệch đẹp ban công kính giúp không gian thêm thoáng sáng và trẻ trung
Mẫu nhà ống 2 tầng lệch nổi bật với thiết kế ban công kính giúp tăng độ thoáng và tạo diện mạo nhẹ nhàng cho mặt tiền. Bên trong, các đường nét được xử lý gọn gàng, hình khối tối ưu và gam màu trung tính gồm trắng, be và nâu gỗ được sử dụng làm chủ đạo, mang đến cảm giác tinh tế và hài hòa cho toàn bộ ngôi nhà. Nhờ sự kết hợp này, không gian sống thêm phần thẩm mỹ và phù hợp với nhu cầu của nhiều gia đình hiện nay.



>> Có thể bạn quan tâm: Giá xây dựng nhà 2 tầng trọn gói – Hướng dẫn dự toán chi tiết
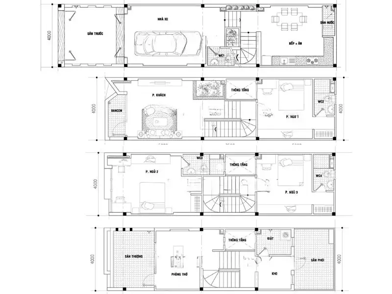
Phối cảnh 3D mẫu nhà lệch tầng 4×12 quy mô 5 tầng với cầu thang thông tầng và không gian sinh hoạt đa dạng
Mẫu nhà lệch tầng 5 tầng 4x12m yêu cầu sự tính toán kỹ lưỡng để cân bằng giữa công năng và thẩm mỹ trong một không gian hẹp. Cầu thang được bố trí ở vị trí trung tâm và kết hợp cùng giếng trời, tạo nên trục thông gió và lấy sáng hiệu quả từ tầng trệt lên đến mái. Nhờ sự liên kết theo chiều cao này, ánh sáng và không khí có thể lưu chuyển dễ dàng, giúp ngôi nhà luôn thoáng và dễ chịu. Đây là giải pháp phù hợp cho những gia đình muốn tối ưu diện tích mà vẫn đảm bảo sự tiện nghi trong sinh hoạt hằng ngày.



>> Tham khảo thêm: Thiết kế nhà ngang 4m dài 12m tối ưu tiện nghi
Mẫu nhà ống 3 tầng lệch đẹp sáng tạo với đường cong mặt tiền, mang cảm giác uyển chuyển
Thiết kế nhà ống 3 tầng lệch mang đến một phong cách sáng tạo với với mặt tiền vòm cong mềm mại, giúp làm dịu đi nét vuông vức thường thấy của kiến trúc Hiện Đại. Các mảng tường cong không chỉ tăng tính thẩm mỹ mà còn điều hướng ánh sáng tự nhiên hiệu quả, giữ cho không gian bên trong luôn thoáng và tràn đầy sức sống. Nhờ sự kết hợp này, ngôi nhà trở nên sinh động và mang dấu ấn riêng khó trộn lẫn.



>> Xem thêm: Hướng dẫn dự tính chi phí xây nhà 3 tầng
Thiết kế mẫu nhà lệch tầng 3 phòng ngủ Hiện Đại nổi bật với gạch mộc tạo điểm nhấn
Mẫu nhà lệch tầng Hiện Đại 3 phòng ngủ thu hút ngay từ cái nhìn đầu tiên bởi vẻ đẹp độc đáo, tinh tế và đầy tiện nghi. Các mảng gạch mộc tạo điểm nhấn tự nhiên, mang đến cảm giác ấm áp và chiều sâu cho mặt tiền. Bên trong, ba phòng ngủ được bố trí ở những cao độ khác nhau, giúp không gian sống linh hoạt hơn và đảm bảo sự riêng tư cho từng thành viên trong gia đình.



>> Xem thêm: Danh sách những mẫu nhà 3 phòng ngủ được săn đón nhất năm nay
Mẫu nhà tầng lệch 2 tầng 64m2 ấn tượng với thiết kế mái lệch độc đáo
Mẫu nhà lệch tầng 2 tầng nổi bật với không gian sống tối ưu và diện mạo đầy cá tính, nhờ thiết kế mái lệch kết hợp bố cục được tổ chức hợp lý. Trên diện tích 64m², các không gian chức năng như phòng khách, bếp – ăn, 3 phòng ngủ, phòng vệ sinh và khu vực sinh hoạt chung đều được sắp xếp khoa học, đảm bảo sự tiện nghi cho cả gia đình. Nhờ bố cục thông minh này, ngôi nhà luôn thoáng đãng và mang đến trải nghiệm sống thoải mái, hài hòa.



Mẫu nhà lệch tầng 5×12 4 tầng sử dụng lam gỗ dọc trên trần mang đến nét đẹp hài hòa
Mẫu nhà lệch tầng 5×12 4 tầng gây ấn tượng nhờ cách tổ chức không gian linh hoạt, phù hợp với quỹ đất đô thị có chiều ngang hạn chế. Thiết kế lam gỗ dọc trên trần được sử dụng như một điểm nhấn tinh tế, giúp không gian trở nên ấm áp và có chiều sâu hơn khi kết hợp cùng hệ chiếu sáng hợp lý. Nhờ bố cục lệch tầng thông minh, các khu vực sinh hoạt được kết nối liền mạch, đảm bảo sự thông thoáng và thuận tiện trong quá trình sử dụng hằng ngày.



>> Xem thêm: Chọn lọc các thiết kế nhà ngang 5m dài 12m
Mẫu nhà lệch tầng 4×16 có gara và sân trước riêng biệt tối ưu lối đi, đảm bảo tiện lợi hằng ngày
Mẫu nhà lệch tầng 4×16 được xem là giải pháp phù hợp cho gia đình cần bố trí gara và sân trước riêng biệt, đáp ứng nhu cầu sử dụng linh hoạt hằng ngày. Gara được đặt ngay trong nhà và kết nối trực tiếp với tầng trệt, thuận tiện cho việc bố trí các phương tiện di chuyển. Trên nền đất hẹp và dài, không gian được khai thác theo chiều sâu, giúp phân chia công năng rõ ràng. Khu sân trước đóng vai trò như khoảng đệm, hỗ trợ lối đi và tăng tính tiện lợi trong sinh hoạt.



>> Xem thêm: Mẫu thiết kế nhà phố 4x16m tối ưu thẩm mỹ và công năng
Mẫu nhà lệch tầng 6×12 đẹp mắt nhờ mặt tiền gạch ốp tinh tế
Mẫu nhà lệch tầng 6×12 tạo thiện cảm ngay từ cái nhìn đầu tiên nhờ mặt tiền sử dụng gạch màu nâu, mang lại điểm nhấn tinh tế cho tổng thể công trình. Hệ cửa chính lớn kết hợp ban công kính và lan can sắt giúp mở rộng tầm nhìn khu vực mặt tiền, đồng thời tôn lên vẻ hiện đại và thanh thoát cho ngôi nhà.Không chỉ chú trọng hình thức bên ngoài, thiết kế lệch tầng bên trong còn giúp không gian trở nên linh hoạt hơn, đáp ứng tốt nhu cầu sinh hoạt hằng ngày của gia đình.



>>> Xem thêm: Mẫu thiết kế nhà phố 6x12m với mặt tiền đầy cuốn hút
Mẫu nhà lệch tầng 5×20 được thiết kế lệch tầng giúp tối ưu không gian
Mẫu nhà lệch tầng 5×20 là lựa chọn phù hợp cho nhà phố, đặc biệt trong các khu đô thị đông dân cư. Thiết kế này tận dụng tốt chiều cao công trình, biến những mét vuông vốn hạn chế thành các không gian sử dụng hiệu quả và linh hoạt hơn. Nhờ vậy, ngôi nhà vẫn giữ được sự thoải mái và đáp ứng đầy đủ nhu cầu sinh hoạt của gia đình. Cùng tham khảo cách bố trí tối ưu không gian của mẫu nhà này qua những hình ảnh sau.



>> Tham khảo: Phối cảnh 3d mẫu nhà rộng 5m dài 20m đẹp
Nhà ngang 5m 2 tầng bố trí logia thông minh giúp ngôi nhà đón gió tối ưu
Nhà ngang 5m 2 tầng có logia là lựa chọn phù hợp cho các lô đất hẹp thường gặp ở đô thị, nhờ khả năng đón gió và lấy sáng hiệu quả. Logia được bố trí như một lớp đệm, giúp giảm nắng, hạn chế mưa tạt và điều hòa luồng không khí vào nhà. Khu vực này cũng có thể được tận dụng làm nơi thư giãn hoặc giặt phơi, tăng thêm tiện ích mà vẫn đảm bảo sự thông thoáng. Với những ưu điểm đó, đây là kiểu nhà đáng để cân nhắc cho các gia đình mong muốn một không gian sống tiện nghi và dễ ứng dụng vào thực tế.



Thiết kế mẫu nhà lệch tầng 5×15 4 phòng ngủ tông màu đen xám mang đến vẻ ngoài sang trọng và huyền bí
Mẫu nhà lệch tầng 5x15m với 4 phòng ngủ sử dụng tông màu đen xám chủ đạo, tạo nên diện mạo huyền bí và thể hiện rõ cá tính kiến trúc. Gam màu này giúp tổng thể ngôi nhà trở nên rõ khối, dứt khoát, đồng thời khéo léo bộc lộ gu thẩm mỹ riêng của gia chủ. Bên trong, 4 phòng ngủ được bố trí trải đều trên 4 tầng, đảm bảo sự riêng tư cho từng thành viên mà vẫn giữ được sự tiện nghi trong sinh hoạt hằng ngày.



>> Xem thêm: Mặt tiền mẫu nhà phố 5m x 15m khiến ai cũng phải liếc nhìn
Tham khảo chi tiết báo giá xây dựng trọn gói mẫu nhà tầng lệch mới nhất
Đơn giá xây dựng nhà ở có sự chênh lệch tùy theo loại hình công trình, quy mô xây dựng, mức độ hoàn thiện cũng như nhu cầu sử dụng thực tế. Để giúp bạn dễ hình dung và lựa chọn phương án phù hợp, dưới đây là thông tin tham khảo đơn giá xây thô, hoàn thiện và xây nhà trọn gói theo m2 tại Xây dựng Nhất Tín:
- Giá xây nhà trọn gói: 4.450.000đ/ m2 – 6.900.000đ/ m2
- Giá xây dựng phần thô: 3.300.000đ/ m2 – 3.850.000đ/ m2
- Giá thi công hoàn thiện nhà: 1.400.000đ/ m2 – 3.450.000đ/ m2
Để có thông tin khách quan hơn, mời quý bạn đọc tham khảo dự toán ngân sách cho từ mẫu nhà theo từng quy mô phổ biến trong bảng dưới đây!
| Loại hình nhà ở | Khoảng chi phí |
| Mẫu nhà lệch tầng 4×12 2 tầng có tum | 1.000.000.000đ đến 1.170.000.000đ |
| Nhà mái lệch 4x16m 3 tầng | 1.540.000.000đ đến 1.810.000.000đ |
| mẫu nhà lệch tầng 5×12 4 tầng | 1.900.000.000đ đến 2.240.000.000đ |
| mẫu nhà lệch tầng 5×15 3 tầng 1 tum | 2.070.000.000đ đến 2.440.000.000đ |
| Mẫu nhà lệch tầng 5×20 2 tầng | 1.600.000.000đ đến 1.880.000.000đ |
| mẫu nhà lệch tầng 6×12 5 tầng | 2.800.000.000đ đến 3.300.000.000đ |
Trên đây là những mẫu nhà lệch tầng vừa đẹp mắt vừa tối ưu công năng mà Xây dựng Nhất Tín muốn gửi đến bạn. Chúng tôi hiểu rằng mỗi gia đình đều có nhu cầu và phong cách riêng, vì vậy mọi phương án từ thiết kế cho đến thi công đều được nghiên cứu kỹ lưỡng để mang đến không gian sống tiện nghi và bền vững. Nếu bạn đang cần tư vấn chi tiết hơn hoặc muốn bắt đầu lên ý tưởng cho ngôi nhà của mình, hãy liên hệ ngay Hotline 0988 607 705 để được hỗ trợ nhanh chóng và tận tâm.
KS Tran Nghia (xaydungnhattin.com)










