Sở hữu diện tích rộng rãi, thiết kế nhà phố 140m2 mang đến không gian sống tiện nghi và hài hòa. Mỗi chi tiết kiến trúc đều được chăm chút tinh tế, gửi trọn hơi thở bình yên trong từng góc nhỏ, tạo nên cảm giác thư thái và gần gũi cho gia chủ. Đây là lựa chọn lý tưởng cho những ai yêu thích sự nhẹ nhàng, cân đối giữa thẩm mỹ và công năng. Cùng xem qua các mẫu thiết kế nhà 140m2 qua bài đọc ngay bên dưới để tìm ý tưởng phù hợp cho tổ ấm của bạn.
>> Xem thêm: BST Thiết kế nhà đẹp vạn người mê
Tóm tắt nội dung
- 1 Thiết kế nhà phố 140m2 3 tầng 1 tum mang đến hơi thở Hiện Đại
- 2 Nhà cấp 4 mái Thái 5x28m với vẻ đẹp giản đơn, tinh tế khó rời mắt
- 3 Thiết kế nhà phố 140m2 mái Nhật 3 tầng thanh thoát trong từng đường nét
- 4 Mẫu nhà 140m2 3 phòng ngủ (14x10m) mái chéo có gara để xe bố trí tối ưu
- 5 Nhà 140m2 2 tầng bán Cổ Điển (7×20) ấn tượng với vẻ sang trọng quý phái
- 6 Nhà đẹp 140m2 2 phòng ngủ lô góc mặt tiền 9m thiết kế mái bằng mang vẻ khỏe khoắn
- 7 Mặt tiền nhà 140m2 (10x14m) kết hợp kinh doanh văn phòng
- 8 Nhà 2 tầng chữ L 140m2 Tân Cổ Điển với gam màu vàng ấm tạo nét đẹp hoài cổ
- 9 Gợi ý các phương án bố trí công năng tiện ích nhà 140m2 theo từng quy mô
- 10 Tham khảo giá thiết kế và thi công nhà phố 140m2 trọn gói mới nhất hiện nay
Thiết kế nhà phố 140m2 3 tầng 1 tum mang đến hơi thở Hiện Đại
Thiết kế nhà phố 140m2 3 tầng 1 tum mang phong cách Hiện Đại, là lựa chọn lý tưởng cho những gia đình yêu thích không gian sống tiện nghi và tinh tế. Mặt tiền được xử lý khéo léo với các mảng khối cân đối, vừa đảm bảo tính thẩm mỹ vừa tăng khả năng đón sáng tự nhiên. Bên trong, nội thất được bố trí khoa học, sử dụng vật liệu cao cấp và gam màu trang nhã, giúp tổng thể ngôi nhà trở nên sang trọng, thoáng đãng và đầy cảm hứng sống.





Nhà cấp 4 mái Thái 5x28m với vẻ đẹp giản đơn, tinh tế khó rời mắt
Nhà cấp 4 mái Thái 5x28m ghi điểm nhờ thiết kế tối giản nhưng vẫn toát lên vẻ sang trọng và tinh tế. Mặt tiền được phối khéo léo giữa gam màu trắng chủ đạo và gạch trang trí xám, tạo nên sự tương phản nhẹ nhàng mà cuốn hút. Từng đường nét được trau chuốt tinh gọn, giúp tổng thể ngôi nhà trở nên thanh thoát và hài hòa. Mẫu thiết kế này đặc biệt phù hợp với những gia chủ yêu thích phong cách giản đơn, tinh tế và dễ duy trì theo thời gian.


>>Xem thêm: Các mẫu nhà cấp 4 đẹp chi phí thấp
Thiết kế nhà phố 140m2 mái Nhật 3 tầng thanh thoát trong từng đường nét
Thiết kế nhà phố 140m2 3 tầng nổi bật với kiến trúc mái Nhật mang vẻ đẹp thanh thoát và cân đối. Hệ mái dốc nhẹ không chỉ giúp thoát nước tốt mà còn tạo điểm nhấn sang trọng cho tổng thể công trình. Từng đường nét mặt tiền được xử lý tinh tế, kết hợp ban công thoáng và mảng xanh bố trí hợp lý, mang đến không gian sống thoải mái và gần gũi thiên nhiên. Đây là lựa chọn lý tưởng cho những gia đình yêu thích phong cách tinh giản.


Mẫu nhà 140m2 3 phòng ngủ (14x10m) mái chéo có gara để xe bố trí tối ưu
Mẫu nhà 140m2 3 phòng ngủ gây ấn tượng với thiết kế mái xéo độc đáo, tạo nên hình khối kiến trúc hài hòa và tinh tế. Phần gara ô tô được bố trí gọn gàng ngay trong khuôn viên giúp thuận tiện cho việc di chuyển và sử dụng hàng ngày. Từng chi tiết trong thiết kế đều được cân nhắc kỹ lưỡng, mang đến không gian sống thoáng đãng, tiện nghi và đáp ứng trọn vẹn nhu cầu của gia đình.


Nhà 140m2 2 tầng bán Cổ Điển (7×20) ấn tượng với vẻ sang trọng quý phái
Nhà 140m2 2 tầng bán Cổ Điển thu hút ánh nhìn với vẻ đẹp thanh lịch và hài hòa trong từng đường nét. Hệ lan can lục bình tinh tế cùng phào chỉ đơn giản chạy dọc quanh nhà tạo nên điểm nhấn nhẹ nhàng nhưng vẫn toát lên sự sang trọng đặc trưng của phong cách bán Cổ Điển. Tổng thể ngôi nhà mang lại cảm giác trang nhã và thể hiện gu thẩm mỹ tinh tế của gia chủ.


>> Tham khảo: Thiết kế nhà ngang 7m dài 20m
Nhà đẹp 140m2 2 phòng ngủ lô góc mặt tiền 9m thiết kế mái bằng mang vẻ khỏe khoắn
Nhà đẹp 140m2 2 phòng ngủ gây ấn tượng với mặt tiền 9m thoáng rộng và vị trí căn góc đầy lợi thế, giúp không gian luôn tràn ngập ánh sáng tự nhiên. Hệ lam gỗ ngang được bố trí tinh tế ở mặt tiền vừa tạo điểm nhấn thẩm mỹ vừa giúp che nắng hiệu quả. Tổng thể ngôi nhà mang đến cảm giác hiện đại, gần gũi và thể hiện rõ phong cách sống tinh giản nhưng sang trọng của gia chủ. Với lợi thế diện tích rộng, gia chủ có thể bố trí thêm phòng làm việc và khu vui chơi nhỏ, mang lại sự tiện nghi và linh hoạt trong sinh hoạt hằng ngày.





>> Xem thêm: Những mẫu nhà mặt tiền 9m đẹp
Mặt tiền nhà 140m2 (10x14m) kết hợp kinh doanh văn phòng
Mặt tiền nhà 140m2 được thiết kế tinh tế, kết hợp hài hòa giữa không gian sống và khu vực kinh doanh tiện lợi. Mẫu nhà này nổi bật với những mảng kính lớn và các khung vòm mềm mại, tạo cảm giác thoáng đãng và thu hút ánh nhìn ngay từ lần đầu. Nhờ cách xử lý hình khối khéo léo và vật liệu chọn lọc, tổng thể công trình toát lên nét sang trọng và chuyên nghiệp, phù hợp với gia chủ yêu thích phong cách sống năng động.


Nhà 2 tầng chữ L 140m2 Tân Cổ Điển với gam màu vàng ấm tạo nét đẹp hoài cổ
Nhà 2 tầng chữ L 140m2 mang phong cách Tân Cổ Điển sang trọng với gam màu vàng ấm làm chủ đạo, tạo nên cảm giác ấm cúng và thanh lịch. Hệ cột cân đối cùng những đường phào chỉ tinh xảo giúp công trình toát lên vẻ đẹp bề thế, đậm chất kiến trúc châu Âu. Mẫu nhà không chỉ nổi bật bởi hình khối chữ L hài hòa mà còn mang đến không gian sống sang trọng, thể hiện rõ gu thẩm mỹ tinh tế của gia chủ.


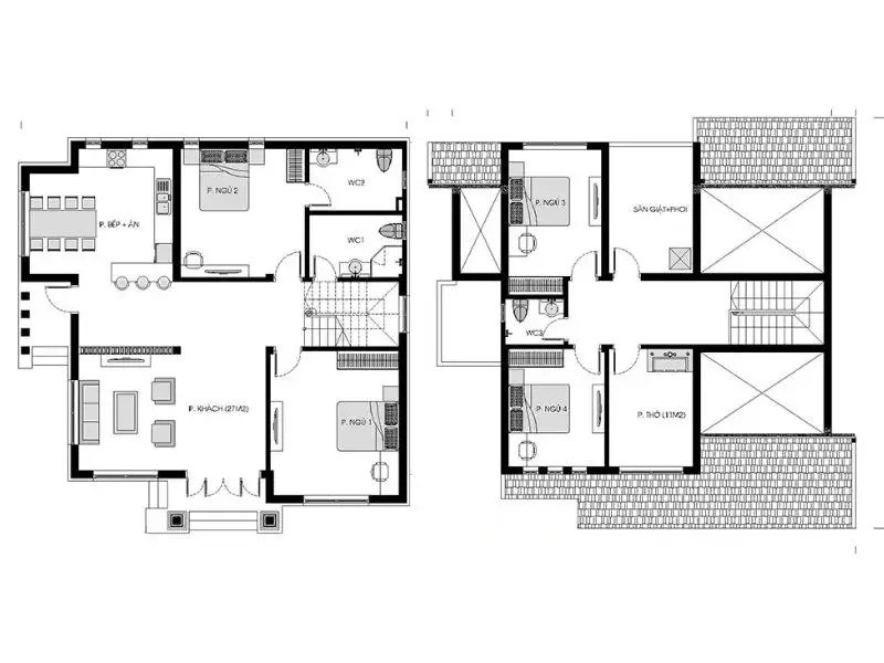
Gợi ý các phương án bố trí công năng tiện ích nhà 140m2 theo từng quy mô






Tham khảo giá thiết kế và thi công nhà phố 140m2 trọn gói mới nhất hiện nay
| Loại hình nhà ở | Khoảng chi phí |
| Nhà cấp 4 5 x 28m | 1.020.000.000đ đến 1.220.000.000đ |
| Nhà 1 tầng có gác lửng | 1.530.000.000đ đến 1.830.000.000đ |
| Nhà 140m2 2 tầng | 2.040.000.000đ đến 2.440.000.000đ |
| Thiết kế nhà phố 140m2 3 tầng | 3.070.000.000đ đến 3.650.000.000đ |
| Thiết kế nhà phố 140m2 4 tầng | 4.090.000.000đ đến 4.870.000.000đ |
| Mặt tiền nhà 140m2 5 tầng (7x20m) | 5.110.000.000đ đến 6.090.000.000đ |
>> Xem thêm:
Nhà phố 140m2 mang đến không gian sống tiện nghi, hài hòa giữa thẩm mỹ và công năng. Với diện tích lý tưởng, gia chủ có thể dễ dàng bố trí khu vực sinh hoạt, nghỉ ngơi và cả không gian xanh thư giãn. Mỗi thiết kế đều được Nhất Tín chú trọng đến từng chi tiết, đảm bảo phù hợp với nhu cầu sử dụng và gu thẩm mỹ của từng gia đình. Liên hệ ngay Xây dựng Nhất Tín – 0908 892 901 để được tư vấn thiết kế nhà 140m2 chi tiết và nhận báo giá xây nhà miễn phí.
> Xem thêm: Thiết kế nhà phố 120m2
KS Tran Nghia (xaydungnhattin.com)










