Thiết kế nhà phố 100m2 không chỉ là bài toán về công năng mà còn là hành trình kiến tạo tổ ấm mang dấu ấn riêng của từng gia đình. Trên nền diện tích rộng rãi và bố cục linh hoạt, mỗi thiết kế là một giao thoa giữa thẩm mỹ, tiện nghi và cá tính. Cùng Xây dựng Nhất Tín khám phá những mẫu nhà đẹp cho diện tích 100m2 dưới đây — nơi bạn có thể tìm thấy cảm hứng để “thổi hồn” vào không gian sống mơ ước của mình.
>> Tham khảo thêm: Tổng hợp hình ảnh mẫu nhà đẹp đáng tham khảo
Tóm tắt nội dung
- 1 Nhà 100m2 cấp 4 mái Nhật (10x10m) có vườn xanh mát tạo nét đẹp nhẹ nhàng
- 2 Nhà phố 100m2 đẹp 2 tầng chữ L mái Thái có gara để xe tiện nghi bên hông
- 3 Mẫu thiết kế nhà phố 100m2 3 tầng 5 phòng ngủ (4x25m) với cách kết hợp màu tinh tế
- 4 Mẫu nhà ống 100m2 1 tầng mái chữ A kết hợp lam trang trí độc đáo
- 5 Thiết kế nhà 100m2 2 tầng đẹp tinh tế nhờ đường cong uyển chuyển ở mặt tiền
- 6 Mẫu thiết kế nhà 100m2 3 phòng ngủ có bố trí sân thượng mới lạ tạo điểm nhấn kiến trúc
- 7 Ý tưởng xây nhà đẹp diện tích 100m2 phong cách Tân Cổ Điển sang trọng
- 8 Mẫu nhà 100m2 5×20 với quy mô 4 tầng 1 tum Hiện Đại
- 9 Thiết kế nhà 2 tầng 100m2 4 phòng ngủ sở hữu họa tiết trang trí tinh xảo
- 10 Tham khảo giải pháp bố trí công năng nhà 100m2 chuẩn tỉ lệ và tối ưu hiệu quả sử dụng
- 11 Giá xây nhà đẹp diện tích 100m2 – Dự toán chi phí chi tiết theo từng loại nhà mới nhất hiện nay
Nhà 100m2 cấp 4 mái Nhật (10x10m) có vườn xanh mát tạo nét đẹp nhẹ nhàng
Nhà 100m2 cấp 4 với thiết kế mái Nhật mang đến vẻ đẹp thanh thoát và cân đối, phù hợp với nhiều phong cách sống hiện nay. Bao quanh ngôi nhà là khoảng sân vườn xanh mát, điểm xuyết tiểu cảnh tinh tế, mang đến không gian thư giãn trong lành và gần gũi với thiên nhiên. Sự kết hợp khéo léo giữa kiến trúc tinh tế và cảnh quan xanh tạo nên một bản phối hoàn hảo giữa tiện nghi và cảm xúc, biến ngôi nhà trở thành chốn an cư lý tưởng – nơi mỗi phút giây trở về đều tràn đầy bình yên.


>> Xem thêm: Ý tưởng xây nhà ngang 10m dài 10m
Nhà phố 100m2 đẹp 2 tầng chữ L mái Thái có gara để xe tiện nghi bên hông
Nhà phố 100m2 đẹp 2 tầng được thiết kế theo dáng chữ L mang lại sự thông thoáng và tiện nghi trong sinh hoạt. Phần mái Thái được thi công tỉ mỉ, vừa giúp thoát nước hiệu quả vừa tăng tính thẩm mỹ cho tổng thể công trình. Không chỉ vậy, bên hông nhà có gara để xe riêng, tạo sự thuận tiện và gọn gàng cho không gian sử dụng. Từng chi tiết trong thiết kế đều được sắp xếp hợp lý, mang đến một tổ ấm vừa sang trọng vừa tiện nghi.


>> Tham khảo: Chi phí xây nhà 2 tầng 100m2
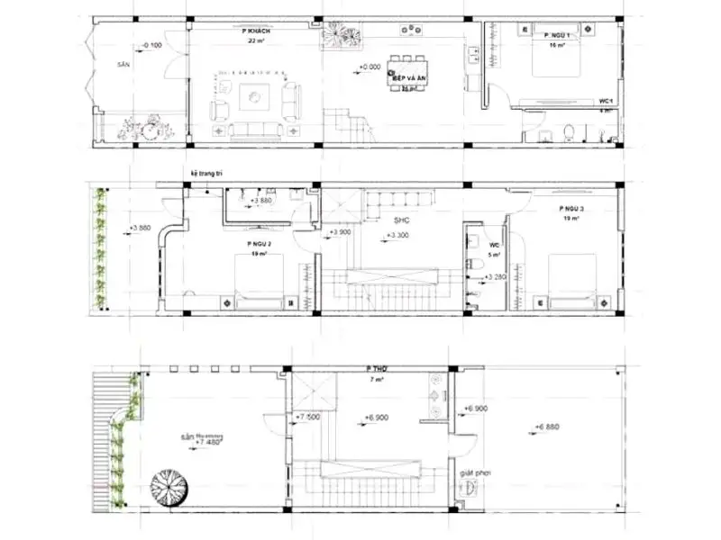
Mẫu thiết kế nhà phố 100m2 3 tầng 5 phòng ngủ (4x25m) với cách kết hợp màu tinh tế
Mẫu thiết kế nhà phố 100m2 3 tầng ghi điểm với cách phối màu tinh tế giữa tông trắng – xám xi măng – vàng ánh kim, tạo nên vẻ đẹp hiện đại, thanh thoát và sang trọng. Gam xám bê tông mang đến cảm giác “thô mộc” đầy cá tính, trong khi ánh kim điểm xuyết khéo léo giúp tổng thể thêm phần nổi bật và đẳng cấp. Sự kết hợp này không chỉ thể hiện gu thẩm mỹ tinh tế của gia chủ mà còn tôn lên nét độc đáo riêng cho ngôi nhà phố.


>> Tham khảo thêm: Thiết kế nhà 5 phòng ngủ
Mẫu nhà ống 100m2 1 tầng mái chữ A kết hợp lam trang trí độc đáo
Mẫu nhà ống 100m2 1 tầng gây ấn tượng với thiết kế mái chữ A kết hợp lam gỗ trang trí ở mặt tiền, tạo nên diện mạo vừa tinh tế vừa gần gũi. Những đường lam gỗ được bố trí cân đối giúp ngôi nhà thêm điểm nhấn và tăng tính thẩm mỹ cho tổng thể kiến trúc. Bên cạnh đó, mái chữ A mang đến cảm giác cao ráo, thoáng mát, phù hợp với khí hậu Việt Nam, đồng thời giúp không gian sống trở nên hài hòa và bền vững theo thời gian.


Thiết kế nhà 100m2 2 tầng đẹp tinh tế nhờ đường cong uyển chuyển ở mặt tiền
Thiết kế nhà 100m2 2 tầng mang nét mềm mại và cuốn hút nhờ các đường cong ở khung cửa và góc nhà. Những chi tiết uốn lượn tinh tế này giúp tổng thể kiến trúc trở nên hài hòa, giảm bớt sự cứng nhắc thường thấy trong các mẫu nhà phố. Sự kết hợp giữa hình khối vuông vức và đường cong nhẹ nhàng tạo nên vẻ đẹp thanh thoát, vừa thể hiện gu thẩm mỹ tinh tế của gia chủ, vừa mang lại cảm giác gần gũi và thoải mái trong không gian sống.


Mẫu thiết kế nhà 100m2 3 phòng ngủ có bố trí sân thượng mới lạ tạo điểm nhấn kiến trúc
Mẫu thiết kế nhà 100m2 3 phòng ngủ nổi bật với tầng tum tiện ích và ban công lớn có mái che poly tạo không gian thư giãn ngoài trời cho gia chủ. Nhờ thiết kế thông minh này, công trình tối ưu hiệu quả thông gió, chiếu sáng và mang lại sự tiện nghi vượt trội cho gia chủ. Bên cạnh đó, bố trí 3 phòng ngủ giúp ngôi nhà trở thành lựa chọn hoàn hảo cho những gia đình có 3–4 thành viên, vừa ấm cúng vừa thoải mái.


>> Tham khảo: Chi phí xây nhà 1 tầng 3 phòng ngủ
Ý tưởng xây nhà đẹp diện tích 100m2 phong cách Tân Cổ Điển sang trọng
Mẫu nhà đẹp 100m2 được thiết kế theo phong cách Tân Cổ Điển, nổi bật với phần mái vòm họa tiết tinh xảo và đầy nghệ thuật. Từng chi tiết được chăm chút tỉ mỉ, từ đường phào chỉ mềm mại đến những đường cong uyển chuyển của mái vòm, tạo nên tổng thể hài hòa và cuốn hút. Sự dung hòa giữa đường nét cổ điển và hơi thở hiện đại đã làm tôn lên nét đẹp vừa sang trọng vừa mang dấu ấn riêng của mẫu nhà này.


Mẫu nhà 100m2 5×20 với quy mô 4 tầng 1 tum Hiện Đại
Mẫu nhà 100m2 5×20 được thiết kế theo phong cách hiện đại với kết cấu 4 tầng 1 tum, mang đến không gian sống rộng rãi và tiện nghi. Điểm nhấn của ngôi nhà nằm ở giếng trời thông thoáng, giúp đón ánh sáng tự nhiên và tạo sự lưu thông không khí giữa các tầng. Từng chi tiết kiến trúc đều được tính toán tỉ mỉ, vừa đảm bảo công năng, vừa thể hiện gu thẩm mỹ tinh tế và hiện đại của gia chủ.



>> Xem thêm: Mẫu nhà đẹp diện tích 5x20m
Thiết kế nhà 2 tầng 100m2 4 phòng ngủ sở hữu họa tiết trang trí tinh xảo
Thiết kế nhà 2 tầng 100m2 4 phòng ngủ nổi bật với họa tiết trang trí tinh xảo mang đậm nét sang trọng và tinh tế. Mặt tiền được điểm xuyết bằng ban công lục bình cổ điển, tạo cảm giác mềm mại và thanh thoát cho tổng thể kiến trúc. Tông màu trắng – vàng được phối hợp hài hòa, vừa toát lên vẻ đẹp ấm áp, vừa giữ được sự tinh khiết và đẳng cấp. Đây là lựa chọn lý tưởng cho gia chủ yêu thích phong cách trang nhã và bền vững theo thời gian.


>> Tham khảo: BST Mẫu nhà đẹp 4 phòng ngủ
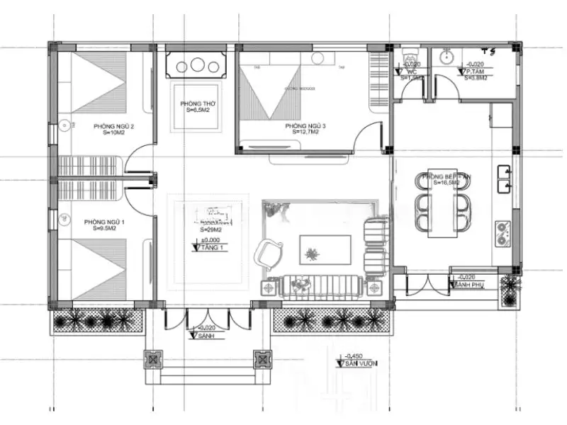
Tham khảo giải pháp bố trí công năng nhà 100m2 chuẩn tỉ lệ và tối ưu hiệu quả sử dụng





Giá xây nhà đẹp diện tích 100m2 – Dự toán chi phí chi tiết theo từng loại nhà mới nhất hiện nay
Giá xây nhà đẹp diện tích 100m2 khoảng 4.800.000đ/m² đến 6.950.000đ/m², tùy theo quy mô công trình, loại vật liệu sử dụng và phong cách thiết kế mà gia chủ mong muốn.
>> Tham khảo đơn giá chi tiết tại: Bảng báo giá xây dựng trọn gói
Nếu bạn muốn ước tính ngân sách cụ thể và chi tiết hơn cho từng loại hình nhà ở, hãy tham khảo bảng dự toán chi phí xây dựng nhà 100m² do Xây Dựng Nhất Tín tổng hợp ngay bên dưới – giúp bạn dễ dàng lên kế hoạch tài chính phù hợp và hiệu quả nhất:
| Loại hình nhà ở | Khoảng chi phí |
| Nhà 100m2 cấp 4 | 730.000.000đ đến 870.000.000đ |
| Thiết kế nhà 100m2 2 tầng | 1.460.000.000đ đến 1.740.000.000đ |
| Thiết kế nhà phố 100m2 3 tầng | 2.190.000.000đ đến 2.610.000.000đ |
| Mẫu nhà 100m2 5×20 4 tầng | 2.920.000.000đ đến 3.480.000.000đ |
>> Tham khảo thêm: Chi phí xây dựng nhà 100m2 là bao nhiêu?
Như vậy, qua những gợi ý trên, bạn đã có thêm nhiều ý tưởng sáng tạo cho thiết kế nhà 100m2 phù hợp với nhu cầu và phong cách sống của mình. Dù theo đuổi phong cách hiện đại hay tối giản, những mẫu nhà 100m² vẫn luôn mang đến cảm giác thoải mái và gần gũi trong từng đường nét. Liên hệ ngay hotline 0988 607 705 để được tư vấn chi tiết về mẫu nhà đẹp cho diện tích 100m2 và nhận báo giá thiết kế – thi công trọn gói nhanh chóng, minh bạch.
> Tham khảo: Thiết kế nhà phố đẹp 90m2
KS Tran Nghia (xaydungnhattin.com)










