Từ lâu, mẫu nhà mái Thái đã trở thành biểu tượng của sự thanh lịch và tinh tế trong kiến trúc Việt. Kiểu mái đặc trưng với độ dốc mềm mại không chỉ giúp ngôi nhà luôn mát mẻ, thoáng đãng mà còn tôn lên vẻ sang trọng và thanh thoát. Với phong cách thiết kế linh hoạt và tay nghề thi công chuẩn mực, Xây dựng Nhất Tín mang đến các mẫu nhà mái Thái đẹp đậm chất riêng, vững bền theo năm tháng. Cùng chúng tôi khám phá những ý tưởng độc đáo để hoàn thiện tổ ấm mơ ước của bạn trong nội dung dưới đây!
>> Xem thêm: Những mẫu nhà đẹp nhất dẫn đầu xu hướng năm nay
Tóm tắt nội dung
- 1 Chiêm ngưỡng các mẫu nhà mái Thái đẹp được thiết kế đa dạng theo từng quy mô xây dựng
- 2 Những kiểu nhà mái Thái phong cách độc đáo khó quên
- 3 Thiết kế mẫu nhà mái Thái đẹp theo diện tích, mang lại không gian sống hoàn hảo
- 3.1 Mẫu nhà mái thái mặt tiền 5m tối ưu không gian
- 3.2 Thiết kế nhà nóc Thái ngang 6m được ưa chuộng hiện nay
- 3.3 Thiết kế nhà mái Thái mặt tiền 7m phù hợp mọi gia đình
- 3.4 Nhà mái Thái 8m mặt tiền tinh tế trong từng đường nét
- 3.5 Mẫu nhà mái thái mặt tiền 9m chuẩn xu hướng
- 3.6 Mẫu nhà mái Thái ngang 10m vạn người mê
- 3.7 Phối cảnh ngoại thất nhà mái Thái mặt tiền rộng 12m
- 3.8 Một số mẫu nhà mái Thái theo các diện tích phổ biến
- 4 Tổng hợp mẫu nhà đẹp mái Thái theo loại hình nhà ở phổ biến hiện nay
- 4.1 Mẫu nhà vườn mái Thái nông thôn hài hòa phong thủy
- 4.2 Mẫu nhà mái thái chữ U với bố cục không gian ấn tượng
- 4.3 Mẫu nhà mái thái chữ L đẹp mang hơi thở của cuộc sống thanh bình
- 4.4 Biệt thự mái Thái đẹp ai cũng mơ ước
- 4.5 Nhà phố thiết kế mái Thái khơi nguồn cảm hứng
- 4.6 Nhà cấp 4 với thiết kế mái Thái lựa chọn hoàn hảo cho gia đình nhỏ
- 5 Mẫu nhà mái Thái theo công năng giải pháp cho gia đình nhiều thành viên
- 5.1 Mẫu nhà gác lửng mái Thái đầy sức hút
- 5.2 Thiết kế nhà mái Thái có gara đẹp và khoa học
- 5.3 Mẫu nhà mái thái 2 phòng ngủ giản dị bên ngoài, tinh tế bên trong
- 5.4 Nhà mái Thái 3 phòng ngủ không gian sống lý tưởng cho gia đình Việt
- 5.5 Nhà mái Thái 4 phòng ngủ giải pháp thiết kế tiện nghi cho gia đình
- 5.6 Mẫu nhà mái thái 5 phòng ngủ mang đến không gian sống đáng mơ ước
- 6 Tham khảo qua chi phí xây dựng mẫu nhà mái Thái mới nhất
Chiêm ngưỡng các mẫu nhà mái Thái đẹp được thiết kế đa dạng theo từng quy mô xây dựng
Mẫu nhà đẹp mái Thái 1 tầng tiện nghi
Những mẫu nhà đẹp mái Thái 1 tầng luôn mang lại cảm giác tiện nghi và thoải mái trong từng không gian sống. Với thiết kế khoa học và bố cục hợp lý, ngôi nhà trở nên rộng rãi, dễ di chuyển và đáp ứng đầy đủ nhu cầu sinh hoạt của gia đình. Kiểu mái Thái thanh thoát, mềm mại giúp tổng thể thêm sang trọng và gần gũi với thiên nhiên. Đây là lựa chọn lý tưởng cho những ai yêu thích sự giản dị nhưng vẫn muốn giữ nét tinh tế trong tổ ấm của mình.








>> Tham khảo: Chi phí xây nhà 1 tầng hết bao nhiêu?
Mẫu nhà mái thái 2 tầng đẹp tinh tế
Các mẫu nhà mái Thái 2 tầng chinh phục người nhìn nhờ vẻ đẹp tinh tế và sự cân đối trong tổng thể kiến trúc. Mỗi chi tiết được sắp đặt hài hòa, tạo nên một không gian vừa sang trọng vừa gần gũi. Sự kết hợp giữa tỷ lệ hình khối, màu sắc và ánh sáng giúp ngôi nhà luôn nổi bật mà vẫn giữ được nét thanh lịch riêng. Đây là lựa chọn hoàn hảo cho những ai yêu thích phong cách sống tinh tế và hiện đại.






>> Xem thêm: Chi phí xây dựng nhà 2 tầng trọn gói
Mẫu nhà mái Thái 3 tầng ấn tượng
Mẫu nhà mái Thái 3 tầng mang đến cảm giác sang trọng và cuốn hút ngay từ cái nhìn đầu tiên. Thiết kế ấn tượng với bố cục khoa học cùng các mảng khối được xử lý tinh tế giúp ngôi nhà vừa vững chãi vừa thanh thoát. Sự kết hợp hài hòa giữa màu sắc, chất liệu và ánh sáng tạo nên tổng thể kiến trúc bắt mắt, thể hiện rõ gu thẩm mỹ của gia chủ. Đây là lựa chọn lý tưởng cho không gian sống đẳng cấp và tiện nghi.






>> Xem thêm: Chi phí xây nhà 3 tầng trọn gói
Một số quy mô khác



Những kiểu nhà mái Thái phong cách độc đáo khó quên
Nhà mái Thái đơn giản với nét đẹp hài hòa
Với nét đẹp hài hòa và tinh tế, nhà mái Thái đơn giản mang đến cảm giác dễ chịu và gần gũi cho không gian sống. Thiết kế nhẹ nhàng, bố cục hợp lý giúp ngôi nhà trở nên thông thoáng và tiện nghi mà không cần quá cầu kỳ. Sự kết hợp giữa thẩm mỹ và công năng tạo nên tổng thể ấm cúng, tự nhiên – phù hợp với những gia đình yêu thích phong cách sống giản dị và tinh tế.



Nhà nóc Thái Tân Cổ Điển sang trọng
Mang trong mình vẻ đẹp tinh tế của kiến trúc châu Âu, nhà nóc Thái Tân Cổ Điển thể hiện sự sang trọng và đẳng cấp trong từng chi tiết. Những đường phào chỉ mềm mại kết hợp cùng tỷ lệ hình khối cân đối tạo nên tổng thể hài hòa, cuốn hút. Thiết kế này không chỉ mang lại giá trị thẩm mỹ cao mà còn khẳng định phong cách sống tinh tế của gia chủ, biến ngôi nhà trở thành biểu tượng của sự thanh lịch và bền vững theo thời gian.




Thiết kế nhà mái Thái Hiện Đại thanh thoát
Với đường nét tinh gọn và bố cục hài hòa, thiết kế nhà mái Thái hiện đại mang đến vẻ đẹp thanh thoát và cuốn hút trong từng góc nhìn. Kiến trúc được tối giản nhưng vẫn giữ được sự tinh tế, giúp không gian sống trở nên nhẹ nhàng và thoáng đãng hơn. Sự kết hợp giữa chất liệu hiện đại và tông màu trang nhã tạo nên tổng thể cân đối, phù hợp với lối sống năng động và gu thẩm mỹ thời thượng của nhiều gia đình.




Thiết kế mẫu nhà mái Thái đẹp theo diện tích, mang lại không gian sống hoàn hảo
Mẫu nhà mái thái mặt tiền 5m tối ưu không gian
Các mẫu nhà mái Thái mặt tiền 5m được thiết kế thông minh và tối ưu không gian sử dụng dù diện tích không quá lớn. Nhờ cách bố trí hợp lý và lựa chọn vật liệu phù hợp, ngôi nhà vẫn đảm bảo sự thông thoáng, tiện nghi và thẩm mỹ cao. Dù xây dựng trên lô đất nhỏ hay vừa, kiểu nhà này vẫn mang lại cảm giác rộng rãi, thoải mái, đáp ứng đầy đủ nhu cầu sinh hoạt của gia đình hiện đại.



>> Tham khảo: Thiết kế nhà phố mặt tiền 5m đẹp
Thiết kế nhà nóc Thái ngang 6m được ưa chuộng hiện nay
Với phong cách kiến trúc hài hòa và công năng sử dụng linh hoạt, thiết kế nhà nóc Thái ngang 6m đang là lựa chọn được nhiều gia đình ưa chuộng hiện nay. Mặt tiền rộng 6m tạo điều kiện thuận lợi cho việc bố trí không gian sống thoáng đãng và tiện nghi. Sự kết hợp tinh tế giữa hình khối, màu sắc và mái Thái thanh thoát giúp tổng thể ngôi nhà trở nên cân đối, hài hòa và phù hợp với nhu cầu của nhiều gia đình Việt.




>> Tham khảo: Thiết kế nhà phố đẹp mặt tiền 6m
Thiết kế nhà mái Thái mặt tiền 7m phù hợp mọi gia đình
Nhờ tỷ lệ mặt tiền cân đối và khả năng tận dụng không gian linh hoạt, thiết kế nhà mái Thái mặt tiền 7m ngày càng được nhiều gia đình yêu thích. Kiểu nhà này mang lại cảm giác rộng rãi, thông thoáng và dễ dàng sắp xếp các khu vực sinh hoạt hợp lý. Phong cách kiến trúc thanh nhã cùng mái Thái đặc trưng giúp ngôi nhà trở nên gần gũi, ấm cúng và phù hợp với nhu cầu sống của nhiều gia đình ở cả thành thị lẫn nông thôn.




>> Xem thêm: Mẫu thiết kế nhà ngang 7m đầy ấn tượng
Nhà mái Thái 8m mặt tiền tinh tế trong từng đường nét
Sở hữu vẻ đẹp cân đối và hài hòa, nhà mái Thái 8m mặt tiền gây ấn tượng nhờ sự tinh tế trong từng đường nét thiết kế. Mỗi chi tiết đều được chăm chút tỉ mỉ, tạo nên tổng thể vừa sang trọng vừa gần gũi. Không gian mặt tiền rộng giúp kiến trúc sư dễ dàng sáng tạo, mang lại cảm giác thoáng đãng và thoải mái cho người ở. Đây là lựa chọn lý tưởng cho những ai yêu thích vẻ đẹp nhẹ nhàng nhưng vẫn đầy điểm nhấn.




>> Xem thêm: Mẫu nhà 8m mặt tiền đẹp được ưa chuộng nhất
Mẫu nhà mái thái mặt tiền 9m chuẩn xu hướng
Mang phong cách kiến trúc thời thượng và bố cục cân đối, mẫu nhà mái Thái mặt tiền 9m thể hiện rõ vẻ ngoài đẳng cấp chuẩn xu hướng ngày nay. Với không gian thoáng rộng, ngôi nhà dễ dàng tạo điểm nhấn bằng đường nét thanh thoát và bố trí công năng linh hoạt. Những mẫu nhà này sẽ là không gian sống lý tưởng, vừa tiện nghi vừa giàu tính thẩm mỹ, đáp ứng nhu cầu của những gia đình yêu sự tinh gọn nhưng vẫn muốn thể hiện dấu ấn riêng.




>> Xem thêm: Những mẫu nhà mặt tiền 9m đẹp
Mẫu nhà mái Thái ngang 10m vạn người mê
Với diện tích đủ lớn, mẫu nhà mái Thái ngang 10m luôn tạo được sức hút đặc biệt, khiến ai nhìn thấy cũng phải “mê từ cái nhìn đầu tiên”. Từng chi tiết kiến trúc được xử lý tinh tế, mang đến tổng thể hài hòa và cuốn hút. Sự kết hợp giữa hình khối vững chãi và nét mềm mại của mái Thái giúp ngôi nhà vừa bề thế, vừa ấm áp – một không gian sống đáng mơ ước cho mọi gia đình.





>> Có thể bạn quan tâm: Mẫu nhà đẹp ngang 10m tối ưu công năng lẫn thẩm mỹ
Phối cảnh ngoại thất nhà mái Thái mặt tiền rộng 12m
Với lợi thế mặt tiền rộng, nhà mái Thái mặt tiền 12m nổi bật nhờ phần ngoại thất được thiết kế tinh tế và có chiều sâu. Các mảng tường, cửa sổ và chi tiết trang trí được sắp đặt hài hòa, tạo nên diện mạo vừa bề thế vừa gần gũi. Kiểu mái Thái được kết hợp khéo léo với màu sắc nhẹ nhàng, giúp ngôi nhà toát lên vẻ thanh lịch và ấm áp. Đây là lựa chọn lý tưởng cho gia chủ yêu thích không gian sống thoáng đãng và tràn đầy sức sống.


Một số mẫu nhà mái Thái theo các diện tích phổ biến
Ngoài ra, mái Thái còn có khả năng tùy biến linh hoạt theo nhiều diện tích khác nhau, mang đến các phiên bản phù hợp như:





Tổng hợp mẫu nhà đẹp mái Thái theo loại hình nhà ở phổ biến hiện nay
Mẫu nhà vườn mái Thái nông thôn hài hòa phong thủy
Những mẫu nhà vườn mái Thái luôn được yêu thích bởi vẻ đẹp hài hòa, gần gũi thiên nhiên và yếu tố phong thủy tốt lành. Kiểu mái dốc đặc trưng giúp thoát nước nhanh, tạo cảm giác thông thoáng và mang lại vận khí may mắn cho gia chủ. Dù thiết kế theo phong cách hiện đại hay truyền thống, mỗi ngôi nhà đều toát lên vẻ sang trọng, tinh tế và ấm cúng, mang đến không gian sống lý tưởng cho mọi gia đình Việt.




Mẫu nhà mái thái chữ U với bố cục không gian ấn tượng
Mang hơi thở mới mẻ và cuốn hút, mẫu nhà mái Thái chữ U khiến người xem ấn tượng ngay từ bố cục thiết kế tinh gọn và hợp lý. Kiểu dáng này tạo nên không gian mở tự nhiên, vừa đảm bảo sự riêng tư vừa mang lại cảm giác kết nối giữa các khu vực sinh hoạt. Cách xử lý hình khối và tỉ lệ kiến trúc khéo léo giúp tổng thể ngôi nhà trở nên mềm mại, hài hòa và đậm dấu ấn cá nhân của gia chủ.





>> Xem thêm: Những mẫu nhà chữ u đẹp nhất
Mẫu nhà mái thái chữ L đẹp mang hơi thở của cuộc sống thanh bình
Với bố cục linh hoạt và đường nét thanh thoát, mẫu nhà mái Thái chữ L đẹp mang đến không gian sống tối ưu và gần gũi với thiên nhiên. Mẫu thiết kế này giúp ngôi nhà đón nắng và gió tự nhiên, tạo cảm giác thoáng đãng và thư thái trong từng góc nhỏ. Sự kết hợp hài hòa giữa kiến trúc và cảnh quan xung quanh mang đến một tổng thể hài hòa, nơi mỗi thành viên đều có thể tận hưởng sự tĩnh lặng và thoải mái trong chính tổ ấm của mình.





>> Xem thêm: Mẫu nhà đẹp hình chữ L
Biệt thự mái Thái đẹp ai cũng mơ ước
Mang nét quyến rũ riêng biệt, biệt thự mái Thái đẹp là sự giao hòa giữa kiến trúc tinh tế và cảm xúc sống trọn vẹn. Kiểu mái dốc đặc trưng giúp tôn lên dáng vẻ bề thế, trong khi phần không gian được mở rộng linh hoạt tạo cảm giác thoáng đạt và thoải mái. Mỗi chi tiết trong thiết kế đều được chăm chút cẩn thận, thể hiện gu thẩm mỹ và đẳng cấp của gia chủ, đồng thời mang lại một không gian sống sang trọng, gần gũi và tràn đầy sức sống.




Nhà phố thiết kế mái Thái khơi nguồn cảm hứng
Kết hợp giữa nét truyền thống và phong cách hiện đại, nhà phố thiết kế mái Thái mang đến nguồn cảm hứng mới cho không gian sống trẻ giữa lòng đô thị năng động. Kiểu mái Thái thanh thoát giúp ngôi nhà thêm cao ráo, thoáng sáng, trong khi bố cục linh hoạt tạo cảm giác rộng rãi và tiện nghi. Sự hài hòa giữa kiến trúc, ánh sáng và màu sắc mang đến một không gian sống tươi mới, thể hiện cá tính năng động và gu thẩm mỹ tinh tế của thế hệ trẻ.





Nhà cấp 4 với thiết kế mái Thái lựa chọn hoàn hảo cho gia đình nhỏ
Với lối kiến trúc gọn gàng và bố cục hợp lý, nhà cấp 4 với thiết kế mái Thái là lựa chọn hoàn hảo cho những gia đình nhỏ yêu thích sự ấm cúng và tiện nghi. Không gian được bố trí thông minh, giúp tối ưu diện tích sử dụng mà vẫn đảm bảo sự thoáng mát, thoải mái. Cùng đón xem 1 số mẫu nhà ấn tượng trong nội dung dưới đây.




Mẫu nhà mái Thái theo công năng giải pháp cho gia đình nhiều thành viên
Mẫu nhà gác lửng mái Thái đầy sức hút
Mang nét duyên dáng riêng và bố cục tinh tế, mẫu nhà gác lửng mái Thái thu hút ánh nhìn nhờ vẻ hài hòa và gần gũi. Phần gác lửng được thiết kế khéo léo, giúp mở rộng không gian sinh hoạt mà vẫn giữ được kiến trúc tinh gọn cho ngôi nhà. Không chỉ vậy, mẫu nhà được thiết kế với hình khối cân đối tạo nên tổng thể thanh thoát, đầy sức hút và phù hợp với những gia đình yêu thích không gian sống giản dị, thoải mái.








>> Xem thêm: Thiết kế nhà tầng lửng đẹp
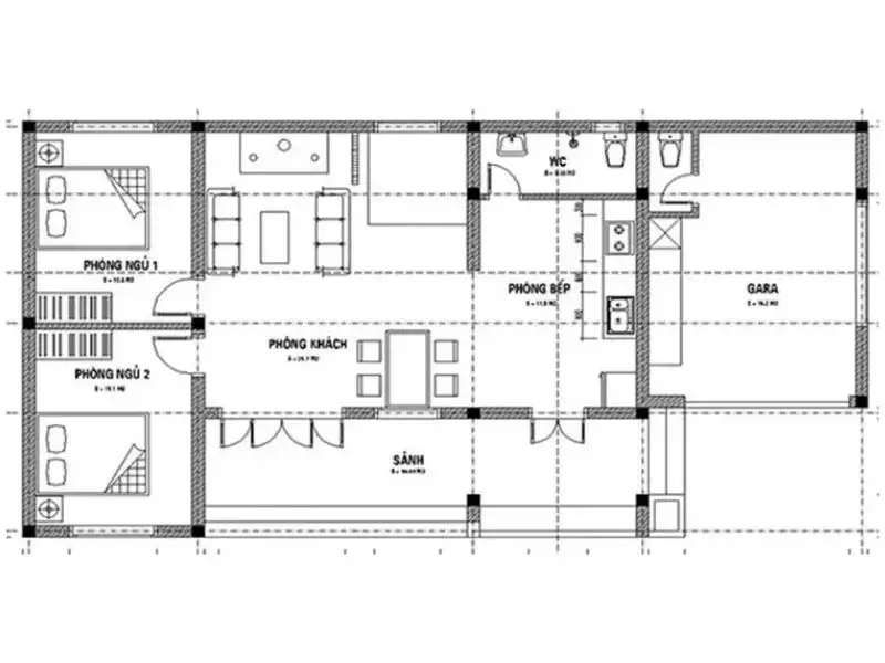
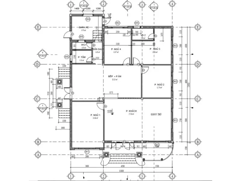
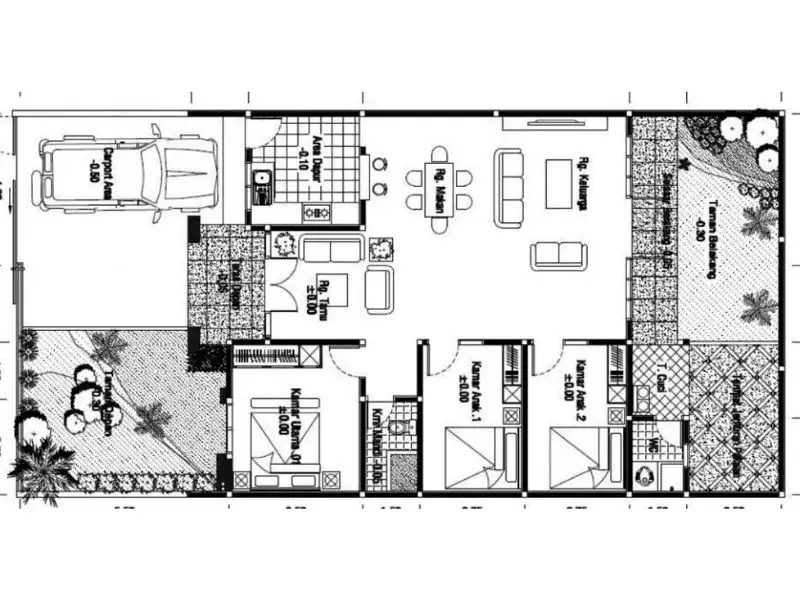
Thiết kế nhà mái Thái có gara đẹp và khoa học
Với thiết kế có gara, mẫu nhà mái Thái này mang đến không gian sống tiện nghi và hợp lý cho cả gia đình. Gara được bố trí khoa học, thuận tiện cho việc sử dụng mà vẫn đảm bảo diện tích sinh hoạt thoáng rộng. Các khu vực chức năng được sắp xếp logic, tạo cảm giác gọn gàng và dễ di chuyển, đồng thời mang lại tổng thể hài hòa, ấm cúng, phù hợp với nhu cầu sống tiện lợi và hiện đại.



bản vẽ: Bản vẽ 2D thiết kế nhà mái Thái với 5 phòng ngủ và có gara riêng biệt.



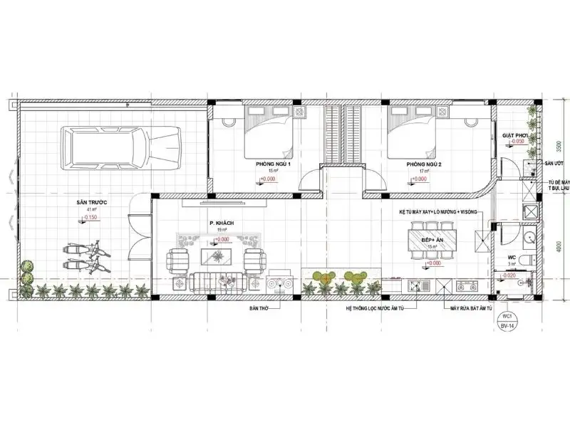
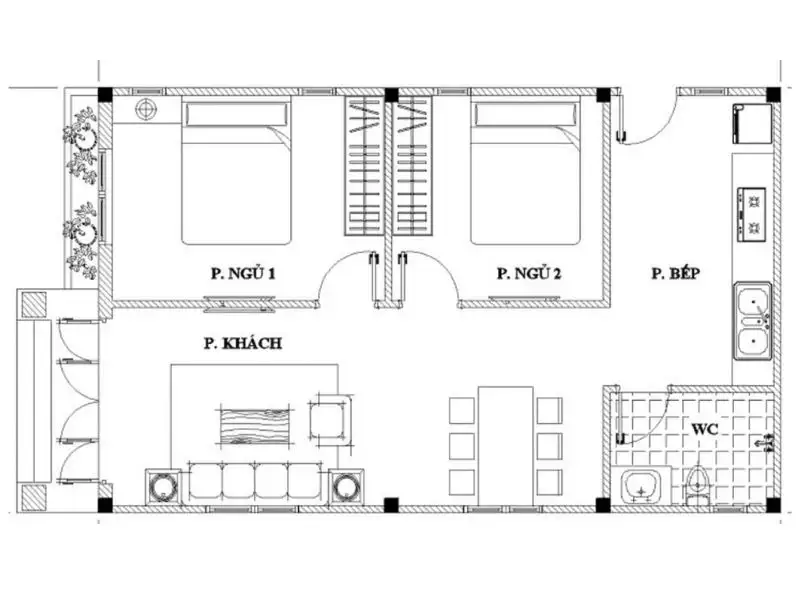
Mẫu nhà mái thái 2 phòng ngủ giản dị bên ngoài, tinh tế bên trong
Mẫu nhà mái Thái 2 phòng ngủ nổi bật nhờ sự kết hợp hài hòa giữa ngoại thất giản dị và nội thất tinh tế. Mặt tiền tối giản tạo cảm giác thân thiện, còn không gian bên trong được bố trí thông minh để luôn thoáng sáng và tiện nghi. Nhờ sự kết nối hài hòa giữa kiến trúc và công năng, ngôi nhà mang đến tổng thể gọn gàng, ấm áp và đáp ứng trọn vẹn nhu cầu sinh hoạt của một gia đình nhỏ.






>> Tham khảo: Thiết kế nhà 2 phòng ngủ đẹp tối ưu công năng
Nhà mái Thái 3 phòng ngủ không gian sống lý tưởng cho gia đình Việt
Với nhà mái Thái 3 phòng ngủ, ngôi nhà mang đến không gian sống lý tưởng cho các gia đình có 4-5 thành viên. Bố cục hợp lý giúp các khu vực sinh hoạt kết nối thuận tiện, đồng thời vẫn đảm bảo sự riêng tư cho từng thành viên. Bên cạnh đó, các tiện ích khác cũng được sắp xếp khoa học, tối ưu cho nhu cầu sử dụng hằng ngày.








>> Xem thêm: Các mẫu nhà đẹp 3 phòng ngủ
Nhà mái Thái 4 phòng ngủ giải pháp thiết kế tiện nghi cho gia đình
Nhà mái Thái 4 phòng ngủ là lựa chọn hoàn hảo cho những gia đình mong muốn một không gian sống tiện nghi và đầy đủ công năng. Thiết kế được bố trí khoa học, giúp tối ưu diện tích sử dụng và mang lại cảm giác thoải mái trong từng khu vực sinh hoạt. Mỗi phòng đều được sắp xếp hợp lý, tạo nên sự cân bằng giữa riêng tư và gắn kết, trở thành giải pháp lý tưởng đáp ứng nhu cầu của gia đình nhiều thế hệ.






>> Xem ngay: Mẫu nhà 4 phòng ngủ vạn người mê
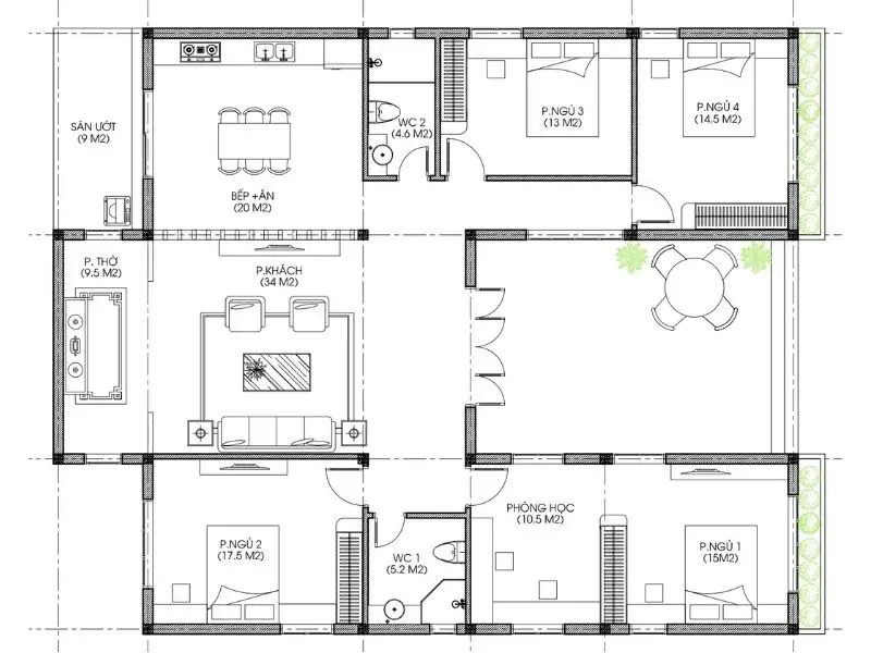
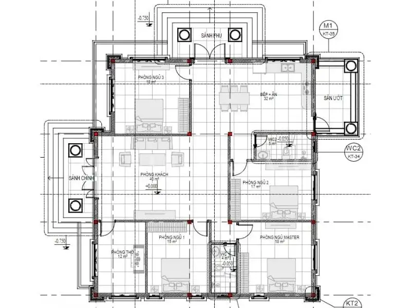
Mẫu nhà mái thái 5 phòng ngủ mang đến không gian sống đáng mơ ước
Mẫu nhà mái Thái 5 phòng ngủ mang đến không gian sống đáng mơ ước cho những gia đình yêu thích sự rộng rãi và tiện nghi. Từng khu vực được thiết kế hài hòa, đảm bảo sự thoáng mát và tính kết nối giữa các phòng. Không chỉ đáp ứng nhu cầu sinh hoạt của gia đình đông thành viên, ngôi nhà còn thể hiện gu thẩm mỹ tinh tế, tạo nên tổ ấm ấm cúng, tràn đầy năng lượng và là nơi lý tưởng để tận hưởng cuộc sống mỗi ngày.






>> Xem ngay: Thiết kế nhà 5 phòng ngủ làm mưa làm gió trên thị trường
Tham khảo qua chi phí xây dựng mẫu nhà mái Thái mới nhất
| Loại hình nhà ở | Khoảng chi phí |
| mẫu nhà cấp 4 mái thái 8x12m | 720.000.000 đ đến 854.400.000đ |
| nhà cấp 4 mái Thái 5x20m có gác lửng | 1.130.000.000đ đến 1.340.000.000đ |
| mẫu nhà mái Thái 120m2 3 tầng | 2.700.000.000đ đến 3.200.000.000đ |
| nhà mái Thái tân Cổ Điển 6×15 1 tầng | 675.000.000đ đến 810.000.000đ |
| Mẫu nhà mái Thái Mẫu nhà mái Thái 2 tầng 180m2 | 2.700.000.000đ đến 3.200.000.000đ |
| Mẫu nhà mái Thái ngang 10×12 2 tầng 1 tum | 2.250.000.000đ đến 2.670.000.000đ |
| mẫu nhà mái Thái 120m2 3 tầng 1 tum | 3.150.000.000đ đến 3.740.000.000đ |
>> Tham khảo thêm: Báo giá thiết kế thi công xây dựng nhà phố
Giữa nhiều phong cách kiến trúc, mẫu nhà mái Thái luôn chinh phục người nhìn bởi vẻ đẹp hài hòa, gần gũi và tính ứng dụng cao trong không gian sống. Kiểu nhà này mang lại cảm giác thoáng mát, tiện nghi và bền vững theo thời gian. Nếu bạn đang tìm kiếm thiết kế phù hợp cho tổ ấm của mình, hãy liên hệ Xây dựng Nhất Tín qua hotline 0988 607 705 để được tư vấn miễn phí và nhận ngay bản thiết kế tối ưu nhất!
KS Tran Nghia (xaydungnhattin.com)










