Mẫu nhà mái Nhật ngày càng ghi dấu ấn nhờ vẻ đẹp tinh gọn mà đầy cá tính. Kiểu mái dốc bốn hướng tạo nên sự vững chãi, đồng thời mang đến một tổng thể mềm mại, hài hòa và cuốn hút từ mọi góc nhìn. Tận dụng những ưu điểm này, Xây dựng Nhất Tín đem đến những thiết kế nhà đẹp mái Nhật mang dấu ấn riêng, được trau chuốt trong từng đường nét để đáp ứng trọn vẹn nhu cầu sinh hoạt và phong thái sống của gia chủ. Khám phá ngay để mở ra ý tưởng cho không gian sống đúng với gu của bạn.
>> Tham khảo: Top những thiết kế nhà đẹp tối ưu tiện nghi được ưa chuộng nhất hiện nay
Tóm tắt nội dung
- 1 Tổng hợp các mẫu nhà mái Nhật quy mô lớn nhỏ phù hợp mọi nhu cầu
- 2 Mẫu nhà đẹp mái Nhật diện tích đa dạng – phù hợp mọi nhu cầu
- 2.1 Nhà mái Nhật ngang 4m gây “sốt” trên thị trường
- 2.2 Nhà mái Nhật ngang 5m được nhiều gia chủ quan tâm nhất
- 2.3 Nhà mái Nhật ngang 6m mang vẻ đẹp khó rời mắt
- 2.4 Mẫu nhà mái Nhật ngang 7m khiến vạn người mê
- 2.5 Nhà mái Nhật ngang 8m với nét đẹp tinh tế làm say lòng người
- 2.6 Nhà mái Nhật ngang 9m đẹp mê hoặc từng góc nhìn
- 2.7 Nhà mái Nhật ngang 10m càng ngắm càng mê
- 2.8 Nhà mái Nhật ngang 12m đẹp không góc chết
- 2.9 Nhà mái Nhật ngang 15m mang vẻ đẹp vượt thời gian
- 3 Mẫu nhà mái Nhật loại hình giải pháp tối ưu cho mọi diện tích đất
- 3.1 Mẫu nhà vườn mái Nhật dẫn đầu phong cách sống xanh
- 3.2 Nhà mái Nhật chữ L với thiết kế đón gió – chan hòa thiên nhiên
- 3.3 Nhà mái Nhật chữ U mở rộng tầm nhìn, kết nối mọi góc sống
- 3.4 Mẫu nhà 3 gian mái Nhật mang nét giản dị mà tinh tế
- 3.5 Thiết kế nhà mái Nhật 4 gian tạo góc nhỏ an nhiên cho cả gia đình
- 3.6 Mẫu nhà đẹp mái Nhật 5 gian mang đến không gian nghỉ dưỡng tối ưu
- 3.7 Biệt thự mái Nhật đẹp ghi dấu với phong cách sống thượng lưu
- 3.8 Nhà mái Nhật 2 mặt tiền giúp tối ưu ánh sáng, gió thiên nhiên
- 4 Mẫu nhà mái Nhật đẹp công năng mang đến không gian sống lý tưởng
- 4.1 Mẫu nhà mái Nhật 3 phòng ngủ tiện nghi trong từng góc nhỏ
- 4.2 Mẫu nhà mái Nhật 4 phòng ngủ đẹp tối ưu công năng sử dụng
- 4.3 Mẫu nhà mái Nhật 5 phòng ngủ bố trí tối ưu từng mét vuông
- 4.4 Nhà mái Nhật 6 phòng ngủ với cách bố trí phòng ốc hợp lý
- 4.5 Nhà mái Nhật có tầng hầm mang đến tiện nghi gói gọn trong tầm tay
- 4.6 Nhà mái Nhật có tum hoặc sân thượng tạo không gian sống tràn đầy năng lượng mỗi ngày
- 4.7 Thiết kế nhà mái Nhật có gara để xe mang đến tiện nghi vượt trội
- 5 Mẫu nhà mái Nhật phong cách hợp xu hướng mới nhất
- 6 Tham khảo một số ý tưởng bố trí nội thất nhà mái Nhật
- 7 Các câu hỏi liên quan đến chủ đề nhà mái Nhật
Tổng hợp các mẫu nhà mái Nhật quy mô lớn nhỏ phù hợp mọi nhu cầu
Mẫu nhà mái Nhật cấp 4/ 1 tầng hợp xu thế
Mẫu nhà mái Nhật cấp 4 ngày càng được nhiều gia đình lựa chọn nhờ sự tiện nghi và vẻ đẹp thanh thoát. Kiểu mái dốc nhẹ kết hợp hài hòa với hình khối công trình, tạo nên không gian sống thoáng đãng và gần gũi với thiên nhiên. Những mẫu nhà mái Nhật 1 tầng do Nhất Tín giới thiệu dưới đây đều được trau chuốt trong từng chi tiết, mang đến một tổ ấm lý tưởng – vừa đáp ứng trọn vẹn nhu cầu sinh hoạt, vừa tạo điểm nhấn thẩm mỹ cho ngôi nhà.








>> Tham khảo: Bảng giá xây nhà cấp 4 trọn gói
Nhà mái Nhật 2 tầng được yêu thích nhất hiện nay
Nhà mái Nhật 2 tầng là lựa chọn lý tưởng cho những gia đình muốn sở hữu không gian sống thanh thoát. Từ tổng thể hài hòa đến bố cục cân đối, ngôi nhà toát lên vẻ đẹp tinh tế. Không gian bên trong được thiết kế mở, giúp ánh sáng và gió tự nhiên lan tỏa khắp các phòng, mang lại cảm giác thoải mái và gần gũi mỗi ngày. Nhờ vậy, ngôi nhà trở thành tổ ấm tiện nghi cho cả gia đình.











>> Xem thêm: Chi phí thi công nhà 2 tầng
Nhà mái Nhật 3 tầng chinh phục mọi ánh nhìn
Nhà mái Nhật 3 tầng mang đến cảm giác thanh thoát, tạo không gian sống thoải mái cho cả gia đình. Kiến trúc tổng thể có thể được bố trí với nhiều phong cách khác nhau giúp ngôi nhà vừa nổi bật vừa thân thiện. Không gian bên trong rộng rãi mang lại cảm giác dễ chịu và thư giãn mỗi ngày. Từng chi tiết nhỏ đều toát lên sự tinh tế, góp phần tạo nên bầu không khí ấm áp, tràn đầy năng lượng cho mọi thành viên.





>> Tham khảo: Chi phí xây nhà 3 tầng trọn gói
Nhà mái Nhật 1,5 tầng được săn đón năm nay
Nhà mái Nhật 1,5 tầng không chỉ mang đến không gian sống thoáng đãng mà còn tràn đầy năng lượng nhờ bố cục hợp lý. Đặc biệt là phần gác lửng hoặc tầng tum giúp tăng diện tích sử dụng và đón sáng tốt hơn. Thiết kế hài hòa tạo cảm giác dễ chịu, đồng thời thể hiện sự tinh tế trong từng chi tiết nhỏ, từ phòng khách, phòng bếp đến các khu vực sinh hoạt chung. Mỗi góc trong ngôi nhà đều được chăm chút kỹ lưỡng tạo nên một tổ ấm lý tưởng cho gia đình.






>> Có thể bạn quan tâm: Những mẫu nhà gác lửng đẹp
Mẫu nhà đẹp mái Nhật diện tích đa dạng – phù hợp mọi nhu cầu
Nhà mái Nhật ngang 4m gây “sốt” trên thị trường
Những mẫu nhà mái Nhật ngang 4m ngày càng được ưa chuộng trong các thành thị nhờ thiết kế gọn gàng và hợp lý. Dù mặt tiền nhỏ, nhưng với cách bố trí khoa học, không gian vẫn đảm bảo khả năng đón sáng và thông gió hiệu quả, tạo cảm giác thoáng đãng. Không chỉ vậy, kiểu dáng tinh tế cùng sự cân đối trong từng chi tiết giúp ngôi nhà vừa đẹp mắt vừa tiện nghi, trở thành lựa chọn phù hợp cho nhiều gia đình.




>> Có thể bạn quan tâm: Mẫu mặt tiền nhà phố đẹp 4m
Nhà mái Nhật ngang 5m được nhiều gia chủ quan tâm nhất
Nhà mái Nhật ngang 5m mang đến một bức tranh đa dạng về kiến trúc, từ phong cách Hiện Đại – Tối Giản đến Tân Cổ Điển tinh tế. Mỗi ngôi nhà được tạo nên từ những chi tiết và vật liệu riêng, toát lên vẻ ngoài độc đáo và đầy cuốn hút. Đặc biệt, mái Nhật thanh thoát kết hợp với mặt tiền chăm chút kỹ lưỡng giúp mẫu nhà này trở thành dấu ấn riêng giữa các công trình lân cận.





>> Tham khảo: Mẫu nhà đẹp mặt tiền 5m
Nhà mái Nhật ngang 6m mang vẻ đẹp khó rời mắt
Nhà mái Nhật ngang 6m mang đến đến một vẻ ngoài bề thế và ấn tượng. Mặt tiền rộng rãi giúp dễ dàng bố trí các điểm nhấn, từ cửa chính lớn, ban công đến lam gỗ trang trí,… tạo nên vẻ ngoài nổi bật cho công trình. Không gian này mang đến sự tiện nghi linh hoạt, đáp ứng nhu cầu sinh hoạt và trải nghiệm của mọi thành viên trong gia đình.







>> Xem thêm: Phối cảnh 3D mặt tiền nhà ngang 6m
Mẫu nhà mái Nhật ngang 7m khiến vạn người mê
Mẫu nhà mái Nhật ngang 7m mang đến vẻ đẹp mạnh mẽ và cuốn hút ngay từ cái nhìn đầu tiên. Kiến trúc mái Nhật đặc trưng kết hợp vật liệu tinh chọn không chỉ tạo nên tổng thể hài hòa và cân đối, mà còn làm nổi bật ý tưởng thiết kế sáng tạo, khéo léo thể hiện cá tính riêng của từng ngôi nhà. Đây thực sự là lựa chọn lý tưởng cho những gia đình muốn sở hữu tổ ấm thời thượng, độc đáo và mang dấu ấn riêng.










>> Xem thêm: Mẫu thiết kế nhà ngang 7m làm mưa làm gió hiện nay
Nhà mái Nhật ngang 8m với nét đẹp tinh tế làm say lòng người
Nhà mái Nhật ngang 8m vừa rộng rãi vừa cân đối, mang đến không gian sống linh hoạt và tiện nghi cho gia chủ. Chiều ngang rộng giúp gia chủ dễ dàng bố trí các phòng ốc, khu vực sinh hoạt và hành lang hợp lý, đồng thời đáp ứng nhu cầu mở rộng trong tương lai. Đây là lựa chọn lý tưởng cho các gia đình đông người hoặc những ai muốn sở hữu tổ ấm vừa sang trọng vừa tiện lợi. Ngoài ra, khối nhà cân đối và thiết kế thông minh còn giúp tăng giá trị bất động sản, tạo dấu ấn bền vững cho ngôi nhà.








>> Tham khảo: Tổng hợp những mẫu mặt tiền nhà ngang 8m đẹp
Nhà mái Nhật ngang 9m đẹp mê hoặc từng góc nhìn
Mẫu nhà mái Nhật ngang 9m đang trở thành lựa chọn nổi bật, được nhiều nhà đầu tư quan tâm nhờ những ưu điểm vượt trội. Kiến trúc đa dạng, có thể áp dụng nhiều phong cách khác nhau. Bên cạnh đó, cách bố trí khoa học giúp không gian hài hòa và thuận tiện cho sinh hoạt hàng ngày. Hãy cùng khám phá những mẫu nhà ấn tượng qua những hình ảnh dưới đây của chúng tôi.






>> Tham khảo: Tổng hợp những mẫu nhà đẹp ngang 9m
Nhà mái Nhật ngang 10m càng ngắm càng mê
Nhà mái Nhật ngang 10m nổi bật với tỷ lệ cân đối và đường nét tinh tế tạo nên vẻ thanh lịch riêng biệt. Từng chi tiết, từ kết cấu tổng thể đến các điểm nhấn nhỏ, đều toát lên sự sang trọng tinh tế. Ngôi nhà không chỉ là chốn an cư mà còn là một tác phẩm kiến trúc, khiến bất cứ ai đi ngang cũng phải dừng lại trầm trồ.






>> Xem thêm: Mẫu nhà đẹp ngang 10m vạn người mê
Nhà mái Nhật ngang 12m đẹp không góc chết
Nhà mái Nhật ngang 12m gây ấn tượng với vẻ đẹp hoàn hảo từ mọi góc nhìn, nhờ thiết kế tinh giản nhưng cuốn hút. Bên cạnh đó, tỷ lệ cân đối cùng sự liền mạch trong tổng thể mang lại cảm giác hài hòa và sang trọng. Đồng thời, không gian bên trong rộng rãi kết hợp tiện nghi tối tân biến ngôi nhà thành nơi sống thoải mái, vừa là tổ ấm vừa như một tác phẩm nghệ thuật, để lại ấn tượng sâu sắc cho mọi người.






Nhà mái Nhật ngang 15m mang vẻ đẹp vượt thời gian
Nhà mái Nhật ngang 15m khoe trọn vẻ đẹp vượt thời gian qua những đường nét tinh tế cùng các chi tiết thiết kế tỉ mỉ và cân đối. Thiết kế này không chỉ là một ngôi nhà, mà còn kiến tạo không gian sống đẳng cấp, tựa như một khu nghỉ dưỡng riêng dành cho gia chủ. Với quy mô rộng lớn, mẫu nhà này là lựa chọn lý tưởng cho các gia chủ sở hữu khu đất rộng, mong muốn kiến tạo một tổ ấm tiện nghi và thư thái.




Mẫu nhà mái Nhật loại hình giải pháp tối ưu cho mọi diện tích đất
Mẫu nhà vườn mái Nhật dẫn đầu phong cách sống xanh
Mẫu nhà vườn mái Nhật dẫn đầu xu hướng sống xanh nhờ không gian rộng rãi, gần gũi với thiên nhiên. Với diện tích linh hoạt, gia chủ dễ dàng bố trí vườn, sân chơi hoặc góc thư giãn riêng. Sự hòa quyện giữa kiến trúc và cảnh quan mang đến cảm giác bình yên, dễ chịu và tràn đầy năng lượng. Đây sẽ là lựa chọn lý tưởng cho những ai yêu thích một tổ ấm hòa hợp với thiên nhiên.






Nhà mái Nhật chữ L với thiết kế đón gió – chan hòa thiên nhiên
Nhà Mái Nhật chữ L nổi bật với thiết kế mở, tận dụng tối đa gió và ánh sáng tự nhiên khắp mọi không gian. Kiến trúc chữ L tạo sự linh hoạt trong bố trí phòng ốc, đảm bảo sự tiện nghi và dễ dàng trong việc phân chia công năng. Nhờ vậy mà, thiết kế này tối ưu hóa công năng, mang đến sự tiện lợi và thoải mái cho mọi sinh hoạt hằng ngày.






>> Tham khảo: Mẫu nhà đẹp hình chữ L được ưa chuộng nhất hiện nay
Nhà mái Nhật chữ U mở rộng tầm nhìn, kết nối mọi góc sống
Nhà mái Nhật chữ U thu hút mọi ánh nhìn nhờ phong cách độc đáo, kết nối các không gian sống một cách tự nhiên. Hai nhánh nhô ra cùng phần lõm giữa tạo nên một khoảng sân nhỏ hoặc không gian đệm, giúp lấy sáng và luân chuyển không khí nhẹ nhàng, mang đến không khí dễ chịu cho toàn bộ các phòng bên trong ngôi nhà. Nhờ vậy, không gian sống luôn được tối ưu. Để có cái nhìn rõ hơn về ưu điểm của mẫu nhà này, mời bạn đọc tham khảo những hình ảnh dưới đây.








>> Tham khảo: Mẫu nhà hình chữ U đẹp nhất năm nay
Mẫu nhà 3 gian mái Nhật mang nét giản dị mà tinh tế
Nhà 3 gian mái Nhật 3 gian là lựa chọn lý tưởng cho những gia đình yêu thích cách sắp xếp không gian theo bố cục truyền thống. Gian chính của ngôi nhà thường được ưu tiên dành cho khu tiếp khách trang trọng và phòng thờ cúng. Trong khi đó, các gian phụ được bố trí linh hoạt cho khu vực nghỉ ngơi, ăn uống, tạo nên một tổng thể vừa hài hòa, vừa đảm bảo sự tiện nghi cần thiết. Xem thêm một số mẫu phối cảnh nhà 3 gian ấn tượng.






Thiết kế nhà mái Nhật 4 gian tạo góc nhỏ an nhiên cho cả gia đình
Thiết kế nhà mái Nhật 4 gian mang đến những góc nhỏ cực chill, nơi cả gia đình có thể tận hưởng trọn vẹn từng khoảnh khắc bên nhau. Kiến trúc bốn gian đối xứng hoàn hảo cho phép gia chủ dễ dàng phân tách rõ các khu sinh hoạt chung và khu riêng tư cho từng thành viên trong gia đình. Không chỉ vậy, mỗi khu vực trong nhà đều được kết nối thông minh mang đến sự tiện lợi, đảm bảo sự tiện ích tối đa trong mọi hoạt động sinh hoạt hằng ngày.


Mẫu nhà đẹp mái Nhật 5 gian mang đến không gian nghỉ dưỡng tối ưu
Mẫu nhà đẹp Mái Nhật 5 gian thường được xây dựng trên đất rộng, phù hợp với các gia chủ yêu thích không gian bề thế, đa thế hệ hoặc có nhu cầu công năng phức tạp. Với mặt tiền rộng ấn tượng, chủ nhà có thể linh hoạt lựa chọn phong cách kiến trúc, từ truyền thống – Tân Cổ Điển đến thời thượng Hiện Đại, tạo nên dấu ấn riêng đầy cá tính. Mẫu nhà này không chỉ là nơi an cư, mà còn là biểu tượng của gu thẩm mỹ tinh tế và phong cách sống vượt thời gian.



Biệt thự mái Nhật đẹp ghi dấu với phong cách sống thượng lưu
Biệt thự mái Nhật mở ra một không gian sống thượng lưu và tràn đầy cá tính riêng. Kiến trúc cho phép gia chủ tự do thể hiện gu thẩm mỹ nhờ sự đa dạng trong kiểu dáng và cách bố trí. Từng đường nét tinh tế cùng bố cục cân đối biến ngôi nhà thành lựa chọn lý tưởng, vừa hoàn hảo về công năng, vừa luôn thời thượng qua năm tháng.





Nhà mái Nhật 2 mặt tiền giúp tối ưu ánh sáng, gió thiên nhiên
Mẫu nhà mái Nhật 2 mặt tiền là sự lựa chọn hoàn hảo để khẳng định vị thế và gu thẩm mỹ của gia chủ. Tọa lạc tại vị trí đắc địa, ngôi nhà sở hữu tầm nhìn rộng mở cùng khả năng đón sáng và thông gió tối ưu từ hai phía. Đặc biệt, sự kết hợp giữa kiến trúc bề thế của hai mặt tiền và hệ mái Nhật thanh thoát đã khiến cho mẫu nhà thêm phần sang trọng và luôn cuốn hút ở mọi góc nhìn.




Mẫu nhà mái Nhật đẹp công năng mang đến không gian sống lý tưởng
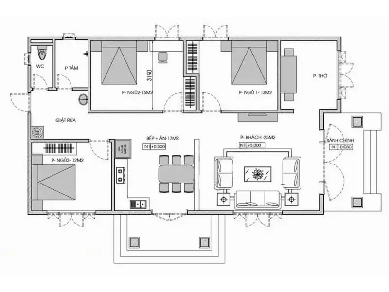
Mẫu nhà mái Nhật 3 phòng ngủ tiện nghi trong từng góc nhỏ
Mẫu nhà mái Nhật 3 phòng ngủ là loại hình phổ biến hiện nay, đáp ứng nhu cầu sinh hoạt của hầu hết gia đình Việt Nam, thường có 3–5 thành viên (bố mẹ, 1–2 con, hoặc thêm ông bà). Với 3 phòng ngủ, mẫu nhà mang đến không gian vừa đủ cho mọi thành viên, đồng thời dễ dàng sắp xếp các khu vực sinh hoạt chung và riêng. Thiết kế này giúp mỗi người đều có góc riêng, nhưng vẫn cảm nhận được sự gắn kết trong gia đình.






>> Tham khảo: Top những mẫu nhà đẹp 3 phòng ngủ
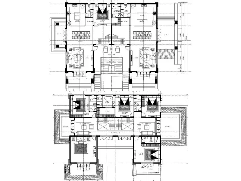
Mẫu nhà mái Nhật 4 phòng ngủ đẹp tối ưu công năng sử dụng
Tương tự như mẫu nhà 3 phòng ngủ, mẫu nhà mái Nhật 4 phòng ngủ cũng mang đến không gian tiện nghi cho gia đình. Tuy vậy, những mẫu nhà này yêu cầu quy mô, diện tích xây dựng lớn hơn một chút. Do đó, nhà 4 phòng ngủ thường được xây dựng từ 2 tầng trở lên hoặc trên lô đất rộng để tối ưu hóa công năng và tránh cảm giác bí bách cho từng căn phòng.








>> Tham khảo: Mẫu nhà đẹp 4 phòng ngủ được nhiều gia đình lựa chọn
Mẫu nhà mái Nhật 5 phòng ngủ bố trí tối ưu từng mét vuông
Nhà mái Nhật 5 phòng ngủ là loại hình kiến trúc cao cấp, được thiết kế riêng để đáp ứng nhu cầu của các đại gia đình nhiều thế hệ hoặc những gia đình cần không gian đa năng. Với 5 phòng ngủ, ngôi nhà cho phép bố trí linh hoạt: từ phòng Master sang trọng, phòng cho con cái, phòng cho ông bà đến một phòng dự phòng dành cho khách. Đây là giải pháp lý tưởng mang lại sự riêng tư tối đa cho từng thành viên trong gia đình.







>> Tham khảo thêm: Thiết kế nhà 5 phòng ngủ tối ưu tiện nghi và công năng
Nhà mái Nhật 6 phòng ngủ với cách bố trí phòng ốc hợp lý
Nhà mái Nhật 6 phòng ngủ thuộc nhóm công trình có quy mô lớn, vượt xa nhu cầu sinh hoạt của các gia đình phổ thông. Thông thường, loại hình này được xây dựng cho các mục đích đặc thù, nơi cần khai thác tối đa số lượng phòng. Chẳng hạn như kinh doanh lưu trú với mô hình mini-hotel, homestay hoặc nhà ở kết hợp dịch vụ. Đồng thời, quy mô này cũng có thể phù hợp với đại gia đình đa thế hệ (8–12 thành viên) nhờ có nhiều phòng chuyên biệt.






Nhà mái Nhật có tầng hầm mang đến tiện nghi gói gọn trong tầm tay
Nhà mái Nhật có tầng hầm mang đến một không gian sống linh hoạt và tiện nghi, nơi cả gia đình có thể tận dụng mọi góc nhỏ một cách khéo léo. Tầng hầm không chỉ là nơi để Gara hay kho chứa, mà còn có thể trở thành không gian giải trí lý tưởng như phòng karaoke, home cinema, phòng gym, hay một góc làm việc, thư viện yên tĩnh. Với tầng hầm, mỗi mét vuông đều được khai thác tối đa, mang đến trải nghiệm sống trọn vẹn và thoải mái cho mọi thành viên. Hãy cùng khám phá một số mẫu bố trí ấn tượng dưới đây.




>> Xem thêm: Mẫu nhà đẹp có tầng hầm
Nhà mái Nhật có tum hoặc sân thượng tạo không gian sống tràn đầy năng lượng mỗi ngày
Nhà mái Nhật có tum hoặc sân thượng mang đến một không gian sống tràn đầy sức sống và năng lượng cho cả gia đình. Đây là khu vực lý tưởng để gia chủ tận hưởng những phút giây thư thái, bình yên. Không chỉ vậy, khu vực tum hay sân thượng được thiết kế linh hoạt, dễ dàng biến hóa thành góc nghỉ ngơi lãng mạn hoặc khu vườn xanh mát, đáp ứng mọi nhu cầu thư giãn và tận hưởng cuộc sống của gia đình.




Thiết kế nhà mái Nhật có gara để xe mang đến tiện nghi vượt trội
Thiết kế nhà mái Nhật có gara để xe mang đến sự tiện nghi tối đa, giúp việc sinh hoạt hàng ngày của gia đình trở nên thuận tiện hơn bao giờ hết. Gara được bố trí hợp lý, dễ dàng di chuyển, đồng thời kết nối linh hoạt với các khu vực trong nhà. Ngôi nhà không chỉ ngăn nắp nhờ phương tiện được cất giữ gọn gàng, mà còn biến tổ ấm thành nơi tận hưởng cuộc sống trọn vẹn mỗi ngày.




Mẫu nhà mái Nhật phong cách hợp xu hướng mới nhất
Nhà mái Nhật đơn giản tinh gọn trong từng đường nét
Nhà mái Nhật đơn giản gây ấn tượng nhờ mặt tiền tinh tế. Thiết kế ưu tiên các hình khối cơ bản, đường nét thẳng dứt khoát và bảng màu trung tính (trắng, xám, be). Sự tối giản này không chỉ loại bỏ mọi chi tiết trang trí rườm rà, mà còn tối đa hóa ánh sáng và không gian mở. Nhờ vậy, mẫu nhà luôn mang đến cảm giác thanh thoát, gọn gàng và dễ chịu ngay từ cái nhìn đầu tiên.



Mẫu nhà mái Nhật Hiện Đại gây thương nhớ bởi vẻ đẹp tinh giản mà sang
Khác với những mẫu nhà tối giản, nhà mái Nhật phong cách Hiện Đại mang đến sự tự do hơn trong việc phối màu và lựa chọn chi tiết thiết kế, tạo cơ hội thể hiện cá tính riêng của gia đình. Đây là lựa chọn lý tưởng cho những ai trân trọng sự tiện nghi và không gian sống linh hoạt, nơi mọi góc nhỏ đều có thể được chăm chút. Dù vậy, phong cách này vẫn giữ được sự tinh giản, tập trung vào các hình khối cơ bản, đường nét thẳng dứt khoát và vật liệu hiện đại để mỗi chi tiết vừa gọn gàng vừa sắc nét.



Biệt thự mái Nhật Tân Cổ Điển với thiết kế mang dấu ấn thượng lưu
Nhà mái Nhật Tân Cổ Điển là một kiệt tác kiến trúc, khẳng định vị thế thượng lưu và gu thẩm mỹ tinh tế của gia chủ. Sự kết hợp hài hòa giữa vẻ uy nghi, tráng lệ của các chi tiết Tân Cổ Điển và nét hoành tráng của mái Nhật tạo nên một không gian sống hoàn mỹ, sang trọng và đầy ấn tượng. Nếu bạn đã yêu thích sự sang trọng của Tân Cổ Điển, bạn có thể tham khảo thêm những mẫu nhà mà Nhất Tín chia sẻ dưới đây.





Tham khảo một số ý tưởng bố trí nội thất nhà mái Nhật
Nội thất phòng khách thanh thoát trong từng đường nét





Nội thất bếp kết hợp bàn ăn được sắp đặt hợp lý





Nội thất phòng ngủ mang đến cảm giác thư thái




Phòng thờ của gia đình trang nghiêm, giữ trọn nét truyền thống Việt




Các câu hỏi liên quan đến chủ đề nhà mái Nhật
Nhà mái Nhật là gì? Có đặc điểm như thế nào?
Nhà mái Nhật là kiểu nhà có nguồn gốc từ kiến trúc truyền thống Nhật Bản, nhưng đã được Việt hóa và hiện đại hóa để phù hợp với khí hậu, văn hóa và lối sống ở Việt Nam. Một số đặc điểm nổi bật của nhà mái Nhật:
- Mái dốc nhẹ với đường nét thanh thoát, tạo cảm giác gọn gàng và dễ chịu.
- Hình khối thường vuông vức có tỷ lệ cân đối.
- Thường có thêm các yếu tố tân cổ điển hoặc hiện đại để phù hợp với nhu cầu sử dụng và gu thẩm mỹ của gia chủ.
- Thích hợp với khí hậu Việt Nam, chống nắng, thoát nước mưa nhanh, giữ mát cho không gian bên trong.
Nhà mái Nhật thường cao bao nhiêu?
Chiều cao của nhà mái Nhật phụ thuộc vào số tầng, kiểu mái và phong cách thiết kế, nhưng có thể tham khảo các con số phổ biến sau:
- Nhà mái Nhật 1 tầng: Chiều cao thông thủy từ sàn đến trần thường khoảng 3 – 3,3 m. Tổng chiều cao tính cả mái vào khoảng 5 – 6m, tùy độ dốc và kiểu mái.
- Nhà mái Nhật 2 tầng: Chiều cao thông thủy mỗi tầng thường khoảng 3 – 3,3 m. Tổng chiều cao nhà cộng mái khoảng 7 – 9m, nếu có tum hay sân thượng sẽ cao hơn.
- Nhà mái Nhật 3 tầng: Chiều cao thông thủy mỗi tầng cũng khoảng 3 – 3,3 m. Tổng chiều cao nhà và mái vào khoảng 10 – 12 m hoặc hơn, phụ thuộc vào thiết kế mái và số tầng phụ (tầng tum, lửng).
Nhà mái Nhật lợp bằng gì?
Nhà mái Nhật thường được lợp bằng nhiều loại vật liệu khác nhau, mỗi loại đều có ưu điểm và phù hợp với từng phong cách thiết kế. Việc lựa chọn vật liệu không chỉ ảnh hưởng đến thẩm mỹ mà còn tác động đến độ bền, khả năng chống nóng và chi phí xây dựng. Dưới đây là một số loại phổ biến:
- Các loại ngói gồm: Ngói đất nung truyền thống, ngói bê tông màu, ngói phẳng hoặc ngói sóng hiện đại.
- Tôn giả ngói.
Chi phí thi công xây dựng nhà mái Nhật trọn gói là bao nhiêu?
Tại Xây dựng Nhất Tín, giá xây nhà mái Nhật trọn gói dao động từ 4.950.000 vnđ/m2 – 7.050.000 vnđ/m2, tùy thuộc vào gói vật liệu và yêu cầu của gia chủ. Để có thông tin chi tiết hơn, mời quý bạn đọc tham khảo bài viết: Bảng báo giá xây dựng trọn gói
Những thiết kế nhà mái Nhật mà Xây dựng Nhất Tín chia sẻ trên đây không chỉ là sự kết hợp hoàn hảo giữa thẩm mỹ và công năng, mà còn mang đến không gian sống tràn đầy cảm hứng. Với nhiều kiểu dáng, màu sắc và vật liệu đa dạng, mỗi ngôi nhà đều có thể tạo nên dấu ấn riêng, phản ánh gu thẩm mỹ và phong cách sống của gia chủ. Liên hệ với chúng tôi ngay hôm nay để được tư vấn chi tiết và chọn lựa mẫu nhà mái Nhật đẹp phù hợp cho tổ ấm của bạn. Hotline: 0988607705.
> Có thể bạn quan tâm: Chọn lọc những mẫu nhà đẹp mái Thái được ưa chuộng
KS Tran Nghia (xaydungnhattin.com)










