Những mẫu nhà chữ L luôn được nhiều gia chủ yêu thích nhờ thiết kế thông minh, vừa đảm bảo tính thẩm mỹ vừa mang lại không gian sống tiện nghi và thoáng mát. Kiểu dáng chữ L giúp bố trí công năng linh hoạt, tận dụng tối đa diện tích đất và dễ dàng tạo sân vườn hoặc khu sinh hoạt ngoài trời. Dưới đây là những mẫu nhà chữ L đẹp nhất mà Nhất Tín đã tuyển chọn, hy vọng sẽ mang đến cho bạn nhiều ý tưởng để kiến tạo không gian sống như mong muốn.
>> Tham khảo: Các mẫu thiết kế nhà đẹp tối ưu công năng và diện tích
Tóm tắt nội dung
- 1 Xây nhà chữ L có tốt không? Ưu điểm và nhược điểm của mẫu nhà này
- 2 Mẫu nhà mái Thái chữ L đẹp với thiết kế phào chỉ nổi bật đầy thẩm mỹ
- 3 Mẫu nhà chữ L đẹp ở nông thôn có gác lửng với thiết kế mái lệch ấn tượng
- 4 Thiết kế nhà chữ L 2 tầng 80m2 mái Nhật theo xu hướng Hiện Đại
- 5 Mẫu nhà chữ L 3 tầng diện tích 96m2 với mái bằng tinh tế
- 6 Mẫu nhà đẹp chữ L 100m2 mái Pháp kết hợp phong cách Tân Cổ Điển sang trọng
- 7 Thiết kế nhà cấp 4 chữ L 60m2 ấn tượng với mặt tiền ốp gạch trang trí
- 8 Biệt thự sân vườn chữ L mái ngói màu gạch nung phảng phất nét đẹp truyền thống Việt
- 9 Mẫu nhà chữ L 2 tầng 132m2 3 phòng ngủ chan hòa cùng thiên nhiên
- 10 Mẫu nhà e lờ đẹp 3 tầng 80m2 ban công lớn tạo không gian nghỉ dưỡng
- 11 Nhà chữ L 5 phòng ngủ sự kết hợp giữa tiện nghi và cảm giác nghỉ dưỡng
- 12 Mẫu nhà chữ L đơn giản thiết kế với màu công nghiệp tôn lên vẻ đẹp mạnh mẽ và thanh lịch
- 13 Gợi ý một số phương án bố trí công năng 2D mẫu nhà đẹp hình chữ L
- 14 Hướng dẫn dự toán ngân sách chi phí xây dựng mẫu nhà chữ L đẹp nhất
Xây nhà chữ L có tốt không? Ưu điểm và nhược điểm của mẫu nhà này
Xây nhà chữ L có tốt không? Thực tế, mẫu nhà chữ L sở hữu nhiều ưu điểm nổi bật như khả năng tận dụng tối đa diện tích đất, tạo không gian sống thông thoáng và dễ dàng bố trí công năng phù hợp với nhu cầu từng gia đình. Thiết kế này cũng giúp các phòng đều có hướng đón sáng và gió tự nhiên, mang lại sự thoải mái, tiện nghi trong sinh hoạt.
Dưới góc độ khoa học, nhà chữ L được đánh giá cao nhờ tính linh hoạt trong thiết kế, khả năng mở rộng tầm nhìn và tối ưu diện tích sử dụng. Tuy nhiên, nếu tỷ lệ chiều ngang hoặc chiều dọc quá dài có thể khiến tổng thể công trình trở nên mất cân đối.

Xét theo phong thủy, dáng nhà chữ L được cho là thiếu sự cân bằng, hình dạng giống “dao phay” nên có thể ảnh hưởng đến năng lượng và vận khí trong nhà, đặc biệt ở phần góc bị khuyết. Dù vậy, điều này hoàn toàn có thể hóa giải nếu gia chủ khéo léo bố trí thêm tiểu cảnh, hồ nước, cây xanh hoặc khu sinh hoạt phụ tại khu vực đó, giúp cân bằng hình khối tổng thể, mang lại sự hài hòa và vượng khí cho không gian sống.

Mẫu nhà mái Thái chữ L đẹp với thiết kế phào chỉ nổi bật đầy thẩm mỹ
Mẫu nhà mái Thái chữ L nổi bật với thiết kế tinh tế và hài hòa, mang đậm nét sang trọng của kiến trúc Tân Cổ Điển pha chút truyền thống. Phần mái Thái đa chiều dốc cao giúp tổng thể trở nên thanh thoát, đồng thời làm tôn lên hình khối chữ L đặc trưng. Không chỉ vậy, khu sảnh chính được bố trí hướng ra bên hông nhà, vừa tạo cảm giác riêng tư, vừa đảm bảo hướng phong thủy hài hòa, mang lại không gian sống tiện nghi và thẩm mỹ cho gia chủ.


>> Xem thêm: Tham khảo mẫu nhà 4 phòng ngủ
Mẫu nhà chữ L đẹp ở nông thôn có gác lửng với thiết kế mái lệch ấn tượng
Mẫu nhà chữ L đẹp ở nông thôn mang vẻ hiện đại nhưng vẫn giữ được nét gần gũi, hài hòa với cảnh quan xung quanh. Gác lửng và mái lệch được thiết kế khéo léo, tạo nên cảm giác cao ráo, thoáng đãng và đầy sức sống. Bên cạnh đó, những khoảng ban công kính và sân thượng mở ra hướng nhìn thoáng đãng, nơi gia chủ có thể tận hưởng nắng sớm, gió lành và vẻ thanh bình của vùng quê mỗi ngày.


Thiết kế nhà chữ L 2 tầng 80m2 mái Nhật theo xu hướng Hiện Đại
Thiết kế nhà chữ L 2 tầng 80m2 theo phong cách mái Nhật hiện đại đang được nhiều gia chủ yêu thích bởi vẻ đẹp thanh thoát và sang trọng. Mẫu nhà này ấn tượng với phào chỉ tinh tế ở khu vực cửa lớn, vừa tạo điểm nhấn thẩm mỹ vừa tôn lên nét trang nhã cho mặt tiền. Sự kết hợp hài hòa giữa hình khối khỏe khoắn và gam màu nhẹ nhàng giúp tổng thể trở nên hiện đại, tiện nghi và đầy sức sống.


>> Tham khảo: Chi phí xây nhà ống 2 tầng 80m2
Mẫu nhà chữ L 3 tầng diện tích 96m2 với mái bằng tinh tế
Mẫu nhà chữ L 3 tầng 96m2 ghi điểm với hệ mái bằng sắc nét, mang đến vẻ ngoài tinh tế và vững chãi. Không chỉ vậy, sự kết hợp tinh tế giữa đá ốp mặt tiền và các mảng lam gỗ dọc tạo nên vẻ hài hòa cuốn hút, dung hòa khéo léo giữa nét sang trọng và cảm giác gần gũi, tự nhiên. Từng chi tiết trong thiết kế đều hướng đến sự bền vững và tiện nghi, khiến cho ngôi nhà luôn bền đẹp và luôn nổi bật giữa không gian xung quanh.


Mẫu nhà đẹp chữ L 100m2 mái Pháp kết hợp phong cách Tân Cổ Điển sang trọng
Mẫu nhà đẹp chữ L 100m2 thu hút ánh nhìn nhờ vẻ đẹp bề thế của mái Pháp kết hợp hài hòa cùng phong cách Tân Cổ Điển sang trọng. Hệ cửa vòm kính lớn ở mặt tiền mang đến nét mềm mại tinh tế, đồng thời mở rộng không gian và đón trọn nguồn sáng tự nhiên. Không những thế, từng đường phào chỉ được trau chuốt tỉ mỉ, tạo nên chiều sâu và sức hút riêng cho mặt tiền. Nhờ vậy, mẫu nhà này là lựa chọn hoàn hảo dành cho những gia chủ yêu thích vẻ đẹp thanh lịch và đẳng cấp vượt thời gian.


>> Tham khảo: Chi phí xây nhà 100m2 mới nhất 2025
Thiết kế nhà cấp 4 chữ L 60m2 ấn tượng với mặt tiền ốp gạch trang trí
Thiết kế nhà cấp 4 chữ L 60m2 gây ấn tượng với vẻ đẹp hài hòa và gần gũi, phù hợp với nhiều gia đình Việt. Mặt tiền được ốp gạch trang trí màu be trang nhã, vừa mang lại cảm giác sang trọng vừa đảm bảo độ bền theo thời gian. Bên cạnh đó, chi tiết lam gỗ ở phần mái không chỉ tạo điểm nhấn thẩm mỹ mà còn giúp không gian trở nên ấm cúng và thân thiện hơn. Đây là lựa chọn lý tưởng cho những ai yêu thích sự giản dị mà vẫn tinh tế trong thiết kế.


>> Xem thêm: Chi phí xây nhà cấp 4 60m2
Biệt thự sân vườn chữ L mái ngói màu gạch nung phảng phất nét đẹp truyền thống Việt
Biệt thự sân vườn chữ L mang đến nét đẹp gần gũi và hài hòa với thiên nhiên. Đây cũng chính là lựa chọn hoàn hảo cho những gia chủ yêu thích không gian sống thoáng đãng. Hòa cùng với đó, ngôi nhà được điểm tô bởi mái ngói màu gạch nung truyền thống, tạo cảm giác ấm áp, mộc mạc và gắn bó với thiên nhiên. Bao quanh là khu sân vườn thoáng đãng, mang đến bầu không khí trong lành – Nơi cả gia đình có thể thư giãn, sum họp và tận hưởng trọn vẹn sự an yên của cuộc sống.


Mẫu nhà chữ L 2 tầng 132m2 3 phòng ngủ chan hòa cùng thiên nhiên
Mẫu nhà chữ L 2 tầng 132m2 ghi điểm với phong cách thiết kế tinh tế, phóng khoáng và đậm chất hiện đại. Thiết kế nổi bật với ban công kính liền mạch lớn, giúp mở rộng tầm nhìn và đón trọn ánh sáng tự nhiên, tạo cảm giác thông thoáng cho toàn bộ ngôi nhà. Sự kết hợp giữa hình khối vững chắc và vật liệu hiện đại mang đến vẻ đẹp sang trọng, tiện nghi và đầy cuốn hút.



>> Có thể bạn quan tâm: Chi phí xây nhà 2 tầng 3 phòng ngủ
Mẫu nhà e lờ đẹp 3 tầng 80m2 ban công lớn tạo không gian nghỉ dưỡng
Mẫu nhà chữ L 3 tầng 80m² mang đến không gian sống hài hòa, tiện nghi và được bố trí khéo léo để đáp ứng trọn vẹn nhu cầu của gia đình hiện đại. Thiết kế nổi bật với ban công lớn ở tầng 2, vừa tạo điểm nhấn thẩm mỹ, vừa mở rộng không gian thư giãn tràn ngập gió và ánh sáng tự nhiên. Phía dưới, khu vực sân đỗ xe rộng rãi được sắp xếp tinh gọn, giúp tổng thể ngôi nhà thêm cân đối và hài hòa trong từng đường nét kiến trúc.


>> Xem thêm: Chi phí xây nhà 3 tầng 80m2
Nhà chữ L 5 phòng ngủ sự kết hợp giữa tiện nghi và cảm giác nghỉ dưỡng
Nhà chữ L 5 phòng ngủ gây ấn tượng bởi thiết kế tinh tế với tông màu xám chủ đạo mang đến cảm giác sang trọng và thanh lịch. Điểm nhấn ấn tượng của ngôi nhà là thiết kế mảng kính lớn kéo dài từ tầng 2 lên tới mái, giúp không gian luôn tràn ngập ánh sáng tự nhiên và tạo hiệu ứng mở rộng đầy ấn tượng. Không những thế, mẫu nhà sở hữu bố cục hợp lý cùng 5 phòng ngủ tiện nghi mang đến sự thoải mái và riêng tư cho từng thành viên trong gia đình.


>> Xem thêm: Giá xây nhà 2 tầng 5 phòng ngủ
Mẫu nhà chữ L đơn giản thiết kế với màu công nghiệp tôn lên vẻ đẹp mạnh mẽ và thanh lịch
Mẫu nhà chữ L mang phong cách tối giản hiện đại, nổi bật với vẻ đẹp tinh tế, gọn gàng trong từng đường nét thiết kế. Gam màu xám – đen mang hơi hướng công nghiệp giúp tổng thể trở nên mạnh mẽ, phóng khoáng và đầy cá tính. Bố cục chữ L không chỉ tạo cảm giác thoáng đãng, dễ sắp xếp công năng, mà còn tối ưu ánh sáng tự nhiên, mang đến không gian sống tiện nghi và giàu tính thẩm mỹ.


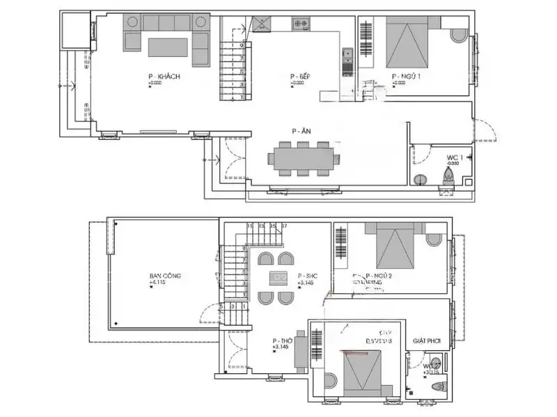
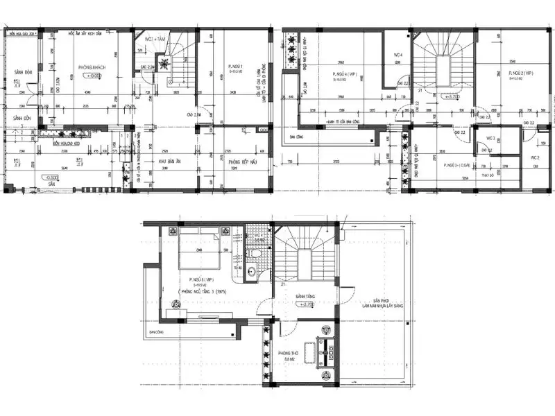
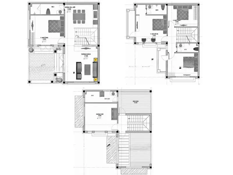
Gợi ý một số phương án bố trí công năng 2D mẫu nhà đẹp hình chữ L





Hướng dẫn dự toán ngân sách chi phí xây dựng mẫu nhà chữ L đẹp nhất
| Loại hình nhà ở | Khoảng chi phí |
| Mẫu nhà chữ L 1 tầng 100m2 | 730.000.000đ đến 870.000.000đ |
| Nhà cấp 4 có gác lửng chữ L 80m2 | 876.000.000đ đến 1.040.000.000đ |
| Thiết kế nhà chữ L 2 tầng 96m2 | 1.400.000.000đ đến 1.670.000.000đ |
| Nhà chữ L 3 tầng 60m2 | 876.000.000đ đến 1.040.000.000đ |
| Mẫu nhà 2 tầng 1 tum chữ L 132m2 | 2.410.000.000đ đến 2.870.000.000đ |
>> Xem thêm: Bảng báo giá xây dựng nhà ở
Mẫu nhà chữ L là lựa chọn lý tưởng cho những ai đang tìm kiếm không gian sống tiện nghi, linh hoạt và đậm tính thẩm mỹ. Thiết kế này giúp tối ưu công năng, phù hợp với nhiều diện tích đất, đồng thời mang lại sự thông thoáng và hiện đại cho tổng thể ngôi nhà. Nếu bạn đang lên kế hoạch xây dựng, Xây dựng Nhất Tín sẵn sàng đồng hành và tư vấn chi tiết để cùng bạn kiến tạo mẫu nhà L mơ ước. Liên hệ ngay: 0988 607 705.
> Tham khảo: Mẫu nhà hình chữ u đẹp
KS Tran Nghia (xaydungnhattin.com)










